賃貸マンション
ミレーネ神戸住吉本町の賃貸物件情報(3LDK/2階)
| 家賃 | 管理費等 | 敷金 | 礼金 | 間取り | 専有面積 |
|---|---|---|---|---|---|
| 21.5万円 | 1.5万円 | 21.5万円 | 21.5万円 | 3LDK | 73.12m2 |
入居決定でお祝い金最大100,000円
- 保証金
- -
- 償却・敷引
- -
- 築年数
- 築1年
- 所在階
- 2階
- 向き
- 南
- 交通
- 東海道本線 住吉駅(JR・六甲ライナー) 徒歩8分
- 所在地
- 兵庫県神戸市東灘区住吉本町3丁目
ミレーネ神戸住吉本町
[地図を表示]
Point
新築◆2026年1月31日入居開始◆ネットWI−FI無料
提供:アパマンショップ三宮駅前店

詳細情報 ミレーネ神戸住吉本町
物件紹介
ミレーネ神戸住吉本町はJR東海道本線住吉駅から徒歩7分にあり、駅近で通勤通学に便利なマンションです。
このお部屋は2階以上に位置しているので、通行人や周囲の住人からの視線が気になりにくく、防犯面でも安心。建物のエントランスはオートロックがついており、インターホンにはTVモニタもついているため、相手の顔を確認してから来客対応することができます。
おしゃれなデザイナーズ物件!人気の南向き・フローリングのお部屋。角部屋でもあるため、周囲の居住者の生活音も気になりにくい場所です。室内にはウォークインクローゼットがありますので、たくさんの荷物も効率的に収納ができます。キッチンはシステムキッチン仕様になっていますので、お料理好きの方にもぴったり。バス・トイレは別なので、のんびりお風呂タイムも楽しめるでしょう。また、雨の日でも浴室乾燥機を使えば、お洗濯も問題ありません。
通信設備面では、インターネットが無料で使えるので、月々の出費を抑えられるのも魅力です。また、BSアンテナ・CSアンテナがありCATVにも対応しているので、おうち時間も充実するでしょう(別途工事、BS・CS・CATVの契約料等が必要な場合あり)。
建物にはエレベーターがついているので、重い荷物があっても安心。共用部には宅配ボックスが設定されているので、不在の時にも荷物を受け取ることができます。また、ペット飼育の相談ができますので、あなたの大切な家族の一員も快適に暮らせるか、ぜひ確認してみてください。
このお部屋は2階以上に位置しているので、通行人や周囲の住人からの視線が気になりにくく、防犯面でも安心。建物のエントランスはオートロックがついており、インターホンにはTVモニタもついているため、相手の顔を確認してから来客対応することができます。
おしゃれなデザイナーズ物件!人気の南向き・フローリングのお部屋。角部屋でもあるため、周囲の居住者の生活音も気になりにくい場所です。室内にはウォークインクローゼットがありますので、たくさんの荷物も効率的に収納ができます。キッチンはシステムキッチン仕様になっていますので、お料理好きの方にもぴったり。バス・トイレは別なので、のんびりお風呂タイムも楽しめるでしょう。また、雨の日でも浴室乾燥機を使えば、お洗濯も問題ありません。
通信設備面では、インターネットが無料で使えるので、月々の出費を抑えられるのも魅力です。また、BSアンテナ・CSアンテナがありCATVにも対応しているので、おうち時間も充実するでしょう(別途工事、BS・CS・CATVの契約料等が必要な場合あり)。
建物にはエレベーターがついているので、重い荷物があっても安心。共用部には宅配ボックスが設定されているので、不在の時にも荷物を受け取ることができます。また、ペット飼育の相談ができますので、あなたの大切な家族の一員も快適に暮らせるか、ぜひ確認してみてください。
お金・契約の情報
※「-」と表示されているものは、実際は料金が発生するものもございます。詳細はお問い合わせください。
| 家賃 | 21.5万円 | 管理費・共益費 | 1.5万円 |
|---|---|---|---|
| 敷金 | 21.5万円 | 礼金 | 21.5万円 |
| 入居決定でお祝い金最大100,000円 | |||
| 保証金 | - | 償却・敷引 | - |
| 住宅保険料 | 1.655万円(2年) | 更新料 | - |
| 保証会社利用 | 必須 | 保証会社名 | ジェイリース |
| 保証会社費用 | - | 保証会社備考 | 初回保証料:賃料等の50%、月次保証料:賃料等の1%(更新料無)、口座振替手数料借主負担 |
| 契約形態 | - | 契約期間 | 2年 |
| 入居・引渡期間 | 相談 | 現況 | - |
| 入居可能条件 | ペット可 | ||
| 契約備考 | 敷金積み増し:ペット飼育 2.00カ月、小型犬:可、大型犬:不可、猫:可、その他:敷金1ヶ月増 エアコン清掃費 33000円/清掃費 49500円/駐輪場ステッカー 440円 | ||
部屋の情報
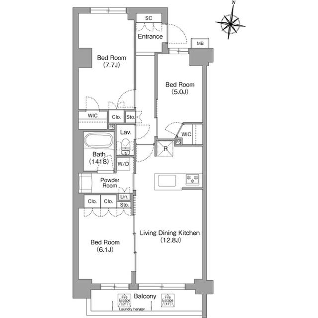
| 間取り | 3LDK | 専有面積 | 73.12m2 |
|---|---|---|---|
| 間取り詳細 | LDK(12.8帖)、洋室(7.7帖)、洋室(6.1帖)、洋室(5帖) | ||
| 所在階 / 向き | 2階 / 南 | バルコニー面積 | - |
| 水道 / ガス | - | ||
| 設備 | バス・トイレ別、オートロック、テレビドアホン、宅配ボックス、浴室乾燥機、ウォークインクローゼット、追い焚き、システムキッチン、エレベーター、角部屋、CATV、洗濯機:室内 | ||
| 当社物件ID | 160118851 | ||
建物の情報
| 建物名 | ミレーネ神戸住吉本町 | ||
|---|---|---|---|
| 所在地 | 兵庫県神戸市東灘区住吉本町3丁目 | ||
| 交通 | 東海道本線 住吉駅(JR・六甲ライナー) 徒歩8分 | ||
| 階数 | 3階建 | 総戸数 | 29戸 |
| 築年月 | 2026年01月 / 築1年 | エレベーター | あり |
| 駐車場 | - | バイク置き場 | - |
| 駐輪場 | あり | 管理人/管理会社 | - |
| 建物種別 | マンション | 建物構造 | RC(鉄筋コンクリート) |
この部屋の取扱い不動産会社
| 会社名 | アパマンショップ三宮駅前店 | ||
|---|---|---|---|
| 所在地 | 兵庫県神戸市中央区琴ノ緒町5丁目 3-5グリーンシャポービル107 | 交通 | 東海道本線三ノ宮から徒歩1分 |
| 営業時間 | 10:00〜19:00 | 定休日 | 水曜日 |
| 免許番号 | 兵庫県知事(7)9950 | 取引態様 | 仲介 |
| 不動産会社管理番号 | 111524021 | 当社管理番号 | 4 |
| 所属団体 | (公社)全日本不動産協会兵庫県本部 | ||
| 公正取引協議会 | (公社) 近畿地区不動産公正取引協議会加盟 | ||
| 取扱い物件情報 | 物件詳細へ | ||
※各種情報と現状に差異がある場合は、現状優先となります。問い合わせをすることで、より詳しい条件、情報を確認する事ができます。
提供:アパマンショップ三宮駅前店
この物件が気になったら掲載期限まであと8日
ミレーネ神戸住吉本町に条件(家賃・エリア)が近い物件一覧
| 写真 | 家賃 管理費等 | 敷金 礼金 | 間取り 専有面積 | 築年数 | 最寄り駅 所在地 | キープ | 詳細 |
|---|---|---|---|---|---|---|---|
マンション オーズタウンサウススクエアI番館(3LDK/11階) | |||||||
![]() | 14万円 なし | 15万円 30万円 | 3LDK 79.86m2 | 築25年 | JR山陽本線 大久保駅(兵庫) 徒歩4分 兵庫県明石市大久保町ゆりのき通 | 詳細を見る | |
マンション ロイヤルシャトー門戸(3LDK/5階) | |||||||
![]() | 12.9万円 1.3万円 | なし 25.8万円 | 3LDK 66.96m2 | 築30年 | 阪急今津線 門戸厄神駅 徒歩4分 阪急今津線 甲東園駅 徒歩16分 阪急神戸線 西宮北口駅 徒歩19分 兵庫県西宮市門戸東町 | 詳細を見る | |
マンション LADOUCEUR西宮(3LDK/3階) | |||||||
![]() | 20.2万円 1.5万円 | なし なし | 3LDK 68.96m2 | 築6年 | 阪急電鉄神戸線 西宮北口駅 徒歩13分 東海道本線 甲子園口駅 徒歩19分 兵庫県西宮市大屋町 14-5 | 詳細を見る | |
マンション デ・リードヴィンテージ芦屋川山手(2LDK/2階) | |||||||
![]() | 19万円 1万円 | 19万円 38万円 | 2LDK 79.46m2 | 築24年 | 阪急神戸線 芦屋川駅 徒歩11分 JR東海道本線 芦屋駅(JR) 徒歩20分 阪神本線 芦屋駅(阪神) 徒歩23分 兵庫県芦屋市山手町 | 詳細を見る | |
アパート ブリアン西宮(2LDK/3階) | |||||||
![]() | 13.5万円 6,000円 | なし 13.5万円 | 2LDK 41.59m2 | 新築 | JR東海道本線 西宮駅(JR) 徒歩4分 阪急今津線 阪神国道駅 徒歩10分 阪神本線 西宮駅(阪神) 徒歩14分 兵庫県西宮市西福町 | 詳細を見る | |
マンション ラ ルーシュ(3LDK/3階) | |||||||
![]() | 15.1万円 9,000円 | なし 30.2万円 | 3LDK 75.67m2 | 新築 | JR山陽本線 西明石駅 徒歩9分 山陽新幹線 西明石駅 徒歩9分 山陽電鉄本線 藤江駅 徒歩22分 兵庫県明石市小久保 | 詳細を見る | |
マンション ジオタワー宝塚グランレジス(2LDK/13階) | |||||||
![]() | 24.7万円 なし | 24.7万円 49.4万円 | 2LDK 63.34m2 | 築2年 | 阪急今津線 宝塚南口駅 徒歩2分 阪急今津線 逆瀬川駅 徒歩10分 阪急宝塚線 宝塚駅 徒歩10分 兵庫県宝塚市梅野町 | 詳細を見る | |







