賃貸マンション
ミレーネ神戸住吉本町の賃貸物件情報(4LDK/3階)
| 家賃 | 管理費等 | 敷金 | 礼金 | 間取り | 専有面積 |
|---|---|---|---|---|---|
| 25万円 | 1.5万円 | 25万円 | 25万円 | 4LDK | 83.61m2 |
入居決定でお祝い金最大100,000円
- 保証金
- -
- 償却・敷引
- -
- 築年数
- 新築
- 所在階
- 3階
- 向き
- 東
- 交通
- 東海道本線 住吉駅(JR・六甲ライナー) 徒歩8分
- 所在地
- 兵庫県神戸市東灘区住吉本町3丁目
ミレーネ神戸住吉本町
[地図を表示]
Point
室内小型犬もしくは猫のどちらか1匹飼育相談可能です!
提供:アパマンショップ三宮駅前店

詳細情報 ミレーネ神戸住吉本町
物件紹介
ミレーネ神戸住吉本町は東海道本線住吉駅から徒歩8分にあり、駅近で通勤通学に便利なマンションです。
このお部屋は2階以上に位置しているので、通行人や周囲の住人からの視線が気になりにくく、防犯面でも安心。建物のエントランスはオートロックがついており、インターホンにはTVモニタもついているため、相手の顔を確認してから来客対応することができます。
おしゃれなデザイナーズ物件!人気の角部屋で周囲の居住者の生活音も気になりにくく、また、フローリングのお部屋なのでお掃除もラクラク。室内にはウォークインクローゼットがありますので、たくさんの荷物も効率的に収納ができます。キッチンはシステムキッチン仕様になっていますので、お料理好きの方にもぴったり。バス・トイレは別なので、のんびりお風呂タイムも楽しめるでしょう。また、雨の日でも浴室乾燥機を使えば、お洗濯も問題ありません。
通信設備面では、インターネットが無料で使えるので、月々の出費を抑えられるのも魅力です。また、BSアンテナ・CSアンテナがありCATVにも対応しているので、おうち時間も充実するでしょう(別途工事、BS・CS・CATVの契約料等が必要な場合あり)。
建物にはエレベーターがついているので、重い荷物があっても安心。共用部には宅配ボックスが設定されているので、不在の時にも荷物を受け取ることができます。また、ペット飼育の相談ができますので、あなたの大切な家族の一員も快適に暮らせるか、ぜひ確認してみてください。
このお部屋は2階以上に位置しているので、通行人や周囲の住人からの視線が気になりにくく、防犯面でも安心。建物のエントランスはオートロックがついており、インターホンにはTVモニタもついているため、相手の顔を確認してから来客対応することができます。
おしゃれなデザイナーズ物件!人気の角部屋で周囲の居住者の生活音も気になりにくく、また、フローリングのお部屋なのでお掃除もラクラク。室内にはウォークインクローゼットがありますので、たくさんの荷物も効率的に収納ができます。キッチンはシステムキッチン仕様になっていますので、お料理好きの方にもぴったり。バス・トイレは別なので、のんびりお風呂タイムも楽しめるでしょう。また、雨の日でも浴室乾燥機を使えば、お洗濯も問題ありません。
通信設備面では、インターネットが無料で使えるので、月々の出費を抑えられるのも魅力です。また、BSアンテナ・CSアンテナがありCATVにも対応しているので、おうち時間も充実するでしょう(別途工事、BS・CS・CATVの契約料等が必要な場合あり)。
建物にはエレベーターがついているので、重い荷物があっても安心。共用部には宅配ボックスが設定されているので、不在の時にも荷物を受け取ることができます。また、ペット飼育の相談ができますので、あなたの大切な家族の一員も快適に暮らせるか、ぜひ確認してみてください。
お金・契約の情報
※「-」と表示されているものは、実際は料金が発生するものもございます。詳細はお問い合わせください。
| 家賃 | 25万円 | 管理費・共益費 | 1.5万円 |
|---|---|---|---|
| 敷金 | 25万円 | 礼金 | 25万円 |
| 入居決定でお祝い金最大100,000円 | |||
| 保証金 | - | 償却・敷引 | - |
| 住宅保険料 | 1.655万円(2年) | 更新料 | - |
| 保証会社利用 | 必須 | 保証会社名 | ジェイリース |
| 保証会社費用 | - | 保証会社備考 | 初回保証料:賃料等の50%、月次保証料:賃料等の1%(更新料無)、口座振替手数料借主負担 |
| 契約形態 | - | 契約期間 | 2年 |
| 入居・引渡期間 | 2026年01月下旬 | 現況 | - |
| 入居可能条件 | ペット可 | ||
| 契約備考 | ペット飼育時:敷金1ヶ月分増額。 清掃費 49500円/駐輪場ステッカー 440円/エアコン清掃費 41250円 | ||
部屋の情報
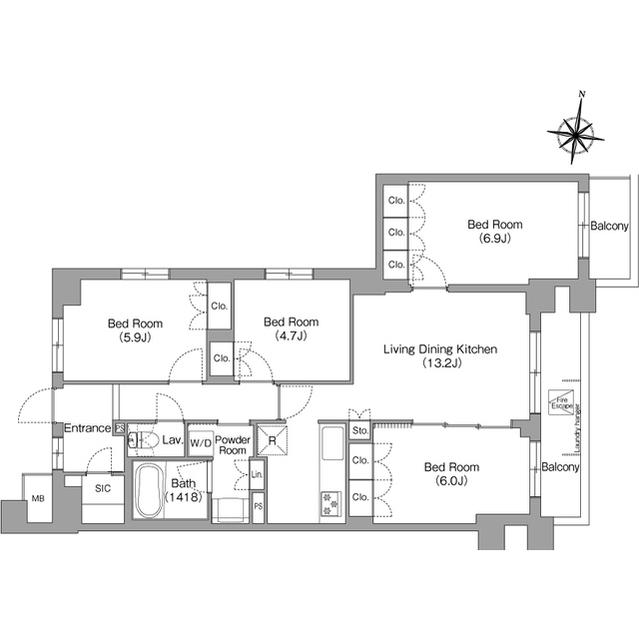
| 間取り | 4LDK | 専有面積 | 83.61m2 |
|---|---|---|---|
| 間取り詳細 | LDK(13.2帖)、洋室(6.9帖)、洋室(6帖)、洋室(5.9帖)、洋室(4.7帖) | ||
| 所在階 / 向き | 3階 / 東 | バルコニー面積 | - |
| 水道 / ガス | - | ||
| 設備 | バス・トイレ別、オートロック、テレビドアホン、宅配ボックス、浴室乾燥機、追い焚き、インターネット対応、システムキッチン、エレベーター、温水洗浄便座、バルコニー、CATV、インターネット使用料無料、シャワー、給湯、洗濯機:室内、閑静な住宅街 | ||
| 当社物件ID | 159914143 | ||
建物の情報
| 建物名 | ミレーネ神戸住吉本町 | ||
|---|---|---|---|
| 所在地 | 兵庫県神戸市東灘区住吉本町3丁目 | ||
| 交通 | 東海道本線 住吉駅(JR・六甲ライナー) 徒歩8分 | ||
| 階数 | 3階建 | 総戸数 | 29戸 |
| 築年月 | 2026年01月 / 新築 | エレベーター | あり |
| 駐車場 | 空有 1.98万円/月 | バイク置き場 | - |
| 駐輪場 | あり | 管理人/管理会社 | - |
| 建物種別 | マンション | 建物構造 | RC(鉄筋コンクリート) |
この部屋の取扱い不動産会社
| 会社名 | アパマンショップ三宮駅前店 | ||
|---|---|---|---|
| 所在地 | 兵庫県神戸市中央区琴ノ緒町5丁目 3-5グリーンシャポービル107 | 交通 | 東海道本線三ノ宮から徒歩1分 |
| 営業時間 | 10:00〜19:00 | 定休日 | 水曜日 |
| 免許番号 | 兵庫県知事(7)9950 | 取引態様 | 仲介 |
| 不動産会社管理番号 | 111312776 | 当社管理番号 | 4 |
| 所属団体 | (公社)全日本不動産協会兵庫県本部 | ||
| 公正取引協議会 | (公社) 近畿地区不動産公正取引協議会加盟 | ||
| 取扱い物件情報 | 物件詳細へ | ||
※各種情報と現状に差異がある場合は、現状優先となります。問い合わせをすることで、より詳しい条件、情報を確認する事ができます。
提供:アパマンショップ三宮駅前店
この物件が気になったら掲載期限まであと11日
ミレーネ神戸住吉本町に条件(家賃・エリア)が近い物件一覧
| 写真 | 家賃 管理費等 | 敷金 礼金 | 間取り 専有面積 | 築年数 | 最寄り駅 所在地 | キープ | 詳細 |
|---|---|---|---|---|---|---|---|
マンション 門戸厄神・M社計画(2LDK/1階) | |||||||
![]() | 15.2万円 8,000円 | なし 30万円 | 2LDK 62.1m2 | 新築 | 阪急今津線 門戸厄神駅 徒歩7分 阪急神戸本線 西宮北口駅 徒歩19分 兵庫県西宮市門戸岡田町 | 詳細を見る | |
アパート クラシスト甲子園一番町2(2LDK/2階) | |||||||
![]() | 16.2万円 7,000円 | なし 32.4万円 | 2LDK 62.73m2 | 築1年 | JR東海道本線 甲子園口駅 徒歩12分 阪神本線 鳴尾・武庫川女子大前駅 徒歩22分 阪神本線 甲子園駅 徒歩22分 兵庫県西宮市甲子園一番町 | 詳細を見る | |
マンション 甲子園三番町ハイツ(2SLDK/1階) | |||||||
![]() | 15.6万円 9,000円 | 16.5万円 33万円 | 2SLDK 72.2m2 | 築16年 | 阪神本線 甲子園駅 徒歩12分 阪神本線 久寿川駅 徒歩18分 阪神本線 鳴尾・武庫川女子大前駅 徒歩19分 兵庫県西宮市甲子園三番町 | 詳細を見る | |
マンション ザ宝塚タワー(2LDK/13階) | |||||||
![]() | 18万円 なし | 10万円 40万円 | 2LDK 73.06m2 | 築14年 | 阪急今津線 宝塚南口駅 徒歩1分 阪急今津線 逆瀬川駅 徒歩13分 阪急宝塚線 宝塚駅 徒歩14分 兵庫県宝塚市南口 | 詳細を見る | |
マンション クラシスト甲子園一番町2(2LDK/2階) | |||||||
![]() | 16.2万円 7,000円 | なし 32.4万円 | 2LDK 62.04m2 | 築1年 | JR東海道本線 甲子園口駅 徒歩17分 阪神本線 鳴尾・武庫川女子大前駅 徒歩18分 阪神本線 甲子園駅 徒歩19分 兵庫県西宮市甲子園一番町 | 詳細を見る | |
マンション パークハイム御影大蔵(4LDK/2階) | |||||||
![]() | 18万円 1万円 | 18万円 36万円 | 4LDK 102.22m2 | 築38年 | 阪急神戸線 御影駅(阪急) 徒歩8分 阪神本線 御影駅(阪神) 徒歩11分 JR東海道本線 住吉駅(JR・六甲ライナー) 徒歩13分 兵庫県神戸市東灘区御影郡家 | 詳細を見る | |
マンション 東灘区田中町3丁目ヘーベルメゾン(2LDK/4階) | |||||||
![]() | 17.7万円 1.1万円 | 7.2万円 35.4万円 | 2LDK 57.4m2 | 新築 | JR東海道本線 摂津本山駅 徒歩9分 阪急神戸線 岡本駅(兵庫) 徒歩13分 JR東海道本線 住吉駅(JR・六甲ライナー) 徒歩15分 兵庫県神戸市東灘区田中町 | 詳細を見る | |
アパート プリマヴェーラ苦楽園(3LDK/2階) | |||||||
![]() | 17.1万円 5,000円 | 17.1万円 34.2万円 | 3LDK 70.62m2 | 築4年 | 阪急甲陽線 苦楽園口駅 徒歩2分 阪急神戸線 夙川駅 徒歩15分 JR東海道本線 さくら夙川駅 徒歩20分 兵庫県西宮市石刎町 | 詳細を見る | |








