賃貸マンション
ミレーネ神戸住吉本町の賃貸物件情報(3LDK/B1階)
| 家賃 | 管理費等 | 敷金 | 礼金 | 間取り | 専有面積 |
|---|---|---|---|---|---|
| 20.2万円 | 1.5万円 | 20.2万円 | 20.2万円 | 3LDK | 69.21m2 |
入居決定でお祝い金最大100,000円
- 保証金
- -
- 償却・敷引
- -
- 築年数
- 新築(築1年)
- 所在階
- B1階
- 向き
- 南
- 交通
- 東海道本線 住吉駅(JR・六甲ライナー) 徒歩10分
阪急電鉄神戸線 御影駅(阪急) 徒歩11分
- 所在地
- 兵庫県神戸市東灘区住吉本町3丁目 7-34
ミレーネ神戸住吉本町
[地図を表示]
Point
東海道本線住吉駅周辺への引っ越しをお考えなら「ミレーネ神戸住吉本町」。収納はシューズボックス・ウォークインクロゼット・全居室収納など豊富なので、広々と空間を利用することも可能です。エアコン付きの物件で、温度管理が楽々です。快適な暮らしをするなら、神戸市東灘区の東海道本線住吉駅エリア近辺でしょう。こだ
提供:CHINTAI ROOM 六甲本店

詳細情報 ミレーネ神戸住吉本町
物件紹介
ミレーネ神戸住吉本町は東海道本線住吉駅から徒歩10分にあり、駅近で通勤通学に便利なマンションです。
建物のエントランスはオートロックがついており、インターホンにはTVモニタもついているため、相手の顔を確認してから来客対応することができます。
人気の南向き・フローリングのお部屋。室内にはウォークインクローゼットがありますので、たくさんの荷物も効率的に収納ができます。キッチンはシステムキッチン仕様になっていますので、お料理好きの方にもぴったり。バス・トイレは別なので、のんびりお風呂タイムも楽しめるでしょう。また、雨の日でも浴室乾燥機を使えば、お洗濯も問題ありません。
通信設備面では、インターネット接続が可能です。また、BSアンテナ・CSアンテナがありCATVにも対応しているので、おうち時間も充実するでしょう(別途工事、契約料が必要な場合あり)。
ペット飼育の相談ができますので、あなたの大切な家族の一員も快適に暮らせるか、ぜひ確認してみてください。
建物のエントランスはオートロックがついており、インターホンにはTVモニタもついているため、相手の顔を確認してから来客対応することができます。
人気の南向き・フローリングのお部屋。室内にはウォークインクローゼットがありますので、たくさんの荷物も効率的に収納ができます。キッチンはシステムキッチン仕様になっていますので、お料理好きの方にもぴったり。バス・トイレは別なので、のんびりお風呂タイムも楽しめるでしょう。また、雨の日でも浴室乾燥機を使えば、お洗濯も問題ありません。
通信設備面では、インターネット接続が可能です。また、BSアンテナ・CSアンテナがありCATVにも対応しているので、おうち時間も充実するでしょう(別途工事、契約料が必要な場合あり)。
ペット飼育の相談ができますので、あなたの大切な家族の一員も快適に暮らせるか、ぜひ確認してみてください。
お金・契約の情報
※「-」と表示されているものは、実際は料金が発生するものもございます。詳細はお問い合わせください。
| 家賃 | 20.2万円 | 管理費・共益費 | 1.5万円 |
|---|---|---|---|
| 敷金 | 20.2万円 | 礼金 | 20.2万円 |
| 入居決定でお祝い金最大100,000円 | |||
| 保証金 | - | 償却・敷引 | - |
| 住宅保険料 | 住宅保険料あり(1年) | 更新料 | - |
| その他費用 | エアコンクリーニング代:2.475万円 | ||
| 保証会社利用 | 必須 | 保証会社名 | - |
| 保証会社費用 | - | 保証会社備考 | 初回50%、総賃料1%/月 |
| 契約形態 | - | 契約期間 | 2年 |
| 入居・引渡期間 | 即時 | 現況 | 空室 |
| 入居可能条件 | 2人入居可、ペット相談 | ||
| 契約備考 | ぜひ一度見ていただきたい、「ミレーネ神戸住吉本町」です。セキュリティ面は、オートロック・TVインターホンなど充実しているので、防犯対策もばっちりです。室内設備は洗面所独立・浴室乾燥機・食器洗乾燥機などが揃っているので、快適に過ごしやすいお部屋になります。CHINTAI ROOM 六甲本店 キュリアで、これから先の新しい住まいをじっくり選んでいきましょう。わたくしたちがお手伝い致します。 | ||
部屋の情報
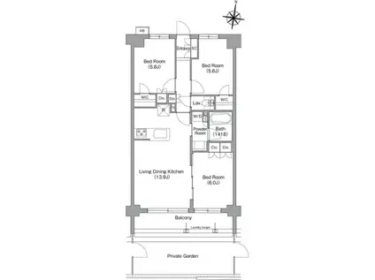
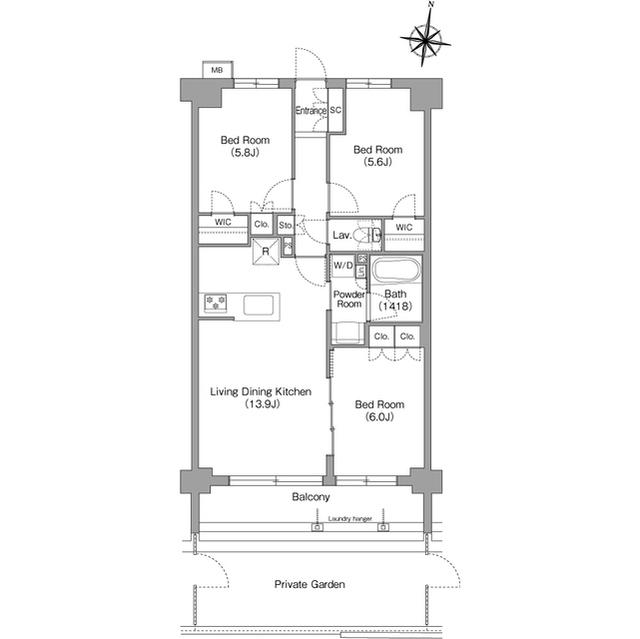
| 間取り | 3LDK | 専有面積 | 69.21m2 |
|---|---|---|---|
| 所在階 / 向き | B1階 / 南 | バルコニー面積 | - |
| 水道 / ガス | 水道【公営】、ガス【都市】 | ||
| 設備 | バス・トイレ別、オートロック、テレビドアホン、浴室乾燥機、ウォークインクローゼット、追い焚き、光ファイバー対応、システムキッチン、カウンターキッチン、エアコン、温水洗浄便座、バルコニー、フローリング、洗髪洗面化粧台、3口コンロ、コンロ:ガス、CATV、CSアンテナ、BSアンテナ、シャワー、給湯、洗濯機:室内 | ||
| 当社物件ID | 159914133 | ||
建物の情報
| 建物名 | ミレーネ神戸住吉本町 | ||
|---|---|---|---|
| 所在地 | 兵庫県神戸市東灘区住吉本町3丁目 7-34 | ||
| 交通 | 東海道本線 住吉駅(JR・六甲ライナー) 徒歩10分 阪急電鉄神戸線 御影駅(阪急) 徒歩11分 | ||
| 階数 | 3階建 | 総戸数 | - |
| 築年月 | 2026年01月 / 新築(築1年) | エレベーター | - |
| 駐車場 | 空有 1.98万円/月 | バイク置き場 | あり |
| 駐輪場 | あり | 管理人/管理会社 | - |
| 建物種別 | マンション | 建物構造 | RC(鉄筋コンクリート) |
この部屋の取扱い不動産会社
| 会社名 | CHINTAI ROOM 六甲本店 | ||
|---|---|---|---|
| 所在地 | 兵庫県 神戸市灘区森後町1丁目4番10号 フレグランス六甲1F | 交通 | JR東海道本線「六甲道駅」徒歩1分 |
| 営業時間 | 10:00-19:30 | 定休日 | なし |
| 免許番号 | 兵庫県知事(2)第11891号 | 取引態様 | 仲介 |
| 不動産会社管理番号 | 1850231 | 当社管理番号 | 377 |
| 取扱い物件情報 | 物件詳細へ | ||
※各種情報と現状に差異がある場合は、現状優先となります。問い合わせをすることで、より詳しい条件、情報を確認する事ができます。
提供:CHINTAI ROOM 六甲本店
この物件が気になったら掲載期限まであと-1日
ミレーネ神戸住吉本町に条件(家賃・エリア)が近い物件一覧
| 写真 | 家賃 管理費等 | 敷金 礼金 | 間取り 専有面積 | 築年数 | 最寄り駅 所在地 | キープ | 詳細 |
|---|---|---|---|---|---|---|---|
アパート シャーメゾンさくら大久保駅前(2LDK/4階) | |||||||
![]() | 14万円 9,500円 | 3万円 なし | 2LDK 60.35m2 | 築3年 | JR山陽本線 大久保駅(兵庫) 徒歩2分 山陽電鉄本線 中八木駅 徒歩23分 山陽電鉄本線 江井ケ島駅 徒歩25分 兵庫県明石市大久保町駅前 | 詳細を見る | |
マンション SEASIDE HOUSE(2LDK/3階) | |||||||
![]() | 12.3万円 9,500円 | 3万円 なし | 2LDK 62.72m2 | 新築 | 山陽電鉄本線 江井ケ島駅 徒歩8分 山陽電鉄本線 中八木駅 徒歩20分 JR山陽本線 大久保駅(兵庫) 徒歩29分 兵庫県明石市大久保町江井島 | 詳細を見る | |
アパート LA MAISON林崎(2LDK/1階) | |||||||
![]() | 12.5万円 7,000円 | 3万円 25万円 | 2LDK 58.93m2 | 築1年 | 山陽電気鉄道本線 林崎松江海岸駅 徒歩9分 山陽電気鉄道本線 西新町駅 徒歩12分 兵庫県明石市林崎1 | 詳細を見る | |
マンション フェリッツ上甲子園(2LDK/2階) | |||||||
![]() | 15万円 5,000円 | なし 30万円 | 2LDK 83.31m2 | 築29年 | 阪神電鉄本線 久寿川駅 徒歩12分 阪急電鉄今津線 阪神国道駅 徒歩15分 阪神電鉄本線 甲子園駅 徒歩16分 兵庫県西宮市上甲子園4丁目 | 詳細を見る | |
マンション GROOVE上甲子園レジデンス(3LDK/4階) | |||||||
![]() | 18.4万円 1万円 | なし なし | 3LDK 68.44m2 | 築1年 | 阪神電鉄本線 久寿川駅 徒歩11分 阪急電鉄今津線 阪神国道駅 徒歩14分 阪神電鉄本線 甲子園駅 徒歩17分 兵庫県西宮市上甲子園4丁目 | 詳細を見る | |
アパート モダンパレス(2LDK/2階) | |||||||
![]() | 12.35万円 3,000円 | なし 14万円 | 2LDK 59.58m2 | 築1年 | JR山陽本線 大久保駅(兵庫) 徒歩12分 兵庫県明石市大久保町大窪 | 詳細を見る | |
マンション SHAMAISON MIMOSA OKUBO(2LDK/1階) | |||||||
![]() | 13.6万円 9,500円 | 5万円 なし | 2LDK 65.68m2 | 築1年 | 山陽本線 大久保駅(兵庫) 徒歩17分 山陽電気鉄道本線 中八木駅 徒歩35分 山陽電気鉄道本線 江井ケ島駅 徒歩41分 兵庫県明石市大久保町大窪 | 詳細を見る | |
一戸建て 神戸電鉄粟生線 志染駅 徒歩5分 築16年(4LDK) | |||||||
![]() | 12.5万円 4,000円 | 25万円 12.5万円 | 4LDK 102.68m2 | 築16年 | 神戸電鉄粟生線 志染駅 徒歩5分 神戸電鉄粟生線 恵比須駅 徒歩29分 神戸電鉄粟生線 広野ゴルフ場前駅 徒歩30分 兵庫県三木市志染町西自由が丘1丁目 | 詳細を見る | |









