賃貸マンション
クリスタルグランツみなとシティの賃貸物件情報(1K/7階)
| 家賃 | 管理費等 | 敷金 | 礼金 | 間取り | 専有面積 |
|---|---|---|---|---|---|
| 6.35万円 | 7,000円 | なし | 6.35万円 | 1K | 22.8m2 |
入居決定でお祝い金最大100,000円
- 保証金
- -
- 償却・敷引
- -
- 築年数
- 築8年
- 所在階
- 7階
- 向き
- 北東
- 交通
- JR大阪環状線 弁天町駅 徒歩9分
地下鉄中央線 九条駅(大阪メトロ) 徒歩13分
JR大阪環状線 西九条駅 徒歩15分
- 所在地
- 大阪府大阪市港区波除
クリスタルグランツみなとシティ
[地図を表示]
Point
大阪市内、特に西区、福島区、港区、此花区を中心にオススメ物件を多数取り揃えております。経験豊富なベテランスタッフがお客様にピッタリな物件をご紹介させて頂きます♪
提供:ミニミニFC阿波座駅前店(株)マスト(SUUMO経由)

詳細情報 クリスタルグランツみなとシティ
物件紹介
クリスタルグランツみなとシティはJR大阪環状線弁天町駅から徒歩9分にあり、駅近で通勤通学に便利なマンションです。
このお部屋は2階以上に位置しているので、通行人や周囲の住人からの視線が気になりにくく、防犯面でも安心。建物のエントランスはオートロックがついており、インターホンにはTVモニタもついているため、相手の顔を確認してから来客対応することができます。
フローリングのお部屋なのでお掃除もラクラク。キッチンはシステムキッチン仕様になっていますので、お料理好きの方にもぴったり。バス・トイレは別なので、のんびりお風呂タイムも楽しめるでしょう。また、雨の日でも浴室乾燥機を使えば、お洗濯も問題ありません。
通信設備面では、インターネットが無料で使えるので、月々の出費を抑えられるのも魅力です。また、BSアンテナ・CSアンテナがありCATVにも対応しているので、おうち時間も充実するでしょう(別途工事、BS・CS・CATVの契約料等が必要な場合あり)。
建物にはエレベーターがついているので、重い荷物があっても安心。共用部には宅配ボックスが設定されているので、不在の時にも荷物を受け取ることができます。
このお部屋は2階以上に位置しているので、通行人や周囲の住人からの視線が気になりにくく、防犯面でも安心。建物のエントランスはオートロックがついており、インターホンにはTVモニタもついているため、相手の顔を確認してから来客対応することができます。
フローリングのお部屋なのでお掃除もラクラク。キッチンはシステムキッチン仕様になっていますので、お料理好きの方にもぴったり。バス・トイレは別なので、のんびりお風呂タイムも楽しめるでしょう。また、雨の日でも浴室乾燥機を使えば、お洗濯も問題ありません。
通信設備面では、インターネットが無料で使えるので、月々の出費を抑えられるのも魅力です。また、BSアンテナ・CSアンテナがありCATVにも対応しているので、おうち時間も充実するでしょう(別途工事、BS・CS・CATVの契約料等が必要な場合あり)。
建物にはエレベーターがついているので、重い荷物があっても安心。共用部には宅配ボックスが設定されているので、不在の時にも荷物を受け取ることができます。
お金・契約の情報
※「-」と表示されているものは、実際は料金が発生するものもございます。詳細はお問い合わせください。
| 家賃 | 6.35万円 | 管理費・共益費 | 7,000円 |
|---|---|---|---|
| 敷金 | なし | 礼金 | 6.35万円 |
| 入居決定でお祝い金最大100,000円 | |||
| 保証金 | - | 償却・敷引 | - |
| 住宅保険料 | - | 更新料 | - |
| 保証会社利用 | 必須 | 保証会社名 | - |
| 保証会社費用 | - | 保証会社備考 | 保証会社利用必 初回:総賃料の50% 月次800円 |
| 契約形態 | - | 契約期間 | - |
| 入居・引渡期間 | - | 現況 | - |
| 契約備考 | 当店にてお申込みのお客様には各種キャンペーンがございます。お引越し等でお悩みの際も是非ご相談ください。当店では他にも大阪市内の物件はすべて取扱いしております。ご希望の物件がございましたらお知らせください。迅速に空室をお調べ致します。是非お部屋探しはミニミニFC阿波座駅前店で。TEL 合計2.75万円(内訳:鍵交換代2.75万円) 1K 普通借家2年 損保【1.5万円2年】 バストイレ別、バルコニー、エアコン、ガスコンロ対応、クロゼット、フローリング、シャワー付洗面台、TVインターホン、浴室乾燥機、オートロック、室内洗濯置、シューズボックス、システムキッチン、温水洗浄便座、脱衣所、エレベーター、洗面所独立、洗面化粧台、2口コンロ、駐輪場、宅配ボックス、CATV、光ファイバー、BS・CS、敷金不要、防犯カメラ、照明付、分譲賃貸、全居室洋室、全居室フローリング、2沿線利用可、ディンプルキー、CS、駅まで平坦、ネット使用料不要、眺望良好、24時間換気システム、平坦地、一部フローリング、耐火構造、耐震構造、2駅利用可、3駅以上利用可、駅徒歩10分以内、高層階、24時間ゴミ出し可、敷地内ごみ置き場、都市ガス、洗面所にドア、玄関収納、BS、LAN、年内入居可、年度内入居可、礼金1ヶ月、保証会社利用可、初期費用30万円以下、IT重説対応物件、初期費用カード決済可、通風良好 入居日:'26年3月下旬 | ||
部屋の情報
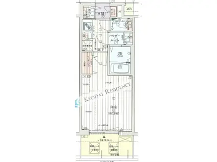
| 間取り | 1K | 専有面積 | 22.8m2 |
|---|---|---|---|
| 所在階 / 向き | 7階 / 北東 | バルコニー面積 | - |
| 水道 / ガス | - | ||
| 設備 | バス・トイレ別、2階以上、オートロック、テレビドアホン、宅配ボックス、浴室乾燥機、インターネット対応、システムキッチン、エアコン、エレベーター、温水洗浄便座、バルコニー、フローリング、洗髪洗面化粧台、2口コンロ、コンロ:ガス、CATV、CSアンテナ、BSアンテナ、インターネット使用料無料、洗濯機:室内 | ||
| 当社物件ID | 25984364 | ||
建物の情報
| 建物名 | クリスタルグランツみなとシティ | ||
|---|---|---|---|
| 所在地 | 大阪府大阪市港区波除 | ||
| 交通 | JR大阪環状線 弁天町駅 徒歩9分 地下鉄中央線 九条駅(大阪メトロ) 徒歩13分 JR大阪環状線 西九条駅 徒歩15分 | ||
| 階数 | 10階建 | 総戸数 | - |
| 築年月 | 2018年03月 / 築8年 | エレベーター | あり |
| 駐車場 | 近隣 200m22000円 | バイク置き場 | - |
| 駐輪場 | あり | 管理人/管理会社 | - |
| 周辺環境 | その他 波除公園(公園)まで432m その他 業務スーパー 弁天町店(スーパー)まで471m その他 生鮮食品スーパー ニッコー 波徐店(スーパー)まで396m その他 ローソン JR弁天町駅前店(コンビニ)まで615m その他 セブンイレブン 大阪九条南3丁目店(コンビニ)まで544m その他 スギドラッグ 波除店(ドラッグストア)まで295m | ||
| 建物種別 | マンション | 建物構造 | RC(鉄筋コンクリート) |
この部屋の取扱い不動産会社
| 会社名 | ミニミニFC阿波座駅前店(株)マスト(SUUMO経由) | ||
|---|---|---|---|
| 所在地 | 大阪府大阪市西区靱本町3-8-14-2階 | 交通 | - |
| 営業時間 | 10:00~19:00 | 定休日 | - |
| 免許番号 | 大阪府知事57949 | 取引態様 | 仲介 |
| 不動産会社管理番号 | 100487078281 | 当社管理番号 | 89 |
| 所属団体 | (公社)全日本不動産協会大阪府本部会員 | ||
| 公正取引協議会 | (公社)近畿地区不動産公正取引協議会加盟 | ||
| 取扱い物件情報 | 物件詳細へ | ||
※各種情報と現状に差異がある場合は、現状優先となります。問い合わせをすることで、より詳しい条件、情報を確認する事ができます。
提供:ミニミニFC阿波座駅前店(株)マスト(SUUMO経由)
この物件が気になったら掲載期限まであと11日
クリスタルグランツみなとシティに条件(家賃・エリア)が近い物件一覧
| 写真 | 家賃 管理費等 | 敷金 礼金 | 間取り 専有面積 | 築年数 | 最寄り駅 所在地 | キープ | 詳細 |
|---|---|---|---|---|---|---|---|
アパート FREEDOM CONCEPTS 一津屋 猫の家(1K/1階) | |||||||
![]() | 6.25万円 6,000円 | なし 5万円 | 1K 25.6m2 | 築2年 | 近鉄南大阪線 恵我ノ荘駅 徒歩10分 近鉄南大阪線 高鷲駅 徒歩20分 近鉄南大阪線 河内松原駅 徒歩29分 大阪府松原市一津屋5丁目 | 詳細を見る | |
アパート 第2エイサイハイム(2DK/3階) | |||||||
![]() | 6.2万円 3,000円 | なし 6.2万円 | 2DK 46m2 | 築30年 | 近鉄けいはんな線 吉田駅(大阪) 徒歩10分 近鉄けいはんな線 荒本駅 徒歩24分 近鉄けいはんな線 新石切駅 徒歩31分 大阪府東大阪市中新開 | 詳細を見る | |
マンション GROWING(1K/2階) | |||||||
![]() | 4.1万円 5,000円 | なし なし | 1K 20.28m2 | 築27年 | 阪和線 鳳駅 徒歩12分 阪和線 東羽衣駅 徒歩12分 南海電鉄南海本線 羽衣駅 徒歩14分 大阪府堺市西区鳳中町10丁 | 詳細を見る | |
マンション コンフォリア江坂広芝町(1K/10階) | |||||||
| 8.1万円 8,000円 | 8.1万円 なし | 1K 21.75m2 | 築9年 | 北大阪急行南北線 江坂駅 徒歩7分 大阪市御堂筋線 東三国駅 徒歩19分 おおさか東線 南吹田駅 徒歩22分 大阪府吹田市広芝町19-13 | 詳細を見る | ||
マンション コラッジオ本町(1LDK/3階) | |||||||
![]() | 6.9万円 3,000円 | なし なし | 1LDK 33.12m2 | 築2年 | 近鉄大阪線 近鉄八尾駅 徒歩8分 近鉄大阪線 久宝寺口駅 徒歩11分 大阪府八尾市本町6丁目 | 詳細を見る | |
マンション クリエオーレ若草町Ⅱ(1LDK/3階) | |||||||
![]() | 7.4万円 なし | なし 15万円 | 1LDK 33.74m2 | 築6年 | 近鉄大阪線 近鉄八尾駅 徒歩8分 近鉄大阪線 河内山本駅 徒歩11分 関西本線 八尾駅 徒歩25分 大阪府八尾市若草町 | 詳細を見る | |
アパート プレジール鹿野(2LDK/2階) | |||||||
![]() | 4.9万円 2,000円 | なし 5万円 | 2LDK 41.25m2 | 築40年 | 近鉄大阪線 河内山本駅 徒歩17分 近鉄大阪線 近鉄八尾駅 徒歩33分 大阪府八尾市上之島町北2丁目 | 詳細を見る | |





