賃貸マンション
エスリード弁天町ノースプレミアの賃貸物件情報(1K/12階)
| 家賃 | 管理費等 | 敷金 | 礼金 | 間取り | 専有面積 |
|---|---|---|---|---|---|
| 6.84万円 | 8,000円 | なし | 7.64万円 | 1K | 21.51m2 |
入居決定でお祝い金最大100,000円
- 保証金
- -
- 償却・敷引
- -
- 築年数
- 築3年
- 所在階
- 12階
- 向き
- 東
- 交通
- JR大阪環状線 弁天町駅 徒歩1分
地下鉄中央線 弁天町駅 徒歩5分
地下鉄中央線 九条駅(大阪メトロ) 徒歩18分
- 所在地
- 大阪府大阪市港区波除
エスリード弁天町ノースプレミア
[地図を表示]
Point
エスリード賃貸(株)なら仲介手数料無料!直接のお問合せが断然お得です!何でもご相談下さい。他の気になる物件もまとめてご案内致します
提供:エスリード賃貸(株)(SUUMO経由)

詳細情報 エスリード弁天町ノースプレミア
物件紹介
エスリード弁天町ノースプレミアはJR大阪環状線弁天町駅から徒歩1分にあり、駅近で通勤通学に便利なマンションです。
このお部屋は2階以上に位置しているので、通行人や周囲の住人からの視線が気になりにくく、防犯面でも安心。建物のエントランスはオートロックがついており、インターホンにはTVモニタもついているため、相手の顔を確認してから来客対応することができます。
フローリングのお部屋なのでお掃除もラクラク。バス・トイレ別の仕様で、のんびりお風呂タイムも楽しめます。また、浴室乾燥機を使えば、雨の日でもお洗濯は問題ありません。
通信設備面では、インターネットが無料で使えるので、月々の出費を抑えられるのも魅力です(別途工事等が必要な場合あり)。
建物にはエレベーターがついているので、重い荷物があっても安心。共用部には宅配ボックスが設定されているので、不在の時にも荷物を受け取ることができます。また、ペット飼育の相談ができますので、あなたの大切な家族の一員も快適に暮らせるか、ぜひ確認してみてください。
このお部屋は2階以上に位置しているので、通行人や周囲の住人からの視線が気になりにくく、防犯面でも安心。建物のエントランスはオートロックがついており、インターホンにはTVモニタもついているため、相手の顔を確認してから来客対応することができます。
フローリングのお部屋なのでお掃除もラクラク。バス・トイレ別の仕様で、のんびりお風呂タイムも楽しめます。また、浴室乾燥機を使えば、雨の日でもお洗濯は問題ありません。
通信設備面では、インターネットが無料で使えるので、月々の出費を抑えられるのも魅力です(別途工事等が必要な場合あり)。
建物にはエレベーターがついているので、重い荷物があっても安心。共用部には宅配ボックスが設定されているので、不在の時にも荷物を受け取ることができます。また、ペット飼育の相談ができますので、あなたの大切な家族の一員も快適に暮らせるか、ぜひ確認してみてください。
お金・契約の情報
※「-」と表示されているものは、実際は料金が発生するものもございます。詳細はお問い合わせください。
| 家賃 | 6.84万円 | 管理費・共益費 | 8,000円 |
|---|---|---|---|
| 敷金 | なし | 礼金 | 7.64万円 |
| 入居決定でお祝い金最大100,000円 | |||
| 保証金 | - | 償却・敷引 | - |
| 住宅保険料 | - | 更新料 | - |
| 保証会社利用 | 必須 | 保証会社名 | - |
| 保証会社費用 | - | 保証会社備考 | 保証会社利用必 【エポス】初回保証料:総賃料の50% 月額保証料:1.5% 保証人なし可。保証料は初回家賃の引落時に口座から引き落とされます。 |
| 契約形態 | - | 契約期間 | - |
| 入居・引渡期間 | - | 現況 | - |
| 入居可能条件 | ペット相談 | ||
| 契約備考 | ・1年未満は総賃料の2ヶ月分、1年以上2年未満は総賃料の1ヶ月分の短期解約違約金有り・更新料:旧総賃料・礼金0円の場合でも、法人契約は礼金(総賃料の1ヶ月分)要 合計1.98万円(内訳:エスリードクラブ入会金19800円) ・1年未満は総賃料の2ヶ月分、1年以上2年未満は総賃料の1ヶ月分の短期解約違約金有り・更新料:旧総賃料・礼金0円の場合でも、法人契約は礼金(総賃料の1ヶ月分)要 1K ペット相談/ルームシェア不可 普通借家2年 損保【1.8万円2年】 バストイレ別、バルコニー、エアコン、ガスコンロ対応、クロゼット、フローリング、TVインターホン、浴室乾燥機、オートロック、室内洗濯置、温水洗浄便座、エレベーター、洗面所独立、2口コンロ、宅配ボックス、光ファイバー、敷金不要、防犯カメラ、ペット相談、保証人不要、カードキー、2沿線利用可、ネット専用回線、ネット使用料不要、電子キー、電子ロック、築3年以内、3駅以上利用可、駅徒歩5分以内、敷地内ごみ置き場、ドアタッチキー、都市ガス、洗面所にドア、高速ネット対応、IT重説対応物件 入居日:'26年1月下旬 | ||
部屋の情報
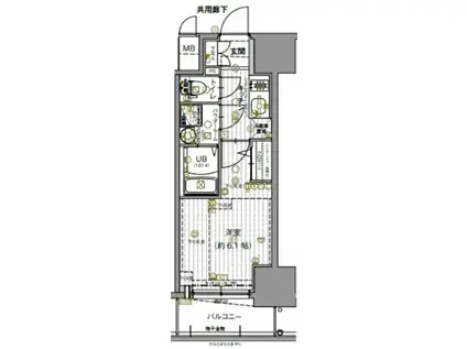
| 間取り | 1K | 専有面積 | 21.51m2 |
|---|---|---|---|
| 所在階 / 向き | 12階 / 東 | バルコニー面積 | 3m2 |
| 水道 / ガス | - | ||
| 設備 | バス・トイレ別、2階以上、オートロック、テレビドアホン、宅配ボックス、浴室乾燥機、インターネット対応、エアコン、エレベーター、温水洗浄便座、バルコニー、フローリング、洗髪洗面化粧台、2口コンロ、コンロ:ガス、インターネット使用料無料、洗濯機:室内 | ||
| 当社物件ID | 160171865 | ||
建物の情報
| 建物名 | エスリード弁天町ノースプレミア | ||
|---|---|---|---|
| 所在地 | 大阪府大阪市港区波除 | ||
| 交通 | JR大阪環状線 弁天町駅 徒歩1分 地下鉄中央線 弁天町駅 徒歩5分 地下鉄中央線 九条駅(大阪メトロ) 徒歩18分 | ||
| 階数 | 15階建 | 総戸数 | 84戸 |
| 築年月 | 2023年12月 / 築3年 | エレベーター | あり |
| 駐車場 | なし | バイク置き場 | - |
| 駐輪場 | - | 管理人/管理会社 | - |
| 周辺環境 | その他 ライフ 弁天町店(スーパー)まで363m その他 ファミリーマート 波除中央大通店(コンビニ)まで377m その他 キリン堂 弁天町店(ドラッグストア)まで331m その他 大阪ベイタワー内 郵便局(郵便局)まで310m その他 大阪みなと中央病院(病院)まで265m その他 香川銀行 弁天町支店(銀行)まで119m | ||
| 建物種別 | マンション | 建物構造 | RC(鉄筋コンクリート) |
この部屋の取扱い不動産会社
| 会社名 | エスリード賃貸(株)(SUUMO経由) | ||
|---|---|---|---|
| 所在地 | 大阪府大阪市北区大淀南1-5-1 | 交通 | - |
| 営業時間 | 9:00~18:00 | 定休日 | 土日祝 |
| 免許番号 | 国土交通大臣9843 | 取引態様 | 貸主 |
| 不動産会社管理番号 | 100481554782 | 当社管理番号 | 89 |
| 所属団体 | (一社)大阪府宅地建物取引業協会会員 | ||
| 公正取引協議会 | (公社)近畿地区不動産公正取引協議会加盟 | ||
| 取扱い物件情報 | 物件詳細へ | ||
※各種情報と現状に差異がある場合は、現状優先となります。問い合わせをすることで、より詳しい条件、情報を確認する事ができます。
提供:エスリード賃貸(株)(SUUMO経由)
この物件が気になったら掲載期限まであと12日
エスリード弁天町ノースプレミアの空き部屋一覧
全部で42の空き部屋があります。
エスリード弁天町ノースプレミアに条件(家賃・エリア)が近い物件一覧
| 写真 | 家賃 管理費等 | 敷金 礼金 | 間取り 専有面積 | 築年数 | 最寄り駅 所在地 | キープ | 詳細 |
|---|---|---|---|---|---|---|---|
アパート ヴィラ・クレール(1LDK/1階) | |||||||
![]() | 8.8万円 5,000円 | なし 17.6万円 | 1LDK 42.36m2 | 新築 | 近鉄奈良線 東花園駅 徒歩6分 近鉄奈良線 河内花園駅 徒歩16分 近鉄奈良線 瓢箪山駅(大阪) 徒歩24分 大阪府東大阪市吉田 | 詳細を見る | |
マンション ARTIZA緑地公園(1LDK/1階) | |||||||
| 9.4万円 1万円 | なし なし | 1LDK 33.63m2 | 築1年 | 北大阪急行南北線 緑地公園駅 徒歩8分 阪急電鉄千里線 関大前駅 徒歩13分 阪急電鉄千里線 千里山駅 徒歩20分 大阪府吹田市江坂町5丁目14-5 | 詳細を見る | ||
アパート 阪和線 鳳駅 徒歩10分 築18年(ワンルーム/1階) | |||||||
![]() | 5.25万円 4,000円 | なし なし | ワンルーム 28.9m2 | 築18年 | 阪和線 鳳駅 徒歩10分 阪和線 富木駅 徒歩12分 南海電鉄南海本線 羽衣駅 徒歩14分 大阪府堺市西区鳳西町2丁 | 詳細を見る | |
マンション S-RESIDENCE千里丘(1K/1階) | |||||||
| 6.8万円 1.1万円 | なし なし | 1K 23.78m2 | 築5年 | 東海道本線 千里丘駅 徒歩3分 阪急電鉄京都線 摂津市駅 徒歩12分 大阪モノレール本線 沢良宜駅 徒歩24分 大阪府摂津市千里丘1丁目14-20 | 詳細を見る | ||
マンション グランシス江坂(1K/2階) | |||||||
| 7.8万円 1万円 | なし 7.8万円 | 1K 25.83m2 | 築18年 | 大阪市御堂筋線 江坂駅 徒歩5分 北大阪急行南北線 江坂駅 徒歩5分 阪急電鉄千里線 豊津駅(大阪) 徒歩20分 大阪府吹田市広芝町18-31 | 詳細を見る | ||
アパート 南海電鉄泉北線 深井駅 徒歩19分 築8年(ワンルーム/2階) | |||||||
![]() | 4.7万円 3,000円 | なし なし | ワンルーム 25.7m2 | 築8年 | 南海電鉄泉北線 深井駅 徒歩19分 阪和線 上野芝駅 徒歩27分 阪和線 津久野駅 徒歩28分 大阪府堺市中区深井中町 | 詳細を見る | |
マンション ロイヤル千里丘(2LDK/3階) | |||||||
| 7.5万円 5,000円 | なし 15万円 | 2LDK 51m2 | 築36年 | 阪急電鉄京都線 摂津市駅 徒歩4分 東海道本線 千里丘駅 徒歩13分 大阪モノレール本線 摂津駅 徒歩14分 大阪府摂津市庄屋1丁目2-4 | 詳細を見る | ||
マンション クレストコート江坂垂水町(1DK/9階) | |||||||
| 9.4万円 8,000円 | なし なし | 1DK 25.32m2 | 築1年 | 北大阪急行南北線 江坂駅 徒歩10分 阪急電鉄千里線 豊津駅(大阪) 徒歩10分 阪急電鉄千里線 吹田駅(阪急) 徒歩20分 大阪府吹田市垂水町3丁目16以下 | 詳細を見る | ||




