賃貸マンション
フロンティアレジデンス板橋の賃貸物件情報(2LDK/12階)
| 家賃 | 管理費等 | 敷金 | 礼金 | 間取り | 専有面積 |
|---|---|---|---|---|---|
| 27万円 | 2万円 | 27万円 | なし | 2LDK | 55.4m2 |
入居決定でお祝い金最大100,000円
- 保証金
- -
- 償却・敷引
- -
- 築年数
- 築3年
- 所在階
- 12階
- 向き
- 東
Point
セキュリティ面は、オートロック・TVインターホンなど充実しているので安心して生活できます。室内設備は浴室乾燥機・洗面所独立など大変充実しております。こちらはマンションタイプになります。
提供:ハウス・トゥ・ハウス・ネットサービス(株)王子店(SUUMO経由)

詳細情報 フロンティアレジデンス板橋
物件紹介
フロンティアレジデンス板橋は都営三田線板橋区役所前駅から徒歩3分にあり、駅近で通勤通学に便利なマンションです。
このお部屋は2階以上に位置しているので、通行人や周囲の住人からの視線が気になりにくく、防犯面でも安心。建物のエントランスはオートロックがついており、インターホンにはTVモニタもついているため、相手の顔を確認してから来客対応することができます。
人気の角部屋で周囲の居住者の生活音も気になりにくく、また、フローリングのお部屋なのでお掃除もラクラク。室内にはウォークインクローゼットがありますので、たくさんの荷物も効率的に収納ができます。キッチンはシステムキッチン仕様になっていますので、お料理好きの方にもぴったり。バス・トイレは別なので、のんびりお風呂タイムも楽しめるでしょう。また、雨の日でも浴室乾燥機を使えば、お洗濯も問題ありません。
通信設備面では、インターネットが無料で使えるので、月々の出費を抑えられるのも魅力です。また、BSアンテナもありますので、おうち時間も充実するでしょう(別途工事、BSの契約料等が必要な場合あり)。
建物にはエレベーターがついているので、重い荷物があっても安心。共用部には宅配ボックスが設定されているので、不在の時にも荷物を受け取ることができます。また、ペット飼育の相談ができますので、あなたの大切な家族の一員も快適に暮らせるか、ぜひ確認してみてください。
このお部屋は2階以上に位置しているので、通行人や周囲の住人からの視線が気になりにくく、防犯面でも安心。建物のエントランスはオートロックがついており、インターホンにはTVモニタもついているため、相手の顔を確認してから来客対応することができます。
人気の角部屋で周囲の居住者の生活音も気になりにくく、また、フローリングのお部屋なのでお掃除もラクラク。室内にはウォークインクローゼットがありますので、たくさんの荷物も効率的に収納ができます。キッチンはシステムキッチン仕様になっていますので、お料理好きの方にもぴったり。バス・トイレは別なので、のんびりお風呂タイムも楽しめるでしょう。また、雨の日でも浴室乾燥機を使えば、お洗濯も問題ありません。
通信設備面では、インターネットが無料で使えるので、月々の出費を抑えられるのも魅力です。また、BSアンテナもありますので、おうち時間も充実するでしょう(別途工事、BSの契約料等が必要な場合あり)。
建物にはエレベーターがついているので、重い荷物があっても安心。共用部には宅配ボックスが設定されているので、不在の時にも荷物を受け取ることができます。また、ペット飼育の相談ができますので、あなたの大切な家族の一員も快適に暮らせるか、ぜひ確認してみてください。
お金・契約の情報
※「-」と表示されているものは、実際は料金が発生するものもございます。詳細はお問い合わせください。
| 家賃 | 27万円 | 管理費・共益費 | 2万円 |
|---|---|---|---|
| 敷金 | 27万円 | 礼金 | なし |
| フリーレント | あり | ||
| 入居決定でお祝い金最大100,000円 | |||
| 保証金 | - | 償却・敷引 | - |
| 住宅保険料 | - | 更新料 | - |
| 保証会社利用 | 必須 | 保証会社名 | - |
| 保証会社費用 | - | 保証会社備考 | 保証会社利用必 初回保証料:賃料等の50% 月額保証料:1000円 |
| 契約形態 | - | 契約期間 | - |
| 入居・引渡期間 | 即時 | 現況 | - |
| 入居可能条件 | ペット相談 | ||
| 契約備考 | 1年未満の解約は賃料1ヶ月分の違約金あり。解約予告2ヶ月前。退去時エアコンクリーニング費用:16500円/台。ペット飼育相談可(敷金1ヶ月追加、償却)。お車でご案内します。お気軽にお問い合わせ下さい。 合計4.95万円(内訳:安心入居サポート2.2万円鍵交換代2.75万円) 更新料 新賃料1.00ヶ月分 室内清掃費用 55000円 2LDK 二人入居可/ペット相談/事務所利用不可/ルームシェア相談/フリーレント1ヶ月 普通借家2年 損保【2.3万円2年】 バストイレ別、バルコニー、エアコン、ガスコンロ対応、クロゼット、TVインターホン、浴室乾燥機、オートロック、室内洗濯置、シューズボックス、システムキッチン、追焚機能浴室、角住戸、温水洗浄便座、脱衣所、エレベーター、洗面所独立、洗面化粧台、2口コンロ、駐輪場、宅配ボックス、即入居可、礼金不要、防犯カメラ、ペット相談、照明付、バイク置場、ディンプルキー、ネット使用料不要、フリーレント、24時間換気システム、クロゼット2ヶ所、ルームシェア相談、人感照明センサー、耐火構造、高層階、24時間ゴミ出し可、敷地内ごみ置き場、BS、高速ネット対応、保証会社利用可、IT重説対応物件、初期費用カード決済可 | ||
部屋の情報
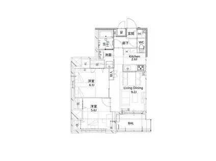
| 間取り | 2LDK | 専有面積 | 55.4m2 |
|---|---|---|---|
| 所在階 / 向き | 12階 / 東 | バルコニー面積 | - |
| 水道 / ガス | - | ||
| 設備 | バス・トイレ別、2階以上、オートロック、テレビドアホン、宅配ボックス、浴室乾燥機、追い焚き、インターネット対応、システムキッチン、エアコン、エレベーター、温水洗浄便座、角部屋、バルコニー、洗髪洗面化粧台、2口コンロ、コンロ:ガス、BSアンテナ、インターネット使用料無料、洗濯機:室内 | ||
| 当社物件ID | 160080457 | ||
建物の情報
| 建物名 | フロンティアレジデンス板橋 | ||
|---|---|---|---|
| 所在地 | 東京都板橋区板橋 | ||
| 交通 | 都営三田線 板橋区役所前駅 徒歩3分 東武東上線 大山駅(東京) 徒歩10分 東武東上線 下板橋駅 徒歩13分 | ||
| 階数 | 16階建 | 総戸数 | - |
| 築年月 | 2023年12月 / 築3年 | エレベーター | あり |
| 駐車場 | なし | バイク置き場 | あり |
| 駐輪場 | あり | 管理人/管理会社 | - |
| 周辺環境 | その他 東板橋公園(公園)まで734m その他 メディカルスクエア板橋区役所前(病院)まで349m その他 まいばすけっと 板橋区役所前店(スーパー)まで59m その他 ローソン 板橋区役所前店(コンビニ)まで106m その他 板橋警察署(警察署・交番)まで318m その他 セブンイレブン 板橋氷川町店(コンビニ)まで178m | ||
| 建物種別 | マンション | 建物構造 | RC(鉄筋コンクリート) |
この部屋の取扱い不動産会社
| 会社名 | ハウス・トゥ・ハウス・ネットサービス(株)板橋区役所前店(SUUMO経由) | ||
|---|---|---|---|
| 所在地 | 東京都板橋区仲宿 46-12 | 交通 | - |
| 営業時間 | 10:00~18:30(1月~3月は9:30~) | 定休日 | 水曜日 |
| 免許番号 | 国土交通大臣7400 | 取引態様 | 仲介 |
| 不動産会社管理番号 | 100478986579 | 当社管理番号 | 89 |
| 所属団体 | (公社)全日本不動産協会東京都本部会員 | ||
| 公正取引協議会 | (公社)首都圏不動産公正取引協議会加盟 | ||
| 取扱い物件情報 | 物件詳細へ | ||
※各種情報と現状に差異がある場合は、現状優先となります。問い合わせをすることで、より詳しい条件、情報を確認する事ができます。
提供:ハウス・トゥ・ハウス・ネットサービス(株)板橋区役所前店(SUUMO経由)
この物件が気になったら掲載期限まであと11日
フロンティアレジデンス板橋に条件(家賃・エリア)が近い物件一覧
| 写真 | 家賃 管理費等 | 敷金 礼金 | 間取り 専有面積 | 築年数 | 最寄り駅 所在地 | キープ | 詳細 |
|---|---|---|---|---|---|---|---|
マンション ロイジェント南池袋(1LDK/2階) | |||||||
![]() | 25.7万円 1万円 | なし なし | 1LDK 40.33m2 | 築1年 | 山手線 池袋駅 徒歩7分 東京地下鉄有楽町線 東池袋駅 徒歩18分 東京都豊島区南池袋1丁目 | 詳細を見る | |
一戸建て 東京都荒川線 梶原駅 徒歩5分 築56年(4LDK) | |||||||
![]() | 30万円 なし | 30万円 30万円 | 4LDK 120.5m2 | 築56年 | 東京都荒川線 梶原駅 徒歩5分 京浜東北・根岸線 王子駅 徒歩15分 東京都北区堀船3丁目 | 詳細を見る | |
マンション シュタット練馬春日町(2LDK/2階) | |||||||
![]() | 19.4万円 1.15万円 | なし 19.4万円 | 2LDK 65.97m2 | 築1年 | 都営大江戸線 練馬春日町駅 徒歩8分 西武池袋線 中村橋駅 徒歩20分 都営大江戸線 光が丘駅 徒歩21分 東京都練馬区高松 | 詳細を見る | |
マンション PREMIUM CUBE 王子神谷(1LDK/1階) | |||||||
![]() | 19.2万円 2万円 | なし なし | 1LDK 55.84m2 | 築1年 | 東京メトロ南北線 王子神谷駅 徒歩12分 JR京浜東北線 王子駅 徒歩24分 都電荒川線 梶原駅 徒歩26分 東京都北区豊島 | 詳細を見る | |
マンション テラス駒込サウス(1LDK/3階) | |||||||
![]() | 16.3万円 1.2万円 | 16.3万円 なし | 1LDK 30.39m2 | 築1年 | JR山手線 駒込駅 徒歩4分 JR山手線 田端駅 徒歩15分 JR山手線 巣鴨駅 徒歩16分 東京都北区中里 | 詳細を見る | |
一戸建て 東武鉄道東上線 北池袋駅 徒歩9分 築3年(2LDK) | |||||||
![]() | 33.2万円 1円 | なし 33.2万円 | 2LDK 78.03m2 | 築3年 | 東武鉄道東上線 北池袋駅 徒歩9分 山手線 大塚駅(東京) 徒歩13分 東京都豊島区上池袋1丁目 | 詳細を見る | |






