賃貸マンション
ベストレジデンスあびこの賃貸物件情報(ワンルーム/6階)
| 家賃 | 管理費等 | 敷金 | 礼金 | 間取り | 専有面積 |
|---|---|---|---|---|---|
| 3.3万円 | なし | なし | なし | ワンルーム | 10.81m2 |
入居決定でお祝い金最大100,000円
Point
まずはお問い合わせ!
不動産会社は街のプロ、あなたに合った物件がきっと見つかります。
提供:アパマンショップ心斎橋店

詳細情報 ベストレジデンスあびこ
物件紹介
ベストレジデンスあびこは大阪メトロ御堂筋線あびこ駅から徒歩10分にあり、駅近で通勤通学に便利なマンションです。
このお部屋は2階以上に位置しているので、通行人や周囲の住人からの視線が気になりにくく、防犯面でも安心です。
フローリングのお部屋なのでお掃除もラクラク。キッチンはシステムキッチン仕様になっていますので、お料理好きの方にもぴったり。
通信設備面では、インターネット接続が可能です。また、BSアンテナ・CSアンテナがありCATVにも対応しているので、おうち時間も充実するでしょう(別途工事、契約料が必要な場合あり)。
建物にはエレベーターがついているので、重い荷物があっても安心。
このお部屋は2階以上に位置しているので、通行人や周囲の住人からの視線が気になりにくく、防犯面でも安心です。
フローリングのお部屋なのでお掃除もラクラク。キッチンはシステムキッチン仕様になっていますので、お料理好きの方にもぴったり。
通信設備面では、インターネット接続が可能です。また、BSアンテナ・CSアンテナがありCATVにも対応しているので、おうち時間も充実するでしょう(別途工事、契約料が必要な場合あり)。
建物にはエレベーターがついているので、重い荷物があっても安心。
お金・契約の情報
※「-」と表示されているものは、実際は料金が発生するものもございます。詳細はお問い合わせください。
| 家賃 | 3.3万円 | 管理費・共益費 | なし |
|---|---|---|---|
| 敷金 | なし | 礼金 | なし |
| 入居決定でお祝い金最大100,000円 | |||
| 保証金 | - | 償却・敷引 | - |
| 住宅保険料 | - | 更新料 | - |
| 保証会社利用 | 必須 | 保証会社名 | K−net株式会社 |
| 保証会社費用 | - | 保証会社備考 | 初回保証料:総賃料の50% 更新有:12,000円/年 |
| 契約形態 | - | 契約期間 | 2年 |
| 入居・引渡期間 | 相談 | 現況 | - |
| 契約備考 | 定額水道料 2750円/鍵交換代 22000円/事務手数料 3300円 | ||
部屋の情報
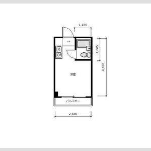
| 間取り | ワンルーム | 専有面積 | 10.81m2 |
|---|---|---|---|
| 所在階 / 向き | 6階 / 東 | バルコニー面積 | - |
| 水道 / ガス | - | ||
| 設備 | インターネット対応、エレベーター、バルコニー、フローリング、コンロ:ガス、シャワー、給湯、冷房、タイル張り、閑静な住宅街 | ||
| 当社物件ID | 10283532 | ||
建物の情報
| 建物名 | ベストレジデンスあびこ | ||
|---|---|---|---|
| 所在地 | 大阪府大阪市住吉区苅田4丁目 | ||
| 交通 | 大阪メトロ御堂筋線 あびこ駅 徒歩10分 | ||
| 階数 | 7階建 | 総戸数 | 65戸 |
| 築年月 | 1988年03月 / 築38年 | エレベーター | あり |
| 駐車場 | - | バイク置き場 | - |
| 駐輪場 | - | 管理人/管理会社 | - |
| 建物種別 | マンション | 建物構造 | RC(鉄筋コンクリート) |
この部屋の取扱い不動産会社
| 会社名 | アパマンショップなんば店 | ||
|---|---|---|---|
| 所在地 | 大阪府大阪市中央区難波1丁目 7-10難波泉屋ビル2F | 交通 | 大阪市御堂筋線なんばから徒歩1分 |
| 営業時間 | 10:00〜19:00(年中無休[年末年始等は除く]) | 定休日 | - |
| 免許番号 | 大阪府知事(6)47572 | 取引態様 | 仲介 |
| 不動産会社管理番号 | 97020240 | 当社管理番号 | 4 |
| 所属団体 | (一社)大阪府宅地建物取引業協会 | ||
| 公正取引協議会 | (公社) 近畿地区不動産公正取引協議会加盟 | ||
| 取扱い物件情報 | 物件詳細へ | ||
※各種情報と現状に差異がある場合は、現状優先となります。問い合わせをすることで、より詳しい条件、情報を確認する事ができます。
提供:アパマンショップなんば店
この物件が気になったら掲載期限まであと13日
ベストレジデンスあびこに条件(家賃・エリア)が近い物件一覧
| 写真 | 家賃 管理費等 | 敷金 礼金 | 間取り 専有面積 | 築年数 | 最寄り駅 所在地 | キープ | 詳細 |
|---|---|---|---|---|---|---|---|
マンション 藤田マンション(2DK/1階) | |||||||
![]() | 4万円 なし | なし 10万円 | 2DK 35m2 | 築57年 | 近鉄大阪線 恩智駅 徒歩13分 近鉄大阪線 高安駅 徒歩15分 大阪府八尾市 | 詳細を見る | |
マンション 千里七尾マンション(2DK/5階) | |||||||
| 4.7万円 3,000円 | なし 9.4万円 | 2DK 40m2 | 築49年 | 東海道本線 岸辺駅 徒歩21分 東海道本線 千里丘駅 徒歩28分 阪急電鉄京都線 正雀駅 徒歩29分 大阪府吹田市岸部北5丁目44-14 | 詳細を見る | ||
マンション ラ・カサ・フェリス(1K/3階) | |||||||
![]() | 4.5万円 4,000円 | なし 5万円 | 1K 22.12m2 | 築34年 | 近鉄南大阪線 高見ノ里駅 徒歩5分 近鉄南大阪線 河内松原駅 徒歩10分 近鉄南大阪線 布忍駅 徒歩15分 大阪府松原市高見の里4丁目 | 詳細を見る | |
アパート レオパレスルナ(1K/2階) | |||||||
![]() | 4.9万円 7,000円 | なし なし | 1K 23.18m2 | 築28年 | 近鉄けいはんな線 荒本駅 徒歩4分 近鉄けいはんな線 長田駅(大阪) 徒歩21分 近鉄けいはんな線 吉田駅(大阪) 徒歩24分 大阪府東大阪市横枕西 | 詳細を見る | |
アパート フジパレスグランマルシェB(1K/1階) | |||||||
![]() | 4.75万円 4,300円 | なし なし | 1K 24m2 | 築18年 | 阪和線 鳳駅 徒歩9分 阪和線 富木駅 徒歩15分 阪和線 津久野駅 徒歩27分 大阪府堺市西区上 | 詳細を見る | |
マンション 阪和線 鳳駅 徒歩10分 築29年(1DK/3階) | |||||||
![]() | 4.9万円 7,000円 | なし なし | 1DK 28m2 | 築29年 | 阪和線 鳳駅 徒歩10分 阪和線 富木駅 徒歩17分 阪和線 津久野駅 徒歩25分 大阪府堺市西区鳳南町5丁 | 詳細を見る | |
アパート レオパレスMITO(1K/1階) | |||||||
![]() | 3.6万円 7,000円 | なし なし | 1K 23.18m2 | 築28年 | 近鉄大阪線 弥刀駅 徒歩9分 近鉄大阪線 久宝寺口駅 徒歩18分 近鉄大阪線 長瀬駅 徒歩19分 大阪府東大阪市友井2丁目 | 詳細を見る | |
アパート 大石文化(2K/2階) | |||||||
![]() | 4.7万円 3,000円 | なし なし | 2K 30m2 | 築57年 | 大阪市谷町線 大日駅 徒歩22分 大阪市谷町線 守口駅 徒歩22分 大阪モノレール本線 南摂津駅 徒歩26分 大阪府守口市八雲北町3丁目 | 詳細を見る | |







