賃貸マンション
ベストレジデンスあびこの賃貸物件情報(ワンルーム/3階)
| 家賃 | 管理費等 | 敷金 | 礼金 | 間取り | 専有面積 |
|---|---|---|---|---|---|
| 3.3万円 | なし | なし | なし | ワンルーム | 10.74m2 |
入居決定でお祝い金最大100,000円
Point
⇒詳細はアパマンショップ北巽店までお問い合わせ下さい!
提供:アパマンショップ針中野店

詳細情報 ベストレジデンスあびこ
物件紹介
ベストレジデンスあびこは大阪メトロ御堂筋線あびこ駅から徒歩10分にあり、駅近で通勤通学に便利なマンションです。
このお部屋は2階以上に位置しているので、通行人や周囲の住人からの視線が気になりにくく、防犯面でも安心です。
フローリングのお部屋なのでお掃除もラクラク。キッチンはシステムキッチン仕様になっていますので、お料理好きの方にもぴったり。
通信設備面では、インターネット接続が可能です。また、BSアンテナ・CSアンテナがありCATVにも対応しているので、おうち時間も充実するでしょう(別途工事、契約料が必要な場合あり)。
建物にはエレベーターがついているので、重い荷物があっても安心。
このお部屋は2階以上に位置しているので、通行人や周囲の住人からの視線が気になりにくく、防犯面でも安心です。
フローリングのお部屋なのでお掃除もラクラク。キッチンはシステムキッチン仕様になっていますので、お料理好きの方にもぴったり。
通信設備面では、インターネット接続が可能です。また、BSアンテナ・CSアンテナがありCATVにも対応しているので、おうち時間も充実するでしょう(別途工事、契約料が必要な場合あり)。
建物にはエレベーターがついているので、重い荷物があっても安心。
お金・契約の情報
※「-」と表示されているものは、実際は料金が発生するものもございます。詳細はお問い合わせください。
| 家賃 | 3.3万円 | 管理費・共益費 | なし |
|---|---|---|---|
| 敷金 | なし | 礼金 | なし |
| 入居決定でお祝い金最大100,000円 | |||
| 保証金 | - | 償却・敷引 | - |
| 住宅保険料 | - | 更新料 | - |
| 保証会社利用 | 必須 | 保証会社名 | K−net株式会社 |
| 保証会社費用 | - | 保証会社備考 | 初回保証料:総賃料の50% 更新有:12,000円/年 |
| 契約形態 | - | 契約期間 | 2年 |
| 入居・引渡期間 | 相談 | 現況 | - |
| 契約備考 | 定額水道料 2750円/鍵交換代 22000円/事務手数料 3300円 | ||
部屋の情報
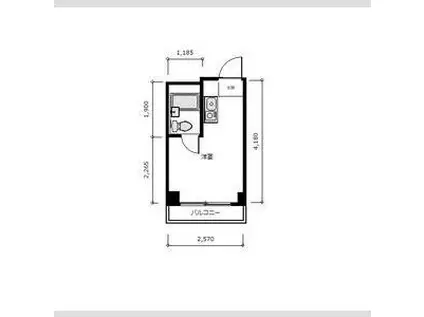
| 間取り | ワンルーム | 専有面積 | 10.74m2 |
|---|---|---|---|
| 所在階 / 向き | 3階 / 東 | バルコニー面積 | - |
| 水道 / ガス | - | ||
| 当社物件ID | 129663609 | ||
建物の情報
| 建物名 | ベストレジデンスあびこ | ||
|---|---|---|---|
| 所在地 | 大阪府大阪市住吉区苅田4丁目 | ||
| 交通 | 大阪メトロ御堂筋線 あびこ駅 徒歩12分 | ||
| 階数 | 7階建 | 総戸数 | 65戸 |
| 築年月 | 1988年03月 / 築38年 | エレベーター | - |
| 駐車場 | - | バイク置き場 | - |
| 駐輪場 | - | 管理人/管理会社 | - |
| 建物種別 | マンション | 建物構造 | RC(鉄筋コンクリート) |
この部屋の取扱い不動産会社
| 会社名 | アパマンショップ北巽店 | ||
|---|---|---|---|
| 所在地 | 大阪府大阪市生野区巽東1丁目 1-2ナティイースト1F | 交通 | 大阪市千日前線北巽から徒歩1分 |
| 営業時間 | 10:00〜19:00 | 定休日 | - |
| 免許番号 | 大阪府知事(2)59130 | 取引態様 | 仲介 |
| 不動産会社管理番号 | 97020254 | 当社管理番号 | 4 |
| 所属団体 | (一社)大阪府宅地建物取引業協会 | ||
| 公正取引協議会 | (公社) 近畿地区不動産公正取引協議会加盟 | ||
| 取扱い物件情報 | 物件詳細へ | ||
※各種情報と現状に差異がある場合は、現状優先となります。問い合わせをすることで、より詳しい条件、情報を確認する事ができます。
提供:アパマンショップ北巽店
この物件が気になったら掲載期限まであと13日
ベストレジデンスあびこに条件(家賃・エリア)が近い物件一覧
| 写真 | 家賃 管理費等 | 敷金 礼金 | 間取り 専有面積 | 築年数 | 最寄り駅 所在地 | キープ | 詳細 |
|---|---|---|---|---|---|---|---|
マンション 南海電鉄泉北線 深井駅 徒歩12分 築41年(2DK/2階) | |||||||
![]() | 4.8万円 5,000円 | なし なし | 2DK 46.7m2 | 築41年 | 南海電鉄泉北線 深井駅 徒歩12分 南海電鉄高野線 白鷺駅 徒歩31分 南海電鉄高野線 初芝駅 徒歩31分 大阪府堺市中区深井水池町 | 詳細を見る | |
マンション 城垣マンション(2LDK/3階) | |||||||
![]() | 4.7万円 3,000円 | なし なし | 2LDK 40m2 | 築49年 | 京阪電気鉄道京阪線 萱島駅 徒歩8分 京阪電気鉄道京阪線 大和田駅(大阪) 徒歩15分 京阪電気鉄道京阪線 寝屋川市駅 徒歩38分 大阪府門真市城垣町 | 詳細を見る | |
マンション ライフデザイン新金岡B棟(1K/8階) | |||||||
![]() | 4.6万円 8,000円 | なし なし | 1K 21.73m2 | 築22年 | 大阪市御堂筋線 新金岡駅 徒歩6分 大阪市御堂筋線 なかもず駅(大阪メトロ) 徒歩18分 大阪府堺市北区金岡町 | 詳細を見る | |
マンション コーポラス常陽(ワンルーム/1階) | |||||||
| 3.5万円 3,000円 | なし なし | ワンルーム 18.64m2 | 築32年 | 阪急電鉄千里線 豊津駅(大阪) 徒歩8分 北大阪急行南北線 江坂駅 徒歩14分 阪急電鉄千里線 関大前駅 徒歩15分 大阪府吹田市垂水町1丁目29-16 | 詳細を見る | ||
マンション ビルシャナ上田(ワンルーム/2階) | |||||||
![]() | 3.4万円 4,000円 | なし なし | ワンルーム 17.64m2 | 築31年 | 近鉄南大阪線 河内松原駅 徒歩5分 近鉄南大阪線 高見ノ里駅 徒歩14分 近鉄南大阪線 布忍駅 徒歩25分 大阪府松原市上田5丁目 | 詳細を見る | |
マンション プレメゾンF(1K/3階) | |||||||
![]() | 4.3万円 4,000円 | なし 4.3万円 | 1K 23.76m2 | 築24年 | 近鉄南大阪線 河内松原駅 徒歩7分 近鉄南大阪線 高見ノ里駅 徒歩15分 近鉄南大阪線 恵我ノ荘駅 徒歩24分 大阪府松原市上田5丁目 | 詳細を見る | |
アパート 田中文化(2DK/2階) | |||||||
![]() | 4.5万円 なし | なし 5万円 | 2DK 35.6m2 | 築49年 | 近鉄南大阪線 高見ノ里駅 徒歩5分 近鉄南大阪線 布忍駅 徒歩10分 近鉄南大阪線 河内松原駅 徒歩15分 大阪府松原市高見の里2丁目 | 詳細を見る | |
マンション シャルマンフジもずイースト(1K/2階) | |||||||
![]() | 5.3万円 4,700円 | なし なし | 1K 24m2 | 築19年 | 阪和線 百舌鳥駅 徒歩2分 南海電鉄高野線 百舌鳥八幡駅 徒歩15分 阪和線 三国ケ丘駅 徒歩15分 大阪府堺市北区百舌鳥本町1丁 | 詳細を見る | |







