賃貸マンション
ベストレジデンスあびこの賃貸物件情報(ワンルーム/7階)
| 家賃 | 管理費等 | 敷金 | 礼金 | 間取り | 専有面積 |
|---|---|---|---|---|---|
| 3.7万円 | なし | なし | なし | ワンルーム | 16.68m2 |
入居決定でお祝い金最大100,000円
Point
⇒詳細はアパマンショップ上本町店までお問い合わせください!
提供:アパマンショップ西田辺店

詳細情報 ベストレジデンスあびこ
物件紹介
ベストレジデンスあびこは大阪メトロ御堂筋線あびこ駅から徒歩10分にあり、駅近で通勤通学に便利なマンションです。
このお部屋は2階以上に位置しているので、通行人や周囲の住人からの視線が気になりにくく、防犯面でも安心です。
おしゃれなデザイナーズ物件!フローリングのお部屋なのでお掃除もラクラク。キッチンはシステムキッチン仕様になっていますので、お料理好きの方にもぴったり。
通信設備面では、インターネット接続が可能です。また、BSアンテナ・CSアンテナがありCATVにも対応しているので、おうち時間も充実するでしょう(別途工事、契約料が必要な場合あり)。
建物にはエレベーターがついているので、重い荷物があっても安心。
このお部屋は2階以上に位置しているので、通行人や周囲の住人からの視線が気になりにくく、防犯面でも安心です。
おしゃれなデザイナーズ物件!フローリングのお部屋なのでお掃除もラクラク。キッチンはシステムキッチン仕様になっていますので、お料理好きの方にもぴったり。
通信設備面では、インターネット接続が可能です。また、BSアンテナ・CSアンテナがありCATVにも対応しているので、おうち時間も充実するでしょう(別途工事、契約料が必要な場合あり)。
建物にはエレベーターがついているので、重い荷物があっても安心。
お金・契約の情報
※「-」と表示されているものは、実際は料金が発生するものもございます。詳細はお問い合わせください。
| 家賃 | 3.7万円 | 管理費・共益費 | なし |
|---|---|---|---|
| 敷金 | なし | 礼金 | なし |
| 入居決定でお祝い金最大100,000円 | |||
| 保証金 | - | 償却・敷引 | - |
| 住宅保険料 | - | 更新料 | - |
| 保証会社利用 | 必須 | 保証会社名 | K−net株式会社 |
| 保証会社費用 | - | 保証会社備考 | 初回保証料:総賃料の50% 更新有:10,000円/年 |
| 契約形態 | - | 契約期間 | 2年 |
| 入居・引渡期間 | 相談 | 現況 | - |
| 契約備考 | 定額水道料 2750円/鍵交換代 22000円/事務手数料 3300円 | ||
部屋の情報
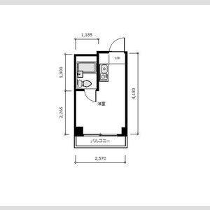
| 間取り | ワンルーム | 専有面積 | 16.68m2 |
|---|---|---|---|
| 所在階 / 向き | 7階 / 東 | バルコニー面積 | - |
| 水道 / ガス | - | ||
| 当社物件ID | 157362927 | ||
建物の情報
| 建物名 | ベストレジデンスあびこ | ||
|---|---|---|---|
| 所在地 | 大阪府大阪市住吉区苅田4丁目 | ||
| 交通 | 大阪メトロ御堂筋線 あびこ駅 徒歩12分 | ||
| 階数 | 7階建 | 総戸数 | 65戸 |
| 築年月 | 1988年03月 / 築38年 | エレベーター | - |
| 駐車場 | - | バイク置き場 | - |
| 駐輪場 | - | 管理人/管理会社 | - |
| 建物種別 | マンション | 建物構造 | RC(鉄筋コンクリート) |
この部屋の取扱い不動産会社
| 会社名 | アパマンショップ上本町店 | ||
|---|---|---|---|
| 所在地 | 大阪府大阪市天王寺区上汐3丁目 1-25モリビル1階 | 交通 | 大阪市谷町線谷町九丁目から徒歩2分 |
| 営業時間 | 10:00〜19:00(水曜定休日です。) | 定休日 | 水曜日 |
| 免許番号 | 大阪府知事(2)59130 | 取引態様 | 仲介 |
| 不動産会社管理番号 | 102489007 | 当社管理番号 | 4 |
| 所属団体 | (一社)大阪府宅地建物取引業協会 | ||
| 公正取引協議会 | (公社) 近畿地区不動産公正取引協議会加盟 | ||
| 取扱い物件情報 | 物件詳細へ | ||
※各種情報と現状に差異がある場合は、現状優先となります。問い合わせをすることで、より詳しい条件、情報を確認する事ができます。
提供:アパマンショップ上本町店
この物件が気になったら掲載期限まであと13日
ベストレジデンスあびこに条件(家賃・エリア)が近い物件一覧
| 写真 | 家賃 管理費等 | 敷金 礼金 | 間取り 専有面積 | 築年数 | 最寄り駅 所在地 | キープ | 詳細 |
|---|---|---|---|---|---|---|---|
マンション 阪和線 鳳駅 徒歩12分 築6年(1K/3階) | |||||||
![]() | 5.5万円 1万円 | なし 5.5万円 | 1K 24.93m2 | 築6年 | 阪和線 鳳駅 徒歩12分 阪和線 富木駅 徒歩18分 阪和線 津久野駅 徒歩27分 大阪府堺市西区鳳南町5丁 | 詳細を見る | |
マンション ソサエティ山手(1K/3階) | |||||||
| 2.8万円 3,000円 | なし なし | 1K 18.15m2 | 築35年 | 阪急電鉄千里線 関大前駅 徒歩9分 阪急電鉄千里線 豊津駅(大阪) 徒歩9分 阪急電鉄千里線 吹田駅(阪急) 徒歩18分 大阪府吹田市山手町3丁目20-18 | 詳細を見る | ||
アパート レオパレス別府1(1K/2階) | |||||||
| 4.8万円 5,000円 | なし 4.8万円 | 1K 19.87m2 | 築23年 | 阪急電鉄京都線 正雀駅 徒歩17分 大阪市今里筋線 井高野駅 徒歩19分 東海道本線 岸辺駅 徒歩25分 大阪府摂津市 | 詳細を見る | ||
アパート レオパレスKOTOH(1K/1階) | |||||||
| 5.6万円 5,000円 | なし 5.6万円 | 1K 19.87m2 | 築22年 | 阪急電鉄千里線 豊津駅(大阪) 徒歩9分 阪急電鉄千里線 関大前駅 徒歩11分 阪急電鉄千里線 吹田駅(阪急) 徒歩17分 大阪府吹田市山手町1丁目21-21 | 詳細を見る | ||
アパート FSTYLE浜寺石津町西2号館(1LDK/2階) | |||||||
![]() | 5.98万円 7,000円 | なし なし | 1LDK 33.01m2 | 築4年 | 南海電鉄南海本線 石津川駅 徒歩5分 阪堺電気軌道阪堺線 石津駅(大阪) 徒歩8分 南海電鉄南海本線 諏訪ノ森駅 徒歩12分 大阪府堺市西区浜寺石津町西4丁 | 詳細を見る | |
マンション ハッピーハイツ(1K/7階) | |||||||
| 3.5万円 3,000円 | なし 4万円 | 1K 20.1m2 | 築42年 | 東海道本線 千里丘駅 徒歩13分 東海道本線 岸辺駅 徒歩15分 阪急電鉄京都線 摂津市駅 徒歩17分 大阪府摂津市千里丘4丁目12-23 | 詳細を見る | ||
マンション レオパレスプレンティ鳳(1K/1階) | |||||||
![]() | 5.6万円 7,000円 | なし 5.6万円 | 1K 20.28m2 | 築20年 | 阪和線 鳳駅 徒歩7分 阪和線 富木駅 徒歩13分 南海電鉄南海本線 羽衣駅 徒歩17分 大阪府堺市西区鳳西町1丁 | 詳細を見る | |
マンション トゥリオーニ守口B(4DK/4階) | |||||||
![]() | 4.7万円 5,000円 | なし なし | 4DK 45m2 | 築35年 | 京阪電気鉄道京阪線 西三荘駅 徒歩9分 大阪市谷町線 大日駅 徒歩10分 大阪モノレール本線 門真市駅 徒歩14分 大阪府守口市八雲東町2丁目 | 詳細を見る | |




