賃貸マンション
文京グリーンコート ビュータワー本駒込Bの賃貸物件情報(2DK/12階)
| 家賃 | 管理費等 | 敷金 | 礼金 | 間取り | 専有面積 |
|---|---|---|---|---|---|
| 21.8万円 | 1.5万円 | 21.8万円 | 21.8万円 | 2DK | 57.59m2 |
入居決定でお祝い金最大100,000円
- 保証金
- -
- 償却・敷引
- -
- 築年数
- 築28年
- 所在階
- 12階
- 向き
- 東
Point
オフィスビル・ショッピングセンター(ピーコック・コンビニ・飲食店・ドラッグストア・郵便局・クリニック等)・フィットネス施設などからなる複合施設「文京グリーンコート」敷地内にある22階建ての住宅棟です。
提供:文京トラスティ(株)(SUUMO経由)

詳細情報 文京グリーンコート ビュータワー本駒込B
物件紹介
文京グリーンコート ビュータワー本駒込Bは都営三田線千石駅から徒歩4分にあり、駅近で通勤通学に便利なマンションです。
このお部屋は2階以上に位置しているので、通行人や周囲の住人からの視線が気になりにくく、防犯面でも安心。建物のエントランスはオートロックがついており、インターホンにはTVモニタもついているため、相手の顔を確認してから来客対応することができます。
フローリングのお部屋なのでお掃除もラクラク。キッチンはシステムキッチン仕様になっていますので、お料理好きの方にもぴったり。バス・トイレは別なので、のんびりお風呂タイムも楽しめるでしょう。また、雨の日でも浴室乾燥機を使えば、お洗濯も問題ありません。
通信設備面では、インターネット接続が可能です。また、BSアンテナがありCATVにも対応しているので、おうち時間も充実するでしょう(別途工事、契約料が必要な場合あり)。
建物にはエレベーターがついているので、重い荷物があっても安心。共用部には宅配ボックスが設定されているので、不在の時にも荷物を受け取ることができます。
このお部屋は2階以上に位置しているので、通行人や周囲の住人からの視線が気になりにくく、防犯面でも安心。建物のエントランスはオートロックがついており、インターホンにはTVモニタもついているため、相手の顔を確認してから来客対応することができます。
フローリングのお部屋なのでお掃除もラクラク。キッチンはシステムキッチン仕様になっていますので、お料理好きの方にもぴったり。バス・トイレは別なので、のんびりお風呂タイムも楽しめるでしょう。また、雨の日でも浴室乾燥機を使えば、お洗濯も問題ありません。
通信設備面では、インターネット接続が可能です。また、BSアンテナがありCATVにも対応しているので、おうち時間も充実するでしょう(別途工事、契約料が必要な場合あり)。
建物にはエレベーターがついているので、重い荷物があっても安心。共用部には宅配ボックスが設定されているので、不在の時にも荷物を受け取ることができます。
お金・契約の情報
※「-」と表示されているものは、実際は料金が発生するものもございます。詳細はお問い合わせください。
| 家賃 | 21.8万円 | 管理費・共益費 | 1.5万円 |
|---|---|---|---|
| 敷金 | 21.8万円 | 礼金 | 21.8万円 |
| 入居決定でお祝い金最大100,000円 | |||
| 保証金 | - | 償却・敷引 | - |
| 住宅保険料 | - | 更新料 | - |
| 保証会社利用 | 必須 | 保証会社名 | - |
| 保証会社費用 | - | 保証会社備考 | 保証会社利用必 初回保証料:賃料総額の50% 毎月賃料総額の1% 詳細はスタッフに確認ください。 |
| 契約形態 | - | 契約期間 | - |
| 入居・引渡期間 | - | 現況 | - |
| 契約備考 | 通勤管理/旧UR平置き駐車場:40000円+税 全長5650×全幅2050×全高2800機械式駐車場:38000円+税 全長5000×全幅1800×全高1550重量1.74t敷金:3か月 合計2.75万円(内訳:鍵交換代2.75万円) 更新料 新賃料1.00ヶ月分 2DK 二人入居可/子供可/事務所利用不可 普通借家2年 損保【要】 バストイレ別、バルコニー、エアコン、ガスコンロ対応、クロゼット、フローリング、TVインターホン、浴室乾燥機、オートロック、室内洗濯置、陽当り良好、シューズボックス、システムキッチン、追焚機能浴室、脱衣所、エレベーター、洗面所独立、洗面化粧台、駐輪場、宅配ボックス、押入、CATV、光ファイバー、閑静な住宅地、3口以上コンロ、防犯カメラ、独立型キッチン、全居室収納、オートバス、グリル付、保証人不要、2沿線利用可、眺望良好、トランクルーム、文教地区、エレベーター2基、耐震構造、2駅利用可、3駅以上利用可、3沿線以上利用可、タワー型マンション、24時間ゴミ出し可、敷地内ごみ置き場、地下車庫、日勤管理、都市ガス、玄関収納、BS、保証会社利用可 入居日:'26年3月上旬 | ||
部屋の情報
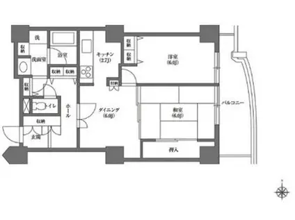
| 間取り | 2DK | 専有面積 | 57.59m2 |
|---|---|---|---|
| 所在階 / 向き | 12階 / 東 | バルコニー面積 | - |
| 水道 / ガス | - | ||
| 設備 | バス・トイレ別、2階以上、オートロック、テレビドアホン、宅配ボックス、浴室乾燥機、追い焚き、インターネット対応、システムキッチン、エアコン、エレベーター、バルコニー、フローリング、トランクルーム、洗髪洗面化粧台、タワーマンション、2口コンロ、コンロ:ガス、CATV、BSアンテナ、洗濯機:室内 | ||
| 当社物件ID | 29438397 | ||
建物の情報
| 建物名 | 文京グリーンコート ビュータワー本駒込B | ||
|---|---|---|---|
| 所在地 | 東京都文京区本駒込 | ||
| 交通 | 都営三田線 千石駅 徒歩4分 JR山手線 駒込駅 徒歩11分 東京メトロ南北線 本駒込駅 徒歩12分 | ||
| 階数 | 22階建 | 総戸数 | 242戸 |
| 築年月 | 1998年03月 / 築28年 | エレベーター | あり |
| 駐車場 | なし | バイク置き場 | - |
| 駐輪場 | あり | 管理人/管理会社 | - |
| 周辺環境 | その他 文京グリーンコート(ショッピングセンター)まで121m その他 大丸ピーコック 文京グリーンコート店(スーパー)まで146m その他 ウエルシア文京グリーンコート店(ドラッグストア)まで210m その他 ぱぱす薬局 千石駅前店(ドラッグストア)まで496m その他 マルエツプチ本駒込二丁目店(スーパー)まで405m その他 まいばすけっと本駒込3丁目店(スーパー)まで788m | ||
| 建物種別 | マンション | 建物構造 | RC(鉄筋コンクリート) |
この部屋の取扱い不動産会社
| 会社名 | 文京トラスティ(株)(SUUMO経由) | ||
|---|---|---|---|
| 所在地 | 東京都文京区小石川1-17-1 エルアージュ小石川1階 | 交通 | - |
| 営業時間 | 10:00~18:00 | 定休日 | 火曜・水曜 |
| 免許番号 | 東京都知事96082 | 取引態様 | 仲介 |
| 不動産会社管理番号 | 100486166466 | 当社管理番号 | 89 |
| 所属団体 | (公社)全日本不動産協会東京都本部会員 | ||
| 公正取引協議会 | (公社)首都圏不動産公正取引協議会加盟 | ||
| 取扱い物件情報 | 物件詳細へ | ||
※各種情報と現状に差異がある場合は、現状優先となります。問い合わせをすることで、より詳しい条件、情報を確認する事ができます。
提供:文京トラスティ(株)(SUUMO経由)
この物件が気になったら掲載期限まであと11日
文京グリーンコート ビュータワー本駒込Bに条件(家賃・エリア)が近い物件一覧
| 写真 | 家賃 管理費等 | 敷金 礼金 | 間取り 専有面積 | 築年数 | 最寄り駅 所在地 | キープ | 詳細 |
|---|---|---|---|---|---|---|---|
マンション GRAN PASEO 田原町(1LDK/5階) | |||||||
![]() | 22万円 2万円 | なし なし | 1LDK 50.75m2 | 築5年 | 東京地下鉄銀座線 田原町駅(東京) 徒歩3分 東京都浅草線 浅草駅(東武・都営・メトロ) 徒歩6分 東京都台東区寿4丁目 | 詳細を見る | |
マンション JMFレジデンス蔵前鳥越(1DK/3階) | |||||||
![]() | 13.5万円 1万円 | 13.5万円 13.5万円 | 1DK 25.88m2 | 築3年 | 東京都浅草線 蔵前駅 徒歩4分 東京都大江戸線 蔵前駅 徒歩9分 総武・中央緩行線 浅草橋駅 徒歩9分 東京都台東区鳥越2丁目 | 詳細を見る | |
マンション パークアクシス神保町(1DK/5階) | |||||||
![]() | 18万円 1万円 | 18万円 なし | 1DK 27.31m2 | 築2年 | 東京都新宿線 神保町駅 徒歩4分 総武・中央緩行線 水道橋駅 徒歩6分 東京地下鉄半蔵門線 九段下駅 徒歩9分 東京都千代田区神田神保町1丁目 | 詳細を見る | |
マンション GRAN PASEO 神田駅前(1K/7階) | |||||||
![]() | 13.4万円 1.5万円 | 13.4万円 13.4万円 | 1K 20.94m2 | 築7年 | 東京都新宿線 岩本町駅 徒歩3分 京浜東北・根岸線 神田駅(東京) 徒歩5分 山手線 神田駅(東京) 徒歩5分 東京都千代田区神田須田町2丁目 | 詳細を見る | |
マンション バウスフラッツ蔵前(1DK/2階) | |||||||
![]() | 13.5万円 1万円 | 13.5万円 なし | 1DK 25.08m2 | 築1年 | 東京都浅草線 蔵前駅 徒歩2分 東京都大江戸線 蔵前駅 徒歩7分 東京都台東区蔵前4丁目 | 詳細を見る | |
マンション ジオエント上野稲荷町(1DK/2階) | |||||||
![]() | 14.1万円 1万円 | 14.1万円 なし | 1DK 25.18m2 | 築1年 | 東京地下鉄銀座線 稲荷町駅(東京) 徒歩7分 つくばエクスプレス 浅草駅(つくばEXP) 徒歩10分 山手線 上野駅 徒歩12分 東京都台東区松が谷1丁目 | 詳細を見る | |
マンション ベルファース神田神保町(1DK/8階) | |||||||
![]() | 17.7万円 1万円 | 17.7万円 なし | 1DK 25.05m2 | 築3年 | 東京地下鉄半蔵門線 神保町駅 徒歩4分 東京都三田線 神保町駅 徒歩4分 総武・中央緩行線 水道橋駅 徒歩8分 東京都千代田区神田神保町1丁目 | 詳細を見る | |
マンション パティオ秋葉原(ワンルーム/7階) | |||||||
![]() | 16万円 1万円 | 16万円 16万円 | ワンルーム 35.91m2 | 築19年 | 東京地下鉄日比谷線 秋葉原駅 徒歩3分 山手線 秋葉原駅 徒歩5分 東京都新宿線 岩本町駅 徒歩5分 東京都千代田区神田佐久間河岸 | 詳細を見る | |









