賃貸マンション
文京グリーンコート ビュータワー本駒込Bの賃貸物件情報(1LDK/20階)
| 家賃 | 管理費等 | 敷金 | 礼金 | 間取り | 専有面積 |
|---|---|---|---|---|---|
| 21万円 | 1.5万円 | 21万円 | 21万円 | 1LDK | 56.89m2 |
入居決定でお祝い金最大100,000円
- 保証金
- -
- 償却・敷引
- -
- 築年数
- 築28年
- 所在階
- 20階
- 向き
- 西
Point
オフィスビル・ショッピングセンター(ピーコック・コンビニ・飲食店・ドラッグストア・郵便局・クリニック等)・フィットネス施設などからなる複合施設「文京グリーンコート」敷地内にある22階建ての住宅棟です。
提供:文京トラスティ(株)(SUUMO経由)

詳細情報 文京グリーンコート ビュータワー本駒込B
物件紹介
文京グリーンコート ビュータワー本駒込Bは都営三田線千石駅から徒歩4分にあり、駅近で通勤通学に便利なマンションです。
このお部屋は2階以上に位置しているので、通行人や周囲の住人からの視線が気になりにくく、防犯面でも安心。建物のエントランスはオートロックがついており、インターホンにはTVモニタもついているため、相手の顔を確認してから来客対応することができます。
人気の角部屋で周囲の居住者の生活音も気になりにくく、また、フローリングのお部屋なのでお掃除もラクラク。キッチンはシステムキッチン仕様になっていますので、お料理好きの方にもぴったり。バス・トイレは別なので、のんびりお風呂タイムも楽しめるでしょう。また、雨の日でも浴室乾燥機を使えば、お洗濯も問題ありません。
通信設備面では、インターネット接続が可能です。また、BSアンテナがありCATVにも対応しているので、おうち時間も充実するでしょう(別途工事、契約料が必要な場合あり)。
建物にはエレベーターがついているので、重い荷物があっても安心。共用部には宅配ボックスが設定されているので、不在の時にも荷物を受け取ることができます。
このお部屋は2階以上に位置しているので、通行人や周囲の住人からの視線が気になりにくく、防犯面でも安心。建物のエントランスはオートロックがついており、インターホンにはTVモニタもついているため、相手の顔を確認してから来客対応することができます。
人気の角部屋で周囲の居住者の生活音も気になりにくく、また、フローリングのお部屋なのでお掃除もラクラク。キッチンはシステムキッチン仕様になっていますので、お料理好きの方にもぴったり。バス・トイレは別なので、のんびりお風呂タイムも楽しめるでしょう。また、雨の日でも浴室乾燥機を使えば、お洗濯も問題ありません。
通信設備面では、インターネット接続が可能です。また、BSアンテナがありCATVにも対応しているので、おうち時間も充実するでしょう(別途工事、契約料が必要な場合あり)。
建物にはエレベーターがついているので、重い荷物があっても安心。共用部には宅配ボックスが設定されているので、不在の時にも荷物を受け取ることができます。
お金・契約の情報
※「-」と表示されているものは、実際は料金が発生するものもございます。詳細はお問い合わせください。
| 家賃 | 21万円 | 管理費・共益費 | 1.5万円 |
|---|---|---|---|
| 敷金 | 21万円 | 礼金 | 21万円 |
| 入居決定でお祝い金最大100,000円 | |||
| 保証金 | - | 償却・敷引 | - |
| 住宅保険料 | - | 更新料 | - |
| 保証会社利用 | 必須 | 保証会社名 | - |
| 保証会社費用 | - | 保証会社備考 | 保証会社利用必 初回保証料:賃料総額の50% 月次保証料:賃料総額の1% |
| 契約形態 | - | 契約期間 | - |
| 入居・引渡期間 | - | 現況 | - |
| 契約備考 | 通勤管理/旧UR平置き駐車場:40000円+税 全長5650×全幅2050×全高2800機械式駐車場:38000円+税 全長5000×全幅1800×全高1550重量1.74t敷金:3か月 合計2.75万円(内訳:鍵交換代2.75万円) 更新料 新賃料1.00ヶ月分 1LDK 二人入居可/子供可/事務所利用不可 普通借家2年 バストイレ別、バルコニー、エアコン、ガスコンロ対応、クロゼット、フローリング、TVインターホン、浴室乾燥機、オートロック、室内洗濯置、シューズボックス、システムキッチン、追焚機能浴室、角住戸、温水洗浄便座、脱衣所、エレベーター、洗面所独立、洗面化粧台、駐輪場、宅配ボックス、CATV、光ファイバー、閑静な住宅地、3口以上コンロ、防犯カメラ、独立型キッチン、オートバス、グリル付、全居室洋室、保証人不要、全居室フローリング、2沿線利用可、エアコン2台、エアコン全室、24時間換気システム、文教地区、エレベーター2基、耐震構造、2駅利用可、3駅以上利用可、3沿線以上利用可、タワー型マンション、24時間ゴミ出し可、敷地内ごみ置き場、地下車庫、日勤管理、都市ガス、玄関収納、BS、保証会社利用可 入居日:'26年3月上旬 | ||
部屋の情報
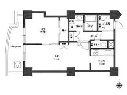
| 間取り | 1LDK | 専有面積 | 56.89m2 |
|---|---|---|---|
| 所在階 / 向き | 20階 / 西 | バルコニー面積 | - |
| 水道 / ガス | - | ||
| 設備 | バス・トイレ別、2階以上、オートロック、テレビドアホン、宅配ボックス、浴室乾燥機、追い焚き、インターネット対応、システムキッチン、エアコン、エレベーター、温水洗浄便座、角部屋、バルコニー、フローリング、洗髪洗面化粧台、タワーマンション、2口コンロ、コンロ:ガス、CATV、BSアンテナ、洗濯機:室内 | ||
| 当社物件ID | 160159930 | ||
建物の情報
| 建物名 | 文京グリーンコート ビュータワー本駒込B | ||
|---|---|---|---|
| 所在地 | 東京都文京区本駒込 | ||
| 交通 | 都営三田線 千石駅 徒歩4分 JR山手線 駒込駅 徒歩11分 東京メトロ南北線 本駒込駅 徒歩12分 | ||
| 階数 | 22階建 | 総戸数 | 242戸 |
| 築年月 | 1998年03月 / 築28年 | エレベーター | あり |
| 駐車場 | なし | バイク置き場 | - |
| 駐輪場 | あり | 管理人/管理会社 | - |
| 周辺環境 | その他 大和郷幼稚園(幼稚園・保育園)まで308m その他 文京区立かごまち保育園(幼稚園・保育園)まで121m その他 文京区立 昭和小学校(小学校)まで529m その他 東京都立小石川中等教育学校(高校・高専)まで176m その他 東洋大学(大学・短大)まで876m その他 文京区立六義公園(公園)まで278m | ||
| 建物種別 | マンション | 建物構造 | RC(鉄筋コンクリート) |
この部屋の取扱い不動産会社
| 会社名 | 文京トラスティ(株)(SUUMO経由) | ||
|---|---|---|---|
| 所在地 | 東京都文京区小石川1-17-1 エルアージュ小石川1階 | 交通 | - |
| 営業時間 | 10:00~18:00 | 定休日 | 火曜・水曜 |
| 免許番号 | 東京都知事96082 | 取引態様 | 仲介 |
| 不動産会社管理番号 | 100481286959 | 当社管理番号 | 89 |
| 所属団体 | (公社)全日本不動産協会東京都本部会員 | ||
| 公正取引協議会 | (公社)首都圏不動産公正取引協議会加盟 | ||
| 取扱い物件情報 | 物件詳細へ | ||
※各種情報と現状に差異がある場合は、現状優先となります。問い合わせをすることで、より詳しい条件、情報を確認する事ができます。
提供:文京トラスティ(株)(SUUMO経由)
この物件が気になったら掲載期限まであと10日
文京グリーンコート ビュータワー本駒込Bに条件(家賃・エリア)が近い物件一覧
| 写真 | 家賃 管理費等 | 敷金 礼金 | 間取り 専有面積 | 築年数 | 最寄り駅 所在地 | キープ | 詳細 |
|---|---|---|---|---|---|---|---|
マンション HYS三ノ輪(1SLDK/2階) | |||||||
![]() | 20.8万円 1.2万円 | 20.8万円 20.8万円 | 1SLDK 51.02m2 | 築8年 | 東京地下鉄日比谷線 三ノ輪駅 徒歩5分 東京都台東区竜泉2丁目 | 詳細を見る | |
マンション グランカーサ上野松が谷(1DK/3階) | |||||||
![]() | 13.6万円 1万円 | なし なし | 1DK 25.24m2 | 築1年 | つくばエクスプレス 浅草駅(つくばEXP) 徒歩7分 東京地下鉄銀座線 稲荷町駅(東京) 徒歩8分 東京地下鉄銀座線 田原町駅(東京) 徒歩9分 東京都台東区松が谷2丁目 | 詳細を見る | |
マンション バウスフラッツ蔵前(1LDK/9階) | |||||||
![]() | 16.6万円 1万円 | 16.6万円 なし | 1LDK 30.4m2 | 築1年 | 東京都浅草線 蔵前駅 徒歩2分 東京都大江戸線 蔵前駅 徒歩7分 東京都台東区蔵前4丁目 | 詳細を見る | |
マンション レジディア上野御徒町(ワンルーム/3階) | |||||||
![]() | 13.3万円 2万円 | なし なし | ワンルーム 30.07m2 | 築20年 | 東京地下鉄日比谷線 仲御徒町駅 徒歩2分 山手線 御徒町駅 徒歩4分 東京地下鉄銀座線 上野広小路駅 徒歩7分 東京都台東区台東4丁目 | 詳細を見る | |
マンション プラウドフラット文京千駄木(ワンルーム/10階) | |||||||
![]() | 14万円 1万円 | 14万円 14万円 | ワンルーム 25.81m2 | 築3年 | 山手線 田端駅 徒歩10分 山手線 西日暮里駅 徒歩11分 東京地下鉄千代田線 千駄木駅 徒歩11分 東京都文京区千駄木4丁目 | 詳細を見る | |
マンション ルーチェ六義園(1K/1階) | |||||||
![]() | 14万円 なし | 14万円 14万円 | 1K 28.92m2 | 築5年 | 山手線 巣鴨駅 徒歩6分 東京都三田線 千石駅 徒歩7分 東京都文京区本駒込6丁目 | 詳細を見る | |
マンション THEATER COURT本駒込(1K/3階) | |||||||
![]() | 12.8万円 1万円 | 12.8万円 なし | 1K 26m2 | 築3年 | 東京地下鉄南北線 本駒込駅 徒歩6分 東京地下鉄南北線 駒込駅 徒歩10分 東京都三田線 千石駅 徒歩10分 東京都文京区本駒込3丁目 | 詳細を見る | |
マンション アーバネックス蔵前レジデンス(1LDK/3階) | |||||||
![]() | 14.8万円 1.2万円 | 14.8万円 なし | 1LDK 26.46m2 | 築3年 | 東京都浅草線 蔵前駅 徒歩3分 総武・中央緩行線 浅草橋駅 徒歩8分 東京都大江戸線 蔵前駅 徒歩8分 東京都台東区蔵前4丁目 | 詳細を見る | |









