賃貸マンション
文京グリーンコート ビュータワー本駒込Bの賃貸物件情報(1LDK/20階)
| 家賃 | 管理費等 | 敷金 | 礼金 | 間取り | 専有面積 |
|---|---|---|---|---|---|
| 21万円 | 1.5万円 | 21万円 | 21万円 | 1LDK | 56.89m2 |
入居決定でお祝い金最大100,000円
- 保証金
- -
- 償却・敷引
- -
- 築年数
- 築28年
- 所在階
- 20階
- 向き
- 西
Point
共用部には宅配ボックス・ゴミ出し24時間OKなど様々な設備やサービスが揃っているので便利です。セキュリティ面は、オートロック・TVインターホンなどを備え付けているので安心して暮らせます。
提供:東京子育て不動産(株)(SUUMO経由)

詳細情報 文京グリーンコート ビュータワー本駒込B
物件紹介
文京グリーンコート ビュータワー本駒込Bは都営三田線千石駅から徒歩4分にあり、駅近で通勤通学に便利なマンションです。
このお部屋は2階以上に位置しているので、通行人や周囲の住人からの視線が気になりにくく、防犯面でも安心。建物のエントランスはオートロックがついており、インターホンにはTVモニタもついているため、相手の顔を確認してから来客対応することができます。
人気の南向きのお部屋。また、フローリングなのでお掃除もラクラク。キッチンはシステムキッチン仕様になっていますので、お料理好きの方にもぴったり。バス・トイレは別なので、のんびりお風呂タイムも楽しめるでしょう。また、雨の日でも浴室乾燥機を使えば、お洗濯も問題ありません。
通信設備面では、インターネット接続が可能です。また、BSアンテナ・CSアンテナがありCATVにも対応しているので、おうち時間も充実するでしょう(別途工事、契約料が必要な場合あり)。
建物にはエレベーターがついているので、重い荷物があっても安心。共用部には宅配ボックスが設定されているので、不在の時にも荷物を受け取ることができます。
このお部屋は2階以上に位置しているので、通行人や周囲の住人からの視線が気になりにくく、防犯面でも安心。建物のエントランスはオートロックがついており、インターホンにはTVモニタもついているため、相手の顔を確認してから来客対応することができます。
人気の南向きのお部屋。また、フローリングなのでお掃除もラクラク。キッチンはシステムキッチン仕様になっていますので、お料理好きの方にもぴったり。バス・トイレは別なので、のんびりお風呂タイムも楽しめるでしょう。また、雨の日でも浴室乾燥機を使えば、お洗濯も問題ありません。
通信設備面では、インターネット接続が可能です。また、BSアンテナ・CSアンテナがありCATVにも対応しているので、おうち時間も充実するでしょう(別途工事、契約料が必要な場合あり)。
建物にはエレベーターがついているので、重い荷物があっても安心。共用部には宅配ボックスが設定されているので、不在の時にも荷物を受け取ることができます。
お金・契約の情報
※「-」と表示されているものは、実際は料金が発生するものもございます。詳細はお問い合わせください。
| 家賃 | 21万円 | 管理費・共益費 | 1.5万円 |
|---|---|---|---|
| 敷金 | 21万円 | 礼金 | 21万円 |
| 入居決定でお祝い金最大100,000円 | |||
| 保証金 | - | 償却・敷引 | - |
| 住宅保険料 | - | 更新料 | - |
| 保証会社利用 | 必須 | 保証会社名 | - |
| 保証会社費用 | - | 保証会社備考 | 保証会社利用必 初回保証料:総賃料×50% |
| 契約形態 | - | 契約期間 | - |
| 入居・引渡期間 | - | 現況 | - |
| 契約備考 | 通勤管理 1LDK 二人入居可/子供可 普通借家2年 損保【要】 バストイレ別、バルコニー、エアコン、ガスコンロ対応、クロゼット、フローリング、TVインターホン、浴室乾燥機、オートロック、室内洗濯置、陽当り良好、シューズボックス、システムキッチン、南向き、追焚機能浴室、温水洗浄便座、エレベーター、洗面所独立、駐輪場、宅配ボックス、CATV、光ファイバー、BS・CS、3口以上コンロ、防犯カメラ、全居室洋室、保証人不要、バイク置場、エアコン2台、ネット専用回線、眺望良好、トランクルーム、保証金不要、南面リビング、エレベーター2基、耐火構造、耐震構造、駐車3台可、2駅利用可、3駅以上利用可、3沿線以上利用可、駅徒歩5分以内、タワー型マンション、高層階、24時間ゴミ出し可、敷地内ごみ置き場、日勤管理、LDK12畳以上、和室、全居室6畳以上、都市ガス、BS、年内入居可、年度内入居可、保証会社利用可、通風良好 入居日:'26年3月上旬 | ||
部屋の情報
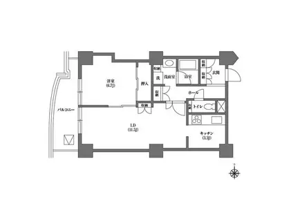
| 間取り | 1LDK | 専有面積 | 56.89m2 |
|---|---|---|---|
| 所在階 / 向き | 20階 / 西 | バルコニー面積 | - |
| 水道 / ガス | - | ||
| 設備 | バス・トイレ別、2階以上、オートロック、テレビドアホン、宅配ボックス、浴室乾燥機、追い焚き、インターネット対応、システムキッチン、エアコン、エレベーター、温水洗浄便座、南向き、バルコニー、フローリング、トランクルーム、洗髪洗面化粧台、タワーマンション、2口コンロ、コンロ:ガス、CATV、CSアンテナ、BSアンテナ、洗濯機:室内 | ||
| 当社物件ID | 160118072 | ||
建物の情報
| 建物名 | 文京グリーンコート ビュータワー本駒込B | ||
|---|---|---|---|
| 所在地 | 東京都文京区本駒込 | ||
| 交通 | 都営三田線 千石駅 徒歩4分 東京メトロ南北線 本駒込駅 徒歩12分 JR山手線 巣鴨駅 徒歩16分 | ||
| 階数 | 22階建 | 総戸数 | - |
| 築年月 | 1998年01月 / 築28年 | エレベーター | あり |
| 駐車場 | 空有 41800円 | バイク置き場 | あり |
| 駐輪場 | あり | 管理人/管理会社 | - |
| 周辺環境 | その他 文京区立昭和小学校(小学校)まで451m その他 広尾学園小石川中学校(中学校)まで92m その他 ピーコックストア 文京グリーンコート店(スーパー)まで189m その他 セブンイレブン 文京グリーンコート店(コンビニ)まで213m その他 ベネッセかごまち保育園(幼稚園・保育園)まで373m その他 デニーズ千石店(飲食店)まで446m | ||
| 建物種別 | マンション | 建物構造 | RC(鉄筋コンクリート) |
この部屋の取扱い不動産会社
| 会社名 | 東京子育て不動産(株)(SUUMO経由) | ||
|---|---|---|---|
| 所在地 | 東京都文京区千石1-27-12 1階 | 交通 | - |
| 営業時間 | 9時~20時 | 定休日 | 不定休 |
| 免許番号 | 東京都知事111581 | 取引態様 | 仲介 |
| 不動産会社管理番号 | 100480074276 | 当社管理番号 | 89 |
| 所属団体 | (公社)全日本不動産協会東京都本部会員 | ||
| 公正取引協議会 | (公社)首都圏不動産公正取引協議会加盟 | ||
| 取扱い物件情報 | 物件詳細へ | ||
※各種情報と現状に差異がある場合は、現状優先となります。問い合わせをすることで、より詳しい条件、情報を確認する事ができます。
提供:東京子育て不動産(株)(SUUMO経由)
この物件が気になったら掲載期限まであと10日
文京グリーンコート ビュータワー本駒込Bに条件(家賃・エリア)が近い物件一覧
| 写真 | 家賃 管理費等 | 敷金 礼金 | 間取り 専有面積 | 築年数 | 最寄り駅 所在地 | キープ | 詳細 |
|---|---|---|---|---|---|---|---|
マンション Dクラディアイヴァン御茶ノ水(1DK/5階) | |||||||
![]() | 13.5万円 1.5万円 | 13.5万円 13.5万円 | 1DK 32.08m2 | 築22年 | 総武・中央緩行線 御茶ノ水駅 徒歩7分 東京地下鉄丸ノ内線 御茶ノ水駅 徒歩7分 東京地下鉄銀座線 末広町駅(東京) 徒歩10分 東京都文京区湯島2丁目 | 詳細を見る | |
マンション パークアクシス御茶ノ水ステージ(1K/5階) | |||||||
![]() | 15.6万円 8,000円 | 15.6万円 15.6万円 | 1K 29.7m2 | 築20年 | 東京地下鉄銀座線 末広町駅(東京) 徒歩6分 中央本線 御茶ノ水駅 徒歩8分 山手線 秋葉原駅 徒歩13分 東京都文京区湯島3丁目 | 詳細を見る | |
マンション LOG浅草橋(1LDK/9階) | |||||||
![]() | 24.9万円 1.1万円 | なし 24.9万円 | 1LDK 41.41m2 | 築2年 | 総武・中央緩行線 浅草橋駅 徒歩4分 山手線 秋葉原駅 徒歩10分 東京都浅草線 蔵前駅 徒歩10分 東京都台東区浅草橋2丁目 | 詳細を見る | |
マンション ルフォンプログレ本郷三丁目(1DK/3階) | |||||||
![]() | 16.2万円 1万円 | 16.2万円 なし | 1DK 26.78m2 | 築1年 | 東京都大江戸線 本郷三丁目駅 徒歩4分 東京地下鉄丸ノ内線 本郷三丁目駅 徒歩6分 東京地下鉄千代田線 湯島駅 徒歩10分 東京都文京区本郷3丁目 | 詳細を見る | |
マンション バウスフラッツ蔵前(1LDK/13階) | |||||||
![]() | 19.4万円 1万円 | 19.4万円 なし | 1LDK 34.86m2 | 築1年 | 東京都浅草線 蔵前駅 徒歩2分 東京都大江戸線 蔵前駅 徒歩7分 東京都台東区蔵前4丁目 | 詳細を見る | |
マンション プラウドフラット上野松が谷(1LDK/2階) | |||||||
![]() | 18.3万円 1.2万円 | 18.3万円 18.3万円 | 1LDK 40.18m2 | 築5年 | 東京地下鉄日比谷線 入谷駅(東京) 徒歩6分 つくばエクスプレス 浅草駅(つくばEXP) 徒歩10分 山手線 上野駅 徒歩15分 東京都台東区松が谷4丁目 | 詳細を見る | |
マンション パークアクシス浅草橋2(1LDK/2階) | |||||||
![]() | 19.4万円 1.5万円 | 19.4万円 19.4万円 | 1LDK 40.27m2 | 築9年 | 総武・中央緩行線 浅草橋駅 徒歩2分 東京都浅草線 浅草橋駅 徒歩2分 総武本線 馬喰町駅 徒歩6分 東京都台東区柳橋1丁目 | 詳細を見る | |
マンション メトロステージ上野(1LDK/7階) | |||||||
![]() | 21.2万円 1万円 | 21.2万円 21.2万円 | 1LDK 51.83m2 | 築13年 | JR山手線 上野駅 徒歩6分 東京メトロ日比谷線 入谷駅(東京) 徒歩6分 東京メトロ銀座線 稲荷町駅(東京) 徒歩10分 東京都台東区下谷 | 詳細を見る | |









