賃貸マンション
プライムメゾン市谷山伏町の賃貸物件情報(1K/4階)
| 家賃 | 管理費等 | 敷金 | 礼金 | 間取り | 専有面積 |
|---|---|---|---|---|---|
| 12.6万円 | 1万円 | 12.6万円 | なし | 1K | 26.29m2 |
入居決定でお祝い金最大100,000円
- 保証金
- -
- 償却・敷引
- -
- 築年数
- 築11年
- 所在階
- 4階
- 向き
- 南
Point
都心の中で歴史や風情を感じることのできる町、山伏町。当マンションは都営大江戸線牛込柳町駅から徒歩3分と好立地に所在する積水ハウスの賃貸住宅プライムメゾンシリーズ。
提供:シャーメゾンショップ (株)イチイ高田馬場店(SUUMO経由)

詳細情報 プライムメゾン市谷山伏町
物件紹介
プライムメゾン市谷山伏町は都営大江戸線牛込柳町駅から徒歩3分にあり、駅近で通勤通学に便利なマンションです。
このお部屋は2階以上に位置しているので、通行人や周囲の住人からの視線が気になりにくく、防犯面でも安心。建物のエントランスはオートロックがついており、インターホンにはTVモニタもついているため、相手の顔を確認してから来客対応することができます。
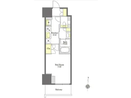
人気の南向き・フローリングのお部屋。角部屋でもあるため、周囲の居住者の生活音も気になりにくい場所です。室内にはウォークインクローゼットがありますので、たくさんの荷物も効率的に収納ができます。キッチンはシステムキッチン仕様になっていますので、お料理好きの方にもぴったり。バス・トイレは別なので、のんびりお風呂タイムも楽しめるでしょう。また、雨の日でも浴室乾燥機を使えば、お洗濯も問題ありません。
通信設備面では、インターネットが無料で使えるので、月々の出費を抑えられるのも魅力です。また、BSアンテナがありCATVにも対応しているので、おうち時間も充実するでしょう(別途工事、BS・CATVの契約料等が必要な場合あり)。
建物にはエレベーターがついているので、重い荷物があっても安心。共用部には宅配ボックスが設定されているので、不在の時にも荷物を受け取ることができます。
このお部屋は2階以上に位置しているので、通行人や周囲の住人からの視線が気になりにくく、防犯面でも安心。建物のエントランスはオートロックがついており、インターホンにはTVモニタもついているため、相手の顔を確認してから来客対応することができます。
人気の南向き・フローリングのお部屋。角部屋でもあるため、周囲の居住者の生活音も気になりにくい場所です。室内にはウォークインクローゼットがありますので、たくさんの荷物も効率的に収納ができます。キッチンはシステムキッチン仕様になっていますので、お料理好きの方にもぴったり。バス・トイレは別なので、のんびりお風呂タイムも楽しめるでしょう。また、雨の日でも浴室乾燥機を使えば、お洗濯も問題ありません。
通信設備面では、インターネットが無料で使えるので、月々の出費を抑えられるのも魅力です。また、BSアンテナがありCATVにも対応しているので、おうち時間も充実するでしょう(別途工事、BS・CATVの契約料等が必要な場合あり)。
建物にはエレベーターがついているので、重い荷物があっても安心。共用部には宅配ボックスが設定されているので、不在の時にも荷物を受け取ることができます。
お金・契約の情報
※「-」と表示されているものは、実際は料金が発生するものもございます。詳細はお問い合わせください。
| 家賃 | 12.6万円 | 管理費・共益費 | 1万円 |
|---|---|---|---|
| 敷金 | 12.6万円 | 礼金 | なし |
| 入居決定でお祝い金最大100,000円 | |||
| 保証金 | - | 償却・敷引 | - |
| 住宅保険料 | - | 更新料 | - |
| 保証会社利用 | 必須 | 保証会社名 | - |
| 保証会社費用 | - | 保証会社備考 | 保証会社利用必 【らくらくパートナー(オリコフォレント)】 初回家賃引落時契約事務手数料:33000円 月額保証料:総家賃等の2% |
| 契約形態 | - | 契約期間 | - |
| 入居・引渡期間 | 相談 | 現況 | - |
| 契約備考 | 都営新宿線 曙橋駅徒歩12分/牛込警察署まで378m/通勤管理/■駐輪場6600円税込(2年一括払い、途中返金なし)※空き要確認■インターネット利用無料(LANケーブル、WiFiルーターは借主様でご用意いただく必要があります。別会社の回線の個別引込不可)■退室時にハウスクリーニング代がかかります。■解約2ヶ月前通知。■短期解約違約金有。※契開始日より1年未満での解約の場合:1ヶ月分。 合計2.75万円(内訳:鍵交換代27500円(税込)) ●シャーメゾンライフSUPPORT24必須加入(月額1320円税込。)●退室時、借主様にハウスクリーニング代として55000円(税込)をご負担いただきます。●更新時(2年毎)には、更新料として新賃料の1ヶ月分がかかります。●短期解約違約金設定有り(1年未満で解約の場合、賃料の1ヶ月分)。 1K 単身者可/子供不可/事務所利用不可/ルームシェア不可 損保【要】 バストイレ別、バルコニー、エアコン、クロゼット、フローリング、TVインターホン、浴室乾燥機、オートロック、室内洗濯置、シューズボックス、システムキッチン、南向き、温水洗浄便座、脱衣所、エレベーター、洗面所独立、洗面化粧台、2口コンロ、駐輪場、宅配ボックス、礼金不要、防犯カメラ、全居室洋室、保証人不要、単身者相談、仲介手数料不要、敷金1ヶ月、バイク置場、全居室フローリング、ディンプルキー、ネット使用料不要、ダブルロックキー、24時間換気システム、3駅以上利用可、3沿線以上利用可、駅徒歩5分以内、24時間ゴミ出し可、敷地内ごみ置き場、日勤管理、当社管理物件、全居室6畳以上、都市ガス、南面バルコニー、玄関収納、保証会社利用可、IT重説対応物件、初期費用カード決済可 | ||
部屋の情報
| 間取り | 1K | 専有面積 | 26.29m2 |
|---|---|---|---|
| 所在階 / 向き | 4階 / 南 | バルコニー面積 | - |
| 水道 / ガス | - | ||
| 設備 | バス・トイレ別、2階以上、オートロック、テレビドアホン、宅配ボックス、浴室乾燥機、インターネット対応、システムキッチン、エアコン、エレベーター、温水洗浄便座、南向き、バルコニー、フローリング、洗髪洗面化粧台、2口コンロ、インターネット使用料無料、洗濯機:室内 | ||
| 当社物件ID | 19313174 | ||
建物の情報
| 建物名 | プライムメゾン市谷山伏町 | ||
|---|---|---|---|
| 所在地 | 東京都新宿区市谷山伏町 | ||
| 交通 | 都営大江戸線 牛込柳町駅 徒歩3分 東京メトロ東西線 神楽坂駅 徒歩12分 東京メトロ東西線 早稲田駅(メトロ) 徒歩13分 | ||
| 階数 | 地下2地上13階建 | 総戸数 | 118戸 |
| 築年月 | 2015年10月 / 築11年 | エレベーター | あり |
| 駐車場 | なし | バイク置き場 | あり |
| 駐輪場 | あり | 管理人/管理会社 | - |
| 周辺環境 | その他 まいばすけっと牛込柳町駅東店(スーパー)まで288m その他 よしや柳町店(スーパー)まで203m その他 セブンイレブン市谷柳町店(コンビニ)まで74m その他 ファミリーマート牛込柳町駅前店(コンビニ)まで210m その他 くすりの福太郎市谷柳町店(ドラッグストア)まで247m その他 サイゼリヤ牛込柳町店(飲食店)まで203m | ||
| 建物種別 | マンション | 建物構造 | RC(鉄筋コンクリート) |
この部屋の取扱い不動産会社
| 会社名 | シャーメゾンショップ (株)イチイ高田馬場店(SUUMO経由) | ||
|---|---|---|---|
| 所在地 | 東京都新宿区高田馬場1-17-15 羽深ビル4階 | 交通 | - |
| 営業時間 | 10:00~18:30 | 定休日 | 水曜日、第1~第3火曜日 |
| 免許番号 | 東京都知事39368 | 取引態様 | 仲介 |
| 不動産会社管理番号 | 100253287812 | 当社管理番号 | 89 |
| 所属団体 | (公社)全日本不動産協会東京都本部会員 | ||
| 公正取引協議会 | (公社)首都圏不動産公正取引協議会加盟 | ||
| 取扱い物件情報 | 物件詳細へ | ||
※各種情報と現状に差異がある場合は、現状優先となります。問い合わせをすることで、より詳しい条件、情報を確認する事ができます。
提供:シャーメゾンショップ (株)イチイ高田馬場店(SUUMO経由)
この物件が気になったら掲載期限まであと11日
プライムメゾン市谷山伏町に条件(家賃・エリア)が近い物件一覧
| 写真 | 家賃 管理費等 | 敷金 礼金 | 間取り 専有面積 | 築年数 | 最寄り駅 所在地 | キープ | 詳細 |
|---|---|---|---|---|---|---|---|
マンション ザ・プレミアムスイート中野鷺宮(1K/2階) | |||||||
![]() | 8.9万円 7,000円 | なし 17.8万円 | 1K 26m2 | 築12年 | 西武新宿線 都立家政駅 徒歩6分 西武新宿線 鷺ノ宮駅 徒歩9分 西武新宿線 野方駅 徒歩14分 東京都中野区鷺宮 | 詳細を見る | |
マンション 白金高輪レジデンス(1K/5階) | |||||||
![]() | 14.8万円 1万円 | なし なし | 1K 25.5m2 | 築18年 | 東京メトロ南北線 白金高輪駅 徒歩5分 都営三田線 白金高輪駅 徒歩5分 東京メトロ南北線 白金台駅 徒歩11分 東京都港区白金 | 詳細を見る | |
マンション ビルトモア西新宿(1K/4階) | |||||||
![]() | 8.8万円 1万円 | 8.8万円 8.8万円 | 1K 23.9m2 | 築23年 | 京王新線 初台駅 徒歩6分 都営大江戸線 西新宿五丁目駅 徒歩8分 JR山手線 新宿駅 徒歩17分 東京都新宿区西新宿 | 詳細を見る | |
マンション RELUXIA中野鷺宮(1K/7階) | |||||||
![]() | 10.4万円 1.5万円 | なし 10.4万円 | 1K 25.7m2 | 築2年 | 西武新宿線 鷺ノ宮駅 徒歩6分 西武新宿線 都立家政駅 徒歩14分 西武新宿線 下井草駅 徒歩19分 東京都中野区鷺宮 | 詳細を見る | |
マンション リーブルグラント西新宿(1K/4階) | |||||||
![]() | 12.7万円 1.5万円 | 12.7万円 19.05万円 | 1K 25.37m2 | 築6年 | 東京メトロ丸ノ内線 西新宿駅 徒歩5分 JR中央線 大久保駅(東京) 徒歩9分 西武新宿線 西武新宿駅 徒歩11分 東京都新宿区西新宿 | 詳細を見る | |
マンション ル リアン(2LDK/2階) | |||||||
![]() | 19.8万円 6,500円 | なし 39.6万円 | 2LDK 65.24m2 | 築5年 | JR中央線 阿佐ケ谷駅 徒歩15分 JR総武線 阿佐ケ谷駅 徒歩15分 JR中央線 高円寺駅 徒歩18分 東京都中野区大和町 | 詳細を見る | |
マンション シーズンフラッツ高田馬場リバーサイドノース(1K/4階) | |||||||
![]() | 13万円 1万円 | なし なし | 1K 25.39m2 | 築4年 | 西武新宿線 下落合駅(東京) 徒歩7分 東京メトロ東西線 落合駅 徒歩11分 JR山手線 高田馬場駅 徒歩13分 東京都新宿区高田馬場 | 詳細を見る | |
マンション KDXレジデンス高輪(1LDK/2階) | |||||||
![]() | 16.4万円 1万円 | 16.4万円 16.4万円 | 1LDK 37.03m2 | 築19年 | 都営浅草線 高輪台駅 徒歩7分 JR山手線 品川駅 徒歩14分 都営三田線 白金高輪駅 徒歩14分 東京都港区高輪 | 詳細を見る | |









