賃貸マンション
プライムメゾン市谷山伏町の賃貸物件情報(1LDK/6階)
| 家賃 | 管理費等 | 敷金 | 礼金 | 間取り | 専有面積 |
|---|---|---|---|---|---|
| 22.7万円 | 1.5万円 | 22.7万円 | なし | 1LDK | 50.03m2 |
入居決定でお祝い金最大100,000円
- 保証金
- -
- 償却・敷引
- -
- 築年数
- 築11年
- 所在階
- 6階
- 向き
- 東
Point
都心の中で歴史や風情を感じることのできる町、山伏町。当マンションは都営大江戸線牛込柳町駅から徒歩3分と好立地に所在する積水ハウスの賃貸住宅プライムメゾンシリーズ。
提供:シャーメゾンショップ (株)イチイ高田馬場店(SUUMO経由)

詳細情報 プライムメゾン市谷山伏町
物件紹介
プライムメゾン市谷山伏町は都営大江戸線牛込柳町駅から徒歩3分にあり、駅近で通勤通学に便利なマンションです。
このお部屋は2階以上に位置しているので、通行人や周囲の住人からの視線が気になりにくく、防犯面でも安心。建物のエントランスはオートロックがついており、インターホンにはTVモニタもついているため、相手の顔を確認してから来客対応することができます。
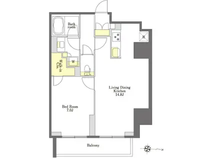
フローリングのお部屋なのでお掃除もラクラク。室内には人気のウォークインクローゼットがありますので、たくさんの荷物も効率的に収納ができます。キッチンはシステムキッチン仕様になっていますので、お料理好きの方にもぴったり。バス・トイレは別なので、のんびりお風呂タイムも楽しめるでしょう。また、雨の日でも浴室乾燥機を使えば、お洗濯も問題ありません。
通信設備面では、インターネットが無料で使えるので、月々の出費を抑えられるのも魅力です(別途工事等が必要な場合あり)。
建物にはエレベーターがついているので、重い荷物があっても安心。共用部には宅配ボックスが設定されているので、不在の時にも荷物を受け取ることができます。
このお部屋は2階以上に位置しているので、通行人や周囲の住人からの視線が気になりにくく、防犯面でも安心。建物のエントランスはオートロックがついており、インターホンにはTVモニタもついているため、相手の顔を確認してから来客対応することができます。
フローリングのお部屋なのでお掃除もラクラク。室内には人気のウォークインクローゼットがありますので、たくさんの荷物も効率的に収納ができます。キッチンはシステムキッチン仕様になっていますので、お料理好きの方にもぴったり。バス・トイレは別なので、のんびりお風呂タイムも楽しめるでしょう。また、雨の日でも浴室乾燥機を使えば、お洗濯も問題ありません。
通信設備面では、インターネットが無料で使えるので、月々の出費を抑えられるのも魅力です(別途工事等が必要な場合あり)。
建物にはエレベーターがついているので、重い荷物があっても安心。共用部には宅配ボックスが設定されているので、不在の時にも荷物を受け取ることができます。
お金・契約の情報
※「-」と表示されているものは、実際は料金が発生するものもございます。詳細はお問い合わせください。
| 家賃 | 22.7万円 | 管理費・共益費 | 1.5万円 |
|---|---|---|---|
| 敷金 | 22.7万円 | 礼金 | なし |
| 入居決定でお祝い金最大100,000円 | |||
| 保証金 | - | 償却・敷引 | - |
| 住宅保険料 | - | 更新料 | - |
| 保証会社利用 | 必須 | 保証会社名 | - |
| 保証会社費用 | - | 保証会社備考 | 保証会社利用必 【らくらくパートナー(オリコフォレント)】 初回家賃引落時契約事務手数料:33000円 月額保証料:総家賃等の2% |
| 契約形態 | - | 契約期間 | - |
| 入居・引渡期間 | 相談 | 現況 | - |
| 契約備考 | 都営大江戸線 牛込神楽坂駅徒歩9分/牛込警察署まで381m/通勤管理/■駐輪場6600円税込(2年一括払い、途中返金なし)※空き要確認■インターネット利用無料(LANケーブル、WiFiルーターは借主様でご用意いただく必要があります。別会社の回線の個別引込不可)■退室時にハウスクリーニング代がかかります。■解約2ヶ月前通知。■短期解約違約金有。※契開始日より1年未満での解約の場合:1ヶ月分。 合計2.75万円(内訳:鍵交換代27500円(税込)) ●シャーメゾンライフSUPPORT24必須加入(月額1320円税込。)●退室時、借主様にハウスクリーニング代として86020円(税込)をご負担いただきます。●更新時(2年毎)には、更新料として新賃料の1ヶ月分がかかります。●短期解約違約金設定有り(1年未満で解約の場合、賃料の1ヶ月分)。 1LDK 単身者可/二人入居可/子供可/事務所利用不可 損保【要】 バストイレ別、バルコニー、エアコン、フローリング、TVインターホン、浴室乾燥機、オートロック、室内洗濯置、シューズボックス、システムキッチン、追焚機能浴室、温水洗浄便座、脱衣所、エレベーター、洗面所独立、洗面化粧台、駐輪場、宅配ボックス、礼金不要、3口以上コンロ、防犯カメラ、グリル付、全居室洋室、ウォークインクロゼット、保証人不要、単身者相談、仲介手数料不要、敷金1ヶ月、二人入居相談、バイク置場、全居室フローリング、エアコン2台、ディンプルキー、ネット使用料不要、エアコン全室、ダブルロックキー、24時間換気システム、3駅以上利用可、3沿線以上利用可、駅徒歩5分以内、24時間ゴミ出し可、敷地内ごみ置き場、日勤管理、当社管理物件、LDK12畳以上、全居室6畳以上、都市ガス、玄関収納、保証会社利用可、IT重説対応物件、初期費用カード決済可 | ||
部屋の情報
| 間取り | 1LDK | 専有面積 | 50.03m2 |
|---|---|---|---|
| 所在階 / 向き | 6階 / 東 | バルコニー面積 | - |
| 水道 / ガス | - | ||
| 設備 | バス・トイレ別、2階以上、オートロック、テレビドアホン、宅配ボックス、浴室乾燥機、ウォークインクローゼット、追い焚き、インターネット対応、システムキッチン、エアコン、エレベーター、温水洗浄便座、バルコニー、フローリング、洗髪洗面化粧台、2口コンロ、インターネット使用料無料、洗濯機:室内 | ||
| 当社物件ID | 19306965 | ||
建物の情報
| 建物名 | プライムメゾン市谷山伏町 | ||
|---|---|---|---|
| 所在地 | 東京都新宿区市谷山伏町 | ||
| 交通 | 都営大江戸線 牛込柳町駅 徒歩3分 都営新宿線 曙橋駅 徒歩12分 東京メトロ東西線 神楽坂駅 徒歩13分 | ||
| 階数 | 地下2地上13階建 | 総戸数 | 118戸 |
| 築年月 | 2015年10月 / 築11年 | エレベーター | あり |
| 駐車場 | なし | バイク置き場 | あり |
| 駐輪場 | あり | 管理人/管理会社 | - |
| 周辺環境 | その他 まいばすけっと牛込柳町駅東店(スーパー)まで294m その他 よしや柳町店(スーパー)まで205m その他 セブンイレブン市谷柳町店(コンビニ)まで76m その他 ファミリーマート牛込柳町駅前店(コンビニ)まで225m その他 くすりの福太郎市谷柳町店(ドラッグストア)まで246m その他 サイゼリヤ牛込柳町店(飲食店)まで205m | ||
| 建物種別 | マンション | 建物構造 | RC(鉄筋コンクリート) |
この部屋の取扱い不動産会社
| 会社名 | シャーメゾンショップ (株)イチイ高田馬場店(SUUMO経由) | ||
|---|---|---|---|
| 所在地 | 東京都新宿区高田馬場1-17-15 羽深ビル4階 | 交通 | - |
| 営業時間 | 10:00~18:30 | 定休日 | 水曜日、第1~第3火曜日 |
| 免許番号 | 東京都知事39368 | 取引態様 | 仲介 |
| 不動産会社管理番号 | 100198026171 | 当社管理番号 | 89 |
| 所属団体 | (公社)全日本不動産協会東京都本部会員 | ||
| 公正取引協議会 | (公社)首都圏不動産公正取引協議会加盟 | ||
| 取扱い物件情報 | 物件詳細へ | ||
※各種情報と現状に差異がある場合は、現状優先となります。問い合わせをすることで、より詳しい条件、情報を確認する事ができます。
提供:シャーメゾンショップ (株)イチイ高田馬場店(SUUMO経由)
この物件が気になったら掲載期限まであと12日
プライムメゾン市谷山伏町に条件(家賃・エリア)が近い物件一覧
| 写真 | 家賃 管理費等 | 敷金 礼金 | 間取り 専有面積 | 築年数 | 最寄り駅 所在地 | キープ | 詳細 |
|---|---|---|---|---|---|---|---|
マンション グランパセオ市谷仲之町(1DK/1階) | |||||||
![]() | 16万円 1.5万円 | なし なし | 1DK 30.09m2 | 築3年 | 都営新宿線 曙橋駅 徒歩6分 都営大江戸線 牛込柳町駅 徒歩8分 都営大江戸線 若松河田駅 徒歩10分 東京都新宿区市谷仲之町 | 詳細を見る | |
マンション ボヌール小石川α(1LDK/4階) | |||||||
![]() | 22.9万円 1万円 | 22.9万円 22.9万円 | 1LDK 42.18m2 | 築4年 | 都営三田線 春日駅(東京) 徒歩5分 東京メトロ丸ノ内線 後楽園駅 徒歩6分 東京都文京区小石川 | 詳細を見る | |
マンション ウェルスクエア新中野II(1LDK/3階) | |||||||
![]() | 16.5万円 1万円 | 16.5万円 なし | 1LDK 31.96m2 | 築1年 | 東京メトロ丸ノ内線 新中野駅 徒歩7分 東京メトロ丸ノ内線 東高円寺駅 徒歩8分 東京メトロ東西線 中野駅(東京) 徒歩12分 東京都中野区中央 | 詳細を見る | |
マンション レガシア池袋立教西(1LDK/3階) | |||||||
![]() | 17.3万円 1万円 | 17.3万円 なし | 1LDK 32.71m2 | 築1年 | 東京地下鉄有楽町線 要町駅 徒歩7分 山手線 池袋駅 徒歩9分 東京都豊島区西池袋3丁目 | 詳細を見る | |
アパート 新日桜2号マンション(3DK/2階) | |||||||
![]() | 21.5万円 5,000円 | 21.5万円 なし | 3DK 52.5m2 | 築10年 | JR総武線 東中野駅 徒歩6分 東京メトロ東西線 落合駅 徒歩9分 JR中央線 中野駅(東京) 徒歩14分 東京都中野区中野 | 詳細を見る | |
マンション YOTSUYARESIDENCE(ワンルーム/9階) | |||||||
![]() | 16.9万円 7,000円 | 16.9万円 16.9万円 | ワンルーム 27.38m2 | 築17年 | 東京地下鉄丸ノ内線 四谷三丁目駅 徒歩5分 東京都新宿区四谷2丁目 | 詳細を見る | |
マンション レジディア広尾II(1K/2階) | |||||||
![]() | 15万円 1.5万円 | なし なし | 1K 21.25m2 | 築21年 | 東京メトロ日比谷線 広尾駅 徒歩7分 JR山手線 恵比寿駅 徒歩13分 東京メトロ南北線 白金高輪駅 徒歩20分 東京都渋谷区広尾 | 詳細を見る | |
マンション オルソ東新宿(1K/5階) | |||||||
![]() | 14.5万円 1万円 | なし 29万円 | 1K 31.45m2 | 築7年 | 都営大江戸線 東新宿駅 徒歩1分 西武新宿線 西武新宿駅 徒歩12分 JR山手線 新大久保駅 徒歩13分 東京都新宿区新宿 | 詳細を見る | |







/105x80-f1-q70-wp1)

