賃貸マンション
プレサンス新深江ディレットの賃貸物件情報(1K/2階)
| 家賃 | 管理費等 | 敷金 | 礼金 | 間取り | 専有面積 |
|---|---|---|---|---|---|
| 6.42万円 | 6,870円 | なし | 8万円 | 1K | 21.46m2 |
入居決定でお祝い金最大100,000円
- 保証金
- -
- 償却・敷引
- -
- 築年数
- 築2年
- 所在階
- 2階
- 向き
- 東
- 交通
- 地下鉄千日前線 新深江駅 徒歩5分
地下鉄千日前線 小路駅(大阪メトロ) 徒歩8分
近鉄奈良線 布施駅 徒歩9分
- 所在地
- 大阪府東大阪市足代北
プレサンス新深江ディレット
[地図を表示]
Point
・・お勧めポイント・・人気『プレサンス』で 入居後の安心感 もポイントです!!インターネット無料・宅配ボックス・浴室換気乾燥機等の人気設備が満載^^現地待ち合わせや近隣施設までお迎え等も可能です♪♪
提供:プロスパーホーム(株)新深江店(SUUMO経由)

詳細情報 プレサンス新深江ディレット
物件紹介
プレサンス新深江ディレットは地下鉄千日前線新深江駅から徒歩5分にあり、駅近で通勤通学に便利なマンションです。
このお部屋は2階以上に位置しているので、通行人や周囲の住人からの視線が気になりにくく、防犯面でも安心。建物のエントランスはオートロックがついており、インターホンにはTVモニタもついているため、相手の顔を確認してから来客対応することができます。
こちらは楽器相談が可能な物件。楽器演奏をお考えの方はぜひ相談してみてください。人気の角部屋で周囲の居住者の生活音も気になりにくく、また、フローリングのお部屋なのでお掃除もラクラク。キッチンはシステムキッチン仕様になっていますので、お料理好きの方にもぴったり。バス・トイレは別なので、のんびりお風呂タイムも楽しめるでしょう。また、雨の日でも浴室乾燥機を使えば、お洗濯も問題ありません。
通信設備面では、インターネットが無料で使えるので、月々の出費を抑えられるのも魅力です。また、BSアンテナ・CSアンテナがありCATVにも対応しているので、おうち時間も充実するでしょう(別途工事、BS・CS・CATVの契約料等が必要な場合あり)。
建物にはエレベーターがついているので、重い荷物があっても安心。共用部には宅配ボックスが設定されているので、不在の時にも荷物を受け取ることができます。
このお部屋は2階以上に位置しているので、通行人や周囲の住人からの視線が気になりにくく、防犯面でも安心。建物のエントランスはオートロックがついており、インターホンにはTVモニタもついているため、相手の顔を確認してから来客対応することができます。
こちらは楽器相談が可能な物件。楽器演奏をお考えの方はぜひ相談してみてください。人気の角部屋で周囲の居住者の生活音も気になりにくく、また、フローリングのお部屋なのでお掃除もラクラク。キッチンはシステムキッチン仕様になっていますので、お料理好きの方にもぴったり。バス・トイレは別なので、のんびりお風呂タイムも楽しめるでしょう。また、雨の日でも浴室乾燥機を使えば、お洗濯も問題ありません。
通信設備面では、インターネットが無料で使えるので、月々の出費を抑えられるのも魅力です。また、BSアンテナ・CSアンテナがありCATVにも対応しているので、おうち時間も充実するでしょう(別途工事、BS・CS・CATVの契約料等が必要な場合あり)。
建物にはエレベーターがついているので、重い荷物があっても安心。共用部には宅配ボックスが設定されているので、不在の時にも荷物を受け取ることができます。
お金・契約の情報
※「-」と表示されているものは、実際は料金が発生するものもございます。詳細はお問い合わせください。
| 家賃 | 6.42万円 | 管理費・共益費 | 6,870円 |
|---|---|---|---|
| 敷金 | なし | 礼金 | 8万円 |
| 入居決定でお祝い金最大100,000円 | |||
| 保証金 | - | 償却・敷引 | - |
| 住宅保険料 | - | 更新料 | - |
| 保証会社利用 | 必須 | 保証会社名 | - |
| 保証会社費用 | - | 保証会社備考 | 保証会社利用必 月額総合計の50%(駐輪・バイク・駐車場も含む)更新料:月額総合計費用の1.5% |
| 契約形態 | - | 契約期間 | - |
| 入居・引渡期間 | - | 現況 | - |
| 契約備考 | 近鉄難波・奈良線今里駅徒歩14分/ファミリーマート布施足代北店まで502m/セブンイレブン東大阪長堂1丁目まで473m/巡回管理/☆★《賃貸専門店》の当店では、各種ポータルサイトへ他社様が掲載されている物件のほとんどのお部屋をご紹介可能にしております。他の気になるお部屋も 一括してご案内 が可能ですので、気になるお部屋はお気軽にお申しつけください。交渉可能物件につきましては、スタッフが お安く お住まい頂けるように 交渉 もいたします。現地待ち合わせ・物件最寄り駅や近隣施設までのお迎えもお気軽にお申しつけください^^★☆ 合計2.97万円(内訳:カギ交換費用29700円) プレサポ安心241320円 1K 普通借家1年 損保【要】 バストイレ別、バルコニー、エアコン、ガスコンロ対応、クロゼット、フローリング、シャワー付洗面台、TVインターホン、浴室乾燥機、オートロック、室内洗濯置、シューズボックス、システムキッチン、角住戸、温水洗浄便座、脱衣所、エレベーター、洗面所独立、洗面化粧台、2口コンロ、駐輪場、宅配ボックス、敷金不要、防犯カメラ、照明付、分譲賃貸、保証人不要、バイク置場、24時間緊急通報システム、全居室フローリング、ディンプルキー、ネット専用回線、駅まで平坦、ネット使用料不要、ダブルロックキー、保証金不要、築2年以内、24時間換気システム、3方角住戸、3駅以上利用可、3沿線以上利用可、駅徒歩5分以内、駅徒歩10分以内、24時間ゴミ出し可、敷地内ごみ置き場、都市ガス、IT重説対応物件、初期費用カード決済可 入居日:'26年6月中旬 | ||
部屋の情報
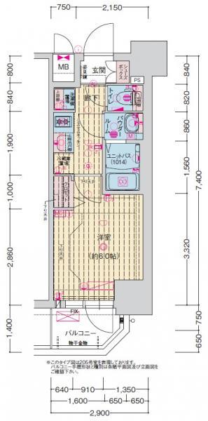
| 間取り | 1K | 専有面積 | 21.46m2 |
|---|---|---|---|
| 所在階 / 向き | 2階 / 東 | バルコニー面積 | - |
| 水道 / ガス | - | ||
| 設備 | バス・トイレ別、2階以上、オートロック、テレビドアホン、宅配ボックス、浴室乾燥機、インターネット対応、システムキッチン、エアコン、エレベーター、温水洗浄便座、角部屋、バルコニー、フローリング、洗髪洗面化粧台、2口コンロ、コンロ:ガス、インターネット使用料無料、洗濯機:室内 | ||
| 当社物件ID | 157864412 | ||
建物の情報
| 建物名 | プレサンス新深江ディレット | ||
|---|---|---|---|
| 所在地 | 大阪府東大阪市足代北 | ||
| 交通 | 地下鉄千日前線 新深江駅 徒歩5分 地下鉄千日前線 小路駅(大阪メトロ) 徒歩8分 近鉄奈良線 布施駅 徒歩9分 | ||
| 階数 | 15階建 | 総戸数 | - |
| 築年月 | 2025年02月 / 築2年 | エレベーター | あり |
| 駐車場 | なし | バイク置き場 | あり |
| 駐輪場 | あり | 管理人/管理会社 | - |
| 周辺環境 | その他 ライフ新深江店・なんでも揃う!(スーパー)まで696m その他 イオン布施駅前店・23時まで営業の大型ショッピングモール♪(スーパー)まで595m その他 スーパーマーケットKINSHO布施店(スーパー)まで795m その他 セブンイレブン東大阪足代新町店(コンビニ)まで172m その他 ファミリーマート東大阪足代北一丁目店(コンビニ)まで161m その他 セブンイレブン大阪深江南2丁目店(コンビニ)まで399m | ||
| 建物種別 | マンション | 建物構造 | RC(鉄筋コンクリート) |
この部屋の取扱い不動産会社
| 会社名 | (株)sumica不動産(SUUMO経由) | ||
|---|---|---|---|
| 所在地 | 大阪府大阪市平野区長吉長原3-16-10 | 交通 | - |
| 営業時間 | 9:30~19:00 | 定休日 | 無 |
| 免許番号 | 大阪府知事64521 | 取引態様 | 仲介 |
| 不動産会社管理番号 | 100499005818 | 当社管理番号 | 89 |
| 所属団体 | (公社)全日本不動産協会大阪府本部会員 | ||
| 公正取引協議会 | (公社)近畿地区不動産公正取引協議会加盟 | ||
| 取扱い物件情報 | 物件詳細へ | ||
※各種情報と現状に差異がある場合は、現状優先となります。問い合わせをすることで、より詳しい条件、情報を確認する事ができます。
提供:(株)sumica不動産(SUUMO経由)
この物件が気になったら掲載期限まであと10日
プレサンス新深江ディレットに条件(家賃・エリア)が近い物件一覧
| 写真 | 家賃 管理費等 | 敷金 礼金 | 間取り 専有面積 | 築年数 | 最寄り駅 所在地 | キープ | 詳細 |
|---|---|---|---|---|---|---|---|
アパート クレール豊里(1K/2階) | |||||||
![]() | 5.8万円 4,000円 | なし 5.8万円 | 1K 30.69m2 | 築21年 | 大阪市今里筋線 だいどう豊里駅 徒歩11分 阪急電鉄京都線 上新庄駅 徒歩19分 大阪市今里筋線 瑞光四丁目駅 徒歩23分 大阪府大阪市東淀川区豊里4丁目 | 詳細を見る | |
マンション ラ ヴィータ西梅田(1LDK/6階) | |||||||
| 10.25万円 1.15万円 | なし 15万円 | 1LDK 41.66m2 | 築11年 | 大阪環状線 福島駅(JR西日本) 徒歩11分 JR東西線 新福島駅 徒歩15分 東海道本線 大阪駅 徒歩18分 大阪府大阪市北区大淀中3丁目3-18 | 詳細を見る | ||
マンション 昭和グランドハイツ第二菅栄(ワンルーム/10階) | |||||||
| 4万円 7,000円 | なし なし | ワンルーム 10.58m2 | 築32年 | 大阪市谷町線 天神橋筋六丁目駅 徒歩3分 阪急電鉄千里線 天神橋筋六丁目駅 徒歩4分 大阪市堺筋線 天神橋筋六丁目駅 徒歩4分 大阪府大阪市北区菅栄町12-8 | 詳細を見る | ||
マンション タウンコート咲久良(3LDK/1階) | |||||||
![]() | 7.9万円 1.1万円 | なし 17万円 | 3LDK 60m2 | 築30年 | 近鉄大阪線 近鉄八尾駅 徒歩8分 関西本線 八尾駅 徒歩17分 大阪府八尾市本町2丁目 | 詳細を見る | |
マンション 田中ハイツ(ワンルーム/5階) | |||||||
| 3.9万円 3,000円 | なし なし | ワンルーム 19.43m2 | 築39年 | 阪急電鉄京都線 上新庄駅 徒歩5分 阪急電鉄千里線 下新庄駅 徒歩12分 阪急電鉄京都線 相川駅 徒歩19分 大阪府大阪市東淀川区上新庄3丁目1-33 | 詳細を見る | ||
マンション ザ・パークハビオ堂島(1K/9階) | |||||||
| 10.1万円 1万円 | なし 11.1万円 | 1K 27.92m2 | 築9年 | JR東西線 北新地駅 徒歩3分 大阪市四つ橋線 西梅田駅 徒歩3分 大阪環状線 大阪駅 徒歩7分 大阪府大阪市北区堂島2丁目1-33 | 詳細を見る | ||
マンション プレサンス新大阪ステーションフロント(1K/2階) | |||||||
| 8.2万円 1.1万円 | なし 8.2万円 | 1K 28m2 | 築21年 | 大阪市御堂筋線 新大阪駅 徒歩9分 阪急電鉄京都線 崇禅寺駅 徒歩11分 東海道本線 東淀川駅 徒歩11分 大阪府大阪市東淀川区東中島1丁目18-26 | 詳細を見る | ||
マンション C-WING(ワンルーム/8階) | |||||||
![]() | 5.6万円 6,500円 | なし なし | ワンルーム 27.9m2 | 築35年 | 大阪市御堂筋線 西中島南方駅 徒歩9分 阪急電鉄千里線 柴島駅 徒歩13分 東海道本線 新大阪駅 徒歩13分 大阪府大阪市東淀川区東中島1丁目 | 詳細を見る | |
東大阪市の町名から探す
東大阪市の部屋を間取りから探す
東大阪市の駅から探す
東大阪市と隣接している市区町村から探す
- 東大阪市(6,620)
- 大阪市都島区(2,193)
- 大阪市福島区(2,717)
- 大阪市此花区(359)
- 大阪市西区(4,807)
- 大阪市港区(1,007)
- 大阪市大正区(328)
- 大阪市天王寺区(1,672)
- 大阪市浪速区(3,753)
- 大阪市西淀川区(1,509)
- 大阪市東淀川区(4,110)
- 大阪市東成区(2,805)
- 大阪市生野区(1,487)
- 大阪市旭区(2,000)
- 大阪市城東区(2,144)
- 大阪市阿倍野区(1,297)
- 大阪市住吉区(1,995)
- 大阪市東住吉区(1,878)
- 大阪市西成区(607)
- 大阪市淀川区(5,752)
- 大阪市鶴見区(717)
- 大阪市住之江区(767)
- 大阪市平野区(1,375)
- 大阪市北区(5,564)
- 大阪市中央区(6,006)
- 八尾市(2,054)
- 大東市(996)



