賃貸マンション
プレサンス新深江ディレットの賃貸物件情報(1K/7階)
| 家賃 | 管理費等 | 敷金 | 礼金 | 間取り | 専有面積 |
|---|---|---|---|---|---|
| 6.335万円 | 6,650円 | なし | 8万円 | 1K | 20.77m2 |
入居決定でお祝い金最大100,000円
- 保証金
- -
- 償却・敷引
- -
- 築年数
- 築1年
- 所在階
- 7階
- 向き
- 東
- 交通
- 大阪市千日前線 新深江駅 徒歩6分
大阪市千日前線 小路駅(大阪メトロ) 徒歩8分
近鉄難波・奈良線 布施駅 徒歩9分
- 所在地
- 大阪府東大阪市足代北1丁目
プレサンス新深江ディレット
[地図を表示]
Point
大阪市千日前線の新深江駅まで徒歩6分のマンションです。建物のエントランスにはオートロック機能があり、浴室には浴室乾燥機が設置されております。共用部には宅配ボックスが備え付けられています。
提供:アパマンショップ今里店

詳細情報 プレサンス新深江ディレット
物件紹介
プレサンス新深江ディレットは地下鉄千日前線新深江駅から徒歩5分にあり、駅近で通勤通学に便利なマンションです。
このお部屋は2階以上に位置しているので、通行人や周囲の住人からの視線が気になりにくく、防犯面でも安心。建物のエントランスはオートロックがついており、インターホンにはTVモニタもついているため、相手の顔を確認してから来客対応することができます。
こちらは楽器相談が可能な物件。楽器演奏をお考えの方はぜひ相談してみてください。人気の角部屋で周囲の居住者の生活音も気になりにくく、また、フローリングのお部屋なのでお掃除もラクラク。キッチンはシステムキッチン仕様になっていますので、お料理好きの方にもぴったり。バス・トイレは別なので、のんびりお風呂タイムも楽しめるでしょう。また、雨の日でも浴室乾燥機を使えば、お洗濯も問題ありません。
通信設備面では、インターネットが無料で使えるので、月々の出費を抑えられるのも魅力です。また、BSアンテナ・CSアンテナがありCATVにも対応しているので、おうち時間も充実するでしょう(別途工事、BS・CS・CATVの契約料等が必要な場合あり)。
建物にはエレベーターがついているので、重い荷物があっても安心。共用部には宅配ボックスが設定されているので、不在の時にも荷物を受け取ることができます。
このお部屋は2階以上に位置しているので、通行人や周囲の住人からの視線が気になりにくく、防犯面でも安心。建物のエントランスはオートロックがついており、インターホンにはTVモニタもついているため、相手の顔を確認してから来客対応することができます。
こちらは楽器相談が可能な物件。楽器演奏をお考えの方はぜひ相談してみてください。人気の角部屋で周囲の居住者の生活音も気になりにくく、また、フローリングのお部屋なのでお掃除もラクラク。キッチンはシステムキッチン仕様になっていますので、お料理好きの方にもぴったり。バス・トイレは別なので、のんびりお風呂タイムも楽しめるでしょう。また、雨の日でも浴室乾燥機を使えば、お洗濯も問題ありません。
通信設備面では、インターネットが無料で使えるので、月々の出費を抑えられるのも魅力です。また、BSアンテナ・CSアンテナがありCATVにも対応しているので、おうち時間も充実するでしょう(別途工事、BS・CS・CATVの契約料等が必要な場合あり)。
建物にはエレベーターがついているので、重い荷物があっても安心。共用部には宅配ボックスが設定されているので、不在の時にも荷物を受け取ることができます。
お金・契約の情報
※「-」と表示されているものは、実際は料金が発生するものもございます。詳細はお問い合わせください。
| 家賃 | 6.335万円 | 管理費・共益費 | 6,650円 |
|---|---|---|---|
| 敷金 | なし | 礼金 | 8万円 |
| 入居決定でお祝い金最大100,000円 | |||
| 保証金 | - | 償却・敷引 | - |
| 住宅保険料 | 住宅保険料あり | 更新料 | - |
| 契約形態 | - | 契約期間 | 1年 |
| 入居・引渡期間 | 即時 | 現況 | 空室 |
| 契約備考 | 2025年築のインターネット使用料無料の1Kの物件です。 初回:賃貸保証料:35,495円 更新料:11,000円 その他設備/条件:コンロ2口以上、独立洗面台、TVドアホン、即入居可 | ||
部屋の情報
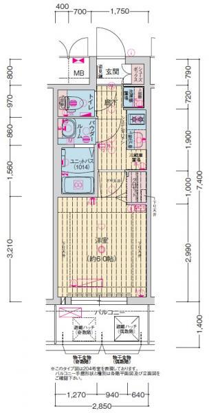
| 間取り | 1K | 専有面積 | 20.77m2 |
|---|---|---|---|
| 間取り詳細 | 洋室(6帖) | ||
| 所在階 / 向き | 7階 / 東 | バルコニー面積 | - |
| 水道 / ガス | ガス【都市】 | ||
| 設備 | バス・トイレ別、2階以上、オートロック、宅配ボックス、浴室乾燥機、インターネット対応、システムキッチン、エアコン、エレベーター、温水洗浄便座、バルコニー、コンロ:ガス、洗濯機:室内 | ||
| 当社物件ID | 157865246 | ||
建物の情報
| 建物名 | プレサンス新深江ディレット | ||
|---|---|---|---|
| 所在地 | 大阪府東大阪市足代北1丁目 | ||
| 交通 | 大阪市千日前線 新深江駅 徒歩6分 大阪市千日前線 小路駅(大阪メトロ) 徒歩8分 近鉄難波・奈良線 布施駅 徒歩9分 | ||
| 階数 | 15階建 | 総戸数 | - |
| 築年月 | 2025年02月 / 築1年 | エレベーター | あり |
| 駐車場 | - | バイク置き場 | - |
| 駐輪場 | あり | 管理人/管理会社 | - |
| 建物種別 | マンション | 建物構造 | RC(鉄筋コンクリート) |
この部屋の取扱い不動産会社
| 会社名 | 株式会社エリッツ 賃貸のエリッツ布施店(賃貸スモッカ経由) | ||
|---|---|---|---|
| 所在地 | 大阪府東大阪市荒川1丁目1-1 茨木第2ビル1F | 交通 | - |
| 営業時間 | - | 定休日 | - |
| 免許番号 | 国土交通大臣免許(7)第5206号 | 取引態様 | 仲介 |
| 不動産会社管理番号 | elitz_172476-0704 | 当社管理番号 | 463 |
| 所属団体 | (一社)大阪府宅地建物取引業協会\n公益社団法人近畿地区不動産公正取引協議会 | ||
| 公正取引協議会 | (公社)全国宅地建物取引業保証協会 | ||
| 取扱い物件情報 | 物件詳細へ | ||
※各種情報と現状に差異がある場合は、現状優先となります。問い合わせをすることで、より詳しい条件、情報を確認する事ができます。
提供:株式会社エリッツ 賃貸のエリッツ布施店(賃貸スモッカ経由)
この物件が気になったら掲載期限まであと5日
プレサンス新深江ディレットに条件(家賃・エリア)が近い物件一覧
| 写真 | 家賃 管理費等 | 敷金 礼金 | 間取り 専有面積 | 築年数 | 最寄り駅 所在地 | キープ | 詳細 |
|---|---|---|---|---|---|---|---|
マンション プレサンス天満橋チエロ(1K/4階) | |||||||
| 6.961万円 6,390円 | なし 8万円 | 1K 21.66m2 | 築12年 | 大阪市谷町線 天満橋駅 徒歩6分 京阪電鉄中之島線 天満橋駅 徒歩6分 大阪市堺筋線 南森町駅 徒歩7分 大阪府大阪市北区天満2丁目7-18 | 詳細を見る | ||
マンション ドゥーエ本庄(1K/10階) | |||||||
| 8万円 6,000円 | なし 8万円 | 1K 25.22m2 | 築18年 | 大阪市谷町線 天神橋筋六丁目駅 徒歩9分 大阪市谷町線 中崎町駅 徒歩10分 大阪市御堂筋線 中津駅(大阪メトロ) 徒歩13分 大阪府大阪市北区本庄西2丁目7-2 | 詳細を見る | ||
マンション フローライト上新庄駅前(1K/6階) | |||||||
| 7万円 5,000円 | なし 14万円 | 1K 29m2 | 築21年 | 阪急電鉄京都線 上新庄駅 徒歩2分 大阪市今里筋線 瑞光四丁目駅 徒歩15分 阪急電鉄京都線 相川駅 徒歩17分 大阪府大阪市東淀川区瑞光1丁目15-16 | 詳細を見る | ||
マンション セレニテ梅田北(1K/12階) | |||||||
| 7.5万円 6,000円 | なし なし | 1K 22.5m2 | 築12年 | 大阪市御堂筋線 中津駅(大阪メトロ) 徒歩5分 大阪市谷町線 中崎町駅 徒歩9分 阪急電鉄宝塚線 大阪梅田駅(阪急) 徒歩11分 大阪府大阪市北区豊崎2丁目8-15 | 詳細を見る | ||
マンション 天満リバーサイドプラザ(1DK/2階) | |||||||
| 8.4万円 9,000円 | 2万円 15万円 | 1DK 34.99m2 | 築20年 | 大阪市谷町線 天満橋駅 徒歩4分 JR東西線 大阪天満宮駅 徒歩10分 大阪市堺筋線 南森町駅 徒歩12分 大阪府大阪市北区天満2丁目1-14 | 詳細を見る | ||
アパート セレニティ衣摺(1LDK/2階) | |||||||
![]() | 7.2万円 3,000円 | なし なし | 1LDK 35.1m2 | 新築 | JRおおさか東線 衣摺加美北駅 徒歩12分 近鉄大阪線 弥刀駅 徒歩15分 近鉄大阪線 長瀬駅 徒歩19分 大阪府東大阪市衣摺 | 詳細を見る | |
マンション カルム西淡路(1K/3階) | |||||||
![]() | 5.6万円 5,000円 | なし なし | 1K 23.6m2 | 築12年 | 東海道本線 東淀川駅 徒歩5分 大阪市御堂筋線 東三国駅 徒歩13分 阪急電鉄京都線 淡路駅 徒歩15分 大阪府大阪市東淀川区西淡路4丁目 | 詳細を見る | |
マンション セレニテ天六ミラク(1LDK/2階) | |||||||
| 10万円 1.02万円 | なし なし | 1LDK 27.22m2 | 築2年 | 大阪市堺筋線 天神橋筋六丁目駅 徒歩2分 大阪市谷町線 天神橋筋六丁目駅 徒歩2分 大阪市堺筋線 扇町駅(大阪) 徒歩12分 大阪府大阪市北区長柄中1丁目4-8 | 詳細を見る | ||
東大阪市の町名から探す
東大阪市の部屋を間取りから探す
東大阪市の駅から探す
東大阪市と隣接している市区町村から探す
- 東大阪市(7,995)
- 大阪市都島区(1,764)
- 大阪市福島区(2,054)
- 大阪市此花区(444)
- 大阪市西区(4,137)
- 大阪市港区(1,311)
- 大阪市大正区(890)
- 大阪市天王寺区(1,320)
- 大阪市浪速区(3,290)
- 大阪市西淀川区(1,867)
- 大阪市東淀川区(5,116)
- 大阪市東成区(2,223)
- 大阪市生野区(1,652)
- 大阪市旭区(1,717)
- 大阪市城東区(1,989)
- 大阪市阿倍野区(1,387)
- 大阪市住吉区(1,924)
- 大阪市東住吉区(2,021)
- 大阪市西成区(869)
- 大阪市淀川区(5,360)
- 大阪市鶴見区(1,080)
- 大阪市住之江区(1,153)
- 大阪市平野区(2,030)
- 大阪市北区(5,504)
- 大阪市中央区(4,383)
- 八尾市(2,296)
- 大東市(1,333)


