賃貸マンション
グランパセオ蔵前IIの賃貸物件情報(2LDK/3階)
| 家賃 | 管理費等 | 敷金 | 礼金 | 間取り | 専有面積 |
|---|---|---|---|---|---|
| 20.5万円 | 1.2万円 | なし | なし | 2LDK | 40.21m2 |
入居決定でお祝い金最大100,000円
- 保証金
- -
- 償却・敷引
- -
- 築年数
- 築1年
- 所在階
- 3階
- 向き
- 東
- 交通
- 都営大江戸線 蔵前駅 徒歩1分
東京メトロ銀座線 田原町駅(東京) 徒歩9分
都営浅草線 浅草駅(東武・都営・メトロ) 徒歩10分
- 所在地
- 東京都台東区蔵前
グランパセオ蔵前II
[地図を表示]
Point
初期費用分割払い可能☆最大24ヶ月払い☆カード決済も対応しております!!遠方の方や忙しい方向けオンライン内見実施中☆
提供:Ptif(株)(SUUMO経由)

詳細情報 グランパセオ蔵前II
物件紹介
グランパセオ蔵前IIは都営大江戸線蔵前駅から徒歩1分にあり、駅近で通勤通学に便利なマンションです。
このお部屋は2階以上に位置しているので、通行人や周囲の住人からの視線が気になりにくく、防犯面でも安心。建物のエントランスはオートロックがついており、インターホンにはTVモニタもついているため、相手の顔を確認してから来客対応することができます。
人気の角部屋で周囲の居住者の生活音も気になりにくく、また、フローリングのお部屋なのでお掃除もラクラク。キッチンはシステムキッチン仕様になっていますので、お料理好きの方にもぴったり。バス・トイレは別なので、のんびりお風呂タイムも楽しめるでしょう。また、雨の日でも浴室乾燥機を使えば、お洗濯も問題ありません。
通信設備面では、インターネットが無料で使えるので、月々の出費を抑えられるのも魅力です。また、BSアンテナ・CSアンテナがありCATVにも対応しているので、おうち時間も充実するでしょう(別途工事、BS・CS・CATVの契約料等が必要な場合あり)。
建物にはエレベーターがついているので、重い荷物があっても安心。共用部には宅配ボックスが設定されているので、不在の時にも荷物を受け取ることができます。
このお部屋は2階以上に位置しているので、通行人や周囲の住人からの視線が気になりにくく、防犯面でも安心。建物のエントランスはオートロックがついており、インターホンにはTVモニタもついているため、相手の顔を確認してから来客対応することができます。
人気の角部屋で周囲の居住者の生活音も気になりにくく、また、フローリングのお部屋なのでお掃除もラクラク。キッチンはシステムキッチン仕様になっていますので、お料理好きの方にもぴったり。バス・トイレは別なので、のんびりお風呂タイムも楽しめるでしょう。また、雨の日でも浴室乾燥機を使えば、お洗濯も問題ありません。
通信設備面では、インターネットが無料で使えるので、月々の出費を抑えられるのも魅力です。また、BSアンテナ・CSアンテナがありCATVにも対応しているので、おうち時間も充実するでしょう(別途工事、BS・CS・CATVの契約料等が必要な場合あり)。
建物にはエレベーターがついているので、重い荷物があっても安心。共用部には宅配ボックスが設定されているので、不在の時にも荷物を受け取ることができます。
お金・契約の情報
※「-」と表示されているものは、実際は料金が発生するものもございます。詳細はお問い合わせください。
| 家賃 | 20.5万円 | 管理費・共益費 | 1.2万円 |
|---|---|---|---|
| 敷金 | なし | 礼金 | なし |
| フリーレント | あり | ||
| 入居決定でお祝い金最大100,000円 | |||
| 保証金 | - | 償却・敷引 | - |
| 住宅保険料 | - | 更新料 | - |
| 保証会社利用 | 必須 | 保証会社名 | リクルートフォレントインシュア |
| 保証会社費用 | - | 保証会社備考 | オリコフォレントインシュア利用必 初回保証委託料:月額賃料等の50%、月次保証料:賃料等の1% 詳細はお問い合わせください。 |
| 契約形態 | - | 契約期間 | - |
| 入居・引渡期間 | 即時 | 現況 | - |
| 契約備考 | 通勤管理 合計2.56万円(内訳:安心入居サポート2.2万円町会費(2年一括)0.36万円) 更新料 新賃料1.00ヶ月分 2LDK 二人入居可/フリーレント2ヶ月賃料及び管理費 普通借家2年 損保【2.3万円2年】 バストイレ別、バルコニー、エアコン、ガスコンロ対応、クロゼット、TVインターホン、浴室乾燥機、オートロック、室内洗濯置、陽当り良好、シューズボックス、システムキッチン、追焚機能浴室、角住戸、温水洗浄便座、エレベーター、洗面所独立、駐輪場、宅配ボックス、CATV、即入居可、礼金不要、閑静な住宅地、2面採光、BS・CS、敷金不要、3口以上コンロ、防犯カメラ、出窓、保証人不要、二人入居相談、バイク置場、全居室フローリング、ディンプルキー、ネット専用回線、ネット使用料不要、フリーレント、眺望良好、築2年以内、24時間換気システム、築3年以内、耐火構造、耐震構造、防犯ガラス、高気密住宅、2駅利用可、3駅以上利用可、駅前、防犯強化地域、駅徒歩5分以内、駅徒歩10分以内、耐風構造、24時間ゴミ出し可、敷地内ごみ置き場、築5年以内、日勤管理、備付食器棚、都市ガス、敷金・礼金不要、通風良好 | ||
部屋の情報
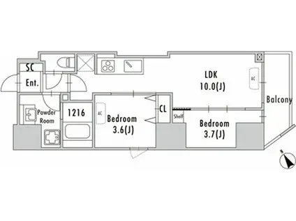
| 間取り | 2LDK | 専有面積 | 40.21m2 |
|---|---|---|---|
| 所在階 / 向き | 3階 / 東 | バルコニー面積 | - |
| 水道 / ガス | - | ||
| 設備 | バス・トイレ別、2階以上、オートロック、テレビドアホン、宅配ボックス、浴室乾燥機、追い焚き、インターネット対応、システムキッチン、エアコン、エレベーター、温水洗浄便座、角部屋、バルコニー、フローリング、洗髪洗面化粧台、2口コンロ、コンロ:ガス、CATV、CSアンテナ、BSアンテナ、インターネット使用料無料、洗濯機:室内 | ||
| 当社物件ID | 159547475 | ||
建物の情報
| 建物名 | グランパセオ蔵前II | ||
|---|---|---|---|
| 所在地 | 東京都台東区蔵前 | ||
| 交通 | 都営大江戸線 蔵前駅 徒歩1分 東京メトロ銀座線 田原町駅(東京) 徒歩9分 都営浅草線 浅草駅(東武・都営・メトロ) 徒歩10分 | ||
| 階数 | 14階建 | 総戸数 | - |
| 築年月 | 2025年06月 / 築1年 | エレベーター | あり |
| 駐車場 | 空有 38500円 | バイク置き場 | あり |
| 駐輪場 | あり | 管理人/管理会社 | - |
| 周辺環境 | その他 ファミリーマート 変なホテル東京浅草田原町店(コンビニ)まで422m その他 セブンイレブン 台東寿1丁目店(コンビニ)まで438m その他 セブンイレブン 台東蔵前2丁目店(コンビニ)まで488m その他 ローソンストア100 LS台東寿三丁目店(その他)まで305m | ||
| 建物種別 | マンション | 建物構造 | RC(鉄筋コンクリート) |
この部屋の取扱い不動産会社
| 会社名 | Ptif(株)(SUUMO経由) | ||
|---|---|---|---|
| 所在地 | 東京都港区北青山1-3-3 6階 | 交通 | - |
| 営業時間 | 9:00~21:00 | 定休日 | 年中無休です! |
| 免許番号 | 東京都知事107647 | 取引態様 | 仲介 |
| 不動産会社管理番号 | 100461354675 | 当社管理番号 | 89 |
| 所属団体 | (公社)東京都宅地建物取引業協会会員 | ||
| 公正取引協議会 | (公社)首都圏不動産公正取引協議会加盟 | ||
| 取扱い物件情報 | 物件詳細へ | ||
※各種情報と現状に差異がある場合は、現状優先となります。問い合わせをすることで、より詳しい条件、情報を確認する事ができます。
提供:Ptif(株)(SUUMO経由)
この物件が気になったら掲載期限まであと10日
グランパセオ蔵前IIに条件(家賃・エリア)が近い物件一覧
| 写真 | 家賃 管理費等 | 敷金 礼金 | 間取り 専有面積 | 築年数 | 最寄り駅 所在地 | キープ | 詳細 |
|---|---|---|---|---|---|---|---|
マンション パークアクシス小伝馬町(ワンルーム/3階) | |||||||
![]() | 17.7万円 1.1万円 | 17.7万円 17.7万円 | ワンルーム 31.28m2 | 築10年 | 東京地下鉄日比谷線 小伝馬町駅 徒歩3分 総武本線 馬喰町駅 徒歩5分 山手線 秋葉原駅 徒歩11分 東京都千代田区岩本町1丁目 | 詳細を見る | |
マンション ジェノヴィア本所吾妻橋Ⅱスカイガーデン(1LDK/3階) | |||||||
![]() | 17.1万円 1.5万円 | なし なし | 1LDK 41.18m2 | 築4年 | 東京都浅草線 本所吾妻橋駅 徒歩10分 東京地下鉄半蔵門線 押上駅 徒歩14分 東京地下鉄半蔵門線 錦糸町駅 徒歩15分 東京都墨田区本所4丁目 | 詳細を見る | |
マンション ムニレジデンス上野(1K/11階) | |||||||
![]() | 12.7万円 1万円 | 12.7万円 なし | 1K 25.13m2 | 築5年 | 東京地下鉄日比谷線 入谷駅(東京) 徒歩8分 山手線 上野駅 徒歩8分 京浜東北・根岸線 上野駅 徒歩8分 東京都台東区東上野6丁目 | 詳細を見る | |
マンション レジディア文京本駒込(1K/8階) | |||||||
![]() | 15.2万円 1万円 | なし なし | 1K 29.16m2 | 築18年 | 東京地下鉄南北線 本駒込駅 徒歩5分 山手線 駒込駅 徒歩10分 東京都三田線 白山駅(東京) 徒歩11分 東京都文京区本駒込3丁目 | 詳細を見る | |
マンション パークアクシス菊川ステーションゲート(ワンルーム/8階) | |||||||
![]() | 12.7万円 1万円 | 12.7万円 12.7万円 | ワンルーム 25.35m2 | 築13年 | 東京都新宿線 菊川駅(東京) 徒歩2分 東京都新宿線 森下駅(東京) 徒歩11分 東京地下鉄半蔵門線 住吉駅(東京) 徒歩13分 東京都墨田区菊川3丁目 | 詳細を見る | |
マンション ジェノヴィア東大前グリーンヴェール(1K/6階) | |||||||
![]() | 14.5万円 1.5万円 | なし 14.5万円 | 1K 25.46m2 | 築10年 | 東京都大江戸線 本郷三丁目駅 徒歩7分 東京地下鉄南北線 東大前駅 徒歩8分 東京都三田線 春日駅(東京) 徒歩9分 東京都文京区本郷5丁目 | 詳細を見る | |
マンション レジディア錦糸町(1LDK/11階) | |||||||
![]() | 19.8万円 1.5万円 | 19.8万円 なし | 1LDK 40.02m2 | 築19年 | 東京地下鉄半蔵門線 錦糸町駅 徒歩5分 総武・中央緩行線 錦糸町駅 徒歩5分 東京都新宿線 住吉駅(東京) 徒歩17分 東京都墨田区錦糸1丁目 | 詳細を見る | |
マンション プラザラポール(ワンルーム/11階) | |||||||
![]() | 14.4万円 8,000円 | 14.4万円 なし | ワンルーム 29.59m2 | 築31年 | 京成電鉄本線 新三河島駅 徒歩2分 常磐線 三河島駅 徒歩7分 京成電鉄本線 町屋駅 徒歩12分 東京都荒川区西日暮里1丁目 | 詳細を見る | |








