賃貸マンション
グランパセオ蔵前IIの賃貸物件情報(2LDK/4階)
| 家賃 | 管理費等 | 敷金 | 礼金 | 間取り | 専有面積 |
|---|---|---|---|---|---|
| 20.6万円 | 1.2万円 | なし | なし | 2LDK | 40.21m2 |
入居決定でお祝い金最大100,000円
- 保証金
- -
- 償却・敷引
- -
- 築年数
- 築1年
- 所在階
- 4階
- 向き
- 東
- 交通
- 都営大江戸線 蔵前駅 徒歩1分
東京メトロ銀座線 田原町駅(東京) 徒歩9分
都営浅草線 浅草駅(東武・都営・メトロ) 徒歩10分
- 所在地
- 東京都台東区蔵前
グランパセオ蔵前II
[地図を表示]
Point
初期費用分割払い可能☆最大24ヶ月払い☆カード決済も対応しております!!遠方の方や忙しい方向けオンライン内見実施中☆
提供:Ptif(株)(SUUMO経由)

詳細情報 グランパセオ蔵前II
物件紹介
グランパセオ蔵前IIは都営大江戸線蔵前駅から徒歩1分にあり、駅近で通勤通学に便利なマンションです。
このお部屋は2階以上に位置しているので、通行人や周囲の住人からの視線が気になりにくく、防犯面でも安心。建物のエントランスはオートロックがついており、インターホンにはTVモニタもついているため、相手の顔を確認してから来客対応することができます。
人気の角部屋で周囲の居住者の生活音も気になりにくく、また、フローリングのお部屋なのでお掃除もラクラク。キッチンはシステムキッチン仕様になっていますので、お料理好きの方にもぴったり。バス・トイレは別なので、のんびりお風呂タイムも楽しめるでしょう。また、雨の日でも浴室乾燥機を使えば、お洗濯も問題ありません。
通信設備面では、インターネットが無料で使えるので、月々の出費を抑えられるのも魅力です。また、BSアンテナ・CSアンテナがありCATVにも対応しているので、おうち時間も充実するでしょう(別途工事、BS・CS・CATVの契約料等が必要な場合あり)。
建物にはエレベーターがついているので、重い荷物があっても安心。共用部には宅配ボックスが設定されているので、不在の時にも荷物を受け取ることができます。
このお部屋は2階以上に位置しているので、通行人や周囲の住人からの視線が気になりにくく、防犯面でも安心。建物のエントランスはオートロックがついており、インターホンにはTVモニタもついているため、相手の顔を確認してから来客対応することができます。
人気の角部屋で周囲の居住者の生活音も気になりにくく、また、フローリングのお部屋なのでお掃除もラクラク。キッチンはシステムキッチン仕様になっていますので、お料理好きの方にもぴったり。バス・トイレは別なので、のんびりお風呂タイムも楽しめるでしょう。また、雨の日でも浴室乾燥機を使えば、お洗濯も問題ありません。
通信設備面では、インターネットが無料で使えるので、月々の出費を抑えられるのも魅力です。また、BSアンテナ・CSアンテナがありCATVにも対応しているので、おうち時間も充実するでしょう(別途工事、BS・CS・CATVの契約料等が必要な場合あり)。
建物にはエレベーターがついているので、重い荷物があっても安心。共用部には宅配ボックスが設定されているので、不在の時にも荷物を受け取ることができます。
お金・契約の情報
※「-」と表示されているものは、実際は料金が発生するものもございます。詳細はお問い合わせください。
| 家賃 | 20.6万円 | 管理費・共益費 | 1.2万円 |
|---|---|---|---|
| 敷金 | なし | 礼金 | なし |
| フリーレント | あり | ||
| 入居決定でお祝い金最大100,000円 | |||
| 保証金 | - | 償却・敷引 | - |
| 住宅保険料 | - | 更新料 | - |
| 保証会社利用 | 必須 | 保証会社名 | リクルートフォレントインシュア |
| 保証会社費用 | - | 保証会社備考 | オリコフォレントインシュア利用必 初回保証委託料:月額賃料等の50%、月次保証料:賃料等の1% 詳細はお問い合わせください。 |
| 契約形態 | - | 契約期間 | - |
| 入居・引渡期間 | 即時 | 現況 | - |
| 契約備考 | 通勤管理 合計2.56万円(内訳:安心入居サポート2.2万円町会費(2年一括)0.36万円) 更新料 新賃料1.00ヶ月分 2LDK 二人入居可/フリーレント2ヶ月賃料及び管理費 普通借家2年 損保【2.3万円2年】 バストイレ別、バルコニー、エアコン、ガスコンロ対応、クロゼット、TVインターホン、浴室乾燥機、オートロック、室内洗濯置、陽当り良好、シューズボックス、システムキッチン、追焚機能浴室、角住戸、温水洗浄便座、エレベーター、洗面所独立、駐輪場、宅配ボックス、CATV、即入居可、礼金不要、閑静な住宅地、2面採光、BS・CS、敷金不要、3口以上コンロ、防犯カメラ、出窓、保証人不要、二人入居相談、バイク置場、全居室フローリング、ディンプルキー、ネット専用回線、ネット使用料不要、フリーレント、眺望良好、築2年以内、24時間換気システム、築3年以内、耐火構造、耐震構造、防犯ガラス、高気密住宅、2駅利用可、3駅以上利用可、駅前、防犯強化地域、駅徒歩5分以内、駅徒歩10分以内、耐風構造、24時間ゴミ出し可、敷地内ごみ置き場、築5年以内、日勤管理、備付食器棚、都市ガス、敷金・礼金不要、通風良好 | ||
部屋の情報
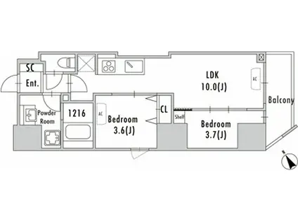
| 間取り | 2LDK | 専有面積 | 40.21m2 |
|---|---|---|---|
| 所在階 / 向き | 4階 / 東 | バルコニー面積 | - |
| 水道 / ガス | - | ||
| 設備 | バス・トイレ別、2階以上、オートロック、テレビドアホン、宅配ボックス、浴室乾燥機、追い焚き、インターネット対応、システムキッチン、エアコン、エレベーター、温水洗浄便座、角部屋、バルコニー、フローリング、洗髪洗面化粧台、2口コンロ、コンロ:ガス、CATV、CSアンテナ、BSアンテナ、インターネット使用料無料、洗濯機:室内 | ||
| 当社物件ID | 159903226 | ||
建物の情報
| 建物名 | グランパセオ蔵前II | ||
|---|---|---|---|
| 所在地 | 東京都台東区蔵前 | ||
| 交通 | 都営大江戸線 蔵前駅 徒歩1分 東京メトロ銀座線 田原町駅(東京) 徒歩9分 都営浅草線 浅草駅(東武・都営・メトロ) 徒歩10分 | ||
| 階数 | 14階建 | 総戸数 | - |
| 築年月 | 2025年06月 / 築1年 | エレベーター | あり |
| 駐車場 | 空有 38500円 | バイク置き場 | あり |
| 駐輪場 | あり | 管理人/管理会社 | - |
| 周辺環境 | その他 ファミリーマート 変なホテル東京浅草田原町店(コンビニ)まで422m その他 セブンイレブン 台東寿1丁目店(コンビニ)まで438m その他 セブンイレブン 台東蔵前2丁目店(コンビニ)まで488m その他 ローソンストア100 LS台東寿三丁目店(その他)まで305m | ||
| 建物種別 | マンション | 建物構造 | RC(鉄筋コンクリート) |
この部屋の取扱い不動産会社
| 会社名 | PRA(株)青山店(SUUMO経由) | ||
|---|---|---|---|
| 所在地 | 東京都港区北青山1-3-3 三橋ビル8階 | 交通 | - |
| 営業時間 | 9:00~20:00 | 定休日 | 無し |
| 免許番号 | 東京都知事109775 | 取引態様 | 仲介 |
| 不動産会社管理番号 | 100492269963 | 当社管理番号 | 89 |
| 所属団体 | (公社)東京都宅地建物取引業協会会員 | ||
| 公正取引協議会 | (公社)首都圏不動産公正取引協議会加盟 | ||
| 取扱い物件情報 | 物件詳細へ | ||
※各種情報と現状に差異がある場合は、現状優先となります。問い合わせをすることで、より詳しい条件、情報を確認する事ができます。
提供:PRA(株)青山店(SUUMO経由)
この物件が気になったら掲載期限まであと12日
グランパセオ蔵前IIに条件(家賃・エリア)が近い物件一覧
| 写真 | 家賃 管理費等 | 敷金 礼金 | 間取り 専有面積 | 築年数 | 最寄り駅 所在地 | キープ | 詳細 |
|---|---|---|---|---|---|---|---|
マンション BLOOM TOWER UENO(ワンルーム/6階) | |||||||
![]() | 12.4万円 1万円 | 12.4万円 なし | ワンルーム 25.26m2 | 築5年 | 東京地下鉄銀座線 稲荷町駅(東京) 徒歩2分 山手線 上野駅 徒歩9分 東京都大江戸線 新御徒町駅 徒歩9分 東京都台東区東上野6丁目 | 詳細を見る | |
マンション あやめガーデン(2K/10階) | |||||||
![]() | 17.5万円 1万円 | 17.5万円 17.5万円 | 2K 42.26m2 | 築13年 | 東京メトロ日比谷線 築地駅 徒歩1分 東京メトロ有楽町線 新富町駅(東京) 徒歩6分 東京メトロ日比谷線 東銀座駅 徒歩6分 東京都中央区築地 | 詳細を見る | |
マンション ミリア・レジデンス両国II(1LDK/2階) | |||||||
![]() | 16万円 2万円 | なし なし | 1LDK 30.01m2 | 築4年 | JR総武線 両国駅 徒歩5分 都営大江戸線 両国駅 徒歩7分 都営大江戸線 森下駅(東京) 徒歩10分 東京都墨田区両国 | 詳細を見る | |
マンション ラグゼナ平井ノース(2LDK/3階) | |||||||
![]() | 22.3万円 1万円 | なし なし | 2LDK 53.64m2 | 築1年 | 東武亀戸線 東あずま駅 徒歩10分 JR総武線 平井駅(東京) 徒歩12分 京成押上線 京成曳舟駅 徒歩27分 東京都墨田区立花 | 詳細を見る | |
マンション アーバネックス菊川(2LDK/3階) | |||||||
![]() | 20.5万円 1.5万円 | 20.5万円 なし | 2LDK 40.56m2 | 築7年 | 都営新宿線 菊川駅(東京) 徒歩7分 東京都墨田区立川 | 詳細を見る | |
マンション ワコーレ錦糸町(1LDK/7階) | |||||||
![]() | 18万円 なし | 18万円 18万円 | 1LDK 40.46m2 | 築48年 | JR総武線快速 錦糸町駅 徒歩5分 東京メトロ半蔵門線 住吉駅(東京) 徒歩11分 都営新宿線 住吉駅(東京) 徒歩14分 東京都墨田区江東橋 | 詳細を見る | |
マンション LUNIQ新御徒町Ⅰ(1LDK/3階) | |||||||
![]() | 19.9万円 1.8万円 | なし なし | 1LDK 40.49m2 | 築6年 | 東京都大江戸線 蔵前駅 徒歩6分 つくばエクスプレス 新御徒町駅 徒歩8分 東京都大江戸線 新御徒町駅 徒歩12分 東京都台東区三筋1丁目 | 詳細を見る | |
マンション カスタリア北上野カスタリアキタウエノ(1LDK/10階) | |||||||
![]() | 17.5万円 8,000円 | 17.5万円 17.5万円 | 1LDK 35.54m2 | 築22年 | 東京地下鉄日比谷線 入谷駅(東京) 徒歩2分 山手線 上野駅 徒歩10分 東京地下鉄銀座線 稲荷町駅(東京) 徒歩10分 東京都台東区北上野1丁目 | 詳細を見る | |









