賃貸マンション
PRIME URBAN 東中野 COURTの賃貸物件情報(1K/10階)
| 家賃 | 管理費等 | 敷金 | 礼金 | 間取り | 専有面積 |
|---|---|---|---|---|---|
| 13.4万円 | 8,000円 | 13.4万円 | 13.4万円 | 1K | 25.64m2 |
入居決定でお祝い金最大100,000円
Point
高円寺店限定 【仲介手数料無料】キャンペーン 是非この機会に
提供:アパマンショップ阿佐ヶ谷店
/424x317-f1-q70-wp1)
詳細情報 PRIME URBAN 東中野 COURT
物件紹介
PRIME URBAN 東中野 COURTは総武・中央緩行線東中野駅から徒歩8分にあり、駅近で通勤通学に便利なマンションです。
このお部屋は2階以上に位置しているので、通行人や周囲の住人からの視線が気になりにくく、防犯面でも安心。建物のエントランスはオートロックがついており、インターホンにはTVモニタもついているため、相手の顔を確認してから来客対応することができます。
こちらは楽器相談が可能な物件。楽器演奏をお考えの方はぜひ相談してみてください。フローリングのお部屋なのでお掃除もラクラク。キッチンはシステムキッチン仕様になっていますので、お料理好きの方にもぴったり。バス・トイレは別なので、のんびりお風呂タイムも楽しめるでしょう。また、雨の日でも浴室乾燥機を使えば、お洗濯も問題ありません。
通信設備面では、インターネット接続が可能です。また、BSアンテナ・CSアンテナがありCATVにも対応しているので、おうち時間も充実するでしょう(別途工事、契約料が必要な場合あり)。
建物にはエレベーターがついているので、重い荷物があっても安心。共用部には宅配ボックスが設定されているので、不在の時にも荷物を受け取ることができます。
このお部屋は2階以上に位置しているので、通行人や周囲の住人からの視線が気になりにくく、防犯面でも安心。建物のエントランスはオートロックがついており、インターホンにはTVモニタもついているため、相手の顔を確認してから来客対応することができます。
こちらは楽器相談が可能な物件。楽器演奏をお考えの方はぜひ相談してみてください。フローリングのお部屋なのでお掃除もラクラク。キッチンはシステムキッチン仕様になっていますので、お料理好きの方にもぴったり。バス・トイレは別なので、のんびりお風呂タイムも楽しめるでしょう。また、雨の日でも浴室乾燥機を使えば、お洗濯も問題ありません。
通信設備面では、インターネット接続が可能です。また、BSアンテナ・CSアンテナがありCATVにも対応しているので、おうち時間も充実するでしょう(別途工事、契約料が必要な場合あり)。
建物にはエレベーターがついているので、重い荷物があっても安心。共用部には宅配ボックスが設定されているので、不在の時にも荷物を受け取ることができます。
お金・契約の情報
※「-」と表示されているものは、実際は料金が発生するものもございます。詳細はお問い合わせください。
| 家賃 | 13.4万円 | 管理費・共益費 | 8,000円 |
|---|---|---|---|
| 敷金 | 13.4万円 | 礼金 | 13.4万円 |
| 入居決定でお祝い金最大100,000円 | |||
| 保証金 | - | 償却・敷引 | - |
| 住宅保険料 | - | 更新料 | - |
| 保証会社利用 | 利用可 | 保証会社名 | レジデントアシスタント |
| 保証会社費用 | - | 保証会社備考 | 初回:月額賃料(共益費・駐車場料金含む)の50%、年間:9,600円 |
| 契約形態 | - | 契約期間 | 2年 |
| 入居・引渡期間 | 相談 | 現況 | - |
| 入居可能条件 | 楽器可 | ||
| 契約備考 | 口座振替事務手数料 110円/鍵交換費 44000円、[退去時費用:室内清掃費 44,000円 ※故意・過失等別途実費] | ||
部屋の情報
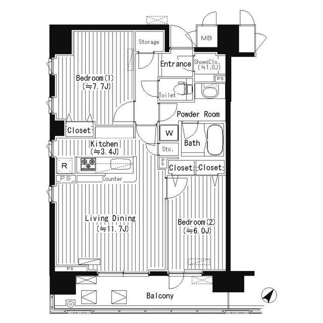
| 間取り | 1K | 専有面積 | 25.64m2 |
|---|---|---|---|
| 間取り詳細 | 洋室(6.6帖)、K(2.3帖) | ||
| 所在階 / 向き | 10階 / 北東 | バルコニー面積 | 5m2 |
| 水道 / ガス | - | ||
| 設備 | バス・トイレ別、オートロック、テレビドアホン、宅配ボックス、浴室乾燥機、追い焚き、光ファイバー対応、システムキッチン、エレベーター、温水洗浄便座、バルコニー、フローリング、コンロ:ガス、CATV、CSアンテナ、BSアンテナ、シャワー、給湯、冷房、洗濯機:室内、閑静な住宅街 | ||
| 当社物件ID | 160136027 | ||
建物の情報
| 建物名 | PRIME URBAN 東中野 COURT | ||
|---|---|---|---|
| 所在地 | 東京都新宿区北新宿4丁目 | ||
| 交通 | 総武・中央緩行線 東中野駅 徒歩8分 | ||
| 階数 | 10階建 | 総戸数 | - |
| 築年月 | 2009年04月 / 築17年 | エレベーター | あり |
| 駐車場 | - | バイク置き場 | あり |
| 駐輪場 | あり | 管理人/管理会社 | - |
| 周辺環境 | その他 東中野駅 徒歩8分(640m) | ||
| 建物種別 | マンション | 建物構造 | RC(鉄筋コンクリート) |
この部屋の取扱い不動産会社
| 会社名 | アパマンショップ高円寺店 | ||
|---|---|---|---|
| 所在地 | 東京都杉並区高円寺北2丁目 4−7杉原ビル10階 | 交通 | 中央本線高円寺から徒歩1分 |
| 営業時間 | 10:00〜18:30(祝祭日の水曜日は営業致します。) | 定休日 | 水曜日 |
| 免許番号 | 東京都知事(4)89960 | 取引態様 | 仲介 |
| 不動産会社管理番号 | 77304022 | 当社管理番号 | 4 |
| 所属団体 | (公社)東京都宅地建物取引業協会 | ||
| 公正取引協議会 | (公社) 首都圏不動産公正取引協議会加盟 | ||
| 取扱い物件情報 | 物件詳細へ | ||
※各種情報と現状に差異がある場合は、現状優先となります。問い合わせをすることで、より詳しい条件、情報を確認する事ができます。
提供:アパマンショップ高円寺店
この物件が気になったら掲載期限まであと13日
PRIME URBAN 東中野 COURTに条件(家賃・エリア)が近い物件一覧
| 写真 | 家賃 管理費等 | 敷金 礼金 | 間取り 専有面積 | 築年数 | 最寄り駅 所在地 | キープ | 詳細 |
|---|---|---|---|---|---|---|---|
マンション パークアクシス文京ステージ(1K/1階) | |||||||
![]() | 13.3万円 8,000円 | 13.3万円 13.3万円 | 1K 29.29m2 | 築21年 | 東京地下鉄有楽町線 江戸川橋駅 徒歩5分 東京地下鉄丸ノ内線 茗荷谷駅 徒歩15分 総武・中央緩行線 飯田橋駅 徒歩17分 東京都文京区水道2丁目 | 詳細を見る | |
マンション パークホームズ文京千石ステーションアリーナ(ワンルーム/7階) | |||||||
![]() | 9.9万円 1万円 | 9.9万円 なし | ワンルーム 21.49m2 | 築21年 | 東京都三田線 千石駅 徒歩1分 山手線 巣鴨駅 徒歩10分 東京地下鉄南北線 本駒込駅 徒歩16分 東京都文京区千石1丁目 | 詳細を見る | |
マンション スカイコート目白台(1K/7階) | |||||||
![]() | 10.6万円 1万円 | 10.6万円 10.6万円 | 1K 30.07m2 | 築25年 | 東京地下鉄有楽町線 江戸川橋駅 徒歩7分 東京地下鉄有楽町線 護国寺駅 徒歩11分 東京都荒川線 早稲田駅(都電) 徒歩14分 東京都文京区関口2丁目 | 詳細を見る | |
マンション グランレスト文京茗荷谷(1K/1階) | |||||||
![]() | 11.8万円 1.2万円 | 11.8万円 11.8万円 | 1K 26.89m2 | 築4年 | 東京地下鉄丸ノ内線 茗荷谷駅 徒歩8分 東京都三田線 千石駅 徒歩16分 山手線 巣鴨駅 徒歩24分 東京都文京区大塚3丁目 | 詳細を見る | |
マンション FELICEPRENDRE(1K/4階) | |||||||
![]() | 11.5万円 1万円 | なし なし | 1K 27.67m2 | 築5年 | JR総武線快速 馬喰町駅 徒歩4分 都営新宿線 岩本町駅 徒歩7分 JR山手線 秋葉原駅 徒歩10分 東京都千代田区東神田 | 詳細を見る | |
マンション 菱和パレス御茶ノ水湯島天神町(1K/8階) | |||||||
![]() | 9万円 5,000円 | なし 9万円 | 1K 19.57m2 | 築27年 | 東京地下鉄千代田線 湯島駅 徒歩2分 東京地下鉄銀座線 上野広小路駅 徒歩6分 山手線 御徒町駅 徒歩8分 東京都文京区湯島3丁目 | 詳細を見る | |
マンション プライマル小石川(1DK/2階) | |||||||
![]() | 15.2万円 1万円 | 15.2万円 15.2万円 | 1DK 34.6m2 | 築20年 | 東京都大江戸線 飯田橋駅 徒歩9分 総武・中央緩行線 飯田橋駅 徒歩9分 東京地下鉄丸ノ内線 後楽園駅 徒歩11分 東京都文京区水道1丁目 | 詳細を見る | |
マンション ベルファース神田神保町(1DK/8階) | |||||||
![]() | 17.7万円 1万円 | 17.7万円 なし | 1DK 25.05m2 | 築2年 | 東京地下鉄半蔵門線 神保町駅 徒歩4分 東京都三田線 神保町駅 徒歩4分 総武・中央緩行線 水道橋駅 徒歩8分 東京都千代田区神田神保町1丁目 | 詳細を見る | |








