賃貸マンション
PASEO新宿3丁目I パセオ新宿3丁目Iの賃貸物件情報(1LDK/1階)
| 家賃 | 管理費等 | 敷金 | 礼金 | 間取り | 専有面積 |
|---|---|---|---|---|---|
| 20.6万円 | 1.5万円 | 20.6万円 | なし | 1LDK | 44.6m2 |
入居決定でお祝い金最大100,000円
- 保証金
- -
- 償却・敷引
- -
- 築年数
- 築6年
- 所在階
- 1階
- 向き
- 西
Point
★システムキッチン・グリル付2口コンロ★独立洗面台★温水洗浄便座★浴室乾燥機★室内洗濯機置場★エアコン★クローゼット★TVモニター付インターホン★オートロック★詳細はお気軽にお問い合わせください!★
提供:(株)ユウキ・ホーム麻布十番サテライト店(SUUMO経由)

詳細情報 PASEO新宿3丁目I パセオ新宿3丁目I
物件紹介
PASEO新宿3丁目I パセオ新宿3丁目Iは東京メトロ副都心線新宿三丁目駅から徒歩7分にあり、駅近で通勤通学に便利なマンションです。
建物のエントランスはオートロックがついており、インターホンにはTVモニタもついているため、相手の顔を確認してから来客対応することができます。
フローリングのお部屋なのでお掃除もラクラク。キッチンはシステムキッチン仕様になっていますので、お料理好きの方にもぴったり。バス・トイレは別なので、のんびりお風呂タイムも楽しめるでしょう。また、雨の日でも浴室乾燥機を使えば、お洗濯も問題ありません。
通信設備面では、インターネットが無料で使えるので、月々の出費を抑えられるのも魅力です(別途工事等が必要な場合あり)。
共用部には宅配ボックスが設定されているので、不在の時にも荷物を受け取ることができます。
建物のエントランスはオートロックがついており、インターホンにはTVモニタもついているため、相手の顔を確認してから来客対応することができます。
フローリングのお部屋なのでお掃除もラクラク。キッチンはシステムキッチン仕様になっていますので、お料理好きの方にもぴったり。バス・トイレは別なので、のんびりお風呂タイムも楽しめるでしょう。また、雨の日でも浴室乾燥機を使えば、お洗濯も問題ありません。
通信設備面では、インターネットが無料で使えるので、月々の出費を抑えられるのも魅力です(別途工事等が必要な場合あり)。
共用部には宅配ボックスが設定されているので、不在の時にも荷物を受け取ることができます。
お金・契約の情報
※「-」と表示されているものは、実際は料金が発生するものもございます。詳細はお問い合わせください。
| 家賃 | 20.6万円 | 管理費・共益費 | 1.5万円 |
|---|---|---|---|
| 敷金 | 20.6万円 | 礼金 | なし |
| 入居決定でお祝い金最大100,000円 | |||
| 保証金 | - | 償却・敷引 | - |
| 住宅保険料 | - | 更新料 | - |
| 保証会社利用 | 必須 | 保証会社名 | - |
| 保証会社費用 | - | 保証会社備考 | 保証会社利用必 初回保証料:70%※詳細はお問い合わせ下さい。 |
| 契約形態 | - | 契約期間 | - |
| 入居・引渡期間 | - | 現況 | - |
| 契約備考 | 巡回管理/エアコン清掃費:15000円 1年未満解約時違約金有※詳細はお問い合わせ下さい。 合計2.75万円(内訳:鍵交換代2.75万円) 室内清掃費用 55000円 1LDK 単身者可 普通借家2年 損保【2万円2年】 バストイレ別、エアコン、クロゼット、フローリング、TVインターホン、浴室乾燥機、オートロック、室内洗濯置、シューズボックス、システムキッチン、温水洗浄便座、洗面所独立、洗面化粧台、2口コンロ、宅配ボックス、礼金不要、防犯カメラ、IHクッキングヒーター、グリル付、保証人不要、2沿線利用可、メゾネット、ネット使用料不要、2駅利用可、3駅以上利用可、3沿線以上利用可、駅徒歩10分以内、都市ガス、天井高シューズクロゼット、保証会社利用可 入居日:'26年3月上旬 | ||
部屋の情報
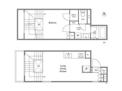
| 間取り | 1LDK | 専有面積 | 44.6m2 |
|---|---|---|---|
| 所在階 / 向き | 1階 / 西 | バルコニー面積 | - |
| 水道 / ガス | - | ||
| 設備 | バス・トイレ別、オートロック、テレビドアホン、宅配ボックス、浴室乾燥機、インターネット対応、システムキッチン、エアコン、温水洗浄便座、フローリング、洗髪洗面化粧台、2口コンロ、コンロ:IH、インターネット使用料無料、洗濯機:室内 | ||
| 当社物件ID | 100918025 | ||
建物の情報
| 建物名 | PASEO新宿3丁目I パセオ新宿3丁目I | ||
|---|---|---|---|
| 所在地 | 東京都新宿区新宿 | ||
| 交通 | 東京メトロ副都心線 新宿三丁目駅 徒歩7分 都営大江戸線 東新宿駅 徒歩9分 東京メトロ丸ノ内線 新宿御苑前駅 徒歩9分 | ||
| 階数 | 5階建 | 総戸数 | - |
| 築年月 | 2020年06月 / 築6年 | エレベーター | - |
| 駐車場 | なし | バイク置き場 | - |
| 駐輪場 | - | 管理人/管理会社 | - |
| 周辺環境 | その他 ファミリーマート 東京医科大学前店(コンビニ)まで153m その他 まいばすけっと 新宿5丁目店(スーパー)まで335m その他 スギドラッグ 新宿1丁目店(ドラッグストア)まで327m | ||
| 建物種別 | マンション | 建物構造 | RC(鉄筋コンクリート) |
この部屋の取扱い不動産会社
| 会社名 | (株)ユウキ・ホーム麻布十番網代公園店(SUUMO経由) | ||
|---|---|---|---|
| 所在地 | 東京都港区麻布十番2-19-10 桂麻布十番ビル1階 | 交通 | - |
| 営業時間 | 9:00~20:30 | 定休日 | なし |
| 免許番号 | 東京都知事76214 | 取引態様 | 仲介 |
| 不動産会社管理番号 | 100381784179 | 当社管理番号 | 89 |
| 所属団体 | (公社)東京都宅地建物取引業協会会員 | ||
| 公正取引協議会 | (公社)首都圏不動産公正取引協議会加盟 | ||
| 取扱い物件情報 | 物件詳細へ | ||
※各種情報と現状に差異がある場合は、現状優先となります。問い合わせをすることで、より詳しい条件、情報を確認する事ができます。
提供:(株)ユウキ・ホーム麻布十番網代公園店(SUUMO経由)
この物件が気になったら掲載期限まであと11日
PASEO新宿3丁目I パセオ新宿3丁目Iに条件(家賃・エリア)が近い物件一覧
| 写真 | 家賃 管理費等 | 敷金 礼金 | 間取り 専有面積 | 築年数 | 最寄り駅 所在地 | キープ | 詳細 |
|---|---|---|---|---|---|---|---|
マンション BLUROCK後楽園(1DK/4階) | |||||||
![]() | 14.1万円 1.2万円 | 14.1万円 なし | 1DK 25.29m2 | 築3年 | 東京地下鉄南北線 後楽園駅 徒歩7分 東京都三田線 春日駅(東京) 徒歩7分 東京都大江戸線 飯田橋駅 徒歩11分 東京都文京区春日1丁目 | 詳細を見る | |
マンション ザ・ライオンズフォーシア外神田(1DK/4階) | |||||||
![]() | 18万円 1.5万円 | 18万円 なし | 1DK 33.49m2 | 築1年 | 東京地下鉄銀座線 末広町駅(東京) 徒歩3分 総武・中央緩行線 秋葉原駅 徒歩9分 中央本線 御茶ノ水駅 徒歩10分 東京都千代田区外神田3丁目 | 詳細を見る | |
マンション UPPER FIELD WOOD(1LDK/3階) | |||||||
![]() | 18.5万円 8,000円 | 18.5万円 18.5万円 | 1LDK 40.47m2 | 築8年 | 東京地下鉄有楽町線 江戸川橋駅 徒歩4分 東京地下鉄東西線 早稲田駅(メトロ) 徒歩12分 東京地下鉄東西線 神楽坂駅 徒歩13分 東京都文京区関口1丁目 | 詳細を見る | |
マンション パークアクシス小伝馬町(ワンルーム/2階) | |||||||
![]() | 17.6万円 1.1万円 | 17.6万円 17.6万円 | ワンルーム 31.28m2 | 築10年 | 東京地下鉄日比谷線 小伝馬町駅 徒歩3分 総武本線 馬喰町駅 徒歩5分 山手線 秋葉原駅 徒歩11分 東京都千代田区岩本町1丁目 | 詳細を見る | |
マンション ZOOM飯田橋(ワンルーム/4階) | |||||||
![]() | 14.9万円 9,000円 | 14.9万円 なし | ワンルーム 25.44m2 | 築13年 | 東京都大江戸線 飯田橋駅 徒歩9分 総武・中央緩行線 飯田橋駅 徒歩10分 東京地下鉄丸ノ内線 後楽園駅 徒歩10分 東京都文京区水道1丁目 | 詳細を見る | |
マンション GRAN PASEO本郷三丁目(1K/9階) | |||||||
![]() | 14.2万円 1.5万円 | なし 14.2万円 | 1K 25.51m2 | 築5年 | 東京地下鉄丸ノ内線 本郷三丁目駅 徒歩7分 東京地下鉄千代田線 湯島駅 徒歩8分 中央本線 御茶ノ水駅 徒歩12分 東京都文京区本郷3丁目 | 詳細を見る | |
マンション 神明公園ハイツ・文京(1K/2階) | |||||||
![]() | 12.9万円 8,000円 | 12.9万円 12.9万円 | 1K 25.01m2 | 築3年 | 東京地下鉄南北線 駒込駅 徒歩10分 山手線 駒込駅 徒歩12分 東京都文京区本駒込5丁目 | 詳細を見る | |
マンション テラスミーレ文京弥生(1K/3階) | |||||||
![]() | 12.7万円 8,000円 | 12.7万円 12.7万円 | 1K 27.11m2 | 築3年 | 東京地下鉄南北線 東大前駅 徒歩4分 東京地下鉄千代田線 根津駅 徒歩10分 東京地下鉄千代田線 千駄木駅 徒歩11分 東京都文京区弥生1丁目 | 詳細を見る | |








