賃貸マンション
さくらヴィレッジ ペット棟の賃貸物件情報(2LDK/2階)
| 家賃 | 管理費等 | 敷金 | 礼金 | 間取り | 専有面積 |
|---|---|---|---|---|---|
| 9.1万円 | 1.3万円 | 18.2万円 | 9.1万円 | 2LDK | 52.02m2 |
入居決定でお祝い金最大100,000円
- 保証金
- -
- 償却・敷引
- -
- 築年数
- 築25年
- 所在階
- 2階
- 向き
- -
Point
株式会社bondでは経験豊富なスタッフが全力で交渉をさせて頂きます!現地・時間外のご案内も対応しております。現地での物件紹介も行っておりますのでお気軽にご相談下さい!
提供:(株)bond(SUUMO経由)

詳細情報 さくらヴィレッジ ペット棟
物件紹介
さくらヴィレッジ ペット棟は東武野田線北大宮駅から徒歩5分にあり、駅近で通勤通学に便利なマンションです。
このお部屋は2階以上に位置しているので、通行人や周囲の住人からの視線が気になりにくく、防犯面でも安心。建物のエントランスはオートロックがついており、インターホンにはTVモニタもついているため、相手の顔を確認してから来客対応することができます。
フローリングのお部屋なのでお掃除もラクラク。キッチンはシステムキッチン仕様になっていますので、お料理好きの方にもぴったり。また、バス・トイレは別で、のんびりお風呂タイムも楽しめるでしょう。
通信設備面では、インターネット接続が可能です。また、CATVにも対応しているので、おうち時間も充実するでしょう(別途工事、契約料が必要な場合あり)。
建物にはエレベーターがついているので、重い荷物があっても安心。
このお部屋は2階以上に位置しているので、通行人や周囲の住人からの視線が気になりにくく、防犯面でも安心。建物のエントランスはオートロックがついており、インターホンにはTVモニタもついているため、相手の顔を確認してから来客対応することができます。
フローリングのお部屋なのでお掃除もラクラク。キッチンはシステムキッチン仕様になっていますので、お料理好きの方にもぴったり。また、バス・トイレは別で、のんびりお風呂タイムも楽しめるでしょう。
通信設備面では、インターネット接続が可能です。また、CATVにも対応しているので、おうち時間も充実するでしょう(別途工事、契約料が必要な場合あり)。
建物にはエレベーターがついているので、重い荷物があっても安心。
お金・契約の情報
※「-」と表示されているものは、実際は料金が発生するものもございます。詳細はお問い合わせください。
| 家賃 | 9.1万円 | 管理費・共益費 | 1.3万円 |
|---|---|---|---|
| 敷金 | 18.2万円 | 礼金 | 9.1万円 |
| 入居決定でお祝い金最大100,000円 | |||
| 保証金 | - | 償却・敷引 | - |
| 住宅保険料 | - | 更新料 | - |
| 保証会社利用 | 必須 | 保証会社名 | - |
| 保証会社費用 | - | 保証会社備考 | 保証会社利用必 月額賃料等の50%(初回保証料) 月額賃料等の2%(月額保証料) |
| 契約形態 | - | 契約期間 | - |
| 入居・引渡期間 | 相談 | 現況 | - |
| 契約備考 | 株式会社bondではお客様の多様なニーズにお応え致します!希望の条件に沿った物件のご紹介をさせて頂きます!初期費用クレジット決済可能です!分譲マンション、新築、中古一戸建ての紹介も可能!売買や建物管理も行っておりますのでお気軽にご相談ください! 合計1.76万円(内訳:鍵交換代/17600円) 更新料/新賃料の1ヶ月分 2LDK 二人入居可 普通借家2年 損保【2.36万円2年】 バストイレ別、バルコニー、エアコン、ガスコンロ対応、クロゼット、フローリング、TVインターホン、オートロック、室内洗濯置、シューズボックス、システムキッチン、追焚機能浴室、エレベーター、洗面所独立、駐輪場、押入、CATV、閑静な住宅地、3口以上コンロ、防犯カメラ、全居室収納、オートバス、振分、保証人不要、CATVインターネット、二人入居相談、バイク置場、LDK15畳以上、ネット専用回線、敷金2ヶ月、一部フローリング、3駅以上利用可、3沿線以上利用可、駅徒歩5分以内、敷地内ごみ置き場、リビングの隣和室、和室、都市ガス、礼金1ヶ月、初期費用カード決済可 | ||
部屋の情報
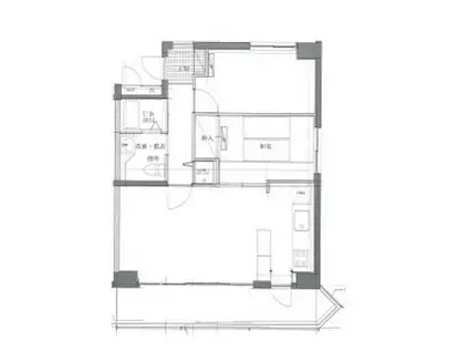
| 間取り | 2LDK | 専有面積 | 52.02m2 |
|---|---|---|---|
| 所在階 / 向き | 2階 / - | バルコニー面積 | - |
| 水道 / ガス | - | ||
| 設備 | バス・トイレ別、2階以上、オートロック、テレビドアホン、追い焚き、インターネット対応、システムキッチン、エアコン、エレベーター、バルコニー、フローリング、洗髪洗面化粧台、2口コンロ、コンロ:ガス、CATV、洗濯機:室内 | ||
| 当社物件ID | 160158401 | ||
建物の情報
| 建物名 | さくらヴィレッジ ペット棟 | ||
|---|---|---|---|
| 所在地 | 埼玉県さいたま市北区東大成町 | ||
| 交通 | 東武野田線 北大宮駅 徒歩5分 埼玉新都市交通伊奈線 鉄道博物館駅 徒歩5分 JR京浜東北線 大宮駅(埼玉) 徒歩18分 | ||
| 階数 | 7階建 | 総戸数 | - |
| 築年月 | 2001年03月 / 築25年 | エレベーター | あり |
| 駐車場 | 空有 12100円 | バイク置き場 | あり |
| 駐輪場 | あり | 管理人/管理会社 | - |
| 周辺環境 | その他 まいばすけっと鉄道博物館駅南店(スーパー)まで638m その他 ファミリーマート北大宮駅前店(コンビニ)まで673m その他 ドラッグストアセキ大成町店(ドラッグストア)まで763m その他 大川家具大宮店(ホームセンター)まで336m その他 さきたま書店プラスゲオ大宮大成店(レンタルビデオ)まで1019m その他 埼玉県立大宮中央高校(高校・高専)まで1364m | ||
| 建物種別 | マンション | 建物構造 | RC(鉄筋コンクリート) |
この部屋の取扱い不動産会社
| 会社名 | (株)bond(SUUMO経由) | ||
|---|---|---|---|
| 所在地 | 埼玉県さいたま市中央区下落合2-23-19 ガーデンハウス105 | 交通 | - |
| 営業時間 | 10:00~19:00 | 定休日 | 年中無休 |
| 免許番号 | 埼玉県知事20302 | 取引態様 | 仲介 |
| 不動産会社管理番号 | 100481190004 | 当社管理番号 | 89 |
| 所属団体 | (公社)埼玉県宅地建物取引業協会会員 | ||
| 公正取引協議会 | (公社)首都圏不動産公正取引協議会加盟 | ||
| 取扱い物件情報 | 物件詳細へ | ||
※各種情報と現状に差異がある場合は、現状優先となります。問い合わせをすることで、より詳しい条件、情報を確認する事ができます。
提供:(株)bond(SUUMO経由)
この物件が気になったら掲載期限まであと9日
さくらヴィレッジ ペット棟に条件(家賃・エリア)が近い物件一覧
| 写真 | 家賃 管理費等 | 敷金 礼金 | 間取り 専有面積 | 築年数 | 最寄り駅 所在地 | キープ | 詳細 |
|---|---|---|---|---|---|---|---|
アパート D-SERENO東田町Ⅱ(1LDK/1階) | |||||||
![]() | 10.4万円 7,000円 | なし なし | 1LDK 37.09m2 | 築1年 | 東武鉄道東上線 川越駅 徒歩12分 東武鉄道東上線 川越市駅 徒歩12分 埼玉県川越市東田町 | 詳細を見る | |
マンション THE GARLANDS(1K/4階) | |||||||
![]() | 7.5万円 5,000円 | なし なし | 1K 19.82m2 | 築1年 | 京浜東北・根岸線 西川口駅 徒歩7分 京浜東北・根岸線 川口駅 徒歩22分 京浜東北・根岸線 蕨駅 徒歩32分 埼玉県川口市西川口4丁目 | 詳細を見る | |
アパート KIRSCHE(1DK/3階) | |||||||
![]() | 7.3万円 6,000円 | なし 7.3万円 | 1DK 24.64m2 | 築3年 | 西武鉄道新宿線 南大塚駅 徒歩3分 埼玉県川越市南台2丁目 | 詳細を見る | |
アパート ドルチェテラス川越南大塚(1DK/1階) | |||||||
![]() | 6.2万円 3,000円 | なし 6.2万円 | 1DK 26.48m2 | 新築 | 西武鉄道新宿線 南大塚駅 徒歩4分 西武鉄道新宿線 新狭山駅 徒歩37分 東武鉄道東上線 川越駅 徒歩42分 埼玉県川越市 | 詳細を見る | |
アパート ヴィラ サンリット(1LDK/1階) | |||||||
![]() | 7.6万円 3,500円 | なし 7.6万円 | 1LDK 40.88m2 | 築2年 | 西武新宿線 南大塚駅 徒歩20分 埼玉県川越市 | 詳細を見る | |
アパート ジーメゾン川越南大塚グランディール(1LDK/3階) | |||||||
![]() | 6.8万円 5,000円 | なし 6.8万円 | 1LDK 32.04m2 | 築1年 | 西武鉄道新宿線 南大塚駅 徒歩13分 埼玉県川越市 | 詳細を見る | |
マンション シャトーサンワ(3DK/3階) | |||||||
![]() | 6.8万円 3,000円 | なし 6.8万円 | 3DK 54.23m2 | 築33年 | 西武鉄道新宿線 南大塚駅 徒歩1分 西武鉄道新宿線 新狭山駅 徒歩35分 川越線 西川越駅 徒歩64分 埼玉県川越市南台2丁目 | 詳細を見る | |
アパート プラウド シティ 南大塚D(1LDK/2階) | |||||||
![]() | 6.65万円 3,500円 | なし 6.65万円 | 1LDK 41.23m2 | 築7年 | 西武鉄道新宿線 南大塚駅 徒歩15分 川越線 川越駅 徒歩47分 埼玉県川越市 | 詳細を見る | |









