賃貸アパート
リブリ・KII の賃貸物件情報(1K/1階)
| 家賃 | 管理費等 | 敷金 | 礼金 | 間取り | 専有面積 |
|---|---|---|---|---|---|
| 7.3万円 | 4,000円 | なし | 7.3万円 | 1K | 26.08m2 |
入居決定でお祝い金最大100,000円
- 保証金
- -
- 償却・敷引
- -
- 築年数
- 築13年
- 所在階
- 1階
- 向き
- 東
Point
まずはお問い合わせ!
不動産会社は街のプロ、あなたに合った物件がきっと見つかります。
提供:ハウス・トゥ・ハウス・ネットサービス(株)川口店(SUUMO経由)

詳細情報 リブリ・KII
物件紹介
リブリ・KII は東武野田線北大宮駅から徒歩8分にあり、駅近で通勤通学に便利なアパートです。
このお部屋のインターホンにはTVモニタがついているため、相手の顔を確認してから来客対応することができます。
人気の角部屋で周囲の居住者の生活音も気になりにくく、また、フローリングのお部屋なのでお掃除もラクラク。キッチンはシステムキッチン仕様になっていますので、お料理好きの方にもぴったり。バス・トイレは別なので、のんびりお風呂タイムも楽しめるでしょう。また、雨の日でも浴室乾燥機を使えば、お洗濯も問題ありません。
通信設備面ではCATVに対応しているので、おうち時間も充実するでしょう(別途工事、契約料が必要な場合あり)。
このお部屋のインターホンにはTVモニタがついているため、相手の顔を確認してから来客対応することができます。
人気の角部屋で周囲の居住者の生活音も気になりにくく、また、フローリングのお部屋なのでお掃除もラクラク。キッチンはシステムキッチン仕様になっていますので、お料理好きの方にもぴったり。バス・トイレは別なので、のんびりお風呂タイムも楽しめるでしょう。また、雨の日でも浴室乾燥機を使えば、お洗濯も問題ありません。
通信設備面ではCATVに対応しているので、おうち時間も充実するでしょう(別途工事、契約料が必要な場合あり)。
お金・契約の情報
※「-」と表示されているものは、実際は料金が発生するものもございます。詳細はお問い合わせください。
| 家賃 | 7.3万円 | 管理費・共益費 | 4,000円 |
|---|---|---|---|
| 敷金 | なし | 礼金 | 7.3万円 |
| 入居決定でお祝い金最大100,000円 | |||
| 保証金 | - | 償却・敷引 | - |
| 住宅保険料 | - | 更新料 | - |
| 保証会社利用 | 必須 | 保証会社名 | - |
| 保証会社費用 | - | 保証会社備考 | 保証会社利用必 基本料:月額支払合計の100% 、月額料:月額支払合計の1.1%、口振手数料:330円/月 |
| 契約形態 | 定期借家 | 契約期間 | 2年 |
| 入居・引渡期間 | - | 現況 | - |
| 契約備考 | 1年未満の解約は総賃料の1か月分の違約金が発生します。定期借家契約2年(再契約料:新賃料の1ヶ月分)お車でご案内いたします。お気軽にお問い合わせください♪ 合計4.84万円(内訳:消毒費1.65万円リブリクラブ入会費0.77万円鍵交換代2.42万円) 室内清掃費用 41800円 リブリクラブ月額会費 月額2200円 1K 定期借家2年 損保【1.9万円2年】 バストイレ別、バルコニー、エアコン、ガスコンロ対応、クロゼット、フローリング、TVインターホン、浴室乾燥機、室内洗濯置、シューズボックス、システムキッチン、角住戸、温水洗浄便座、脱衣所、洗面所独立、洗面化粧台、2口コンロ、駐輪場、CATV、敷金不要、照明付、バイク置場、24時間緊急通報システム、3駅以上利用可、3沿線以上利用可、セキュリティ会社加入済、都市ガス、保証会社利用可、IT重説対応物件、初期費用カード決済可 入居日:'26年3月下旬 | ||
部屋の情報
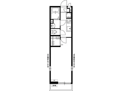
| 間取り | 1K | 専有面積 | 26.08m2 |
|---|---|---|---|
| 所在階 / 向き | 1階 / 東 | バルコニー面積 | - |
| 水道 / ガス | - | ||
| 設備 | バス・トイレ別、テレビドアホン、浴室乾燥機、システムキッチン、エアコン、温水洗浄便座、角部屋、バルコニー、フローリング、洗髪洗面化粧台、2口コンロ、コンロ:ガス、CATV、洗濯機:室内 | ||
| 当社物件ID | 23358167 | ||
建物の情報
| 建物名 | リブリ・KII | ||
|---|---|---|---|
| 所在地 | 埼玉県さいたま市大宮区土手町 | ||
| 交通 | 東武野田線 北大宮駅 徒歩8分 JR京浜東北線 大宮駅(埼玉) 徒歩13分 埼玉新都市交通伊奈線 鉄道博物館駅 徒歩14分 | ||
| 階数 | 2階建 | 総戸数 | - |
| 築年月 | 2013年06月 / 築13年 | エレベーター | - |
| 駐車場 | なし | バイク置き場 | あり |
| 駐輪場 | あり | 管理人/管理会社 | - |
| 周辺環境 | その他 マルエツ 大宮店(スーパー)まで965m その他 マルエツ 天沼店(スーパー)まで1948m その他 高島屋(ショッピングセンター)まで978m その他 ファミリーマート 大宮すずらん通り店(コンビニ)まで922m その他 東植竹公園(公園)まで1245m その他 鈴浦公園(公園)まで1480m | ||
| 建物種別 | アパート | 建物構造 | 木造 |
この部屋の取扱い不動産会社
| 会社名 | ハウス・トゥ・ハウス・ネットサービス(株)南浦和店(SUUMO経由) | ||
|---|---|---|---|
| 所在地 | 埼玉県さいたま市南区南浦和2-38-5 太陽ビル | 交通 | - |
| 営業時間 | 10時~18時30分(1.2.3月は9時30分~) | 定休日 | 水曜日 |
| 免許番号 | 国土交通大臣7400 | 取引態様 | 仲介 |
| 不動産会社管理番号 | 100490484172 | 当社管理番号 | 89 |
| 所属団体 | (公社)全日本不動産協会東京都本部会員 | ||
| 公正取引協議会 | (公社)首都圏不動産公正取引協議会加盟 | ||
| 取扱い物件情報 | 物件詳細へ | ||
※各種情報と現状に差異がある場合は、現状優先となります。問い合わせをすることで、より詳しい条件、情報を確認する事ができます。
提供:ハウス・トゥ・ハウス・ネットサービス(株)南浦和店(SUUMO経由)
この物件が気になったら掲載期限まであと12日
リブリ・KII に条件(家賃・エリア)が近い物件一覧
| 写真 | 家賃 管理費等 | 敷金 礼金 | 間取り 専有面積 | 築年数 | 最寄り駅 所在地 | キープ | 詳細 |
|---|---|---|---|---|---|---|---|
マンション レジデンス春日(3DK/1階) | |||||||
![]() | 7.4万円 3,000円 | なし なし | 3DK 58.28m2 | 築40年 | JR高崎線 北上尾駅 徒歩10分 JR高崎線 上尾駅 徒歩13分 JR高崎線 桶川駅 徒歩32分 埼玉県上尾市春日 | 詳細を見る | |
マンション コミネマンション(1LDK/3階) | |||||||
![]() | 8.9万円 5,000円 | 8.9万円 8.9万円 | 1LDK 47.1m2 | 築45年 | JR京浜東北線 さいたま新都心駅 徒歩14分 JR宇都宮線 さいたま新都心駅 徒歩14分 JR埼京線 大宮駅(埼玉) 徒歩25分 埼玉県さいたま市大宮区天沼町 | 詳細を見る | |
マンション M`S SQUARE(2LDK/3階) | |||||||
![]() | 9.1万円 7,500円 | なし 9.1万円 | 2LDK 58.23m2 | 築14年 | 東武伊勢崎線 越谷駅 徒歩17分 東武伊勢崎線 北越谷駅 徒歩23分 東武伊勢崎線 新越谷駅 徒歩32分 埼玉県越谷市宮本町 | 詳細を見る | |
マンション プルミエール田辺(2LDK/3階) | |||||||
![]() | 6.8万円 3,000円 | 6.8万円 6.8万円 | 2LDK 48.15m2 | 築37年 | 東武東上線 上福岡駅 徒歩13分 東武東上線 新河岸駅 徒歩20分 東武東上線 ふじみ野駅 徒歩40分 埼玉県川越市稲荷町 | 詳細を見る | |
マンション メゾン・ベルジュ(1LDK/4階) | |||||||
![]() | 10.6万円 6,000円 | 10.6万円 10.6万円 | 1LDK 41.4m2 | 築31年 | 埼玉高速鉄道 川口元郷駅 徒歩3分 JR京浜東北線 川口駅 徒歩16分 埼玉高速鉄道 南鳩ケ谷駅 徒歩24分 埼玉県川口市元郷 | 詳細を見る | |
マンション メゾン溝沼(2K/1階) | |||||||
![]() | 6.2万円 3,000円 | 6.2万円 なし | 2K 31.47m2 | 築37年 | 東武鉄道東上線 朝霞台駅 徒歩19分 埼玉県朝霞市 | 詳細を見る | |
マンション HYS TODA MAXIV(1K/2階) | |||||||
![]() | 8.2万円 1万円 | なし なし | 1K 21.46m2 | 築1年 | JR埼京線 戸田駅(埼玉) 徒歩12分 JR埼京線 北戸田駅 徒歩18分 JR埼京線 戸田公園駅 徒歩28分 埼玉県戸田市大字新曽 | 詳細を見る | |
マンション オリンピア(1K/3階) | |||||||
![]() | 6.4万円 6,000円 | 6.4万円 12.8万円 | 1K 26.25m2 | 築6年 | 東武東上線 ふじみ野駅 徒歩4分 東武東上線 上福岡駅 徒歩28分 埼玉県富士見市ふじみ野東 | 詳細を見る | |









