賃貸マンション
叡山電鉄 岩倉駅(京都) 徒歩10分 4階建 築26年の賃貸物件情報(3LDK/3階)
| 家賃 | 管理費等 | 敷金 | 礼金 | 間取り | 専有面積 |
|---|---|---|---|---|---|
| 8.3万円 | 8,000円 | なし | 8.3万円 | 3LDK | 65.21m2 |
入居決定でお祝い金最大100,000円
Point
左京区岩倉エリアの元とくゆうちん物件登場 明徳小学校 洛北中学校
提供:株式会社 京都ライフ 北大路店(賃貸スモッカ経由)

詳細情報 叡山電鉄 岩倉駅(京都) 徒歩10分 4階建 築26年
物件紹介
叡山電鉄岩倉駅から徒歩10分にあり、駅近で通勤通学に便利なマンションです。
このお部屋は2階以上に位置しているので、通行人や周囲の住人からの視線が気になりにくく、防犯面でも安心です。
フローリングのお部屋なのでお掃除もラクラク。バス・トイレ別の仕様で、のんびりお風呂タイムも楽しめます。
通信設備面では、インターネット接続が可能です。また、BSアンテナもありますので、おうち時間も充実するでしょう(別途工事、契約料が必要な場合あり)。
建物にはエレベーターがついているので、重い荷物があっても安心。
コンビニまで徒歩29分の場所にあり、日用品や食料品のお買い物にも便利です。
このお部屋は2階以上に位置しているので、通行人や周囲の住人からの視線が気になりにくく、防犯面でも安心です。
フローリングのお部屋なのでお掃除もラクラク。バス・トイレ別の仕様で、のんびりお風呂タイムも楽しめます。
通信設備面では、インターネット接続が可能です。また、BSアンテナもありますので、おうち時間も充実するでしょう(別途工事、契約料が必要な場合あり)。
建物にはエレベーターがついているので、重い荷物があっても安心。
コンビニまで徒歩29分の場所にあり、日用品や食料品のお買い物にも便利です。
お金・契約の情報
※「-」と表示されているものは、実際は料金が発生するものもございます。詳細はお問い合わせください。
| 家賃 | 8.3万円 | 管理費・共益費 | 8,000円 |
|---|---|---|---|
| 敷金 | なし | 礼金 | 8.3万円 |
| 入居決定でお祝い金最大100,000円 | |||
| 保証金 | - | 償却・敷引 | - |
| 住宅保険料 | 住宅保険料あり | 更新料 | - |
| 契約形態 | - | 契約期間 | 2年 |
| 入居・引渡期間 | 2026年01月下旬 | 現況 | 賃貸中 |
| 契約備考 | 元とくゆうちんの大型ファミリー物件です。しっかりとした造りで広い間取りが魅力的です お問合せは京都ライフまで 更新料:1ヶ月 保証会社:利用必須 初回:月額賃料等の50%、更新時:1.3万円/1年(初回保証料 総賃料120% 更新保証料なしプランあり) | ||
部屋の情報
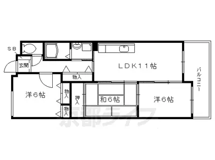
| 間取り | 3LDK | 専有面積 | 65.21m2 |
|---|---|---|---|
| 間取り詳細 | 洋室(6帖)、和室(6帖)、洋室(6帖)、LDK(11帖) | ||
| 所在階 / 向き | 3階 / 東 | バルコニー面積 | - |
| 水道 / ガス | ガス【都市】 | ||
| 設備 | バス・トイレ別、2階以上、インターネット対応、エレベーター、バルコニー、フローリング、BSアンテナ、洗濯機:室内 | ||
| 当社物件ID | 159973884 | ||
建物の情報
| 建物名 | 叡山電鉄 岩倉駅(京都) 徒歩10分 4階建 築26年 | ||
|---|---|---|---|
| 所在地 | 京都府京都市左京区岩倉中町 | ||
| 交通 | 叡山電鉄 岩倉駅(京都) 徒歩10分 京都市烏丸線 国際会館駅 徒歩20分 | ||
| 階数 | 4階建 | 総戸数 | - |
| 築年月 | 2000年04月 / 築26年 | エレベーター | あり |
| 駐車場 | - | バイク置き場 | - |
| 駐輪場 | あり | 管理人/管理会社 | - |
| 周辺環境 | コンビニ 徒歩29分(2284m) 販売店 徒歩8分(610m) その他 ドラッグストア その他 公園 その他 銀行 その他 ダイエー上溝店 徒歩9分(667m) | ||
| 建物種別 | マンション | 建物構造 | RC(鉄筋コンクリート) |
この部屋の取扱い不動産会社
| 会社名 | 株式会社 京都ライフ 北大路店(賃貸スモッカ経由) | ||
|---|---|---|---|
| 所在地 | 京都市北区小山上総町11 | 交通 | - |
| 営業時間 | - | 定休日 | - |
| 免許番号 | 京都府知事(11)第6353号 | 取引態様 | 仲介 |
| 不動産会社管理番号 | kyotolife_38934-304-22 | 当社管理番号 | 463 |
| 所属団体 | 京都府宅地建物取引業協会\n公益社団法人近畿地区不動産公正取引協議会 | ||
| 公正取引協議会 | 全国宅地建物取引業保証協会 | ||
| 取扱い物件情報 | 物件詳細へ | ||
※各種情報と現状に差異がある場合は、現状優先となります。問い合わせをすることで、より詳しい条件、情報を確認する事ができます。
提供:株式会社 京都ライフ 北大路店(賃貸スモッカ経由)
この物件が気になったら掲載期限まであと5日
叡山電鉄 岩倉駅(京都) 徒歩10分 4階建 築26年に条件(家賃・エリア)が近い物件一覧
| 写真 | 家賃 管理費等 | 敷金 礼金 | 間取り 専有面積 | 築年数 | 最寄り駅 所在地 | キープ | 詳細 |
|---|---|---|---|---|---|---|---|
マンション 京阪電気鉄道宇治線 木幡駅(京阪) 徒歩5分 築27年(3LDK/7階) | |||||||
![]() | 8.3万円 なし | 8.3万円 なし | 3LDK 67.96m2 | 築27年 | 京阪電気鉄道宇治線 木幡駅(京阪) 徒歩5分 奈良線 木幡駅(JR) 徒歩8分 京都府宇治市木幡 | 詳細を見る | |
マンション 京阪電気鉄道宇治線 木幡駅(京阪) 徒歩5分 築30年(3LDK/4階) | |||||||
![]() | 8.1万円 なし | 10万円 なし | 3LDK 66.97m2 | 築30年 | 京阪電気鉄道宇治線 木幡駅(京阪) 徒歩5分 奈良線 木幡駅(JR) 徒歩10分 京都府宇治市木幡 | 詳細を見る | |
アパート CAMERA幡枝(2LDK/2階) | |||||||
![]() | 9.1万円 5,000円 | 9.1万円 9.1万円 | 2LDK 53.04m2 | 築2年 | 叡山電鉄 京都精華大前駅 徒歩15分 叡山電鉄 木野駅 徒歩19分 京都府京都市左京区岩倉幡枝町 | 詳細を見る | |
マンション 京阪電気鉄道宇治線 木幡駅(京阪) 徒歩5分 築27年(3LDK/3階) | |||||||
![]() | 8.3万円 なし | 8.3万円 なし | 3LDK 67.96m2 | 築27年 | 京阪電気鉄道宇治線 木幡駅(京阪) 徒歩5分 奈良線 木幡駅(JR) 徒歩8分 京都府宇治市木幡 | 詳細を見る | |
マンション こまかも川(ワンルーム/2階) | |||||||
![]() | 5.3万円 なし | なし 5.3万円 | ワンルーム 18.2m2 | 築21年 | 京阪電気鉄道京阪線 三条駅(京都) 徒歩7分 京都府京都市左京区孫橋町 | 詳細を見る | |
マンション 阪急電鉄京都線 東向日駅 徒歩7分 築4年(2LDK/2階) | |||||||
![]() | 11.5万円 8,000円 | 11.5万円 23万円 | 2LDK 56.65m2 | 築4年 | 阪急電鉄京都線 東向日駅 徒歩7分 東海道本線 向日町駅 徒歩12分 京都府向日市寺戸町東野辺 | 詳細を見る | |
マンション 近鉄京都線 小倉駅(京都) 徒歩10分 築30年(1K/6階) | |||||||
![]() | 5万円 5,000円 | なし なし | 1K 22.46m2 | 築30年 | 近鉄京都線 小倉駅(京都) 徒歩10分 近鉄京都線 大久保駅(京都) 徒歩15分 京都府宇治市小倉町 | 詳細を見る | |
マンション 叡山電鉄 修学院駅 徒歩2分 築15年(1K/2階) | |||||||
![]() | 6.305万円 9,950円 | なし 8万円 | 1K 22.95m2 | 築15年 | 叡山電鉄 修学院駅 徒歩2分 京都市烏丸線 松ケ崎駅(京都) 徒歩16分 京都府京都市左京区山端橋ノ本町 | 詳細を見る | |








