賃貸マンション
京阪電気鉄道宇治線 木幡駅(京阪) 徒歩5分 7階建 築27年の賃貸物件情報(3LDK/3階)
| 家賃 | 管理費等 | 敷金 | 礼金 | 間取り | 専有面積 |
|---|---|---|---|---|---|
| 8.3万円 | なし | 8.3万円 | なし | 3LDK | 67.96m2 |
入居決定でお祝い金最大100,000円
Point
分譲級賃貸 追焚き、浴室乾燥付き3LDK 京阪・JRの2WAYアクセス可
提供:株式会社 京都ライフ 京田辺店(賃貸スモッカ経由)

詳細情報 京阪電気鉄道宇治線 木幡駅(京阪) 徒歩5分 7階建 築27年
物件紹介
京阪電気鉄道宇治線木幡駅から徒歩5分にあり、駅近で通勤通学に便利なマンションです。
このお部屋は2階以上に位置しているので通行人や周囲の住人からの視線が気になりにくく、建物のエントランスはオートロックがついているので防犯性が高くなっています。
人気の南向きのお部屋。また、フローリングなのでお掃除もラクラク。バス・トイレ別の仕様で、のんびりお風呂タイムも楽しめます。また、浴室乾燥機を使えば、雨の日でもお洗濯は問題ありません。
通信設備面では、インターネット接続が可能です(別途工事、契約料が必要な場合あり)。
建物にはエレベーターがついているので、重い荷物があっても安心。共用部には宅配ボックスが設定されているので、不在の時にも荷物を受け取ることができます。
このお部屋は2階以上に位置しているので通行人や周囲の住人からの視線が気になりにくく、建物のエントランスはオートロックがついているので防犯性が高くなっています。
人気の南向きのお部屋。また、フローリングなのでお掃除もラクラク。バス・トイレ別の仕様で、のんびりお風呂タイムも楽しめます。また、浴室乾燥機を使えば、雨の日でもお洗濯は問題ありません。
通信設備面では、インターネット接続が可能です(別途工事、契約料が必要な場合あり)。
建物にはエレベーターがついているので、重い荷物があっても安心。共用部には宅配ボックスが設定されているので、不在の時にも荷物を受け取ることができます。
お金・契約の情報
※「-」と表示されているものは、実際は料金が発生するものもございます。詳細はお問い合わせください。
| 家賃 | 8.3万円 | 管理費・共益費 | なし |
|---|---|---|---|
| 敷金 | 8.3万円 | 礼金 | なし |
| 入居決定でお祝い金最大100,000円 | |||
| 保証金 | - | 償却・敷引 | - |
| 住宅保険料 | 住宅保険料あり | 更新料 | - |
| 契約形態 | - | 契約期間 | 2年 |
| 入居・引渡期間 | 相談 | 現況 | 空室 |
| 契約備考 | 京阪木幡駅まで徒歩5分の3LDKマンションです。JR、京阪のダブルアクセス。更新料ナシです。嬉しい3点セパレートに浴室乾燥機、追い焚き機能付浴室など充実の設備。オートロックでセキュリティも安心です。コンビニ、スーパー、ドラッグストアなど近くにあって便利ですよ。 LIFE SUPPORT:16,500円 解約時事務手数料:11,000円 更新料:無し 保証会社:利用必須 初回:月額賃料等の50%、月額:800円 | ||
部屋の情報
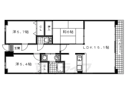
| 間取り | 3LDK | 専有面積 | 67.96m2 |
|---|---|---|---|
| 間取り詳細 | 和室(6帖)、洋室(5.7帖)、洋室(5.4帖)、LDK(15.1帖) | ||
| 所在階 / 向き | 3階 / 南 | バルコニー面積 | - |
| 水道 / ガス | ガス【都市】 | ||
| 設備 | バス・トイレ別、2階以上、オートロック、宅配ボックス、浴室乾燥機、追い焚き、インターネット対応、エアコン、エレベーター、南向き、バルコニー、フローリング、洗濯機:室内 | ||
| 当社物件ID | 159838242 | ||
建物の情報
| 建物名 | 京阪電気鉄道宇治線 木幡駅(京阪) 徒歩5分 7階建 築27年 | ||
|---|---|---|---|
| 所在地 | 京都府宇治市木幡 | ||
| 交通 | 京阪電気鉄道宇治線 木幡駅(京阪) 徒歩5分 奈良線 木幡駅(JR) 徒歩8分 | ||
| 階数 | 7階建 | 総戸数 | - |
| 築年月 | 1999年07月 / 築27年 | エレベーター | あり |
| 駐車場 | - | バイク置き場 | - |
| 駐輪場 | あり | 管理人/管理会社 | - |
| 建物種別 | マンション | 建物構造 | RC(鉄筋コンクリート) |
この部屋の取扱い不動産会社
| 会社名 | 株式会社 京都ライフ 京田辺店(賃貸スモッカ経由) | ||
|---|---|---|---|
| 所在地 | 京都府京田辺市田辺中央1丁目7-11 | 交通 | - |
| 営業時間 | - | 定休日 | - |
| 免許番号 | 京都府知事(11)第6353号 | 取引態様 | 仲介 |
| 不動産会社管理番号 | kyotolife_04797-305-24 | 当社管理番号 | 463 |
| 所属団体 | 京都府宅地建物取引業協会\n公益社団法人近畿地区不動産公正取引協議会 | ||
| 公正取引協議会 | 全国宅地建物取引業保証協会 | ||
| 取扱い物件情報 | 物件詳細へ | ||
※各種情報と現状に差異がある場合は、現状優先となります。問い合わせをすることで、より詳しい条件、情報を確認する事ができます。
提供:株式会社 京都ライフ 京田辺店(賃貸スモッカ経由)
この物件が気になったら掲載期限まであと5日
京阪電気鉄道宇治線 木幡駅(京阪) 徒歩5分 7階建 築27年に条件(家賃・エリア)が近い物件一覧
| 写真 | 家賃 管理費等 | 敷金 礼金 | 間取り 専有面積 | 築年数 | 最寄り駅 所在地 | キープ | 詳細 |
|---|---|---|---|---|---|---|---|
マンション 京阪電気鉄道京阪線 伏見稲荷駅 徒歩1分 築48年(2DK/3階) | |||||||
![]() | 6.2万円 6,000円 | なし なし | 2DK 51.6m2 | 築48年 | 京阪電気鉄道京阪線 伏見稲荷駅 徒歩1分 奈良線 稲荷駅 徒歩4分 京都府京都市伏見区深草一ノ坪町 | 詳細を見る | |
アパート 京阪電気鉄道京阪線 鳥羽街道駅 徒歩5分 築1年(2LDK/2階) | |||||||
![]() | 13.3万円 8,000円 | なし 26.6万円 | 2LDK 57.39m2 | 築1年 | 京阪電気鉄道京阪線 鳥羽街道駅 徒歩5分 東海道本線 京都駅 徒歩25分 京都府京都市東山区福稲下高松町 | 詳細を見る | |
アパート 京都市東西線 東野駅(京都) 徒歩20分 築15年(1K/2階) | |||||||
![]() | 5.1万円 7,000円 | なし なし | 1K 22.08m2 | 築15年 | 京都市東西線 東野駅(京都) 徒歩20分 東海道本線 山科駅 徒歩23分 京都府京都市山科区西野櫃川町 | 詳細を見る | |
アパート 山陰本線 嵯峨嵐山駅 徒歩5分 築18年(1K/2階) | |||||||
![]() | 6.2万円 7,000円 | なし 6.2万円 | 1K 21.81m2 | 築18年 | 山陰本線 嵯峨嵐山駅 徒歩5分 阪急電鉄嵐山線 嵐山駅(阪急) 徒歩17分 京都府京都市右京区嵯峨大覚寺門前八軒町 | 詳細を見る | |
アパート 山陰本線 花園駅(京都) 徒歩10分 築1年(1LDK/3階) | |||||||
![]() | 7.55万円 4,000円 | なし 7.55万円 | 1LDK 29.18m2 | 築1年 | 山陰本線 花園駅(京都) 徒歩10分 京都市東西線 太秦天神川駅 徒歩11分 京都府京都市右京区太秦安井馬塚町 | 詳細を見る | |
アパート レオパレスおおやぶ2(1K/1階) | |||||||
![]() | 5.9万円 7,000円 | なし 5.9万円 | 1K 19.87m2 | 築20年 | 東海道本線 向日町駅 徒歩15分 京都府京都市南区久世大薮町 | 詳細を見る | |







