賃貸マンション
ルーブル早稲田弐番館の賃貸物件情報(2K/4階)
| 家賃 | 管理費等 | 敷金 | 礼金 | 間取り | 専有面積 |
|---|---|---|---|---|---|
| 14万円 | なし | なし | 14万円 | 2K | 31.58m2 |
入居決定でお祝い金最大100,000円
Point
まずはお問い合わせ!
不動産会社は街のプロ、あなたに合った物件がきっと見つかります。
提供:(株)アセットナビ(SUUMO経由)

詳細情報 ルーブル早稲田弐番館
物件紹介
ルーブル早稲田弐番館は東京メトロ東西線早稲田駅から徒歩3分にあり、駅近で通勤通学に便利なマンションです。
このお部屋は2階以上に位置しているので、通行人や周囲の住人からの視線が気になりにくく、防犯面でも安心。建物のエントランスはオートロックがついており、インターホンにはTVモニタもついているため、相手の顔を確認してから来客対応することができます。
おしゃれなデザイナーズ物件!人気の角部屋で周囲の居住者の生活音も気になりにくく、また、フローリングのお部屋なのでお掃除もラクラク。室内にはウォークインクローゼットがありますので、たくさんの荷物も効率的に収納ができます。キッチンはシステムキッチン仕様になっていますので、お料理好きの方にもぴったり。バス・トイレは別なので、のんびりお風呂タイムも楽しめるでしょう。また、雨の日でも浴室乾燥機を使えば、お洗濯も問題ありません。
通信設備面では、インターネット接続が可能です。また、BSアンテナ・CSアンテナがありCATVにも対応しているので、おうち時間も充実するでしょう(別途工事、契約料が必要な場合あり)。
建物にはエレベーターがついているので、重い荷物があっても安心。共用部には宅配ボックスが設定されているので、不在の時にも荷物を受け取ることができます。
このお部屋は2階以上に位置しているので、通行人や周囲の住人からの視線が気になりにくく、防犯面でも安心。建物のエントランスはオートロックがついており、インターホンにはTVモニタもついているため、相手の顔を確認してから来客対応することができます。
おしゃれなデザイナーズ物件!人気の角部屋で周囲の居住者の生活音も気になりにくく、また、フローリングのお部屋なのでお掃除もラクラク。室内にはウォークインクローゼットがありますので、たくさんの荷物も効率的に収納ができます。キッチンはシステムキッチン仕様になっていますので、お料理好きの方にもぴったり。バス・トイレは別なので、のんびりお風呂タイムも楽しめるでしょう。また、雨の日でも浴室乾燥機を使えば、お洗濯も問題ありません。
通信設備面では、インターネット接続が可能です。また、BSアンテナ・CSアンテナがありCATVにも対応しているので、おうち時間も充実するでしょう(別途工事、契約料が必要な場合あり)。
建物にはエレベーターがついているので、重い荷物があっても安心。共用部には宅配ボックスが設定されているので、不在の時にも荷物を受け取ることができます。
お金・契約の情報
※「-」と表示されているものは、実際は料金が発生するものもございます。詳細はお問い合わせください。
| 家賃 | 14万円 | 管理費・共益費 | なし |
|---|---|---|---|
| 敷金 | なし | 礼金 | 14万円 |
| 入居決定でお祝い金最大100,000円 | |||
| 保証金 | - | 償却・敷引 | - |
| 住宅保険料 | 1円 | 更新料 | - |
| その他費用 | TFDclub:2万円、27500円:、ルームクリーニング費用(退去時):6.6万円 | ||
| 保証会社利用 | 必須 | 保証会社名 | - |
| 保証会社費用 | - | 保証会社備考 | 賃料+管理費の30%〜40% |
| 契約形態 | - | 契約期間 | 2年 |
| 入居・引渡期間 | 即時 | 現況 | - |
| 入居可能条件 | 2人入居可 | ||
| 契約備考 | その他設備/条件:室内洗濯機置き場、ごみ出し24時間OK、防犯カメラ、シューズボックス、照明器具付き | ||
部屋の情報
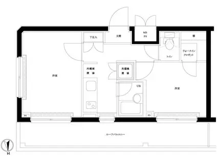
| 間取り | 2K | 専有面積 | 31.58m2 |
|---|---|---|---|
| 間取り詳細 | 洋室(4.5帖)、LDK(8帖) | ||
| 所在階 / 向き | 4階 / 北 | バルコニー面積 | - |
| 水道 / ガス | ガス【都市】 | ||
| 設備 | バス・トイレ別、オートロック、テレビドアホン、宅配ボックス、浴室乾燥機、システムキッチン、エアコン、エレベーター、温水洗浄便座、角部屋、バルコニー、フローリング、2口コンロ、コンロ:ガス、CATV、CSアンテナ、BSアンテナ、シャワー、給湯、タイル張り | ||
| 当社物件ID | 5041361 | ||
建物の情報
| 建物名 | ルーブル早稲田弐番館 | ||
|---|---|---|---|
| 所在地 | 東京都新宿区戸山1丁目 | ||
| 交通 | 東京地下鉄東西線 早稲田駅(メトロ) 徒歩3分 東京都大江戸線 若松河田駅 徒歩8分 | ||
| 階数 | 5階建 | 総戸数 | - |
| 築年月 | 2005年10月 / 築21年 | エレベーター | あり |
| 駐車場 | なし | バイク置き場 | - |
| 駐輪場 | あり | 管理人/管理会社 | - |
| 周辺環境 | その他 ドラッグストア その他 公園 その他 銀行 その他 * | ||
| 建物種別 | マンション | 建物構造 | RC(鉄筋コンクリート) |
この部屋の取扱い不動産会社
| 会社名 | ハウスコム西東京株式会社 明大前店 | ||
|---|---|---|---|
| 所在地 | 東京都世田谷区44-1グランシーン明大前1階 | 交通 | - |
| 営業時間 | 10:00~18:00 | 定休日 | - |
| 免許番号 | 東京都知事(1)第108225号 | 取引態様 | 仲介 |
| 不動産会社管理番号 | HC4-2674721-414-0133 | 当社管理番号 | 468 |
| 所属団体 | 、 | ||
| 取扱い物件情報 | 物件詳細へ | ||
※各種情報と現状に差異がある場合は、現状優先となります。問い合わせをすることで、より詳しい条件、情報を確認する事ができます。
提供:ハウスコム西東京株式会社 明大前店
この物件が気になったら掲載期限まであと5日
ルーブル早稲田弐番館に条件(家賃・エリア)が近い物件一覧
| 写真 | 家賃 管理費等 | 敷金 礼金 | 間取り 専有面積 | 築年数 | 最寄り駅 所在地 | キープ | 詳細 |
|---|---|---|---|---|---|---|---|
マンション コンシェリア新橋(1K/9階) | |||||||
![]() | 13.6万円 1.2万円 | 13.6万円 なし | 1K 20.49m2 | 築19年 | JR山手線 新橋駅 徒歩2分 都営大江戸線 汐留駅 徒歩7分 都営三田線 内幸町駅 徒歩11分 東京都港区新橋 | 詳細を見る | |
マンション エルフラット白山(1K/3階) | |||||||
![]() | 10万円 1万円 | なし 10万円 | 1K 25.88m2 | 築20年 | 都営三田線 白山駅(東京) 徒歩7分 都営三田線 千石駅 徒歩8分 東京メトロ南北線 本駒込駅 徒歩13分 東京都文京区白山 | 詳細を見る | |
マンション ガーデンコートT(1LDK/1階) | |||||||
![]() | 19.6万円 なし | 19.6万円 23.52万円 | 1LDK 55m2 | 築23年 | 東京メトロ東西線 落合駅 徒歩3分 都営大江戸線 中井駅 徒歩3分 JR中央線 東中野駅 徒歩12分 東京都新宿区上落合 | 詳細を見る | |
マンション 菱和パレス虎ノ門(1DK/8階) | |||||||
![]() | 13.8万円 1.2万円 | 13.8万円 13.8万円 | 1DK 25.86m2 | 築26年 | 東京メトロ日比谷線 神谷町駅 徒歩3分 東京メトロ銀座線 虎ノ門駅 徒歩9分 東京都港区虎ノ門 | 詳細を見る | |
マンション ドムール江古田(2SDK/1階) | |||||||
![]() | 15万円 5,000円 | 15万円 15万円 | 2SDK 60m2 | 築30年 | 西武新宿線 沼袋駅 徒歩10分 西武新宿線 野方駅 徒歩12分 西武新宿線 都立家政駅 徒歩17分 東京都中野区江古田 | 詳細を見る | |
マンション レジディア神田東(1LDK/4階) | |||||||
![]() | 21.5万円 2万円 | 21.5万円 なし | 1LDK 43.88m2 | 築23年 | JR山手線 神田駅(東京) 徒歩6分 東京メトロ日比谷線 小伝馬町駅 徒歩6分 都営新宿線 岩本町駅 徒歩7分 東京都千代田区岩本町 | 詳細を見る | |
マンション ブライズ神保町(1K/5階) | |||||||
![]() | 11.4万円 6,000円 | なし 11.4万円 | 1K 22m2 | 築17年 | 東京メトロ半蔵門線 神保町駅 徒歩6分 JR中央線 水道橋駅 徒歩6分 JR総武線 御茶ノ水駅 徒歩10分 東京都千代田区神田猿楽町神田猿楽町 | 詳細を見る | |
マンション KDXレジデンス千駄木(1DK/8階) | |||||||
![]() | 12.5万円 1万円 | 12.5万円 12.5万円 | 1DK 30.45m2 | 築26年 | 東京メトロ千代田線 千駄木駅 徒歩3分 JR京浜東北線 日暮里駅 徒歩8分 JR山手線 西日暮里駅 徒歩9分 東京都文京区千駄木 | 詳細を見る | |








