賃貸マンション
MFPR目黒タワーの賃貸物件情報(2SLDK/3階)
| 家賃 | 管理費等 | 敷金 | 礼金 | 間取り | 専有面積 |
|---|---|---|---|---|---|
| 57万円 | 1.5万円 | 57万円 | 57万円 | 2SLDK | 77.64m2 |
入居決定でお祝い金最大100,000円
Point
まずはお問い合わせ!
不動産会社は街のプロ、あなたに合った物件がきっと見つかります。
提供:アパマンショップ代々木店
/424x317-f1-q70-wp1)
詳細情報 MFPR目黒タワー
物件紹介
MFPR目黒タワーはJR山手線目黒駅から徒歩7分にあり、駅近で通勤通学に便利なマンションです。
このお部屋は2階以上に位置しているので、通行人や周囲の住人からの視線が気になりにくく、防犯面でも安心。建物のエントランスはオートロックがついており、インターホンにはTVモニタもついているため、相手の顔を確認してから来客対応することができます。
おしゃれなデザイナーズ物件!また、楽器相談が可能な物件となっているので、楽器演奏をお考えの方はぜひ相談してみてください。人気の南向き・フローリングのお部屋。室内にはウォークインクローゼットがありますので、たくさんの荷物も効率的に収納ができます。キッチンはシステムキッチン仕様になっていますので、お料理好きの方にもぴったり。バス・トイレは別なので、のんびりお風呂タイムも楽しめるでしょう。また、雨の日でも浴室乾燥機を使えば、お洗濯も問題ありません。
通信設備面では、インターネット接続が可能です。また、BSアンテナ・CSアンテナがありCATVにも対応しているので、おうち時間も充実するでしょう(別途工事、契約料が必要な場合あり)。
床暖房があり、冬も足元から暖かく快適に過ごすことができます。建物にはエレベーターがついているので、重い荷物があっても安心。共用部には宅配ボックスが設定されているので、不在の時にも荷物を受け取ることができます。また、ペット飼育の相談ができますので、あなたの大切な家族の一員も快適に暮らせるか、ぜひ確認してみてください。
このお部屋は2階以上に位置しているので、通行人や周囲の住人からの視線が気になりにくく、防犯面でも安心。建物のエントランスはオートロックがついており、インターホンにはTVモニタもついているため、相手の顔を確認してから来客対応することができます。
おしゃれなデザイナーズ物件!また、楽器相談が可能な物件となっているので、楽器演奏をお考えの方はぜひ相談してみてください。人気の南向き・フローリングのお部屋。室内にはウォークインクローゼットがありますので、たくさんの荷物も効率的に収納ができます。キッチンはシステムキッチン仕様になっていますので、お料理好きの方にもぴったり。バス・トイレは別なので、のんびりお風呂タイムも楽しめるでしょう。また、雨の日でも浴室乾燥機を使えば、お洗濯も問題ありません。
通信設備面では、インターネット接続が可能です。また、BSアンテナ・CSアンテナがありCATVにも対応しているので、おうち時間も充実するでしょう(別途工事、契約料が必要な場合あり)。
床暖房があり、冬も足元から暖かく快適に過ごすことができます。建物にはエレベーターがついているので、重い荷物があっても安心。共用部には宅配ボックスが設定されているので、不在の時にも荷物を受け取ることができます。また、ペット飼育の相談ができますので、あなたの大切な家族の一員も快適に暮らせるか、ぜひ確認してみてください。
お金・契約の情報
※「-」と表示されているものは、実際は料金が発生するものもございます。詳細はお問い合わせください。
| 家賃 | 57万円 | 管理費・共益費 | 1.5万円 |
|---|---|---|---|
| 敷金 | 57万円 | 礼金 | 57万円 |
| 入居決定でお祝い金最大100,000円 | |||
| 保証金 | - | 償却・敷引 | - |
| 住宅保険料 | - | 更新料 | - |
| 保証会社利用 | 利用可 | 保証会社名 | レジデントアシスタント |
| 保証会社費用 | - | 保証会社備考 | 初回:月額賃料(共益費・駐車場料金含む)の50%、年間:9,600円 |
| 契約形態 | - | 契約期間 | 2年 |
| 入居・引渡期間 | 2026年04月上旬 | 現況 | - |
| 入居可能条件 | ペット可 | ||
| 契約備考 | 口座振替事務手数料 110円/鍵交換費 22000円、[退去時費用:室内清掃費 145,186円 ※故意・過失等別途実費] | ||
部屋の情報
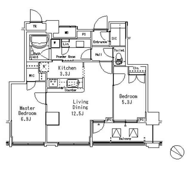
| 間取り | 2SLDK | 専有面積 | 77.64m2 |
|---|---|---|---|
| 所在階 / 向き | 3階 / 南西 | バルコニー面積 | 14m2 |
| 水道 / ガス | - | ||
| 設備 | バス・トイレ別、オートロック、宅配ボックス、浴室乾燥機、ウォークインクローゼット、追い焚き、インターネット対応、エレベーター、バルコニー、フローリング、タワーマンション、CATV、CSアンテナ、BSアンテナ、洗濯機:室内 | ||
| 当社物件ID | 160179167 | ||
建物の情報
| 建物名 | MFPR目黒タワー | ||
|---|---|---|---|
| 所在地 | 東京都目黒区目黒1丁目 | ||
| 交通 | 山手線 目黒駅 徒歩9分 | ||
| 階数 | 25階建 | 総戸数 | - |
| 築年月 | 2008年02月 / 築18年 | エレベーター | あり |
| 駐車場 | - | バイク置き場 | あり |
| 駐輪場 | あり | 管理人/管理会社 | - |
| 周辺環境 | その他 (株)三菱UFJ銀行/恵比寿支店 徒歩18分(1401m) その他 みずほ銀行恵比寿駅西口出張所 徒歩18分(1416m) その他 焼肉ライク 徒歩19分(1454m) その他 ファミリーマートメトロ恵比寿駅前店 徒歩19分(1466m) その他 まるはち青果 徒歩19分(1479m) その他 ピーコックストア恵比寿店 徒歩19分(1482m) その他 ココカラファイン恵比寿店 徒歩19分(1508m) その他 クリーニング ワールド恵比寿店 徒歩21分(1628m) | ||
| 建物種別 | マンション | 建物構造 | RC(鉄筋コンクリート) |
この部屋の取扱い不動産会社
| 会社名 | アパマンショップ三軒茶屋駅前店 | ||
|---|---|---|---|
| 所在地 | 東京都世田谷区三軒茶屋2丁目 13−16 | 交通 | 東急田園都市線三軒茶屋から徒歩1分 |
| 営業時間 | 09:30〜19:30 | 定休日 | - |
| 免許番号 | 国土交通大臣(1)10927 | 取引態様 | 仲介 |
| 不動産会社管理番号 | 1002108024 | 当社管理番号 | 4 |
| 所属団体 | (公社)東京都宅地建物取引業協会 | ||
| 公正取引協議会 | (公社) 首都圏不動産公正取引協議会加盟 | ||
| 取扱い物件情報 | 物件詳細へ | ||
※各種情報と現状に差異がある場合は、現状優先となります。問い合わせをすることで、より詳しい条件、情報を確認する事ができます。
提供:アパマンショップ三軒茶屋駅前店
この物件が気になったら掲載期限まであと12日
MFPR目黒タワーに条件(家賃・エリア)が近い物件一覧
| 写真 | 家賃 管理費等 | 敷金 礼金 | 間取り 専有面積 | 築年数 | 最寄り駅 所在地 | キープ | 詳細 |
|---|---|---|---|---|---|---|---|
マンション ガーデン東が丘(3LDK/2階) | |||||||
![]() | 71万円 なし | 71万円 71万円 | 3LDK 149.29m2 | 築27年 | 東急田園都市線 駒沢大学駅 徒歩12分 東急東横線 都立大学駅 徒歩21分 東急東横線 学芸大学駅 徒歩23分 東京都目黒区東が丘 | 詳細を見る | |
マンション 中目黒 南東向き 2LDK(2LDK/1階) | |||||||
![]() | 34.8万円 1万円 | 34.8万円 34.8万円 | 2LDK 58.18m2 | 築14年 | 東急東横線 中目黒駅 徒歩3分 東京都目黒区上目黒 | 詳細を見る | |
マンション サステナブル松涛(2LDK/1階) | |||||||
![]() | 63万円 2.8万円 | 126万円 63万円 | 2LDK 122m2 | 築15年 | 東京メトロ半蔵門線 渋谷駅 徒歩7分 JR山手線 渋谷駅 徒歩10分 東京メトロ千代田線 代々木公園駅 徒歩12分 東京都渋谷区松濤 | 詳細を見る | |
マンション アクティ目黒駅前2号棟 8階(3LDK/8階) | |||||||
![]() | 42.3万円 8,000円 | 42.3万円 42.3万円 | 3LDK 70.67m2 | 築26年 | JR山手線 目黒駅 徒歩7分 東京メトロ南北線 白金台駅 徒歩20分 東急目黒線 不動前駅 徒歩21分 東京都目黒区目黒 | 詳細を見る | |
マンション 代々木参宮橋テラス(2LDK/1階) | |||||||
![]() | 35万円 なし | 70万円 35万円 | 2LDK 59.4m2 | 築3年 | 小田急線 参宮橋駅 徒歩6分 京王新線 初台駅 徒歩7分 東京メトロ千代田線 代々木公園駅 徒歩15分 東京都渋谷区代々木 | 詳細を見る | |
マンション オープンレジデンシア代官山ザ・ハウス(2LDK/6階) | |||||||
![]() | 50万円 2万円 | 100万円 50万円 | 2LDK 76.18m2 | 築8年 | 東急東横線 代官山駅 徒歩5分 東京メトロ日比谷線 恵比寿駅 徒歩10分 東急東横線 渋谷駅 徒歩12分 東京都渋谷区代官山町 | 詳細を見る | |
マンション エムジー目黒駅前(2LDK/13階) | |||||||
![]() | 43.5万円 1.5万円 | なし なし | 2LDK 62.72m2 | 築20年 | JR山手線 目黒駅 徒歩1分 東京メトロ南北線 白金台駅 徒歩14分 東急目黒線 不動前駅 徒歩17分 東京都品川区上大崎 | 詳細を見る | |
マンション 渋谷アインス(3LDK/6階) | |||||||
![]() | 60万円 なし | 60万円 60万円 | 3LDK 94.38m2 | 築25年 | 東急東横線 渋谷駅 徒歩4分 JR山手線 渋谷駅 徒歩9分 東京メトロ副都心線 明治神宮前駅 徒歩10分 東京都渋谷区渋谷 | 詳細を見る | |








