賃貸マンション
MFPR目黒タワーの賃貸物件情報(2LDK/21階)
| 家賃 | 管理費等 | 敷金 | 礼金 | 間取り | 専有面積 |
|---|---|---|---|---|---|
| 80万円 | 5万円 | 80万円 | なし | 2LDK | 105.83m2 |
入居決定でお祝い金最大100,000円
Point
中野坂上店ではこちらのお部屋は仲介手数料55%(税込)です!
提供:アパマンショップ麻布店

詳細情報 MFPR目黒タワー
物件紹介
MFPR目黒タワーは山手線目黒駅から徒歩7分にあり、駅近で通勤通学に便利なマンションです。
このお部屋は2階以上に位置しているので、通行人や周囲の住人からの視線が気になりにくく、防犯面でも安心。建物のエントランスはオートロックがついており、インターホンにはTVモニタもついているため、相手の顔を確認してから来客対応することができます。
おしゃれなデザイナーズ物件!また、楽器相談が可能な物件となっているので、楽器演奏をお考えの方はぜひ相談してみてください。人気の南向き・フローリングのお部屋。角部屋でもあるため、周囲の居住者の生活音も気になりにくい場所です。室内にはウォークインクローゼットがありますので、たくさんの荷物も効率的に収納ができます。キッチンはシステムキッチン仕様になっていますので、お料理好きの方にもぴったり。バス・トイレは別なので、のんびりお風呂タイムも楽しめるでしょう。また、雨の日でも浴室乾燥機を使えば、お洗濯も問題ありません。
通信設備面では、インターネット接続が可能です。また、BSアンテナ・CSアンテナがありCATVにも対応しているので、おうち時間も充実するでしょう(別途工事、契約料が必要な場合あり)。
床暖房があり、冬も足元から暖かく快適に過ごすことができます。建物にはエレベーターがついているので、重い荷物があっても安心。共用部には宅配ボックスが設定されているので、不在の時にも荷物を受け取ることができます。また、ペット飼育の相談ができますので、あなたの大切な家族の一員も快適に暮らせるか、ぜひ確認してみてください。
このお部屋は2階以上に位置しているので、通行人や周囲の住人からの視線が気になりにくく、防犯面でも安心。建物のエントランスはオートロックがついており、インターホンにはTVモニタもついているため、相手の顔を確認してから来客対応することができます。
おしゃれなデザイナーズ物件!また、楽器相談が可能な物件となっているので、楽器演奏をお考えの方はぜひ相談してみてください。人気の南向き・フローリングのお部屋。角部屋でもあるため、周囲の居住者の生活音も気になりにくい場所です。室内にはウォークインクローゼットがありますので、たくさんの荷物も効率的に収納ができます。キッチンはシステムキッチン仕様になっていますので、お料理好きの方にもぴったり。バス・トイレは別なので、のんびりお風呂タイムも楽しめるでしょう。また、雨の日でも浴室乾燥機を使えば、お洗濯も問題ありません。
通信設備面では、インターネット接続が可能です。また、BSアンテナ・CSアンテナがありCATVにも対応しているので、おうち時間も充実するでしょう(別途工事、契約料が必要な場合あり)。
床暖房があり、冬も足元から暖かく快適に過ごすことができます。建物にはエレベーターがついているので、重い荷物があっても安心。共用部には宅配ボックスが設定されているので、不在の時にも荷物を受け取ることができます。また、ペット飼育の相談ができますので、あなたの大切な家族の一員も快適に暮らせるか、ぜひ確認してみてください。
お金・契約の情報
※「-」と表示されているものは、実際は料金が発生するものもございます。詳細はお問い合わせください。
| 家賃 | 80万円 | 管理費・共益費 | 5万円 |
|---|---|---|---|
| 敷金 | 80万円 | 礼金 | なし |
| 入居決定でお祝い金最大100,000円 | |||
| 保証金 | - | 償却・敷引 | - |
| 住宅保険料 | - | 更新料 | - |
| 保証会社利用 | 利用可 | 保証会社名 | レジデントアシスタント |
| 保証会社費用 | - | 保証会社備考 | 初回:月額賃料(共益費・駐車場料金含む)の50%、年間:9,600円 |
| 契約形態 | 定期借家 | 契約期間 | 2年 |
| 入居・引渡期間 | 相談 | 現況 | - |
| 入居可能条件 | ペット可 | ||
| 契約備考 | 口座振替事務手数料 110円/鍵交換費 22000円、[退去時費用:室内清掃費 197,902円 ※故意・過失等別途実費] | ||
部屋の情報
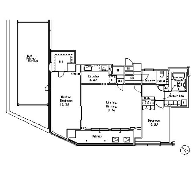
| 間取り | 2LDK | 専有面積 | 105.83m2 |
|---|---|---|---|
| 所在階 / 向き | 21階 / 南西 | バルコニー面積 | 11m2 |
| 水道 / ガス | - | ||
| 設備 | バス・トイレ別、オートロック、宅配ボックス、浴室乾燥機、ウォークインクローゼット、追い焚き、インターネット対応、エレベーター、バルコニー、フローリング、タワーマンション、CATV、CSアンテナ、BSアンテナ、洗濯機:室内 | ||
| 当社物件ID | 20594761 | ||
建物の情報
| 建物名 | MFPR目黒タワー | ||
|---|---|---|---|
| 所在地 | 東京都目黒区目黒1丁目 | ||
| 交通 | 山手線 目黒駅 徒歩8分 | ||
| 階数 | 25階建 | 総戸数 | - |
| 築年月 | 2008年02月 / 築18年 | エレベーター | あり |
| 駐車場 | - | バイク置き場 | あり |
| 駐輪場 | - | 管理人/管理会社 | - |
| 周辺環境 | その他 代々木五郵便局 徒歩76分(6023m) その他 ファミリーマート 徒歩80分(6355m) その他 吉野家 徒歩81分(6421m) その他 セブンイレブン 徒歩82分(6533m) その他 デニーズ西新宿店 徒歩84分(6661m) その他 マルエツプチ西新宿三丁目店 徒歩85分(6783m) その他 まいばすけっと渋谷本町2丁目店 徒歩85分(6769m) その他 代々木警察署 不動前交番 徒歩86分(6838m) | ||
| 建物種別 | マンション | 建物構造 | RC(鉄筋コンクリート) |
この部屋の取扱い不動産会社
| 会社名 | アパマンショップ中野坂上店 | ||
|---|---|---|---|
| 所在地 | 東京都中野区中央2丁目 2−3STARLIGHT BLDG.1F | 交通 | 東京地下鉄丸ノ内線中野坂上から徒歩1分 |
| 営業時間 | 10:00〜17:00 | 定休日 | 火曜日、水曜日 |
| 免許番号 | 東京都知事(3)92941 | 取引態様 | 仲介 |
| 不動産会社管理番号 | 72399521 | 当社管理番号 | 4 |
| 所属団体 | (公社)東京都宅地建物取引業協会 | ||
| 公正取引協議会 | (公社) 首都圏不動産公正取引協議会加盟 | ||
| 取扱い物件情報 | 物件詳細へ | ||
※各種情報と現状に差異がある場合は、現状優先となります。問い合わせをすることで、より詳しい条件、情報を確認する事ができます。
提供:アパマンショップ中野坂上店
この物件が気になったら掲載期限まであと12日
MFPR目黒タワーに条件(家賃・エリア)が近い物件一覧
| 写真 | 家賃 管理費等 | 敷金 礼金 | 間取り 専有面積 | 築年数 | 最寄り駅 所在地 | キープ | 詳細 |
|---|---|---|---|---|---|---|---|
マンション プラウドタワー渋谷(2LDK/20階) | |||||||
![]() | 85万円 なし | 170万円 85万円 | 2LDK 81.63m2 | 築1年 | JR山手線 渋谷駅 徒歩9分 東急東横線 代官山駅 徒歩16分 東京メトロ銀座線 表参道駅 徒歩17分 東京都渋谷区渋谷 | 詳細を見る | |
マンション ザ・パークハビオ目黒プレイス(2LDK/7階) | |||||||
![]() | 52万円 3万円 | 52万円 52万円 | 2LDK 60.16m2 | 築1年 | JR山手線 目黒駅 徒歩5分 東急目黒線 不動前駅 徒歩14分 JR山手線 五反田駅 徒歩18分 東京都目黒区下目黒 | 詳細を見る | |
マンション URBAN BREEZE 恵比寿(2LDK/13階) | |||||||
![]() | 68万円 2万円 | 68万円 なし | 2LDK 84.38m2 | 新築 | JR山手線 恵比寿駅 徒歩7分 東急東横線 代官山駅 徒歩9分 JR山手線 渋谷駅 徒歩10分 東京都渋谷区東 | 詳細を見る | |
マンション 恵比寿の杜センターレジデンス(2LDK/5階) | |||||||
![]() | 80万円 なし | 240万円 80万円 | 2LDK 121.01m2 | 築21年 | JR山手線 恵比寿駅 徒歩5分 東京メトロ日比谷線 恵比寿駅 徒歩5分 東急東横線 代官山駅 徒歩18分 東京都渋谷区恵比寿 | 詳細を見る | |
マンション FULLEA代々木(2LDK/5階) | |||||||
![]() | 59万円 1.5万円 | 59万円 なし | 2LDK 73.64m2 | 新築 | 小田急線 南新宿駅 徒歩1分 JR山手線 代々木駅 徒歩5分 都営大江戸線 新宿駅 徒歩12分 東京都渋谷区代々木 | 詳細を見る | |
マンション 恵比寿ガーデンテラス弐番館(2LDK/8階) | |||||||
![]() | 98.5万円 なし | 197万円 197万円 | 2LDK 108.49m2 | 築32年 | JR山手線 恵比寿駅 徒歩10分 東京メトロ南北線 目黒駅 徒歩15分 都営三田線 白金台駅 徒歩21分 東京都渋谷区恵比寿 | 詳細を見る | |
マンション アーバンパーク代官山2(2LDK/4階) | |||||||
![]() | 54.5万円 1.5万円 | 54.5万円 54.5万円 | 2LDK 97.1m2 | 築20年 | 東急東横線 代官山駅 徒歩6分 JR埼京線 渋谷駅 徒歩10分 東京メトロ日比谷線 恵比寿駅 徒歩11分 東京都渋谷区猿楽町 | 詳細を見る | |







