賃貸マンション
MFPR目黒タワーの賃貸物件情報(2SLDK/24階)
| 家賃 | 管理費等 | 敷金 | 礼金 | 間取り | 専有面積 |
|---|---|---|---|---|---|
| 79万円 | 5万円 | 79万円 | なし | 2SLDK | 109.87m2 |
入居決定でお祝い金最大100,000円
- 保証金
- -
- 償却・敷引
- -
- 築年数
- 築19年
- 所在階
- 24階
- 向き
- 南西
Point
他社様掲載のでもまとめてご紹介&初期費用交や初期費用分割払いも可能です!LINE等でのオンライン内見も可能ですのでお気軽にご相談ください。別途、売買のご相談も承っております。
提供:(株)リアルビジョン(SUUMO経由)

詳細情報 MFPR目黒タワー
物件紹介
MFPR目黒タワーはJR山手線目黒駅から徒歩7分にあり、駅近で通勤通学に便利なマンションです。
このお部屋は2階以上に位置しているので、通行人や周囲の住人からの視線が気になりにくく、防犯面でも安心。建物のエントランスはオートロックがついており、インターホンにはTVモニタもついているため、相手の顔を確認してから来客対応することができます。
おしゃれなデザイナーズ物件!また、楽器相談が可能な物件となっているので、楽器演奏をお考えの方はぜひ相談してみてください。人気の南向き・フローリングのお部屋。角部屋でもあるため、周囲の居住者の生活音も気になりにくい場所です。室内にはウォークインクローゼットがありますので、たくさんの荷物も効率的に収納ができます。キッチンはシステムキッチン仕様になっていますので、お料理好きの方にもぴったり。バス・トイレは別なので、のんびりお風呂タイムも楽しめるでしょう。また、雨の日でも浴室乾燥機を使えば、お洗濯も問題ありません。
通信設備面では、インターネット接続が可能です。また、BSアンテナ・CSアンテナがありCATVにも対応しているので、おうち時間も充実するでしょう(別途工事、契約料が必要な場合あり)。
建物にはエレベーターがついているので、重い荷物があっても安心。共用部には宅配ボックスが設定されているので、不在の時にも荷物を受け取ることができます。また、ペット飼育の相談ができますので、あなたの大切な家族の一員も快適に暮らせるか、ぜひ確認してみてください。
このお部屋は2階以上に位置しているので、通行人や周囲の住人からの視線が気になりにくく、防犯面でも安心。建物のエントランスはオートロックがついており、インターホンにはTVモニタもついているため、相手の顔を確認してから来客対応することができます。
おしゃれなデザイナーズ物件!また、楽器相談が可能な物件となっているので、楽器演奏をお考えの方はぜひ相談してみてください。人気の南向き・フローリングのお部屋。角部屋でもあるため、周囲の居住者の生活音も気になりにくい場所です。室内にはウォークインクローゼットがありますので、たくさんの荷物も効率的に収納ができます。キッチンはシステムキッチン仕様になっていますので、お料理好きの方にもぴったり。バス・トイレは別なので、のんびりお風呂タイムも楽しめるでしょう。また、雨の日でも浴室乾燥機を使えば、お洗濯も問題ありません。
通信設備面では、インターネット接続が可能です。また、BSアンテナ・CSアンテナがありCATVにも対応しているので、おうち時間も充実するでしょう(別途工事、契約料が必要な場合あり)。
建物にはエレベーターがついているので、重い荷物があっても安心。共用部には宅配ボックスが設定されているので、不在の時にも荷物を受け取ることができます。また、ペット飼育の相談ができますので、あなたの大切な家族の一員も快適に暮らせるか、ぜひ確認してみてください。
お金・契約の情報
※「-」と表示されているものは、実際は料金が発生するものもございます。詳細はお問い合わせください。
| 家賃 | 79万円 | 管理費・共益費 | 5万円 |
|---|---|---|---|
| 敷金 | 79万円 | 礼金 | なし |
| 入居決定でお祝い金最大100,000円 | |||
| 保証金 | - | 償却・敷引 | - |
| 住宅保険料 | - | 更新料 | - |
| 保証会社利用 | 必須 | 保証会社名 | - |
| 保証会社費用 | - | 保証会社備考 | 保証会社利用必 初回保証委託料(最低20000円):月額賃料等の50%、 2年目以降:9600円/年 |
| 契約形態 | - | 契約期間 | - |
| 入居・引渡期間 | 即時 | 現況 | - |
| 入居可能条件 | ペット相談 | ||
| 契約備考 | 東京メトロ日比谷線中目黒駅徒歩20分 合計2.2万円(内訳:鍵交換代:22000円) 更新料新賃料(ヶ月):1.00ヶ月 2SLDK ペット相談 普通借家2年 損保【要】 バストイレ別、バルコニー、エアコン、クロゼット、フローリング、浴室乾燥機、オートロック、室内洗濯置、追焚機能浴室、エレベーター、洗面化粧台、宅配ボックス、CATV、即入居可、礼金不要、BS・CS、ペット相談、ウォークインクロゼット、敷金1ヶ月、バイク置場、ネット専用回線、保証金不要、3沿線以上利用可、駅徒歩10分以内、タワー型マンション、高層階、敷地内ごみ置き場、南西向き | ||
部屋の情報
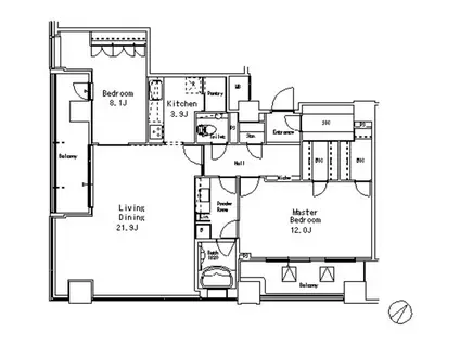
| 間取り | 2SLDK | 専有面積 | 109.87m2 |
|---|---|---|---|
| 所在階 / 向き | 24階 / 南西 | バルコニー面積 | - |
| 水道 / ガス | - | ||
| 設備 | バス・トイレ別、2階以上、オートロック、宅配ボックス、浴室乾燥機、ウォークインクローゼット、追い焚き、インターネット対応、エアコン、エレベーター、南向き、バルコニー、フローリング、タワーマンション、CATV、CSアンテナ、BSアンテナ、洗濯機:室内 | ||
| 当社物件ID | 26785168 | ||
建物の情報
| 建物名 | MFPR目黒タワー | ||
|---|---|---|---|
| 所在地 | 東京都目黒区目黒 | ||
| 交通 | JR山手線 目黒駅 徒歩7分 東急目黒線 不動前駅 徒歩16分 JR埼京線 恵比寿駅 徒歩21分 | ||
| 階数 | 地下2地上25階建 | 総戸数 | - |
| 築年月 | 2008年02月 / 築19年 | エレベーター | あり |
| 駐車場 | なし | バイク置き場 | あり |
| 駐輪場 | - | 管理人/管理会社 | - |
| 周辺環境 | その他 目黒駅(JR東日本 山手線)(その他)まで610m その他 無印良品アトレ目黒店(ショッピングセンター)まで600m その他 マルエツ目黒店(スーパー)まで390m その他 ローソン下目黒1丁目店(コンビニ)まで240m その他 ココカラファイン目黒店(ドラッグストア)まで180m その他 DCM DIY place(ホームセンター)まで1330m | ||
| 建物種別 | マンション | 建物構造 | RC(鉄筋コンクリート) |
この部屋の取扱い不動産会社
| 会社名 | エンカウンター(株)(SUUMO経由) | ||
|---|---|---|---|
| 所在地 | 東京都文京区白山1-5-4 HAKU TUBO 202 | 交通 | - |
| 営業時間 | 9時30分から20時30分 | 定休日 | なし |
| 免許番号 | 東京都知事99347 | 取引態様 | 仲介 |
| 不動産会社管理番号 | 100459608665 | 当社管理番号 | 89 |
| 所属団体 | (公社)全日本不動産協会東京都本部会員 | ||
| 公正取引協議会 | (公社)首都圏不動産公正取引協議会加盟 | ||
| 取扱い物件情報 | 物件詳細へ | ||
※各種情報と現状に差異がある場合は、現状優先となります。問い合わせをすることで、より詳しい条件、情報を確認する事ができます。
提供:エンカウンター(株)(SUUMO経由)
この物件が気になったら掲載期限まであと10日
MFPR目黒タワーに条件(家賃・エリア)が近い物件一覧
| 写真 | 家賃 管理費等 | 敷金 礼金 | 間取り 専有面積 | 築年数 | 最寄り駅 所在地 | キープ | 詳細 |
|---|---|---|---|---|---|---|---|
マンション パークコート神宮前(2SLDK/13階) | |||||||
![]() | 65万円 なし | 130万円 65万円 | 2SLDK 85.62m2 | 築18年 | JR山手線 原宿駅 徒歩6分 東京メトロ副都心線 明治神宮前駅 徒歩7分 東京メトロ千代田線 明治神宮前駅 徒歩7分 東京都渋谷区神宮前 | 詳細を見る | |
一戸建て 東急大井町線 九品仏駅 徒歩4分 築6年(2SLDK) | |||||||
![]() | 49万円 なし | 98万円 49万円 | 2SLDK 65.42m2 | 築6年 | 東急大井町線 九品仏駅 徒歩4分 東急東横線 自由が丘駅(東京) 徒歩9分 東京都世田谷区奥沢7丁目 | 詳細を見る | |
マンション 広尾ガーデンヒルズM棟(2LDK/5階) | |||||||
![]() | 74万円 なし | 222万円 74万円 | 2LDK 85.51m2 | 築43年 | 東京メトロ日比谷線 広尾駅 徒歩6分 都営大江戸線 六本木駅 徒歩20分 東京メトロ千代田線 乃木坂駅 徒歩21分 東京都渋谷区広尾 | 詳細を見る | |
マンション センチュリーフォレスト4号棟(2LDK/6階) | |||||||
![]() | 68.9万円 2万円 | 68.9万円 137.8万円 | 2LDK 91.37m2 | 築15年 | JR山手線 渋谷駅 徒歩7分 東急東横線 代官山駅 徒歩8分 京王井の頭線 神泉駅 徒歩14分 東京都渋谷区鶯谷町 | 詳細を見る | |
マンション スプランディッド品川DUE(3LDK/4階) | |||||||
![]() | 47.4万円 2万円 | 47.4万円 なし | 3LDK 82.69m2 | 築1年 | 湘南新宿ライン宇須 西大井駅 徒歩4分 都営浅草線 中延駅 徒歩10分 東急大井町線 中延駅 徒歩10分 東京都品川区二葉 | 詳細を見る | |
マンション クイズ恵比寿(1LDK/9階) | |||||||
![]() | 77万円 1万円 | 77万円 なし | 1LDK 68.18m2 | 築22年 | 山手線 恵比寿駅 徒歩1分 東急東横線 代官山駅 徒歩13分 東京都渋谷区恵比寿4丁目 | 詳細を見る | |
マンション グランドメゾン代沢(3LDK/3階) | |||||||
![]() | 82万円 3万円 | 82万円 82万円 | 3LDK 111.8m2 | 築18年 | 京王井の頭線 池ノ上駅 徒歩8分 小田急線 下北沢駅 徒歩12分 京王井の頭線 駒場東大前駅 徒歩15分 東京都世田谷区代沢 | 詳細を見る | |
マンション レフィール参宮橋ヒルズ(2LDK/5階) | |||||||
![]() | 60万円 なし | 60万円 60万円 | 2LDK 94.86m2 | 築11年 | 小田急線 参宮橋駅 徒歩3分 京王新線 初台駅 徒歩10分 JR山手線 代々木駅 徒歩17分 東京都渋谷区代々木 | 詳細を見る | |








