賃貸マンション
MFPR目黒タワーの賃貸物件情報(2LDK/6階)
| 家賃 | 管理費等 | 敷金 | 礼金 | 間取り | 専有面積 |
|---|---|---|---|---|---|
| 58.1万円 | 1.5万円 | 58.1万円 | 58.1万円 | 2LDK | 78.95m2 |
入居決定でお祝い金最大100,000円
Point
宅配ボックス付きの物件なので不在時の荷物受け取りもできます。
提供:(株)ユウキ・ホーム麻布十番店(SUUMO経由)

詳細情報 MFPR目黒タワー
物件紹介
MFPR目黒タワーはJR山手線目黒駅から徒歩7分にあり、駅近で通勤通学に便利なマンションです。
このお部屋は2階以上に位置しているので、通行人や周囲の住人からの視線が気になりにくく、防犯面でも安心。建物のエントランスはオートロックがついており、インターホンにはTVモニタもついているため、相手の顔を確認してから来客対応することができます。
おしゃれなデザイナーズ物件!また、楽器相談が可能な物件となっているので、楽器演奏をお考えの方はぜひ相談してみてください。人気の南向き・フローリングのお部屋。角部屋でもあるため、周囲の居住者の生活音も気になりにくい場所です。室内にはウォークインクローゼットがありますので、たくさんの荷物も効率的に収納ができます。キッチンはシステムキッチン仕様になっていますので、お料理好きの方にもぴったり。バス・トイレは別なので、のんびりお風呂タイムも楽しめるでしょう。また、雨の日でも浴室乾燥機を使えば、お洗濯も問題ありません。
通信設備面では、インターネット接続が可能です。また、BSアンテナ・CSアンテナがありCATVにも対応しているので、おうち時間も充実するでしょう(別途工事、契約料が必要な場合あり)。
建物にはエレベーターがついているので、重い荷物があっても安心。共用部には宅配ボックスが設定されているので、不在の時にも荷物を受け取ることができます。また、ペット飼育の相談ができますので、あなたの大切な家族の一員も快適に暮らせるか、ぜひ確認してみてください。
このお部屋は2階以上に位置しているので、通行人や周囲の住人からの視線が気になりにくく、防犯面でも安心。建物のエントランスはオートロックがついており、インターホンにはTVモニタもついているため、相手の顔を確認してから来客対応することができます。
おしゃれなデザイナーズ物件!また、楽器相談が可能な物件となっているので、楽器演奏をお考えの方はぜひ相談してみてください。人気の南向き・フローリングのお部屋。角部屋でもあるため、周囲の居住者の生活音も気になりにくい場所です。室内にはウォークインクローゼットがありますので、たくさんの荷物も効率的に収納ができます。キッチンはシステムキッチン仕様になっていますので、お料理好きの方にもぴったり。バス・トイレは別なので、のんびりお風呂タイムも楽しめるでしょう。また、雨の日でも浴室乾燥機を使えば、お洗濯も問題ありません。
通信設備面では、インターネット接続が可能です。また、BSアンテナ・CSアンテナがありCATVにも対応しているので、おうち時間も充実するでしょう(別途工事、契約料が必要な場合あり)。
建物にはエレベーターがついているので、重い荷物があっても安心。共用部には宅配ボックスが設定されているので、不在の時にも荷物を受け取ることができます。また、ペット飼育の相談ができますので、あなたの大切な家族の一員も快適に暮らせるか、ぜひ確認してみてください。
お金・契約の情報
※「-」と表示されているものは、実際は料金が発生するものもございます。詳細はお問い合わせください。
| 家賃 | 58.1万円 | 管理費・共益費 | 1.5万円 |
|---|---|---|---|
| 敷金 | 58.1万円 | 礼金 | 58.1万円 |
| 入居決定でお祝い金最大100,000円 | |||
| 保証金 | - | 償却・敷引 | - |
| 住宅保険料 | 1円 | 更新料 | - |
| その他費用 | 室内清掃費:14.7636万円、22000円: | ||
| 保証会社利用 | 必須 | 保証会社名 | - |
| 保証会社費用 | - | 保証会社備考 | 保証会社名:レジデントアシスタンス株式会社/初回保証委託料(最低20000円):月額賃料等の50%、 2年目以降:9600円/年 |
| 契約形態 | - | 契約期間 | 2年 |
| 入居・引渡期間 | 2026年05月下旬 | 現況 | - |
| 入居可能条件 | 事務所不可、ペット相談 | ||
| 契約備考 | 月額(口座振替事務手数料 220円) その他設備/条件:室内洗濯機置き場、フロントサービス、独立洗面台、クローゼット | ||
部屋の情報
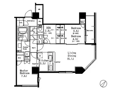
| 間取り | 2LDK | 専有面積 | 78.95m2 |
|---|---|---|---|
| 所在階 / 向き | 6階 / 南東 | バルコニー面積 | 5m2 |
| 水道 / ガス | - | ||
| 設備 | バス・トイレ別、オートロック、テレビドアホン、宅配ボックス、浴室乾燥機、ウォークインクローゼット、追い焚き、インターネット対応、エアコン、エレベーター、バルコニー、フローリング、CATV、CSアンテナ、BSアンテナ | ||
| 当社物件ID | 27110393 | ||
建物の情報
| 建物名 | MFPR目黒タワー | ||
|---|---|---|---|
| 所在地 | 東京都目黒区目黒1丁目 | ||
| 交通 | 山手線 目黒駅 徒歩7分 東急目黒線 目黒駅 徒歩8分 | ||
| 階数 | 25階建 | 総戸数 | - |
| 築年月 | 2008年02月 / 築19年 | エレベーター | あり |
| 駐車場 | なし | バイク置き場 | あり |
| 駐輪場 | - | 管理人/管理会社 | - |
| 周辺環境 | 販売店 徒歩21分(1655m) その他 ドラッグストア その他 公園 その他 銀行 その他 * | ||
| 建物種別 | マンション | 建物構造 | RC(鉄筋コンクリート) |
この部屋の取扱い不動産会社
| 会社名 | ハウスコム西東京株式会社 五反田店 | ||
|---|---|---|---|
| 所在地 | 東京都品川区12-12落合ビル2階 | 交通 | - |
| 営業時間 | 10:00~18:00 | 定休日 | - |
| 免許番号 | 東京都知事(1)第108225号 | 取引態様 | 仲介 |
| 不動産会社管理番号 | HC5-2963005-605-0035 | 当社管理番号 | 468 |
| 所属団体 | 、 | ||
| 取扱い物件情報 | 物件詳細へ | ||
※各種情報と現状に差異がある場合は、現状優先となります。問い合わせをすることで、より詳しい条件、情報を確認する事ができます。
提供:ハウスコム西東京株式会社 五反田店
この物件が気になったら掲載期限まであと4日
MFPR目黒タワーに条件(家賃・エリア)が近い物件一覧
| 写真 | 家賃 管理費等 | 敷金 礼金 | 間取り 専有面積 | 築年数 | 最寄り駅 所在地 | キープ | 詳細 |
|---|---|---|---|---|---|---|---|
マンション コートモデリア広尾(1LDK/6階) | |||||||
![]() | 39万円 1万円 | なし なし | 1LDK 62.77m2 | 築19年 | JR山手線 恵比寿駅 徒歩6分 東京メトロ日比谷線 広尾駅 徒歩8分 東急東横線 代官山駅 徒歩19分 東京都渋谷区広尾 | 詳細を見る | |
マンション イプセ代々木上原(2LDK/1階) | |||||||
![]() | 38万円 1万円 | 38万円 38万円 | 2LDK 69.07m2 | 築3年 | 東京メトロ千代田線 代々木上原駅 徒歩3分 小田急線 代々木八幡駅 徒歩9分 東京メトロ千代田線 代々木公園駅 徒歩9分 東京都渋谷区上原 | 詳細を見る | |
マンション フェリスコート自由が丘(3LDK/1階) | |||||||
![]() | 40万円 なし | 40万円 40万円 | 3LDK 83.75m2 | 築3年 | 東急大井町線 九品仏駅 徒歩8分 東急東横線 田園調布駅 徒歩10分 東急東横線 自由が丘駅(東京) 徒歩13分 東京都世田谷区奥沢 | 詳細を見る | |
マンション 大崎ステーションレジデンス(3LDK/7階) | |||||||
![]() | 45万円 なし | 45万円 45万円 | 3LDK 74.56m2 | 築1年 | JR山手線 大崎駅 徒歩3分 都営浅草線 五反田駅 徒歩14分 東京都品川区大崎 | 詳細を見る | |
マンション プラウドフラット三軒茶屋II(2LDK/6階) | |||||||
![]() | 35.43万円 1.57万円 | 35.43万円 なし | 2LDK 72.18m2 | 築13年 | 東急田園都市線 三軒茶屋駅 徒歩6分 東急世田谷線 三軒茶屋駅 徒歩10分 東京都世田谷区太子堂 | 詳細を見る | |
マンション 中目黒アトラスタワー(2LDK/36階) | |||||||
![]() | 53万円 2万円 | 53万円 53万円 | 2LDK 67.96m2 | 築17年 | 東急東横線 中目黒駅 徒歩2分 東急東横線 代官山駅 徒歩8分 JR山手線 恵比寿駅 徒歩11分 東京都目黒区上目黒 | 詳細を見る | |
マンション 渋谷プロパティータワー(1LDK/15階) | |||||||
![]() | 65万円 5万円 | 65万円 65万円 | 1LDK 105.69m2 | 築36年 | JR山手線 渋谷駅 徒歩4分 東京メトロ日比谷線 恵比寿駅 徒歩11分 東急東横線 代官山駅 徒歩11分 東京都渋谷区東 | 詳細を見る | |
マンション BRILLIA目黒青葉台(3LDK/5階) | |||||||
![]() | 43万円 2万円 | 43万円 43万円 | 3LDK 73.76m2 | 築6年 | 東急田園都市線 池尻大橋駅 徒歩9分 京王井の頭線 神泉駅 徒歩12分 東急東横線 中目黒駅 徒歩15分 東京都目黒区青葉台 | 詳細を見る | |








