賃貸マンション
高田馬場ヒルサイドパレスの賃貸物件情報(ワンルーム/6階)
| 家賃 | 管理費等 | 敷金 | 礼金 | 間取り | 専有面積 |
|---|---|---|---|---|---|
| 12万円 | 9,000円 | 24万円 | 12万円 | ワンルーム | 32.03m2 |
入居決定でお祝い金最大100,000円
- 保証金
- -
- 償却・敷引
- -
- 築年数
- 築47年
- 所在階
- 6階
- 向き
- -
Point
まずはお問い合わせ!
不動産会社は街のプロ、あなたに合った物件がきっと見つかります。
提供:クラウドエステート 支店(株)BLAST MADE(SUUMO経由)

詳細情報 高田馬場ヒルサイドパレス
物件紹介
高田馬場ヒルサイドパレスはJR山手線高田馬場駅から徒歩2分にあり、駅近で通勤通学に便利なマンションです。
このお部屋は2階以上に位置しているので、通行人や周囲の住人からの視線が気になりにくく、防犯面でも安心。建物のエントランスはオートロックがついており、インターホンにはTVモニタもついているため、相手の顔を確認してから来客対応することができます。
人気の角部屋で周囲の居住者の生活音も気になりにくく、また、フローリングのお部屋なのでお掃除もラクラク。キッチンはシステムキッチン仕様になっていますので、お料理好きの方にもぴったり。また、バス・トイレは別で、のんびりお風呂タイムも楽しめるでしょう。
通信設備面では、インターネット接続が可能です。また、BSアンテナもありますので、おうち時間も充実するでしょう(別途工事、契約料が必要な場合あり)。
建物にはエレベーターがついているので、重い荷物があっても安心。
このお部屋は2階以上に位置しているので、通行人や周囲の住人からの視線が気になりにくく、防犯面でも安心。建物のエントランスはオートロックがついており、インターホンにはTVモニタもついているため、相手の顔を確認してから来客対応することができます。
人気の角部屋で周囲の居住者の生活音も気になりにくく、また、フローリングのお部屋なのでお掃除もラクラク。キッチンはシステムキッチン仕様になっていますので、お料理好きの方にもぴったり。また、バス・トイレは別で、のんびりお風呂タイムも楽しめるでしょう。
通信設備面では、インターネット接続が可能です。また、BSアンテナもありますので、おうち時間も充実するでしょう(別途工事、契約料が必要な場合あり)。
建物にはエレベーターがついているので、重い荷物があっても安心。
お金・契約の情報
※「-」と表示されているものは、実際は料金が発生するものもございます。詳細はお問い合わせください。
| 家賃 | 12万円 | 管理費・共益費 | 9,000円 |
|---|---|---|---|
| 敷金 | 24万円 | 礼金 | 12万円 |
| 入居決定でお祝い金最大100,000円 | |||
| 保証金 | - | 償却・敷引 | - |
| 住宅保険料 | - | 更新料 | - |
| 保証会社利用 | 必須 | 保証会社名 | - |
| 保証会社費用 | - | 保証会社備考 | 保証会社利用必 株式会社口座振替日本セーフティー |
| 契約形態 | - | 契約期間 | - |
| 入居・引渡期間 | 即時 | 現況 | - |
| 契約備考 | ◇仲介手数料最大無料【TEL】◇■賢くリーズナブルに引越しされたい方はクラウドエステートへ!!■入居費用のクレジットカード決済・分割もご利用可能です。■LINEでのやり取りをご希望の際は、当社HPより公式LINEを追加いただきご連絡頂いても対応は可能でございます。※写真は同物件の別部屋の場合もございます。 更新料 新賃料1.00ヶ月分 ワンルーム 普通借家2年 損保【1.2万円2年】 バストイレ別、バルコニー、エアコン、ガスコンロ対応、クロゼット、フローリング、TVインターホン、オートロック、室内洗濯置、陽当り良好、シューズボックス、システムキッチン、角住戸、温水洗浄便座、脱衣所、エレベーター、洗面所独立、洗面化粧台、2口コンロ、駐輪場、即入居可、防犯カメラ、保証人不要、ネット専用回線、内装リフォーム済、眺望良好、保証金不要、耐火構造、3駅以上利用可、3沿線以上利用可、駅徒歩5分以内、24時間ゴミ出し可、敷地内ごみ置き場、都市ガス、洗面所にドア、ダウンライト、BS、保証会社利用可、IT重説対応物件、初期費用カード決済可、通風良好 | ||
部屋の情報
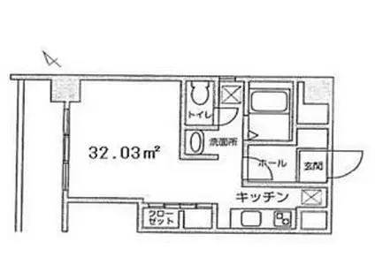
| 間取り | ワンルーム | 専有面積 | 32.03m2 |
|---|---|---|---|
| 所在階 / 向き | 6階 / - | バルコニー面積 | - |
| 水道 / ガス | - | ||
| 設備 | バス・トイレ別、2階以上、オートロック、テレビドアホン、インターネット対応、システムキッチン、エアコン、エレベーター、温水洗浄便座、角部屋、バルコニー、フローリング、洗髪洗面化粧台、2口コンロ、コンロ:ガス、BSアンテナ、洗濯機:室内 | ||
| 当社物件ID | 23981107 | ||
建物の情報
| 建物名 | 高田馬場ヒルサイドパレス | ||
|---|---|---|---|
| 所在地 | 東京都新宿区高田馬場 | ||
| 交通 | JR山手線 高田馬場駅 徒歩2分 東京メトロ東西線 高田馬場駅 徒歩2分 西武新宿線 高田馬場駅 徒歩2分 | ||
| 階数 | 地下1地上10階建 | 総戸数 | - |
| 築年月 | 1979年04月 / 築47年 | エレベーター | あり |
| 駐車場 | なし | バイク置き場 | - |
| 駐輪場 | あり | 管理人/管理会社 | - |
| 周辺環境 | その他 諏訪公園(公園)まで451m その他 マツモトキヨシ 高田馬場二丁目店(ドラッグストア)まで436m その他 セブンイレブン 高田馬場2丁目中央店(コンビニ)まで468m その他 高田馬場二郵便局(郵便局)まで512m その他 オオゼキ 高田馬場店(スーパー)まで664m その他 戸塚警察署(警察署・交番)まで894m | ||
| 建物種別 | マンション | 建物構造 | RC(鉄筋コンクリート) |
この部屋の取扱い不動産会社
| 会社名 | クラウドエステート 支店(株)BLAST MADE(SUUMO経由) | ||
|---|---|---|---|
| 所在地 | 東京都渋谷区道玄坂1-22-8-9階 | 交通 | - |
| 営業時間 | 10時~19時 | 定休日 | なし |
| 免許番号 | 国土交通大臣10577 | 取引態様 | 仲介 |
| 不動産会社管理番号 | 100487419523 | 当社管理番号 | 89 |
| 所属団体 | (公社)東京都宅地建物取引業協会会員 | ||
| 公正取引協議会 | (公社)首都圏不動産公正取引協議会加盟 | ||
| 取扱い物件情報 | 物件詳細へ | ||
※各種情報と現状に差異がある場合は、現状優先となります。問い合わせをすることで、より詳しい条件、情報を確認する事ができます。
提供:クラウドエステート 支店(株)BLAST MADE(SUUMO経由)
この物件が気になったら掲載期限まであと11日
高田馬場ヒルサイドパレスに条件(家賃・エリア)が近い物件一覧
| 写真 | 家賃 管理費等 | 敷金 礼金 | 間取り 専有面積 | 築年数 | 最寄り駅 所在地 | キープ | 詳細 |
|---|---|---|---|---|---|---|---|
マンション LES SAISONS NOGATA(1LDK/3階) | |||||||
![]() | 12.9万円 8,500円 | なし 25.8万円 | 1LDK 34.17m2 | 築9年 | JR総武線 中野駅(東京) 徒歩15分 西武新宿線 野方駅 徒歩15分 JR総武線 高円寺駅 徒歩17分 東京都中野区野方 | 詳細を見る | |
マンション ハーモニーレジデンス山手サウス大塚(1DK/8階) | |||||||
![]() | 14.1万円 1.5万円 | なし 14.1万円 | 1DK 25.52m2 | 築4年 | JR山手線 大塚駅(東京) 徒歩7分 都電荒川線 大塚駅前駅 徒歩7分 都営三田線 巣鴨駅 徒歩8分 東京都豊島区南大塚 | 詳細を見る | |
マンション パークアクシス浜松町(1K/5階) | |||||||
![]() | 14.5万円 8,000円 | 14.5万円 14.5万円 | 1K 29.23m2 | 築22年 | 都営三田線 芝公園駅 徒歩8分 JR山手線 浜松町駅 徒歩8分 都営浅草線 大門駅(東京) 徒歩8分 東京都港区芝 | 詳細を見る | |
マンション BELLE VUE 新橋(1LDK/11階) | |||||||
![]() | 16万円 1.2万円 | 16万円 16万円 | 1LDK 29.64m2 | 築11年 | 都営三田線 御成門駅 徒歩6分 JR山手線 新橋駅 徒歩9分 都営大江戸線 汐留駅 徒歩10分 東京都港区新橋 | 詳細を見る | |
マンション AGLAIA 新宿西落合(ワンルーム/2階) | |||||||
![]() | 12.6万円 1万円 | 12.6万円 なし | ワンルーム 20.45m2 | 築1年 | 東京都大江戸線 落合南長崎駅 徒歩5分 東京都新宿区西落合1丁目 | 詳細を見る | |
マンション ZOOM本郷(1DK/3階) | |||||||
![]() | 15.4万円 1.5万円 | 15.4万円 15.4万円 | 1DK 25.82m2 | 築1年 | 東京メトロ丸ノ内線 本郷三丁目駅 徒歩4分 都営大江戸線 本郷三丁目駅 徒歩4分 東京メトロ丸ノ内線 御茶ノ水駅 徒歩8分 東京都文京区本郷 | 詳細を見る | |
マンション ZOOM麻布十番(1K/4階) | |||||||
![]() | 16.6万円 1万円 | 16.6万円 16.6万円 | 1K 25.98m2 | 築12年 | 東京メトロ南北線 麻布十番駅 徒歩5分 都営大江戸線 赤羽橋駅 徒歩6分 都営大江戸線 麻布十番駅 徒歩7分 東京都港区三田 | 詳細を見る | |
マンション パークナードフィット南青山VISTA(ワンルーム/9階) | |||||||
![]() | 14.4万円 1.5万円 | 14.4万円 なし | ワンルーム 25.85m2 | 築6年 | 東京メトロ日比谷線 広尾駅 徒歩13分 東京メトロ銀座線 表参道駅 徒歩13分 東京メトロ千代田線 乃木坂駅 徒歩18分 東京都港区南青山 | 詳細を見る | |






/105x80-f1-q70-wp1)


