賃貸マンション
シティ市ヶ谷ビルの賃貸物件情報(2DK/6階)
| 家賃 | 管理費等 | 敷金 | 礼金 | 間取り | 専有面積 |
|---|---|---|---|---|---|
| 20万円 | なし | 20万円 | 20万円 | 2DK | 50.05m2 |
入居決定でお祝い金最大100,000円
- 保証金
- -
- 償却・敷引
- -
- 築年数
- 築55年
- 所在階
- 6階
- 向き
- -
Point
♪内覧予約受付中♪理想のお部屋探しを全力でサポート!都心マンションに特化した専門スタッフがアテンドします☆お問い合わせはSkyYardPropertyまで☆
提供:Sky Yard Property(株)銀座本店(SUUMO経由)

詳細情報 シティ市ヶ谷ビル
物件紹介
シティ市ヶ谷ビルはJR中央線市ケ谷駅から徒歩1分にあり、駅近で通勤通学に便利なマンションです。
このお部屋は2階以上に位置しているので、通行人や周囲の住人からの視線が気になりにくく、防犯面でも安心です。
フローリングのお部屋なのでお掃除もラクラク。キッチンはシステムキッチン仕様になっていますので、お料理好きの方にもぴったり。また、バス・トイレは別で、のんびりお風呂タイムも楽しめるでしょう。
通信設備面では、インターネット接続が可能です(別途工事、契約料が必要な場合あり)。
建物にはエレベーターがついているので、重い荷物があっても安心。
このお部屋は2階以上に位置しているので、通行人や周囲の住人からの視線が気になりにくく、防犯面でも安心です。
フローリングのお部屋なのでお掃除もラクラク。キッチンはシステムキッチン仕様になっていますので、お料理好きの方にもぴったり。また、バス・トイレは別で、のんびりお風呂タイムも楽しめるでしょう。
通信設備面では、インターネット接続が可能です(別途工事、契約料が必要な場合あり)。
建物にはエレベーターがついているので、重い荷物があっても安心。
お金・契約の情報
※「-」と表示されているものは、実際は料金が発生するものもございます。詳細はお問い合わせください。
| 家賃 | 20万円 | 管理費・共益費 | なし |
|---|---|---|---|
| 敷金 | 20万円 | 礼金 | 20万円 |
| 入居決定でお祝い金最大100,000円 | |||
| 保証金 | - | 償却・敷引 | - |
| 住宅保険料 | - | 更新料 | - |
| 保証会社利用 | 必須 | 保証会社名 | - |
| 保証会社費用 | - | 保証会社備考 | 保証会社利用必 初回 賃料等総額の50% |
| 契約形態 | 定期借家 | 契約期間 | 2年 |
| 入居・引渡期間 | 即時 | 現況 | - |
| 契約備考 | 更新料 新賃料1.00ヶ月分 2DK 二人入居可/子供可 定期借家2年 損保【要】 バストイレ別、バルコニー、エアコン、フローリング、室内洗濯置、システムキッチン、温水洗浄便座、脱衣所、エレベーター、洗面所独立、洗面化粧台、駐輪場、即入居可、3口以上コンロ、IHクッキングヒーター、グリル付、全居室洋室、敷金1ヶ月、二人入居相談、オール電化、全居室フローリング、2沿線利用可、エアコン2台、ネット専用回線、エアコン全室、24時間換気システム、エアコン3台、学生相談、2駅利用可、3駅以上利用可、3沿線以上利用可、駅徒歩5分以内、駅徒歩10分以内、敷地内ごみ置き場、全居室6畳以上、オープンキッチン、礼金1ヶ月、保証会社利用可、IT重説対応物件 | ||
部屋の情報
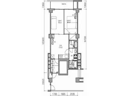
| 間取り | 2DK | 専有面積 | 50.05m2 |
|---|---|---|---|
| 所在階 / 向き | 6階 / - | バルコニー面積 | - |
| 水道 / ガス | - | ||
| 設備 | バス・トイレ別、2階以上、インターネット対応、システムキッチン、エアコン、エレベーター、温水洗浄便座、バルコニー、フローリング、洗髪洗面化粧台、オール電化、2口コンロ、コンロ:IH、洗濯機:室内 | ||
| 当社物件ID | 160217397 | ||
建物の情報
| 建物名 | シティ市ヶ谷ビル | ||
|---|---|---|---|
| 所在地 | 東京都新宿区市谷田町 | ||
| 交通 | JR中央線 市ケ谷駅 徒歩1分 都営大江戸線 牛込神楽坂駅 徒歩13分 東京メトロ東西線 神楽坂駅 徒歩16分 | ||
| 階数 | 地下1地上8階建 | 総戸数 | - |
| 築年月 | 1972年01月 / 築55年 | エレベーター | あり |
| 駐車場 | 近隣 300m40000円 | バイク置き場 | - |
| 駐輪場 | あり | 管理人/管理会社 | - |
| 周辺環境 | その他 神楽坂友野(飲食店)まで893m その他 ゆで太郎九段南店(飲食店)まで965m その他 焼肉弁当牛友(飲食店)まで1251m その他 肉のハナマサ 市ヶ谷店(スーパー)まで463m その他 セブンイレブン 九段北4丁目店(コンビニ)まで749m その他 いけだ薬局駅前調剤店(ドラッグストア)まで703m | ||
| 建物種別 | マンション | 建物構造 | RC(鉄筋コンクリート) |
この部屋の取扱い不動産会社
| 会社名 | Sky Yard Property(株)新宿店(SUUMO経由) | ||
|---|---|---|---|
| 所在地 | 東京都新宿区西新宿1-3-3 品川ステーションビル新宿5階 | 交通 | - |
| 営業時間 | 9:30-19:00 | 定休日 | 無 |
| 免許番号 | 東京都知事107337 | 取引態様 | 仲介 |
| 不動産会社管理番号 | 100483069729 | 当社管理番号 | 89 |
| 所属団体 | (公社)東京都宅地建物取引業協会会員 | ||
| 公正取引協議会 | (公社)首都圏不動産公正取引協議会加盟 | ||
| 取扱い物件情報 | 物件詳細へ | ||
※各種情報と現状に差異がある場合は、現状優先となります。問い合わせをすることで、より詳しい条件、情報を確認する事ができます。
提供:Sky Yard Property(株)新宿店(SUUMO経由)
この物件が気になったら掲載期限まであと11日
シティ市ヶ谷ビルに条件(家賃・エリア)が近い物件一覧
| 写真 | 家賃 管理費等 | 敷金 礼金 | 間取り 専有面積 | 築年数 | 最寄り駅 所在地 | キープ | 詳細 |
|---|---|---|---|---|---|---|---|
マンション ジェノヴィア新大塚(1K/1階) | |||||||
![]() | 12万円 1万円 | なし なし | 1K 25.5m2 | 築5年 | 東京地下鉄丸ノ内線 新大塚駅 徒歩9分 東京地下鉄丸ノ内線 茗荷谷駅 徒歩10分 東京地下鉄有楽町線 護国寺駅 徒歩12分 東京都文京区大塚4丁目 | 詳細を見る | |
マンション サンイング飯田橋(ワンルーム/4階) | |||||||
![]() | 12.5万円 1万円 | 12.5万円 12.5万円 | ワンルーム 25.73m2 | 築7年 | 東京地下鉄丸ノ内線 後楽園駅 徒歩9分 総武・中央緩行線 飯田橋駅 徒歩10分 東京都文京区後楽2丁目 | 詳細を見る | |
マンション メインステージ秋葉原駅前(1K/7階) | |||||||
![]() | 12万円 1.2万円 | 12万円 12万円 | 1K 22.63m2 | 築23年 | 山手線 秋葉原駅 徒歩4分 東京地下鉄千代田線 新御茶ノ水駅 徒歩7分 東京地下鉄銀座線 末広町駅(東京) 徒歩8分 東京都千代田区外神田1丁目 | 詳細を見る | |
マンション 真砂マンション(2DK/3階) | |||||||
![]() | 15.3万円 6,000円 | 15.3万円 15.3万円 | 2DK 53.46m2 | 築53年 | 東京都大江戸線 本郷三丁目駅 徒歩5分 東京都三田線 春日駅(東京) 徒歩8分 東京地下鉄南北線 後楽園駅 徒歩8分 東京都文京区本郷4丁目 | 詳細を見る | |
マンション ベルファース神田神保町(1DK/4階) | |||||||
![]() | 17.4万円 1万円 | 17.4万円 なし | 1DK 26.34m2 | 築3年 | 東京地下鉄半蔵門線 神保町駅 徒歩4分 東京都三田線 神保町駅 徒歩4分 総武・中央緩行線 水道橋駅 徒歩8分 東京都千代田区神田神保町1丁目 | 詳細を見る | |
マンション T&G神田マンション(1K/13階) | |||||||
![]() | 12.9万円 6,000円 | 12.9万円 12.9万円 | 1K 26.52m2 | 築22年 | 総武本線 新日本橋駅 徒歩3分 山手線 神田駅(東京) 徒歩6分 東京都千代田区神田美倉町 | 詳細を見る | |
マンション レジディア文京音羽II(1K/8階) | |||||||
![]() | 12.3万円 1.5万円 | なし なし | 1K 22.67m2 | 築18年 | 東京地下鉄有楽町線 護国寺駅 徒歩1分 東京地下鉄丸ノ内線 茗荷谷駅 徒歩14分 山手線 大塚駅(東京) 徒歩21分 東京都文京区音羽2丁目 | 詳細を見る | |
マンション ルーチェ六義園(1K/1階) | |||||||
![]() | 14万円 なし | 14万円 14万円 | 1K 28.92m2 | 築5年 | 山手線 巣鴨駅 徒歩6分 東京都三田線 千石駅 徒歩7分 東京都文京区本駒込6丁目 | 詳細を見る | |








