賃貸マンション
プレール・ドゥーク東京ベイの賃貸物件情報(1K/5階)
| 家賃 | 管理費等 | 敷金 | 礼金 | 間取り | 専有面積 |
|---|---|---|---|---|---|
| 9.4万円 | 8,000円 | なし | 9.4万円 | 1K | 22.14m2 |
入居決定でお祝い金最大100,000円
Point
☆インターネット月額基本使用料無料(BBM−NET)☆
提供:アパマンショップ大森西口店

詳細情報 プレール・ドゥーク東京ベイ
物件紹介
プレール・ドゥーク東京ベイは都営浅草線泉岳寺駅から徒歩10分にあり、駅近で通勤通学に便利なマンションです。
このお部屋は2階以上に位置しているので、通行人や周囲の住人からの視線が気になりにくく、防犯面でも安心。建物のエントランスはオートロックがついており、インターホンにはTVモニタもついているため、相手の顔を確認してから来客対応することができます。
おしゃれなデザイナーズ物件!人気の角部屋で周囲の居住者の生活音も気になりにくく、また、フローリングのお部屋なのでお掃除もラクラク。キッチンはシステムキッチン仕様になっていますので、お料理好きの方にもぴったり。バス・トイレは別なので、のんびりお風呂タイムも楽しめるでしょう。また、雨の日でも浴室乾燥機を使えば、お洗濯も問題ありません。
通信設備面では、インターネットが無料で使えるので、月々の出費を抑えられるのも魅力です。また、BSアンテナ・CSアンテナがありCATVにも対応しているので、おうち時間も充実するでしょう(別途工事、BS・CS・CATVの契約料等が必要な場合あり)。
建物にはエレベーターがついているので、重い荷物があっても安心。共用部には宅配ボックスが設定されているので、不在の時にも荷物を受け取ることができます。また、ペット飼育の相談ができますので、あなたの大切な家族の一員も快適に暮らせるか、ぜひ確認してみてください。
コンビニまで徒歩12分の場所にあり、日用品や食料品のお買い物にも便利です。
このお部屋は2階以上に位置しているので、通行人や周囲の住人からの視線が気になりにくく、防犯面でも安心。建物のエントランスはオートロックがついており、インターホンにはTVモニタもついているため、相手の顔を確認してから来客対応することができます。
おしゃれなデザイナーズ物件!人気の角部屋で周囲の居住者の生活音も気になりにくく、また、フローリングのお部屋なのでお掃除もラクラク。キッチンはシステムキッチン仕様になっていますので、お料理好きの方にもぴったり。バス・トイレは別なので、のんびりお風呂タイムも楽しめるでしょう。また、雨の日でも浴室乾燥機を使えば、お洗濯も問題ありません。
通信設備面では、インターネットが無料で使えるので、月々の出費を抑えられるのも魅力です。また、BSアンテナ・CSアンテナがありCATVにも対応しているので、おうち時間も充実するでしょう(別途工事、BS・CS・CATVの契約料等が必要な場合あり)。
建物にはエレベーターがついているので、重い荷物があっても安心。共用部には宅配ボックスが設定されているので、不在の時にも荷物を受け取ることができます。また、ペット飼育の相談ができますので、あなたの大切な家族の一員も快適に暮らせるか、ぜひ確認してみてください。
コンビニまで徒歩12分の場所にあり、日用品や食料品のお買い物にも便利です。
お金・契約の情報
※「-」と表示されているものは、実際は料金が発生するものもございます。詳細はお問い合わせください。
| 家賃 | 9.4万円 | 管理費・共益費 | 8,000円 |
|---|---|---|---|
| 敷金 | なし | 礼金 | 9.4万円 |
| 入居決定でお祝い金最大100,000円 | |||
| 保証金 | - | 償却・敷引 | - |
| 住宅保険料 | - | 更新料 | - |
| 保証会社利用 | 必須 | 保証会社名 | - |
| 保証会社費用 | - | 保証会社備考 | 株式会社木下グループ 初回保証料月額総費用の80%、利用手数料550円、継続保証料20,000円(2年毎) |
| 契約形態 | - | 契約期間 | 2年 |
| 入居・引渡期間 | 2026年04月上旬 | 現況 | - |
| 入居可能条件 | ペット可 | ||
| 契約備考 | 木下の賃貸 友の会費 2530円/スマートロック登録費用 27500円/木下の消毒サービス 26400円/定額ルームクリーニング代 63800円 | ||
部屋の情報
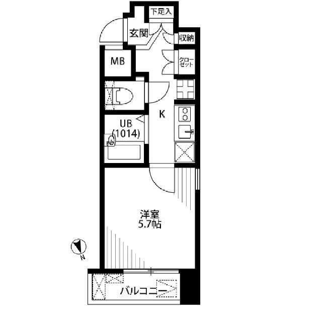
| 間取り | 1K | 専有面積 | 22.14m2 |
|---|---|---|---|
| 間取り詳細 | 洋室(5.7帖)、K(0帖) | ||
| 所在階 / 向き | 5階 / 北 | バルコニー面積 | 3m2 |
| 水道 / ガス | ガス【都市】 | ||
| 設備 | バス・トイレ別、オートロック、テレビドアホン、宅配ボックス、浴室乾燥機、システムキッチン、エレベーター、バルコニー、フローリング、コンロ:ガス、CSアンテナ、BSアンテナ、インターネット使用料無料、給湯、洗濯機:室内 | ||
| 当社物件ID | 23193184 | ||
建物の情報
| 建物名 | プレール・ドゥーク東京ベイ | ||
|---|---|---|---|
| 所在地 | 東京都港区芝浦4丁目 | ||
| 交通 | 山手線 田町駅(東京) 徒歩14分 | ||
| 階数 | 9階建 | 総戸数 | 48戸 |
| 築年月 | 2003年11月 / 築23年 | エレベーター | あり |
| 駐車場 | - | バイク置き場 | - |
| 駐輪場 | あり | 管理人/管理会社 | - |
| 周辺環境 | 中学校 港区立港南中学校 徒歩14分(1102m) 小学校 港区立芝浦小学校 徒歩2分(149m) その他 ローソン 徒歩5分(338m) その他 セブン-イレブン 港区海岸3丁目店 徒歩12分(888m) その他 ローソン 港南三丁目店 徒歩11分(862m) その他 セブンイレブン 徒歩10分(746m) その他 サイゼリヤ港南中学校前店 徒歩14分(1071m) その他 ファミリーマート 徒歩11分(811m) | ||
| 建物種別 | マンション | 建物構造 | SRC(鉄骨鉄筋コンクリート) |
この部屋の取扱い不動産会社
| 会社名 | アパマンショップ品川駅前店 | ||
|---|---|---|---|
| 所在地 | 東京都港区港南2丁目 2-15レゴリス品川駅前ビルディング4階 | 交通 | 常磐線品川から徒歩2分 |
| 営業時間 | 10:00〜19:00(オンライン接客対応店舗) | 定休日 | 水曜日 |
| 免許番号 | 国土交通大臣(5)6971 | 取引態様 | 仲介 |
| 不動産会社管理番号 | 75416362 | 当社管理番号 | 4 |
| 所属団体 | (公社)東京都宅地建物取引協会 | ||
| 公正取引協議会 | (公社) 首都圏不動産公正取引協議会加盟 | ||
| 取扱い物件情報 | 物件詳細へ | ||
※各種情報と現状に差異がある場合は、現状優先となります。問い合わせをすることで、より詳しい条件、情報を確認する事ができます。
提供:アパマンショップ品川駅前店
この物件が気になったら掲載期限まであと13日
プレール・ドゥーク東京ベイに条件(家賃・エリア)が近い物件一覧
| 写真 | 家賃 管理費等 | 敷金 礼金 | 間取り 専有面積 | 築年数 | 最寄り駅 所在地 | キープ | 詳細 |
|---|---|---|---|---|---|---|---|
マンション クレヴィスタ亀戸IV(1K/10階) | |||||||
![]() | 13.5万円 1.1万円 | なし 13.5万円 | 1K 25.56m2 | 築6年 | 総武・中央緩行線 亀戸駅 徒歩4分 東武鉄道亀戸線 亀戸駅 徒歩4分 総武本線 錦糸町駅 徒歩12分 東京都江東区亀戸2丁目 | 詳細を見る | |
マンション GARDEN XAVIS木場(1LDK/4階) | |||||||
![]() | 15.1万円 1.2万円 | 15.1万円 なし | 1LDK 27.28m2 | 新築 | 東京メトロ東西線 木場駅 徒歩4分 東京メトロ東西線 東陽町駅 徒歩7分 都営大江戸線 門前仲町駅 徒歩19分 東京都江東区東陽 | 詳細を見る | |
マンション セントラル銀座(1K/9階) | |||||||
![]() | 13.9万円 1.2万円 | なし 13.9万円 | 1K 23.38m2 | 築22年 | 東京メトロ有楽町線 新富町駅(東京) 徒歩2分 都営浅草線 東銀座駅 徒歩6分 東京メトロ日比谷線 東銀座駅 徒歩6分 東京都中央区銀座 | 詳細を見る | |
マンション サンクレスト茅場町(ワンルーム/5階) | |||||||
![]() | 7.5万円 1万円 | 7.5万円 7.5万円 | ワンルーム 25.71m2 | 築41年 | 東京地下鉄東西線 茅場町駅 徒歩6分 東京地下鉄日比谷線 茅場町駅 徒歩6分 京葉線 八丁堀駅(東京) 徒歩7分 東京都中央区新川1丁目 | 詳細を見る | |
マンション マレオドゥール(2K/5階) | |||||||
![]() | 7万円 2,000円 | なし なし | 2K 29.16m2 | 築40年 | 京葉線 潮見駅 徒歩8分 東京地下鉄東西線 木場駅 徒歩24分 東京地下鉄有楽町線 辰巳駅 徒歩24分 東京都江東区潮見1丁目 | 詳細を見る | |
マンション パークヒルズ(1LDK/2階) | |||||||
![]() | 13.9万円 1万円 | 13.9万円 13.9万円 | 1LDK 37.19m2 | 築23年 | 東武亀戸線 亀戸水神駅 徒歩1分 JR総武線 亀戸駅 徒歩10分 東京都江東区亀戸 | 詳細を見る | |
マンション CITYCREATION茅場町(1K/9階) | |||||||
![]() | 11.5万円 5,000円 | なし 11.5万円 | 1K 19.66m2 | 築24年 | 東京地下鉄東西線 茅場町駅 徒歩1分 東京地下鉄日比谷線 茅場町駅 徒歩1分 東京都浅草線 日本橋駅(東京) 徒歩6分 東京都中央区日本橋茅場町2丁目 | 詳細を見る | |
マンション リビオメゾン勝どき(1K/12階) | |||||||
![]() | 12万円 1万円 | 12万円 12万円 | 1K 22.95m2 | 築6年 | 都営大江戸線 勝どき駅 徒歩10分 東京都中央区勝どき | 詳細を見る | |








