賃貸マンション
GARDEN XAVIS木場の賃貸物件情報(1LDK/4階)
| 家賃 | 管理費等 | 敷金 | 礼金 | 間取り | 専有面積 |
|---|---|---|---|---|---|
| 15.1万円 | 1.2万円 | 15.1万円 | なし | 1LDK | 27.28m2 |
入居決定でお祝い金最大100,000円
- 保証金
- -
- 償却・敷引
- -
- 築年数
- 新築
- 所在階
- 4階
- 向き
- 北
Point
築1年 鉄筋コンクリートの魅力的な物件はこちら フローリング/浴室乾燥/インターホン/温水洗浄便座/洗濯機置場が設置されています。オートロック/オートロックで安心・安全 便利なガスコンロ設置済/ガスコンロ/2口コンロ/カウンターキッチン/システムキッチン設置で毎日のお料理も楽しめますよ。快適な暮らし
提供:株式会社ハウスポン レントドゥ門前仲町店(賃貸スモッカ経由)

詳細情報 GARDEN XAVIS木場
物件紹介
GARDEN XAVIS木場は東京地下鉄東西線木場駅から徒歩4分にあり、駅近で通勤通学に便利なマンションです。
このお部屋は2階以上に位置しているので、通行人や周囲の住人からの視線が気になりにくく、防犯面でも安心。建物のエントランスはオートロックがついており、インターホンにはTVモニタもついているため、相手の顔を確認してから来客対応することができます。
人気の角部屋で周囲の居住者の生活音も気になりにくく、また、フローリングのお部屋なのでお掃除もラクラク。キッチンはシステムキッチン仕様になっていますので、お料理好きの方にもぴったり。バス・トイレは別なので、のんびりお風呂タイムも楽しめるでしょう。また、雨の日でも浴室乾燥機を使えば、お洗濯も問題ありません。
通信設備面では、インターネットが無料で使えるので、月々の出費を抑えられるのも魅力です。また、BSアンテナ・CSアンテナもありますので、おうち時間も充実するでしょう(別途工事、BS・CSの契約料等が必要な場合あり)。
建物にはエレベーターがついているので、重い荷物があっても安心。共用部には宅配ボックスが設定されているので、不在の時にも荷物を受け取ることができます。また、ペット飼育の相談ができますので、あなたの大切な家族の一員も快適に暮らせるか、ぜひ確認してみてください。
このお部屋は2階以上に位置しているので、通行人や周囲の住人からの視線が気になりにくく、防犯面でも安心。建物のエントランスはオートロックがついており、インターホンにはTVモニタもついているため、相手の顔を確認してから来客対応することができます。
人気の角部屋で周囲の居住者の生活音も気になりにくく、また、フローリングのお部屋なのでお掃除もラクラク。キッチンはシステムキッチン仕様になっていますので、お料理好きの方にもぴったり。バス・トイレは別なので、のんびりお風呂タイムも楽しめるでしょう。また、雨の日でも浴室乾燥機を使えば、お洗濯も問題ありません。
通信設備面では、インターネットが無料で使えるので、月々の出費を抑えられるのも魅力です。また、BSアンテナ・CSアンテナもありますので、おうち時間も充実するでしょう(別途工事、BS・CSの契約料等が必要な場合あり)。
建物にはエレベーターがついているので、重い荷物があっても安心。共用部には宅配ボックスが設定されているので、不在の時にも荷物を受け取ることができます。また、ペット飼育の相談ができますので、あなたの大切な家族の一員も快適に暮らせるか、ぜひ確認してみてください。
お金・契約の情報
※「-」と表示されているものは、実際は料金が発生するものもございます。詳細はお問い合わせください。
| 家賃 | 15.1万円 | 管理費・共益費 | 1.2万円 |
|---|---|---|---|
| 敷金 | 15.1万円 | 礼金 | なし |
| フリーレント | あり | ||
| 入居決定でお祝い金最大100,000円 | |||
| 保証金 | - | 償却・敷引 | - |
| 住宅保険料 | 住宅保険料あり | 更新料 | - |
| 契約形態 | - | 契約期間 | 2年 |
| 入居・引渡期間 | 相談 | 現況 | 未完成 |
| 契約備考 | 更新料:1ヶ月 更新料区分:新賃料 保証人代行:必須 オリコフォレントインシュア 保証人代行詳細:オリコフォレントインシュア初回総賃料の50% 毎年:10,000円 引落手数料:毎月330円 フリーレント:2ヶ月間 フリーレント条件:2ヶ月 その他設備/条件:コンロ2口以上、TVドアホン | ||
部屋の情報
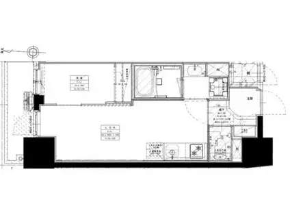
| 間取り | 1LDK | 専有面積 | 27.28m2 |
|---|---|---|---|
| 間取り詳細 | 洋室(2.5帖)、LDK(8帖) | ||
| 所在階 / 向き | 4階 / 北 | バルコニー面積 | - |
| 水道 / ガス | - | ||
| 設備 | バス・トイレ別、2階以上、オートロック、宅配ボックス、浴室乾燥機、システムキッチン、カウンターキッチン、エアコン、エレベーター、温水洗浄便座、角部屋、フローリング、コンロ:ガス、CSアンテナ、BSアンテナ、洗濯機:室内 | ||
| 当社物件ID | 160467277 | ||
建物の情報
| 建物名 | GARDEN XAVIS木場 | ||
|---|---|---|---|
| 所在地 | 東京都江東区東陽3丁目 | ||
| 交通 | 東京地下鉄東西線 木場駅 徒歩4分 東京地下鉄東西線 東陽町駅 徒歩7分 東京都大江戸線 門前仲町駅 徒歩19分 | ||
| 階数 | 13階建 | 総戸数 | - |
| 築年月 | 2026年03月 / 新築 | エレベーター | あり |
| 駐車場 | - | バイク置き場 | あり |
| 駐輪場 | あり | 管理人/管理会社 | - |
| 建物種別 | マンション | 建物構造 | RC(鉄筋コンクリート) |
この部屋の取扱い不動産会社
| 会社名 | 株式会社ハウスポン レントドゥ門前仲町店(賃貸スモッカ経由) | ||
|---|---|---|---|
| 所在地 | 東京都江東区門前仲町1丁目20番5号 | 交通 | - |
| 営業時間 | - | 定休日 | - |
| 免許番号 | 東京都知事免許(3)第86715号 | 取引態様 | 仲介 |
| 不動産会社管理番号 | housepon_2111408_1120919340720000034963 | 当社管理番号 | 463 |
| 所属団体 | 不動産保証協会 | ||
| 取扱い物件情報 | 物件詳細へ | ||
※各種情報と現状に差異がある場合は、現状優先となります。問い合わせをすることで、より詳しい条件、情報を確認する事ができます。
提供:株式会社ハウスポン レントドゥ門前仲町店(賃貸スモッカ経由)
この物件が気になったら掲載期限まであと5日
GARDEN XAVIS木場の空き部屋一覧
全部で22の空き部屋があります。
GARDEN XAVIS木場に条件(家賃・エリア)が近い物件一覧
| 写真 | 家賃 管理費等 | 敷金 礼金 | 間取り 専有面積 | 築年数 | 最寄り駅 所在地 | キープ | 詳細 |
|---|---|---|---|---|---|---|---|
マンション ノリアセット(2LDK/3階) | |||||||
![]() | 18.6万円 3,000円 | 18.6万円 18.6万円 | 2LDK 62.72m2 | 新築 | 京浜急行電鉄本線 大森町駅 徒歩9分 京浜急行電鉄本線 梅屋敷駅(東京) 徒歩16分 東京都大田区大森東3丁目 | 詳細を見る | |
マンション あやめガーデン(2K/10階) | |||||||
![]() | 17.5万円 1万円 | 17.5万円 17.5万円 | 2K 42.26m2 | 築12年 | 東京メトロ日比谷線 築地駅 徒歩1分 東京メトロ有楽町線 新富町駅(東京) 徒歩6分 東京メトロ日比谷線 東銀座駅 徒歩6分 東京都中央区築地 | 詳細を見る | |
マンション エミグランド仲池上(1LDK/3階) | |||||||
![]() | 10.8万円 5,000円 | 10.8万円 21.6万円 | 1LDK 36.55m2 | 築39年 | 都営浅草線 西馬込駅 徒歩18分 東急池上線 御嶽山駅 徒歩18分 東急池上線 久が原駅 徒歩20分 東京都大田区仲池上 | 詳細を見る | |
マンション クレストコート菊川(1K/3階) | |||||||
![]() | 10.8万円 1.2万円 | 10.8万円 10.8万円 | 1K 27.22m2 | 築10年 | 東京都新宿線 菊川駅(東京) 徒歩3分 東京都大江戸線 森下駅(東京) 徒歩10分 東京都新宿線 住吉駅(東京) 徒歩12分 東京都墨田区菊川2丁目 | 詳細を見る | |
マンション セレサ日本橋堀留町(1LDK/6階) | |||||||
![]() | 20.1万円 なし | 20.1万円 35.175万円 | 1LDK 40.04m2 | 築14年 | 東京地下鉄日比谷線 人形町駅 徒歩2分 東京地下鉄日比谷線 小伝馬町駅 徒歩6分 東京地下鉄半蔵門線 水天宮前駅 徒歩6分 東京都中央区日本橋堀留町1丁目 | 詳細を見る | |
マンション レジディア三越前(1LDK/13階) | |||||||
![]() | 21.2万円 2万円 | 21.2万円 21.2万円 | 1LDK 43.47m2 | 築22年 | JR総武線快速 新日本橋駅 徒歩2分 東京メトロ日比谷線 小伝馬町駅 徒歩4分 東京メトロ銀座線 三越前駅 徒歩6分 東京都中央区日本橋本町 | 詳細を見る | |
マンション ARCOBALENO OSHIAGE BLOSSOM(1LDK/1階) | |||||||
![]() | 17.1万円 2万円 | なし なし | 1LDK 40.76m2 | 築1年 | 京成電鉄押上線 押上駅 徒歩12分 東京都墨田区文花1丁目 | 詳細を見る | |
一戸建て 京浜急行電鉄本線 梅屋敷駅(東京) 徒歩9分 築25年(3LDK) | |||||||
![]() | 20万円 なし | 20万円 20万円 | 3LDK 80.82m2 | 築25年 | 京浜急行電鉄本線 梅屋敷駅(東京) 徒歩9分 京浜東北・根岸線 蒲田駅 徒歩10分 東京都大田区大森西7丁目 | 詳細を見る | |









