賃貸マンション
オアーゼ新宿西落合レジデンスの賃貸物件情報(2LDK/4階)
| 家賃 | 管理費等 | 敷金 | 礼金 | 間取り | 専有面積 |
|---|---|---|---|---|---|
| 23.2万円 | 1.2万円 | 23.2万円 | 23.2万円 | 2LDK | 51.71m2 |
入居決定でお祝い金最大100,000円
- 保証金
- -
- 償却・敷引
- -
- 築年数
- 築4年
- 所在階
- 4階
- 向き
- 南
Point
室内見学承ります・お客様のご都合に合わせてオンラインまたはお近くの店舗でご提案可・初期費用分割払い可・クレジットカード利用可・引越業者割引・初期費用のお見積や入居日のご相談もお気軽にお問合せください
提供:(株)リライフ本郷三丁目店(SUUMO経由)

詳細情報 オアーゼ新宿西落合レジデンス
物件紹介
オアーゼ新宿西落合レジデンスは都営大江戸線落合南長崎駅から徒歩6分にあり、駅近で通勤通学に便利なマンションです。
このお部屋は2階以上に位置しているので、通行人や周囲の住人からの視線が気になりにくく、防犯面でも安心。建物のエントランスはオートロックがついており、インターホンにはTVモニタもついているため、相手の顔を確認してから来客対応することができます。
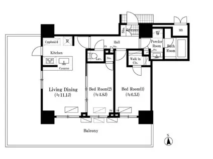
人気の南向き・フローリングのお部屋。角部屋でもあるため、周囲の居住者の生活音も気になりにくい場所です。室内にはウォークインクローゼットがありますので、たくさんの荷物も効率的に収納ができます。キッチンはシステムキッチン仕様になっていますので、お料理好きの方にもぴったり。バス・トイレは別なので、のんびりお風呂タイムも楽しめるでしょう。また、雨の日でも浴室乾燥機を使えば、お洗濯も問題ありません。
通信設備面では、インターネットが無料で使えるので、月々の出費を抑えられるのも魅力です。また、BSアンテナ・CSアンテナがありCATVにも対応しているので、おうち時間も充実するでしょう(別途工事、BS・CS・CATVの契約料等が必要な場合あり)。
床暖房があり、冬も足元から暖かく快適に過ごすことができます。建物にはエレベーターがついているので、重い荷物があっても安心。共用部には宅配ボックスが設定されているので、不在の時にも荷物を受け取ることができます。
このお部屋は2階以上に位置しているので、通行人や周囲の住人からの視線が気になりにくく、防犯面でも安心。建物のエントランスはオートロックがついており、インターホンにはTVモニタもついているため、相手の顔を確認してから来客対応することができます。
人気の南向き・フローリングのお部屋。角部屋でもあるため、周囲の居住者の生活音も気になりにくい場所です。室内にはウォークインクローゼットがありますので、たくさんの荷物も効率的に収納ができます。キッチンはシステムキッチン仕様になっていますので、お料理好きの方にもぴったり。バス・トイレは別なので、のんびりお風呂タイムも楽しめるでしょう。また、雨の日でも浴室乾燥機を使えば、お洗濯も問題ありません。
通信設備面では、インターネットが無料で使えるので、月々の出費を抑えられるのも魅力です。また、BSアンテナ・CSアンテナがありCATVにも対応しているので、おうち時間も充実するでしょう(別途工事、BS・CS・CATVの契約料等が必要な場合あり)。
床暖房があり、冬も足元から暖かく快適に過ごすことができます。建物にはエレベーターがついているので、重い荷物があっても安心。共用部には宅配ボックスが設定されているので、不在の時にも荷物を受け取ることができます。
お金・契約の情報
※「-」と表示されているものは、実際は料金が発生するものもございます。詳細はお問い合わせください。
| 家賃 | 23.2万円 | 管理費・共益費 | 1.2万円 |
|---|---|---|---|
| 敷金 | 23.2万円 | 礼金 | 23.2万円 |
| 入居決定でお祝い金最大100,000円 | |||
| 保証金 | - | 償却・敷引 | - |
| 住宅保険料 | - | 更新料 | - |
| 保証会社利用 | 必須 | 保証会社名 | - |
| 保証会社費用 | - | 保証会社備考 | 保証会社利用必 初回:月額総賃料50%~ |
| 契約形態 | - | 契約期間 | - |
| 入居・引渡期間 | - | 現況 | - |
| 契約備考 | 巡回管理/当物件はオンラインまたはお近くの店舗でご相談お申込を承ります。リライフは首都圏23店舗のネットワークで豊富な物件情報をご提供いたします。当物件に類似した未公開物件のご提案も可能です。お気軽にお問い合わせください。違約金有:1年未満:月額総賃料1ヶ月分~ 合計3.3万円(内訳:鍵交換代金3.3万円) 室内清掃費用9.66万円 2LDK 損保【要】 バストイレ別、バルコニー、エアコン、ガスコンロ対応、クロゼット、フローリング、TVインターホン、浴室乾燥機、オートロック、室内洗濯置、陽当り良好、シューズボックス、システムキッチン、南向き、追焚機能浴室、温水洗浄便座、脱衣所、エレベーター、洗面所独立、宅配ボックス、2面採光、3口以上コンロ、ウォークインクロゼット、保証人不要、全居室フローリング、ルーフバルコニー、24時間換気システム、3駅以上利用可、3沿線以上利用可、24時間ゴミ出し可、敷地内ごみ置き場、都市ガス、南面バルコニー、玄関収納、BS、LAN、保証会社利用可、初期費用カード決済可、通風良好 入居日:'26年4月上旬 | ||
部屋の情報
| 間取り | 2LDK | 専有面積 | 51.71m2 |
|---|---|---|---|
| 所在階 / 向き | 4階 / 南 | バルコニー面積 | - |
| 水道 / ガス | - | ||
| 設備 | バス・トイレ別、2階以上、オートロック、テレビドアホン、宅配ボックス、浴室乾燥機、ウォークインクローゼット、追い焚き、インターネット対応、システムキッチン、エアコン、エレベーター、温水洗浄便座、南向き、バルコニー、フローリング、洗髪洗面化粧台、2口コンロ、コンロ:ガス、BSアンテナ、洗濯機:室内 | ||
| 当社物件ID | 120847308 | ||
建物の情報
| 建物名 | オアーゼ新宿西落合レジデンス | ||
|---|---|---|---|
| 所在地 | 東京都新宿区西落合 | ||
| 交通 | 都営大江戸線 落合南長崎駅 徒歩7分 西武新宿線 中井駅 徒歩13分 西武池袋線 東長崎駅 徒歩17分 | ||
| 階数 | 5階建 | 総戸数 | - |
| 築年月 | 2022年11月 / 築4年 | エレベーター | あり |
| 駐車場 | なし | バイク置き場 | - |
| 駐輪場 | - | 管理人/管理会社 | - |
| 周辺環境 | その他 まいばすけっと 西落合2丁目店(スーパー)まで268m その他 ミニコープ 西落合店(スーパー)まで462m その他 ファミリーマート 西落合店(コンビニ)まで159m その他 セブンイレブン 新宿西落合1丁目店(コンビニ)まで210m その他 スマイル 新井薬師店(ドラッグストア)まで1135m その他 ポニークリーニング ライフ落合南長崎駅前店(その他)まで510m | ||
| 建物種別 | マンション | 建物構造 | RC(鉄筋コンクリート) |
この部屋の取扱い不動産会社
| 会社名 | (株)リライフ上野店(SUUMO経由) | ||
|---|---|---|---|
| 所在地 | 東京都台東区上野4-9-5 イシイビル3階 | 交通 | - |
| 営業時間 | 10:00~20:00 | 定休日 | 水曜日(祝日を除く) |
| 免許番号 | 国土交通大臣10792 | 取引態様 | 仲介 |
| 不動産会社管理番号 | 100491737600 | 当社管理番号 | 89 |
| 所属団体 | (公社)東京都宅地建物取引業協会会員 | ||
| 公正取引協議会 | (公社)首都圏不動産公正取引協議会加盟 | ||
| 取扱い物件情報 | 物件詳細へ | ||
※各種情報と現状に差異がある場合は、現状優先となります。問い合わせをすることで、より詳しい条件、情報を確認する事ができます。
提供:(株)リライフ上野店(SUUMO経由)
この物件が気になったら掲載期限まであと10日
オアーゼ新宿西落合レジデンスに条件(家賃・エリア)が近い物件一覧
| 写真 | 家賃 管理費等 | 敷金 礼金 | 間取り 専有面積 | 築年数 | 最寄り駅 所在地 | キープ | 詳細 |
|---|---|---|---|---|---|---|---|
マンション ガレリア東新宿(1K/12階) | |||||||
![]() | 15.1万円 1万円 | 15.1万円 15.1万円 | 1K 29.75m2 | 築17年 | 都営大江戸線 東新宿駅 徒歩2分 東京メトロ丸ノ内線 新宿三丁目駅 徒歩6分 JR山手線 新宿駅 徒歩13分 東京都新宿区歌舞伎町 | 詳細を見る | |
マンション ウエルストーン恵比寿(2DK/2階) | |||||||
![]() | 16.8万円 5,000円 | 16.8万円 16.8万円 | 2DK 44.14m2 | 築29年 | 東京メトロ日比谷線 広尾駅 徒歩12分 JR山手線 恵比寿駅 徒歩13分 東京メトロ南北線 白金台駅 徒歩20分 東京都渋谷区恵比寿 | 詳細を見る | |
マンション ウェルシャン第2池袋(2DK/5階) | |||||||
![]() | 18万円 1万円 | 18万円 19万円 | 2DK 43.13m2 | 築47年 | JR山手線 池袋駅 徒歩6分 東京メトロ副都心線 雑司が谷駅(東京メトロ) 徒歩7分 JR山手線 目白駅 徒歩8分 東京都豊島区南池袋 | 詳細を見る | |
マンション プライマルシティ神楽坂(2LDK/12階) | |||||||
![]() | 32万円 1.5万円 | 32万円 32万円 | 2LDK 55.1m2 | 築6年 | 東京メトロ有楽町線 江戸川橋駅 徒歩3分 東京メトロ東西線 神楽坂駅 徒歩9分 都営大江戸線 牛込神楽坂駅 徒歩16分 東京都文京区関口 | 詳細を見る | |
マンション グランリビオ芝大門(1LDK/2階) | |||||||
![]() | 24万円 1.5万円 | 24万円 なし | 1LDK 32.32m2 | 築6年 | 都営大江戸線 大門駅(東京) 徒歩3分 JR山手線 浜松町駅 徒歩7分 都営三田線 芝公園駅 徒歩8分 東京都港区芝大門 | 詳細を見る | |
マンション パークシティ中野ザタワー エアーズ(1DK/22階) | |||||||
![]() | 18.4万円 1.5万円 | 18.4万円 18.4万円 | 1DK 30.65m2 | 築1年 | JR中央線 中野駅(東京) 徒歩6分 東京都中野区中野 | 詳細を見る | |
マンション ALIVIS中野(2LDK/1階) | |||||||
![]() | 22.65万円 1.5万円 | なし なし | 2LDK 47.73m2 | 築1年 | 西武鉄道新宿線 新井薬師前駅 徒歩10分 中央本線 中野駅(東京) 徒歩13分 東京都中野区上高田2丁目 | 詳細を見る | |
マンション カージェ文京千石(1LDK/4階) | |||||||
![]() | 18.9万円 1.5万円 | 18.9万円 18.9万円 | 1LDK 41.48m2 | 築5年 | JR山手線 巣鴨駅 徒歩7分 都営三田線 千石駅 徒歩8分 東京メトロ丸ノ内線 新大塚駅 徒歩15分 東京都文京区千石 | 詳細を見る | |








