賃貸マンション
河原ビルの賃貸物件情報(1K/5階)
| 家賃 | 管理費等 | 敷金 | 礼金 | 間取り | 専有面積 |
|---|---|---|---|---|---|
| 6.8万円 | 3,000円 | 6.8万円 | 6.8万円 | 1K | 24m2 |
入居決定でお祝い金最大100,000円
Point
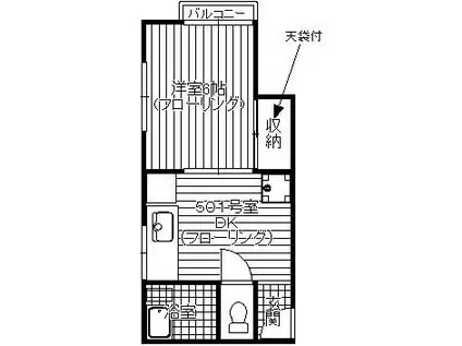
南東向き5階角部屋の為、日当たり良好。
提供:(有)佐久間不動産(SUUMO経由)

詳細情報 河原ビル
物件紹介
河原ビルは東京メトロ東西線早稲田駅から徒歩2分にあり、駅近で通勤通学に便利なマンションです。
このお部屋は2階以上に位置しているので、通行人や周囲の住人からの視線が気になりにくく、防犯面でも安心です。
人気の南向き・フローリングのお部屋。角部屋でもあるため、周囲の居住者の生活音も気になりにくい場所です。バス・トイレ別の仕様で、のんびりお風呂タイムも楽しめます。
このお部屋は2階以上に位置しているので、通行人や周囲の住人からの視線が気になりにくく、防犯面でも安心です。
人気の南向き・フローリングのお部屋。角部屋でもあるため、周囲の居住者の生活音も気になりにくい場所です。バス・トイレ別の仕様で、のんびりお風呂タイムも楽しめます。
お金・契約の情報
※「-」と表示されているものは、実際は料金が発生するものもございます。詳細はお問い合わせください。
| 家賃 | 6.8万円 | 管理費・共益費 | 3,000円 |
|---|---|---|---|
| 敷金 | 6.8万円 | 礼金 | 6.8万円 |
| 入居決定でお祝い金最大100,000円 | |||
| 保証金 | - | 償却・敷引 | - |
| 住宅保険料 | - | 更新料 | - |
| 保証会社利用 | 必須 | 保証会社名 | - |
| 保証会社費用 | - | 保証会社備考 | 保証会社利用必 初回保証委託料:月額総賃料の50%。継続保証料:1年毎に1万円。 |
| 契約形態 | 定期借家 | 契約期間 | 2年 |
| 入居・引渡期間 | 即時 | 現況 | - |
| 契約備考 | ■本物件の共用階段は狭くて急です。■本物件(室内・共用部・バルコニー・敷地内)は禁煙となります。(本物件内で喫煙行為が確認された場合、借主は退去時のルームクリーニング費用とは別に喫煙に伴う原状回復費用(強化クリーニング費用・クロス全面貼替費用・木部塗装費用等)をご負担して頂きます。) 合計1.87万円(内訳:鍵交換代:18,700円~) 駐輪場:1,000円/月、水道代(1人):2,000円/月 1K 定期借家2年 損保【1.8万円2年】 バストイレ別、バルコニー、エアコン、ガスコンロ対応、フローリング、室内洗濯置、南向き、角住戸、駐輪場、即入居可、最上階、保証人不要、敷金1ヶ月、駅徒歩5分以内、都市ガス、礼金1ヶ月 | ||
部屋の情報
| 間取り | 1K | 専有面積 | 24m2 |
|---|---|---|---|
| 所在階 / 向き | 5階 / 南 | バルコニー面積 | - |
| 水道 / ガス | - | ||
| 設備 | バス・トイレ別、2階以上、エアコン、南向き、角部屋、バルコニー、フローリング、コンロ:ガス、洗濯機:室内 | ||
| 当社物件ID | 160002572 | ||
建物の情報
| 建物名 | 河原ビル | ||
|---|---|---|---|
| 所在地 | 東京都新宿区早稲田町 | ||
| 交通 | 東京メトロ東西線 早稲田駅(メトロ) 徒歩2分 | ||
| 階数 | 5階建 | 総戸数 | - |
| 築年月 | 1972年04月 / 築54年 | エレベーター | - |
| 駐車場 | なし | バイク置き場 | - |
| 駐輪場 | あり | 管理人/管理会社 | - |
| 周辺環境 | その他 ヨークフーズ早稲田店(ショッピングセンター)まで191m その他 ローソン早稲田町店(コンビニ)まで115m | ||
| 建物種別 | マンション | 建物構造 | 鉄骨造 |
この部屋の取扱い不動産会社
| 会社名 | (有)佐久間不動産(SUUMO経由) | ||
|---|---|---|---|
| 所在地 | 東京都新宿区西早稲田1-13-1 | 交通 | - |
| 営業時間 | 9:30~18:30(土日祝10:00~17:00 | 定休日 | 年中無休 |
| 免許番号 | 東京都知事34392 | 取引態様 | 仲介 |
| 不動産会社管理番号 | 100476359358 | 当社管理番号 | 89 |
| 所属団体 | (公社)東京都宅地建物取引業協会会員 | ||
| 公正取引協議会 | (公社)首都圏不動産公正取引協議会加盟 | ||
| 取扱い物件情報 | 物件詳細へ | ||
※各種情報と現状に差異がある場合は、現状優先となります。問い合わせをすることで、より詳しい条件、情報を確認する事ができます。
提供:(有)佐久間不動産(SUUMO経由)
この物件が気になったら掲載期限まであと10日
河原ビルに条件(家賃・エリア)が近い物件一覧
| 写真 | 家賃 管理費等 | 敷金 礼金 | 間取り 専有面積 | 築年数 | 最寄り駅 所在地 | キープ | 詳細 |
|---|---|---|---|---|---|---|---|
マンション アネックス茗荷谷(ワンルーム/5階) | |||||||
![]() | 5.7万円 5,000円 | 5.7万円 なし | ワンルーム 16.5m2 | 築40年 | 東京地下鉄丸ノ内線 茗荷谷駅 徒歩7分 東京地下鉄有楽町線 護国寺駅 徒歩10分 東京都三田線 千石駅 徒歩16分 東京都文京区大塚3丁目 | 詳細を見る | |
マンション シンシア千駄木(ワンルーム/10階) | |||||||
![]() | 8万円 1万円 | 8万円 8万円 | ワンルーム 20.97m2 | 築24年 | 東京地下鉄千代田線 千駄木駅 徒歩1分 山手線 日暮里駅 徒歩11分 東京地下鉄南北線 本駒込駅 徒歩13分 東京都文京区千駄木3丁目 | 詳細を見る | |
マンション ルーブル文京音羽(1K/11階) | |||||||
![]() | 8.5万円 9,000円 | なし 8.5万円 | 1K 20.67m2 | 築26年 | 東京地下鉄有楽町線 江戸川橋駅 徒歩3分 東京地下鉄有楽町線 護国寺駅 徒歩7分 東京地下鉄丸ノ内線 茗荷谷駅 徒歩15分 東京都文京区音羽1丁目 | 詳細を見る | |
マンション ガラ・シティ茗荷谷(1K/10階) | |||||||
![]() | 8.8万円 9,000円 | 8.8万円 17.6万円 | 1K 22.41m2 | 築25年 | 東京地下鉄丸ノ内線 茗荷谷駅 徒歩6分 東京地下鉄丸ノ内線 新大塚駅 徒歩9分 東京地下鉄有楽町線 護国寺駅 徒歩9分 東京都文京区大塚3丁目 | 詳細を見る | |
マンション ヴァンクール(1K/4階) | |||||||
![]() | 10.5万円 7,000円 | 10.5万円 10.5万円 | 1K 26.25m2 | 築19年 | 東京地下鉄丸ノ内線 茗荷谷駅 徒歩9分 東京都三田線 千石駅 徒歩12分 東京地下鉄有楽町線 護国寺駅 徒歩14分 東京都文京区大塚3丁目 | 詳細を見る | |
マンション プレール本駒込(ワンルーム/6階) | |||||||
![]() | 7.2万円 6,000円 | なし 7.2万円 | ワンルーム 24.55m2 | 築38年 | 東京メトロ南北線 本駒込駅 徒歩3分 都営三田線 白山駅(東京) 徒歩9分 都営三田線 千石駅 徒歩11分 東京都文京区本駒込 | 詳細を見る | |
マンション 日神パレステージ御茶ノ水(ワンルーム/6階) | |||||||
![]() | 7.9万円 9,000円 | 7.9万円 7.9万円 | ワンルーム 20.93m2 | 築31年 | 東京地下鉄千代田線 湯島駅 徒歩6分 中央本線 御茶ノ水駅 徒歩8分 東京地下鉄銀座線 末広町駅(東京) 徒歩8分 東京都文京区湯島2丁目 | 詳細を見る | |
マンション ガラステーション岩本町ノース(1K/11階) | |||||||
![]() | 9.5万円 9,000円 | 9.5万円 19万円 | 1K 22.8m2 | 築20年 | 東京都新宿線 岩本町駅 徒歩2分 山手線 秋葉原駅 徒歩5分 東京地下鉄日比谷線 小伝馬町駅 徒歩8分 東京都千代田区岩本町3丁目 | 詳細を見る | |









