賃貸マンション
グランド神楽坂の賃貸物件情報(1K/2階)
| 家賃 | 管理費等 | 敷金 | 礼金 | 間取り | 専有面積 |
|---|---|---|---|---|---|
| 15万円 | 1万円 | なし | なし | 1K | 27.75m2 |
入居決定でお祝い金最大100,000円
- 保証金
- -
- 償却・敷引
- -
- 築年数
- 築3年
- 所在階
- 2階
- 向き
- -
Point
初期費用分割払い可能☆最大24ヶ月払い☆カード決済も対応しております!!遠方の方や忙しい方向けオンライン内見実施中☆
提供:Ptif(株)(SUUMO経由)

詳細情報 グランド神楽坂
物件紹介
グランド神楽坂は東京メトロ東西線神楽坂駅から徒歩5分にあり、駅近で通勤通学に便利なマンションです。
このお部屋は2階以上に位置しているので通行人や周囲の住人からの視線が気になりにくく、建物のエントランスはオートロックがついているので防犯性が高くなっています。
フローリングのお部屋なのでお掃除もラクラク。キッチンはシステムキッチン仕様になっていますので、お料理好きの方にもぴったり。バス・トイレは別なので、のんびりお風呂タイムも楽しめるでしょう。また、雨の日でも浴室乾燥機を使えば、お洗濯も問題ありません。
通信設備面では、インターネットが無料で使えるので、月々の出費を抑えられるのも魅力です。また、BSアンテナ・CSアンテナがありCATVにも対応しているので、おうち時間も充実するでしょう(別途工事、BS・CS・CATVの契約料等が必要な場合あり)。
建物にはエレベーターがついているので、重い荷物があっても安心。共用部には宅配ボックスが設定されているので、不在の時にも荷物を受け取ることができます。
このお部屋は2階以上に位置しているので通行人や周囲の住人からの視線が気になりにくく、建物のエントランスはオートロックがついているので防犯性が高くなっています。
フローリングのお部屋なのでお掃除もラクラク。キッチンはシステムキッチン仕様になっていますので、お料理好きの方にもぴったり。バス・トイレは別なので、のんびりお風呂タイムも楽しめるでしょう。また、雨の日でも浴室乾燥機を使えば、お洗濯も問題ありません。
通信設備面では、インターネットが無料で使えるので、月々の出費を抑えられるのも魅力です。また、BSアンテナ・CSアンテナがありCATVにも対応しているので、おうち時間も充実するでしょう(別途工事、BS・CS・CATVの契約料等が必要な場合あり)。
建物にはエレベーターがついているので、重い荷物があっても安心。共用部には宅配ボックスが設定されているので、不在の時にも荷物を受け取ることができます。
お金・契約の情報
※「-」と表示されているものは、実際は料金が発生するものもございます。詳細はお問い合わせください。
| 家賃 | 15万円 | 管理費・共益費 | 1万円 |
|---|---|---|---|
| 敷金 | なし | 礼金 | なし |
| 入居決定でお祝い金最大100,000円 | |||
| 保証金 | - | 償却・敷引 | - |
| 住宅保険料 | - | 更新料 | - |
| 保証会社利用 | 必須 | 保証会社名 | - |
| 保証会社費用 | - | 保証会社備考 | 保証会社利用必 初回保証委託料:月額賃料等の50%、2年目以降:10000円/年 詳細はお問い合わせください。 |
| 契約形態 | - | 契約期間 | - |
| 入居・引渡期間 | 即時 | 現況 | - |
| 契約備考 | 通勤管理 合計4.4万円(内訳:Goodプレミアムα1.65万円Goodプレミアムα登録料0.33万円鍵交換代2.42万円) 更新料 新賃料1.00ヶ月分 1K 普通借家2年 損保【2.2万円2年】 バストイレ別、バルコニー、エアコン、ガスコンロ対応、クロゼット、浴室乾燥機、オートロック、室内洗濯置、陽当り良好、シューズボックス、システムキッチン、温水洗浄便座、エレベーター、洗面所独立、2口コンロ、駐輪場、宅配ボックス、CATV、即入居可、礼金不要、閑静な住宅地、BS・CS、敷金不要、防犯カメラ、保証人不要、全居室フローリング、ネット専用回線、ネット使用料不要、眺望良好、ダブルロックキー、24時間換気システム、電子キー、築3年以内、人感照明センサー、耐火構造、耐震構造、防犯ガラス、高気密住宅、2駅利用可、3駅以上利用可、駅前、防犯強化地域、駅徒歩5分以内、駅徒歩10分以内、耐風構造、24時間ゴミ出し可、敷地内ごみ置き場、築5年以内、日勤管理、備付食器棚、都市ガス、敷金・礼金不要、通風良好 | ||
部屋の情報
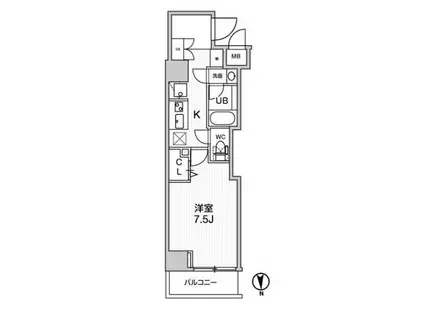
| 間取り | 1K | 専有面積 | 27.75m2 |
|---|---|---|---|
| 所在階 / 向き | 2階 / - | バルコニー面積 | - |
| 水道 / ガス | - | ||
| 設備 | バス・トイレ別、2階以上、オートロック、宅配ボックス、浴室乾燥機、インターネット対応、システムキッチン、エアコン、エレベーター、温水洗浄便座、バルコニー、フローリング、洗髪洗面化粧台、2口コンロ、コンロ:ガス、CATV、CSアンテナ、BSアンテナ、インターネット使用料無料、洗濯機:室内 | ||
| 当社物件ID | 159483303 | ||
建物の情報
| 建物名 | グランド神楽坂 | ||
|---|---|---|---|
| 所在地 | 東京都新宿区赤城元町 | ||
| 交通 | 東京メトロ東西線 神楽坂駅 徒歩5分 東京メトロ有楽町線 江戸川橋駅 徒歩5分 都営大江戸線 牛込神楽坂駅 徒歩6分 | ||
| 階数 | 6階建 | 総戸数 | - |
| 築年月 | 2023年07月 / 築3年 | エレベーター | あり |
| 駐車場 | なし | バイク置き場 | - |
| 駐輪場 | あり | 管理人/管理会社 | - |
| 周辺環境 | その他 ローソン 新小川町店(コンビニ)まで813m その他 セブンイレブン 新宿神楽坂駅西店(コンビニ)まで450m その他 ファミリーマート 新宿神楽坂駅前店(コンビニ)まで435m | ||
| 建物種別 | マンション | 建物構造 | RC(鉄筋コンクリート) |
この部屋の取扱い不動産会社
| 会社名 | Ptif(株)(SUUMO経由) | ||
|---|---|---|---|
| 所在地 | 東京都港区北青山1-3-3 6階 | 交通 | - |
| 営業時間 | 9:00~21:00 | 定休日 | 年中無休です! |
| 免許番号 | 東京都知事107647 | 取引態様 | 仲介 |
| 不動産会社管理番号 | 100457709304 | 当社管理番号 | 89 |
| 所属団体 | (公社)東京都宅地建物取引業協会会員 | ||
| 公正取引協議会 | (公社)首都圏不動産公正取引協議会加盟 | ||
| 取扱い物件情報 | 物件詳細へ | ||
※各種情報と現状に差異がある場合は、現状優先となります。問い合わせをすることで、より詳しい条件、情報を確認する事ができます。
提供:Ptif(株)(SUUMO経由)
この物件が気になったら掲載期限まであと10日
グランド神楽坂に条件(家賃・エリア)が近い物件一覧
| 写真 | 家賃 管理費等 | 敷金 礼金 | 間取り 専有面積 | 築年数 | 最寄り駅 所在地 | キープ | 詳細 |
|---|---|---|---|---|---|---|---|
マンション クリオ ラモード神楽坂(1DK/3階) | |||||||
![]() | 15.7万円 1万円 | なし なし | 1DK 30.32m2 | 築1年 | 東京メトロ東西線 神楽坂駅 徒歩5分 東京メトロ有楽町線 江戸川橋駅 徒歩5分 都営大江戸線 牛込神楽坂駅 徒歩11分 東京都新宿区赤城下町 | 詳細を見る | |
マンション CENTENARIO市谷二十騎町(1K/4階) | |||||||
![]() | 12.7万円 1万円 | 12.7万円 なし | 1K 25.86m2 | 築7年 | 都営大江戸線 牛込柳町駅 徒歩5分 都営大江戸線 牛込神楽坂駅 徒歩9分 東京メトロ東西線 神楽坂駅 徒歩14分 東京都新宿区二十騎町 | 詳細を見る | |
マンション パークウェル市ヶ谷(1K/3階) | |||||||
![]() | 12.5万円 1.5万円 | 12.5万円 12.5万円 | 1K 34.22m2 | 築25年 | 都営大江戸線 牛込神楽坂駅 徒歩10分 東京メトロ東西線 神楽坂駅 徒歩12分 東京メトロ有楽町線 市ケ谷駅 徒歩14分 東京都新宿区払方町 | 詳細を見る | |
アパート みらいえ高田馬場(ワンルーム/2階) | |||||||
![]() | 9.5万円 5,000円 | 9.5万円 なし | ワンルーム 23.88m2 | 築9年 | JR山手線 高田馬場駅 徒歩7分 西武新宿線 下落合駅(東京) 徒歩9分 都営大江戸線 中井駅 徒歩20分 東京都新宿区高田馬場 | 詳細を見る | |
マンション グランレスト渋谷大山町(1LDK/4階) | |||||||
![]() | 24万円 1万円 | 24万円 24万円 | 1LDK 40.72m2 | 築4年 | 東京メトロ千代田線 代々木上原駅 徒歩6分 小田急線 東北沢駅 徒歩8分 京王新線 幡ケ谷駅 徒歩17分 東京都渋谷区大山町 | 詳細を見る | |
マンション コートレジデンス南大塚(1LDK/13階) | |||||||
![]() | 18.7万円 1.5万円 | 18.7万円 18.7万円 | 1LDK 40m2 | 築1年 | JR山手線 大塚駅(東京) 徒歩5分 東京メトロ丸ノ内線 新大塚駅 徒歩6分 都営三田線 巣鴨駅 徒歩12分 東京都豊島区南大塚 | 詳細を見る | |
マンション レジディア文京音羽Ⅱ(1LDK/4階) | |||||||
![]() | 20.3万円 2万円 | 20.3万円 20.3万円 | 1LDK 44.24m2 | 築18年 | 東京地下鉄有楽町線 護国寺駅 徒歩2分 東京都文京区音羽2丁目 | 詳細を見る | |
マンション 第二富士ビル(ワンルーム/4階) | |||||||
![]() | 9.5万円 なし | 9.5万円 9.5万円 | ワンルーム 18.67m2 | 築39年 | 西武新宿線 新井薬師前駅 徒歩3分 JR中央線 中野駅(東京) 徒歩15分 東京メトロ東西線 中野駅(東京) 徒歩15分 東京都中野区新井 | 詳細を見る | |








/105x80-f1-q70-wp1)
