賃貸マンション
ソフィア新宿の賃貸物件情報(2LDK/2階)
| 家賃 | 管理費等 | 敷金 | 礼金 | 間取り | 専有面積 |
|---|---|---|---|---|---|
| 31.4万円 | 1.4万円 | 31.4万円 | なし | 2LDK | 73.64m2 |
入居決定でお祝い金最大100,000円
- 保証金
- -
- 償却・敷引
- -
- 築年数
- 築1年
- 所在階
- 2階
- 向き
- 西
Point
【2026年2月築】オートロック、宅配ボックスや24時間ゴミ出し可など暮らしを支える設備が魅力。【シャーメゾンZEH】断熱性が高く太陽光発電・余剰電力の売電が可能。
提供:(株)アクセス・リアルティー(SUUMO経由)

詳細情報 ソフィア新宿
物件紹介
ソフィア新宿は都営大江戸線西新宿五丁目駅から徒歩6分にあり、駅近で通勤通学に便利なマンションです。
このお部屋は2階以上に位置しているので通行人や周囲の住人からの視線が気になりにくく、建物のエントランスはオートロックがついているので防犯性が高くなっています。
人気の角部屋で周囲の居住者の生活音も気になりにくく、また、フローリングのお部屋なのでお掃除もラクラク。室内にはウォークインクローゼットがありますので、たくさんの荷物も効率的に収納ができます。キッチンはシステムキッチン仕様になっていますので、お料理好きの方にもぴったり。バス・トイレは別なので、のんびりお風呂タイムも楽しめるでしょう。また、雨の日でも浴室乾燥機を使えば、お洗濯も問題ありません。
通信設備面では、インターネットが無料で使えるので、月々の出費を抑えられるのも魅力です(別途工事等が必要な場合あり)。
床暖房があり、冬も足元から暖かく快適に過ごすことができます。建物にはエレベーターがついているので、重い荷物があっても安心。共用部には宅配ボックスが設定されているので、不在の時にも荷物を受け取ることができます。
このお部屋は2階以上に位置しているので通行人や周囲の住人からの視線が気になりにくく、建物のエントランスはオートロックがついているので防犯性が高くなっています。
人気の角部屋で周囲の居住者の生活音も気になりにくく、また、フローリングのお部屋なのでお掃除もラクラク。室内にはウォークインクローゼットがありますので、たくさんの荷物も効率的に収納ができます。キッチンはシステムキッチン仕様になっていますので、お料理好きの方にもぴったり。バス・トイレは別なので、のんびりお風呂タイムも楽しめるでしょう。また、雨の日でも浴室乾燥機を使えば、お洗濯も問題ありません。
通信設備面では、インターネットが無料で使えるので、月々の出費を抑えられるのも魅力です(別途工事等が必要な場合あり)。
床暖房があり、冬も足元から暖かく快適に過ごすことができます。建物にはエレベーターがついているので、重い荷物があっても安心。共用部には宅配ボックスが設定されているので、不在の時にも荷物を受け取ることができます。
お金・契約の情報
※「-」と表示されているものは、実際は料金が発生するものもございます。詳細はお問い合わせください。
| 家賃 | 31.4万円 | 管理費・共益費 | 1.4万円 |
|---|---|---|---|
| 敷金 | 31.4万円 | 礼金 | なし |
| フリーレント | あり | ||
| 入居決定でお祝い金最大100,000円 | |||
| 保証金 | - | 償却・敷引 | - |
| 住宅保険料 | - | 更新料 | - |
| 保証会社利用 | 必須 | 保証会社名 | - |
| 保証会社費用 | - | 保証会社備考 | 保証会社利用必 【初回事務手数料】33000円(税込)【月額保証料】家賃・共益費等 合計の2% |
| 契約形態 | - | 契約期間 | - |
| 入居・引渡期間 | 即時 | 現況 | - |
| 契約備考 | 東京メトロ丸ノ内線西新宿駅徒歩16分/保証会社利用必須/火災保険加入必須/24時間サポート加入必須/事務所使用不可/楽器禁止/民泊禁止/解約予告2カ月前(解約月は月割精算)/【シャーメゾンZEH】断熱性が高く太陽光発電・余剰電力の売電が可能。電力会社との太陽光発電設備の売電契約には、賃貸借契約による賃借開始後手続きに一定の期間を要します。賃借人が売電収入を受領できるのは、賃貸借契約締結後6か月以上先になる場合があります。 合計1.65万円(内訳:鍵登録設定費用 16500円税込) 退去時クリーニング費用 88550円/退去時 更新料 1ヶ月 2LDK 二人入居可/ルームシェア不可/フリーレント1ヶ月 普通借家2年 損保【3.08万円2年】 バストイレ別、バルコニー、エアコン、ガスコンロ対応、フローリング、浴室乾燥機、オートロック、室内洗濯置、シューズボックス、システムキッチン、追焚機能浴室、角住戸、温水洗浄便座、脱衣所、エレベーター、洗面所独立、洗面化粧台、駐輪場、宅配ボックス、即入居可、礼金不要、3口以上コンロ、防犯カメラ、独立型キッチン、グリル付、敷金1ヶ月、二人入居相談、全居室フローリング、2面バルコニー、仲手0.55ヶ月、LDK15畳以上、ネット使用料不要、フリーレント、床暖房、食器洗乾燥機、エアコン全室、24時間換気システム、電子キー、未入居、3駅以上利用可、3沿線以上利用可、駅徒歩10分以内、24時間ゴミ出し可、敷地内ごみ置き場、平面駐車場、全居室6畳以上、洗面所にドア、ウォークインクロゼット2、シューズWIC、玄関収納 | ||
部屋の情報
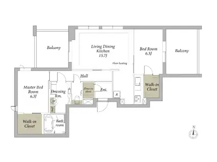
| 間取り | 2LDK | 専有面積 | 73.64m2 |
|---|---|---|---|
| 所在階 / 向き | 2階 / 西 | バルコニー面積 | - |
| 水道 / ガス | - | ||
| 設備 | バス・トイレ別、2階以上、オートロック、宅配ボックス、浴室乾燥機、ウォークインクローゼット、追い焚き、インターネット対応、システムキッチン、エアコン、エレベーター、温水洗浄便座、角部屋、バルコニー、フローリング、洗髪洗面化粧台、床暖房、2口コンロ、コンロ:ガス、インターネット使用料無料、洗濯機:室内 | ||
| 当社物件ID | 160296821 | ||
建物の情報
| 建物名 | ソフィア新宿 | ||
|---|---|---|---|
| 所在地 | 東京都新宿区西新宿 | ||
| 交通 | 都営大江戸線 西新宿五丁目駅 徒歩6分 都営大江戸線 都庁前駅 徒歩9分 京王新線 初台駅 徒歩14分 | ||
| 階数 | 4階建 | 総戸数 | 14戸 |
| 築年月 | 2026年02月 / 築1年 | エレベーター | あり |
| 駐車場 | なし 平置駐 | バイク置き場 | - |
| 駐輪場 | あり | 管理人/管理会社 | - |
| 周辺環境 | その他 セブン-イレブン 西新宿3丁目店(コンビニ)まで435m その他 ドラッグストアスマイル初台店(ドラッグストア)まで1182m その他 マルエツプチ西新宿三丁目店(スーパー)まで416m その他 ローソン西新宿三丁目店(コンビニ)まで435m その他 成城石井オペラシティ店(スーパー)まで725m その他 新宿パークタワー(ショッピングセンター)まで579m | ||
| 建物種別 | マンション | 建物構造 | 鉄骨造 |
この部屋の取扱い不動産会社
| 会社名 | (株)アクセス・リアルティー(SUUMO経由) | ||
|---|---|---|---|
| 所在地 | 東京都渋谷区千駄ヶ谷1-20-1 パークアベニュー5階 | 交通 | - |
| 営業時間 | 平日10時~17時半/土日祝10時~17時 | 定休日 | 年末年始/GW/夏期休暇を除く |
| 免許番号 | 東京都知事55712 | 取引態様 | 仲介 |
| 不動産会社管理番号 | 100485325219 | 当社管理番号 | 89 |
| 所属団体 | (公社)東京都宅地建物取引業協会会員 | ||
| 公正取引協議会 | (公社)首都圏不動産公正取引協議会加盟 | ||
| 取扱い物件情報 | 物件詳細へ | ||
※各種情報と現状に差異がある場合は、現状優先となります。問い合わせをすることで、より詳しい条件、情報を確認する事ができます。
提供:(株)アクセス・リアルティー(SUUMO経由)
この物件が気になったら掲載期限まであと11日
ソフィア新宿に条件(家賃・エリア)が近い物件一覧
| 写真 | 家賃 管理費等 | 敷金 礼金 | 間取り 専有面積 | 築年数 | 最寄り駅 所在地 | キープ | 詳細 |
|---|---|---|---|---|---|---|---|
マンション ハーモニーレジデンス新宿御苑THEイースト(1LDK/6階) | |||||||
![]() | 26万円 1.5万円 | 26万円 26万円 | 1LDK 40.8m2 | 築8年 | 都営大江戸線 東新宿駅 徒歩8分 東京メトロ丸ノ内線 新宿御苑前駅 徒歩9分 東京メトロ丸ノ内線 新宿三丁目駅 徒歩9分 東京都新宿区新宿 | 詳細を見る | |
マンション ルジェンテバリュ麻布十番(ワンルーム/7階) | |||||||
![]() | 21.3万円 6,000円 | 21.3万円 21.3万円 | ワンルーム 37.06m2 | 築11年 | 東京メトロ南北線 麻布十番駅 徒歩2分 都営大江戸線 麻布十番駅 徒歩2分 都営大江戸線 赤羽橋駅 徒歩11分 東京都港区麻布十番 | 詳細を見る | |
マンション イトーピア麻布(2LDK/2階) | |||||||
![]() | 37.5万円 2.5万円 | 75万円 37.5万円 | 2LDK 68.82m2 | 築31年 | 都営三田線 白金高輪駅 徒歩8分 東京メトロ南北線 麻布十番駅 徒歩9分 都営三田線 三田駅(東京) 徒歩15分 東京都港区南麻布 | 詳細を見る | |
マンション シティタワー新宿新都心(1DK/6階) | |||||||
![]() | 20.5万円 1.5万円 | なし なし | 1DK 37.89m2 | 築22年 | 東京都大江戸線 西新宿五丁目駅 徒歩2分 東京地下鉄丸ノ内線 西新宿駅 徒歩10分 東京都新宿区西新宿4丁目 | 詳細を見る | |
マンション BELISTA小石川竹早町(2LDK/4階) | |||||||
![]() | 25.5万円 なし | 25.5万円 25.5万円 | 2LDK 59.74m2 | 築16年 | 東京メトロ丸ノ内線 茗荷谷駅 徒歩8分 東京メトロ南北線 後楽園駅 徒歩16分 都営三田線 春日駅(東京) 徒歩17分 東京都文京区小石川 | 詳細を見る | |
マンション クレヴィア文京湯島(1LDK/13階) | |||||||
![]() | 21万円 2万円 | 21万円 21万円 | 1LDK 40.75m2 | 築7年 | 東京メトロ千代田線 湯島駅 徒歩1分 都営大江戸線 本郷三丁目駅 徒歩10分 東京メトロ丸ノ内線 御茶ノ水駅 徒歩15分 東京都文京区湯島 | 詳細を見る | |
マンション AKASAKA K-TOWER RESIDENCE(1LDK/25階) | |||||||
![]() | 50万円 なし | 100万円 100万円 | 1LDK 60.28m2 | 築15年 | 東京メトロ銀座線 赤坂見附駅 徒歩2分 東京メトロ有楽町線 永田町駅 徒歩4分 東京メトロ千代田線 赤坂駅(東京) 徒歩10分 東京都港区元赤坂 | 詳細を見る | |
マンション ルフォンプログレ高田馬場ノース(1LDK/2階) | |||||||
![]() | 19.2万円 1.5万円 | 19.2万円 なし | 1LDK 30.4m2 | 築1年 | 東京地下鉄東西線 高田馬場駅 徒歩10分 東京都新宿区高田馬場3丁目 | 詳細を見る | |









/105x80-f1-q70-wp1)