賃貸マンション
ミレニアムコート青葉台の賃貸物件情報(3LDK/4階)
| 家賃 | 管理費等 | 敷金 | 礼金 | 間取り | 専有面積 |
|---|---|---|---|---|---|
| 21.6万円 | 1万円 | 21.6万円 | 43.2万円 | 3LDK | 70.52m2 |
入居決定でお祝い金最大100,000円
Point
B・T別 浴室乾燥機 洗面所独立 システムキッチン グリル ウォークインクローゼット 室内洗濯機置場 フローリング エアコン CATV インターネット対応 オートロック バルコニー エレベーター
提供:(株)ワタヤコミュニティー南町田グランベリーパーク店(SUUMO経由)

詳細情報 ミレニアムコート青葉台
物件紹介
ミレニアムコート青葉台は東急田園都市線青葉台駅から徒歩13分にあるマンションです。
このお部屋は2階以上に位置しているので、通行人や周囲の住人からの視線が気になりにくく、防犯面でも安心。建物のエントランスはオートロックがついており、インターホンにはTVモニタもついているため、相手の顔を確認してから来客対応することができます。
こちらは楽器相談が可能な物件。楽器演奏をお考えの方はぜひ相談してみてください。人気の南向き・フローリングのお部屋。角部屋でもあるため、周囲の居住者の生活音も気になりにくい場所です。室内にはウォークインクローゼットがありますので、たくさんの荷物も効率的に収納ができます。キッチンはシステムキッチン仕様になっていますので、お料理好きの方にもぴったり。バス・トイレは別なので、のんびりお風呂タイムも楽しめるでしょう。また、雨の日でも浴室乾燥機を使えば、お洗濯も問題ありません。
通信設備面では、インターネット接続が可能です。また、CATVにも対応しているので、おうち時間も充実するでしょう(別途工事、契約料が必要な場合あり)。
建物にはエレベーターがついているので、重い荷物があっても安心。共用部には宅配ボックスが設定されているので、不在の時にも荷物を受け取ることができます。
このお部屋は2階以上に位置しているので、通行人や周囲の住人からの視線が気になりにくく、防犯面でも安心。建物のエントランスはオートロックがついており、インターホンにはTVモニタもついているため、相手の顔を確認してから来客対応することができます。
こちらは楽器相談が可能な物件。楽器演奏をお考えの方はぜひ相談してみてください。人気の南向き・フローリングのお部屋。角部屋でもあるため、周囲の居住者の生活音も気になりにくい場所です。室内にはウォークインクローゼットがありますので、たくさんの荷物も効率的に収納ができます。キッチンはシステムキッチン仕様になっていますので、お料理好きの方にもぴったり。バス・トイレは別なので、のんびりお風呂タイムも楽しめるでしょう。また、雨の日でも浴室乾燥機を使えば、お洗濯も問題ありません。
通信設備面では、インターネット接続が可能です。また、CATVにも対応しているので、おうち時間も充実するでしょう(別途工事、契約料が必要な場合あり)。
建物にはエレベーターがついているので、重い荷物があっても安心。共用部には宅配ボックスが設定されているので、不在の時にも荷物を受け取ることができます。
お金・契約の情報
※「-」と表示されているものは、実際は料金が発生するものもございます。詳細はお問い合わせください。
| 家賃 | 21.6万円 | 管理費・共益費 | 1万円 |
|---|---|---|---|
| 敷金 | 21.6万円 | 礼金 | 43.2万円 |
| 入居決定でお祝い金最大100,000円 | |||
| 保証金 | - | 償却・敷引 | - |
| 住宅保険料 | - | 更新料 | - |
| 保証会社利用 | 必須 | 保証会社名 | - |
| 保証会社費用 | - | 保証会社備考 | 保証会社利用必 初回保証委託料(最低20,000円):月額賃料等の50%、 2年目以降:9,600円/年 |
| 契約形態 | - | 契約期間 | - |
| 入居・引渡期間 | - | 現況 | - |
| 入居可能条件 | 楽器相談 | ||
| 契約備考 | 更新料新賃料1ヶ月クリーニング費用131872円宅配box 合計3.3万円(内訳:鍵交換代33000円) 口座振替事務手数料月額110円/月室内清掃費用131,872円 3LDK 楽器相談 普通借家2年 損保【2.5万円2年】 バストイレ別、バルコニー、エアコン、クロゼット、フローリング、浴室乾燥機、オートロック、室内洗濯置、システムキッチン、エレベーター、洗面所独立、宅配ボックス、CATV、グリル付、ウォークインクロゼット、敷金1ヶ月、ネット専用回線、楽器相談、礼金2ヶ月、保証会社利用可 入居日:'26年3月下旬 | ||
部屋の情報
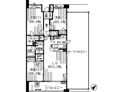
| 間取り | 3LDK | 専有面積 | 70.52m2 |
|---|---|---|---|
| 所在階 / 向き | 4階 / 南東 | バルコニー面積 | 46m2 |
| 水道 / ガス | - | ||
| 設備 | バス・トイレ別、2階以上、オートロック、宅配ボックス、浴室乾燥機、ウォークインクローゼット、インターネット対応、システムキッチン、エアコン、エレベーター、南向き、バルコニー、フローリング、洗髪洗面化粧台、CATV、洗濯機:室内 | ||
| 当社物件ID | 2915937 | ||
建物の情報
| 建物名 | ミレニアムコート青葉台 | ||
|---|---|---|---|
| 所在地 | 神奈川県横浜市青葉区青葉台 | ||
| 交通 | 東急田園都市線 青葉台駅 徒歩13分 | ||
| 階数 | 地下1地上5階建 | 総戸数 | - |
| 築年月 | 2000年03月 / 築26年 | エレベーター | あり |
| 駐車場 | 空有 18700円 | バイク置き場 | - |
| 駐輪場 | - | 管理人/管理会社 | - |
| 周辺環境 | その他 青葉台東急スクエアSouth-1別館(ショッピングセンター)まで1002m その他 まいばすけっと青葉台2丁目店(スーパー)まで378m その他 クリエイトエス・ディー青葉桜台店(ドラッグストア)まで866m その他 横浜青葉台二郵便局(郵便局)まで401m その他 世田谷信用金庫青葉台支店(銀行)まで905m その他 ローソン青葉桜台北店(コンビニ)まで772m | ||
| 建物種別 | マンション | 建物構造 | RC(鉄筋コンクリート) |
この部屋の取扱い不動産会社
| 会社名 | (株)ワタヤコミュニティー青葉台支店(SUUMO経由) | ||
|---|---|---|---|
| 所在地 | 神奈川県横浜市青葉区青葉台2-11-1 ドミール大貫1A | 交通 | - |
| 営業時間 | 9:30-18:30 | 定休日 | 水曜日・第1火曜日 |
| 免許番号 | 国土交通大臣5885 | 取引態様 | 仲介 |
| 不動産会社管理番号 | 100480577145 | 当社管理番号 | 89 |
| 所属団体 | (公社)全日本不動産協会神奈川県本部会員 | ||
| 公正取引協議会 | (公社)首都圏不動産公正取引協議会加盟 | ||
| 取扱い物件情報 | 物件詳細へ | ||
※各種情報と現状に差異がある場合は、現状優先となります。問い合わせをすることで、より詳しい条件、情報を確認する事ができます。
提供:(株)ワタヤコミュニティー青葉台支店(SUUMO経由)
この物件が気になったら掲載期限まであと11日
ミレニアムコート青葉台に条件(家賃・エリア)が近い物件一覧
| 写真 | 家賃 管理費等 | 敷金 礼金 | 間取り 専有面積 | 築年数 | 最寄り駅 所在地 | キープ | 詳細 |
|---|---|---|---|---|---|---|---|
マンション ハイツ湘南(4SDK/1階) | |||||||
![]() | 15万円 なし | 30万円 15万円 | 4SDK 95.23m2 | 築35年 | 小田急江ノ島線 善行駅 徒歩7分 小田急江ノ島線 藤沢本町駅 徒歩32分 小田急江ノ島線 六会日大前駅 徒歩32分 神奈川県藤沢市善行 | 詳細を見る | |
マンション ブランシエスタ新丸子リバーフロント(2LDK/6階) | |||||||
![]() | 20.2万円 2万円 | 20.2万円 20.2万円 | 2LDK 42.03m2 | 新築 | 東急東横線 新丸子駅 徒歩8分 神奈川県川崎市中原区上丸子八幡町 | 詳細を見る | |
アパート パークサイドアルモニー(3LDK/2階) | |||||||
![]() | 14.15万円 5,000円 | なし 21.2万円 | 3LDK 62.1m2 | 新築 | 横浜市グリーンL 北山田駅(神奈川) 徒歩18分 神奈川県川崎市宮前区東有馬5丁目 | 詳細を見る | |
マンション キャリアライズ湘南(2LDK/2階) | |||||||
![]() | 17.8万円 1.3万円 | 17.8万円 35.6万円 | 2LDK 54.98m2 | 築1年 | 湘南新宿ライン高海 藤沢駅 徒歩5分 JR東海道本線 藤沢駅 徒歩5分 小田急江ノ島線 藤沢駅 徒歩9分 神奈川県藤沢市藤沢 | 詳細を見る | |
マンション 4階建千年ヘーベルメゾン(2LDK/3階) | |||||||
![]() | 22.4万円 1.2万円 | 22.4万円 22.4万円 | 2LDK 60.36m2 | 新築 | JR南武線 武蔵新城駅 徒歩10分 JR南武線 武蔵中原駅 徒歩24分 東急田園都市線 梶が谷駅 徒歩30分 神奈川県川崎市高津区千年 | 詳細を見る | |
マンション デル・スール テラス(1LDK/7階) | |||||||
![]() | 13.3万円 6,000円 | 13.3万円 39.9万円 | 1LDK 41.4m2 | 築11年 | 小田急電鉄小田原線 向ケ丘遊園駅 徒歩5分 小田急電鉄小田原線 登戸駅 徒歩9分 神奈川県川崎市多摩区登戸 | 詳細を見る | |
マンション ピア新百合山手(2LDK/5階) | |||||||
![]() | 17.4万円 5,000円 | 17.4万円 17.4万円 | 2LDK 55.66m2 | 築1年 | 小田急線 新百合ケ丘駅 徒歩8分 小田急多摩線 新百合ケ丘駅 徒歩8分 小田急線 百合ケ丘駅 徒歩15分 神奈川県川崎市麻生区万福寺 | 詳細を見る | |
一戸建て 小田急電鉄江ノ島線 南林間駅 徒歩16分 築28年(4LDK) | |||||||
![]() | 20万円 なし | 20万円 20万円 | 4LDK 106.4m2 | 築28年 | 小田急電鉄江ノ島線 南林間駅 徒歩16分 神奈川県大和市南林間6丁目 | 詳細を見る | |









