賃貸マンション
エステムコート難波サウスプレイス8ハイドの賃貸物件情報(1K/9階)
| 家賃 | 管理費等 | 敷金 | 礼金 | 間取り | 専有面積 |
|---|---|---|---|---|---|
| 6.45万円 | 6,300円 | なし | なし | 1K | 21.6m2 |
入居決定でお祝い金最大100,000円
Point
地下鉄なんば駅14番出口出てすぐ「アパマンショップなんば店」
提供:アパマンショップなんば店

詳細情報 エステムコート難波サウスプレイス8ハイド
物件紹介
エステムコート難波サウスプレイス8ハイドは南海電鉄南海本線難波駅から徒歩13分にあるマンションです。
このお部屋は2階以上に位置しているので、通行人や周囲の住人からの視線が気になりにくく、防犯面でも安心。建物のエントランスはオートロックがついており、インターホンにはTVモニタもついているため、相手の顔を確認してから来客対応することができます。
人気の角部屋で周囲の居住者の生活音も気になりにくく、また、フローリングのお部屋なのでお掃除もラクラク。キッチンはシステムキッチン仕様になっていますので、お料理好きの方にもぴったり。バス・トイレは別なので、のんびりお風呂タイムも楽しめるでしょう。また、雨の日でも浴室乾燥機を使えば、お洗濯も問題ありません。
通信設備面では、インターネットが無料で使えるので、月々の出費を抑えられるのも魅力です。また、CATVにも対応しているので、おうち時間も充実するでしょう(別途工事、CATVの契約料等が必要な場合あり)。
建物にはエレベーターがついているので、重い荷物があっても安心。共用部には宅配ボックスが設定されているので、不在の時にも荷物を受け取ることができます。また、ペット飼育の相談ができますので、あなたの大切な家族の一員も快適に暮らせるか、ぜひ確認してみてください。
このお部屋は2階以上に位置しているので、通行人や周囲の住人からの視線が気になりにくく、防犯面でも安心。建物のエントランスはオートロックがついており、インターホンにはTVモニタもついているため、相手の顔を確認してから来客対応することができます。
人気の角部屋で周囲の居住者の生活音も気になりにくく、また、フローリングのお部屋なのでお掃除もラクラク。キッチンはシステムキッチン仕様になっていますので、お料理好きの方にもぴったり。バス・トイレは別なので、のんびりお風呂タイムも楽しめるでしょう。また、雨の日でも浴室乾燥機を使えば、お洗濯も問題ありません。
通信設備面では、インターネットが無料で使えるので、月々の出費を抑えられるのも魅力です。また、CATVにも対応しているので、おうち時間も充実するでしょう(別途工事、CATVの契約料等が必要な場合あり)。
建物にはエレベーターがついているので、重い荷物があっても安心。共用部には宅配ボックスが設定されているので、不在の時にも荷物を受け取ることができます。また、ペット飼育の相談ができますので、あなたの大切な家族の一員も快適に暮らせるか、ぜひ確認してみてください。
お金・契約の情報
※「-」と表示されているものは、実際は料金が発生するものもございます。詳細はお問い合わせください。
| 家賃 | 6.45万円 | 管理費・共益費 | 6,300円 |
|---|---|---|---|
| 敷金 | なし | 礼金 | なし |
| 入居決定でお祝い金最大100,000円 | |||
| 保証金 | - | 償却・敷引 | - |
| 住宅保険料 | - | 更新料 | - |
| 保証会社利用 | 必須 | 保証会社名 | - |
| 保証会社費用 | - | 保証会社備考 | [初回]総賃料50% [月額]総賃料1.5% |
| 契約形態 | - | 契約期間 | 1年 |
| 入居・引渡期間 | 2026年03月中旬 | 現況 | - |
| 入居可能条件 | 2人入居可、ペット可 | ||
部屋の情報
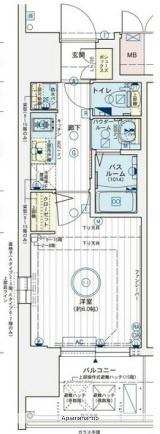
| 間取り | 1K | 専有面積 | 21.6m2 |
|---|---|---|---|
| 所在階 / 向き | 9階 / 西 | バルコニー面積 | - |
| 水道 / ガス | ガス【都市】 | ||
| 設備 | バス・トイレ別、オートロック、テレビドアホン、宅配ボックス、浴室乾燥機、光ファイバー対応、システムキッチン、エレベーター、温水洗浄便座、角部屋、バルコニー、フローリング、コンロ:ガス、CATV、インターネット使用料無料、シャワー、給湯、冷房、洗濯機:室内、タイル張り | ||
| 当社物件ID | 140428054 | ||
建物の情報
| 建物名 | エステムコート難波サウスプレイス8ハイド | ||
|---|---|---|---|
| 所在地 | 大阪府大阪市浪速区日本橋5丁目 | ||
| 交通 | 南海電鉄南海本線 難波駅(南海) 徒歩13分 | ||
| 階数 | 15階建 | 総戸数 | 151戸 |
| 築年月 | 2023年07月 / 築3年 | エレベーター | あり |
| 駐車場 | - | バイク置き場 | あり |
| 駐輪場 | あり | 管理人/管理会社 | - |
| 周辺環境 | その他 でんでんタウン 日本橋電器街 徒歩3分(183m) その他 セブンイレブン 徒歩4分(276m) その他 通天閣 徒歩6分(476m) その他 ライフ下寺店 徒歩9分(678m) その他 ファミリーマート 徒歩7分(526m) その他 桃源郷太平のゆ 徒歩8分(579m) その他 食材センターODA 徒歩8分(620m) その他 なんばパークス 徒歩9分(719m) | ||
| 建物種別 | マンション | 建物構造 | RC(鉄筋コンクリート) |
この部屋の取扱い不動産会社
| 会社名 | アパマンショップなんば店 | ||
|---|---|---|---|
| 所在地 | 大阪府大阪市中央区難波1丁目 7-10難波泉屋ビル2F | 交通 | 大阪市御堂筋線なんばから徒歩1分 |
| 営業時間 | 10:00〜19:00(年中無休[年末年始等は除く]) | 定休日 | - |
| 免許番号 | 大阪府知事(6)47572 | 取引態様 | 仲介 |
| 不動産会社管理番号 | 98128059 | 当社管理番号 | 4 |
| 所属団体 | (一社)大阪府宅地建物取引業協会 | ||
| 公正取引協議会 | (公社) 近畿地区不動産公正取引協議会加盟 | ||
| 取扱い物件情報 | 物件詳細へ | ||
※各種情報と現状に差異がある場合は、現状優先となります。問い合わせをすることで、より詳しい条件、情報を確認する事ができます。
提供:アパマンショップなんば店
この物件が気になったら掲載期限まであと12日
エステムコート難波サウスプレイス8ハイドに条件(家賃・エリア)が近い物件一覧
| 写真 | 家賃 管理費等 | 敷金 礼金 | 間取り 専有面積 | 築年数 | 最寄り駅 所在地 | キープ | 詳細 |
|---|---|---|---|---|---|---|---|
マンション リアライズ門真本町(1K/5階) | |||||||
![]() | 4.9万円 6,000円 | なし 2万円 | 1K 25.01m2 | 築27年 | 京阪電気鉄道京阪線 西三荘駅 徒歩11分 京阪電気鉄道京阪線 門真市駅 徒歩12分 大阪府門真市本町 | 詳細を見る | |
アパート 阪和線 津久野駅 徒歩6分 築1年(1K/3階) | |||||||
![]() | 5.9万円 3,000円 | なし なし | 1K 24.4m2 | 築1年 | 阪和線 津久野駅 徒歩6分 阪和線 上野芝駅 徒歩14分 阪和線 鳳駅 徒歩28分 大阪府堺市西区津久野町3丁 | 詳細を見る | |
アパート 阪和線 鳳駅 徒歩10分 築11年(1K/2階) | |||||||
![]() | 5.4万円 3,000円 | なし なし | 1K 20.3m2 | 築11年 | 阪和線 鳳駅 徒歩10分 阪和線 津久野駅 徒歩16分 南海電鉄南海本線 羽衣駅 徒歩25分 大阪府堺市西区鳳北町4丁 | 詳細を見る | |
マンション レオパレス南高浜(1K/3階) | |||||||
| 7万円 5,000円 | なし 7万円 | 1K 19.87m2 | 築18年 | 阪急電鉄京都線 相川駅 徒歩8分 東海道本線 吹田駅(JR) 徒歩10分 阪急電鉄京都線 上新庄駅 徒歩15分 大阪府吹田市南高浜町3-11 | 詳細を見る | ||
アパート アムール エステート(2LDK/1階) | |||||||
![]() | 8.5万円 8,000円 | なし 12.75万円 | 2LDK 59.28m2 | 築17年 | 近鉄南大阪線 布忍駅 徒歩10分 近鉄南大阪線 河内天美駅 徒歩19分 大阪市御堂筋線 北花田駅 徒歩20分 大阪府松原市北新町6丁目 | 詳細を見る | |
アパート MAIZON AZUMA(ワンルーム/2階) | |||||||
![]() | 5.3万円 なし | なし 15.9万円 | ワンルーム 29.92m2 | 築40年 | 京阪電気鉄道京阪線 門真市駅 徒歩5分 京阪電気鉄道京阪線 西三荘駅 徒歩7分 京阪電気鉄道京阪線 古川橋駅 徒歩17分 大阪府門真市本町 | 詳細を見る | |
アパート ボヌール鳳1(1K/1階) | |||||||
![]() | 4.7万円 3,000円 | なし なし | 1K 26.5m2 | 築25年 | 阪和線 鳳駅 徒歩10分 阪和線 津久野駅 徒歩21分 阪和線 富木駅 徒歩25分 大阪府堺市西区鳳東町7丁 | 詳細を見る | |






