賃貸マンション
リンクスレガーミの賃貸物件情報(1K/5階)
| 家賃 | 管理費等 | 敷金 | 礼金 | 間取り | 専有面積 |
|---|---|---|---|---|---|
| 7.9万円 | 1.5万円 | 7.9万円 | 7.9万円 | 1K | 22.12m2 |
入居決定でお祝い金最大100,000円
- 保証金
- -
- 償却・敷引
- 7.9万円
- 築年数
- 築20年
- 所在階
- 5階
- 向き
- 西
Point
お電話でのお問い合わせは8時30分から20時まで可能です!お気軽にフリーダイヤルまでご連絡ください♪◇webでのお申し込みも対応可能です◇
提供:(株)ネクストライフ八王子店(SUUMO経由)

詳細情報 リンクスレガーミ
物件紹介
リンクスレガーミは京王線府中駅から徒歩14分にあるマンションです。
このお部屋は2階以上に位置しているので、通行人や周囲の住人からの視線が気になりにくく、防犯面でも安心。建物のエントランスはオートロックがついており、インターホンにはTVモニタもついているため、相手の顔を確認してから来客対応することができます。
フローリングのお部屋なのでお掃除もラクラク。キッチンはシステムキッチン仕様になっていますので、お料理好きの方にもぴったり。バス・トイレは別なので、のんびりお風呂タイムも楽しめるでしょう。また、雨の日でも浴室乾燥機を使えば、お洗濯も問題ありません。
通信設備面では、インターネットが無料で使えるので、月々の出費を抑えられるのも魅力です。また、BSアンテナ・CSアンテナもありますので、おうち時間も充実するでしょう(別途工事、BS・CSの契約料等が必要な場合あり)。
建物にはエレベーターがついているので、重い荷物があっても安心。共用部には宅配ボックスが設定されているので、不在の時にも荷物を受け取ることができます。また、ペット飼育の相談ができますので、あなたの大切な家族の一員も快適に暮らせるか、ぜひ確認してみてください。
このお部屋は2階以上に位置しているので、通行人や周囲の住人からの視線が気になりにくく、防犯面でも安心。建物のエントランスはオートロックがついており、インターホンにはTVモニタもついているため、相手の顔を確認してから来客対応することができます。
フローリングのお部屋なのでお掃除もラクラク。キッチンはシステムキッチン仕様になっていますので、お料理好きの方にもぴったり。バス・トイレは別なので、のんびりお風呂タイムも楽しめるでしょう。また、雨の日でも浴室乾燥機を使えば、お洗濯も問題ありません。
通信設備面では、インターネットが無料で使えるので、月々の出費を抑えられるのも魅力です。また、BSアンテナ・CSアンテナもありますので、おうち時間も充実するでしょう(別途工事、BS・CSの契約料等が必要な場合あり)。
建物にはエレベーターがついているので、重い荷物があっても安心。共用部には宅配ボックスが設定されているので、不在の時にも荷物を受け取ることができます。また、ペット飼育の相談ができますので、あなたの大切な家族の一員も快適に暮らせるか、ぜひ確認してみてください。
お金・契約の情報
※「-」と表示されているものは、実際は料金が発生するものもございます。詳細はお問い合わせください。
| 家賃 | 7.9万円 | 管理費・共益費 | 1.5万円 |
|---|---|---|---|
| 敷金 | 7.9万円 | 礼金 | 7.9万円 |
| 入居決定でお祝い金最大100,000円 | |||
| 保証金 | - | 償却・敷引 | 7.9万円 |
| 住宅保険料 | - | 更新料 | - |
| 保証会社利用 | 必須 | 保証会社名 | - |
| 保証会社費用 | - | 保証会社備考 | 保証会社利用必 初回保証料(月額総賃料の50%)、1年毎(10000円) |
| 契約形態 | - | 契約期間 | - |
| 入居・引渡期間 | - | 現況 | - |
| 入居可能条件 | ペット相談 | ||
| 契約備考 | 口座振替事務手数料:660円/月入居中サポート:21450円室内抗菌処理代:17600円鍵交換代:22000円事務手数料:11000円更新事務手数料:22000円ペット飼育時:共益費3500円追加(小型犬または猫1匹まで)クリーニング費:66000円短期解約違約金:1年未満の解約で総賃料1ヶ月分 更新料 新賃料1.50ヶ月分 1K ペット相談 普通借家2年 損保【2.3万円2年】 バストイレ別、バルコニー、エアコン、ガスコンロ対応、クロゼット、フローリング、TVインターホン、浴室乾燥機、オートロック、室内洗濯置、シューズボックス、システムキッチン、温水洗浄便座、エレベーター、洗面所独立、洗面化粧台、2口コンロ、駐輪場、宅配ボックス、ペット相談、分譲賃貸、2沿線利用可、CS、ネット使用料不要、2駅利用可、3駅以上利用可、3沿線以上利用可、都市ガス、BS、初期費用カード決済可 入居日:'26年4月中旬 | ||
部屋の情報
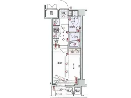
| 間取り | 1K | 専有面積 | 22.12m2 |
|---|---|---|---|
| 所在階 / 向き | 5階 / 西 | バルコニー面積 | - |
| 水道 / ガス | - | ||
| 設備 | バス・トイレ別、2階以上、オートロック、テレビドアホン、宅配ボックス、浴室乾燥機、インターネット対応、システムキッチン、エアコン、エレベーター、温水洗浄便座、バルコニー、フローリング、洗髪洗面化粧台、2口コンロ、コンロ:ガス、CSアンテナ、BSアンテナ、インターネット使用料無料、洗濯機:室内 | ||
| 当社物件ID | 20609432 | ||
建物の情報
| 建物名 | リンクスレガーミ | ||
|---|---|---|---|
| 所在地 | 東京都府中市幸町 | ||
| 交通 | 京王線 府中駅(東京) 徒歩14分 JR武蔵野線 北府中駅 徒歩14分 JR南武線 府中本町駅 徒歩23分 | ||
| 階数 | 6階建 | 総戸数 | - |
| 築年月 | 2007年02月 / 築20年 | エレベーター | あり |
| 駐車場 | なし | バイク置き場 | - |
| 駐輪場 | あり | 管理人/管理会社 | - |
| 周辺環境 | その他 ファミリーマート(コンビニ)まで610m その他 セブンイレブン(コンビニ)まで775m その他 クリーニング屋(その他)まで605m その他 スーパーヤマザキ(スーパー)まで621m その他 ピアゴ(スーパー)まで1110m その他 島忠ホームズ(ホームセンター)まで1069m | ||
| 建物種別 | マンション | 建物構造 | RC(鉄筋コンクリート) |
この部屋の取扱い不動産会社
| 会社名 | (株)ネクストライフ立川店(SUUMO経由) | ||
|---|---|---|---|
| 所在地 | 東京都立川市柴崎町3-8-1 NACビル5階 | 交通 | - |
| 営業時間 | 10:00~18:30(電話8:30~20:00) | 定休日 | 年末年始を除き無休 |
| 免許番号 | 国土交通大臣8175 | 取引態様 | 仲介 |
| 不動産会社管理番号 | 100490950633 | 当社管理番号 | 89 |
| 所属団体 | (公社)東京都宅地建物取引業協会会員 | ||
| 公正取引協議会 | (公社)首都圏不動産公正取引協議会加盟 | ||
| 取扱い物件情報 | 物件詳細へ | ||
※各種情報と現状に差異がある場合は、現状優先となります。問い合わせをすることで、より詳しい条件、情報を確認する事ができます。
提供:(株)ネクストライフ立川店(SUUMO経由)
この物件が気になったら掲載期限まであと10日
リンクスレガーミに条件(家賃・エリア)が近い物件一覧
| 写真 | 家賃 管理費等 | 敷金 礼金 | 間取り 専有面積 | 築年数 | 最寄り駅 所在地 | キープ | 詳細 |
|---|---|---|---|---|---|---|---|
マンション 雅ビル(1K/3階) | |||||||
![]() | 5.9万円 3,000円 | なし なし | 1K 19.8m2 | 築36年 | 西武鉄道国分寺線 国分寺駅 徒歩13分 東京都国分寺市東恋ヶ窪2丁目 | 詳細を見る | |
マンション サンライフ矢野口(1K/4階) | |||||||
![]() | 5.7万円 5,000円 | なし なし | 1K 28.31m2 | 築41年 | JR南武線 矢野口駅 徒歩4分 京王相模原線 京王よみうりランド駅 徒歩12分 京王相模原線 京王稲田堤駅 徒歩20分 東京都稲城市矢野口 | 詳細を見る | |
アパート クレイノエスポワール(1K/1階) | |||||||
![]() | 8.6万円 5,000円 | なし 8.6万円 | 1K 19.28m2 | 築10年 | 西武多摩川線 新小金井駅 徒歩3分 JR中央線 東小金井駅 徒歩9分 JR中央線 武蔵境駅 徒歩28分 東京都小金井市東町 | 詳細を見る | |
アパート クレスト平山(3DK/1階) | |||||||
![]() | 9.4万円 5,000円 | なし 10万円 | 3DK 53.46m2 | 築30年 | 京王線 平山城址公園駅 徒歩10分 京王線 南平駅 徒歩13分 JR中央線 豊田駅 徒歩25分 東京都日野市平山 | 詳細を見る | |
アパート サンライフS(ワンルーム/2階) | |||||||
![]() | 5.2万円 2,000円 | 5.2万円 なし | ワンルーム 20m2 | 築33年 | 中央本線 国分寺駅 徒歩13分 東京都国分寺市東元町3丁目 | 詳細を見る | |
マンション レオネクストレーヴ(ワンルーム/1階) | |||||||
![]() | 8.1万円 5,000円 | なし 8.1万円 | ワンルーム 27.8m2 | 築11年 | 多摩都市モノレール 万願寺駅 徒歩9分 多摩都市モノレール 甲州街道駅 徒歩13分 京王線 高幡不動駅 徒歩21分 東京都日野市 | 詳細を見る | |






