賃貸マンション
エストゥルース府中の賃貸物件情報(2LDK/1階)
| 家賃 | 管理費等 | 敷金 | 礼金 | 間取り | 専有面積 |
|---|---|---|---|---|---|
| 13.3万円 | 2万円 | なし | なし | 2LDK | 42.04m2 |
入居決定でお祝い金最大100,000円
- 保証金
- 13.3万円
- 償却・敷引
- -
- 築年数
- 築1年
- 所在階
- 1階
- 向き
- 南西
Point
★☆府中市内及び近郊のお部屋探しはレントハウス府中本店にお任せ下さい。どんなご条件も全力でお探しします。ホームページより未掲載・新着物件も検索可能です。042ー352ー5201まで☆★
提供:(株)レントハウス府中本店(SUUMO経由)

詳細情報 エストゥルース府中
物件紹介
エストゥルース府中は京王線東府中駅から徒歩10分にあり、駅近で通勤通学に便利なマンションです。
建物のエントランスはオートロックがついており、インターホンにはTVモニタもついているため、相手の顔を確認してから来客対応することができます。
人気の南向き・フローリングのお部屋。角部屋でもあるため、周囲の居住者の生活音も気になりにくい場所です。キッチンはシステムキッチン仕様になっていますので、お料理好きの方にもぴったり。バス・トイレは別なので、のんびりお風呂タイムも楽しめるでしょう。また、雨の日でも浴室乾燥機を使えば、お洗濯も問題ありません。
通信設備面では、インターネットが無料で使えるので、月々の出費を抑えられるのも魅力です。また、BSアンテナ・CSアンテナもありますので、おうち時間も充実するでしょう(別途工事、BS・CSの契約料等が必要な場合あり)。
建物にはエレベーターがついているので、重い荷物があっても安心。共用部には宅配ボックスが設定されているので、不在の時にも荷物を受け取ることができます。また、ペット飼育の相談ができますので、あなたの大切な家族の一員も快適に暮らせるか、ぜひ確認してみてください。
建物のエントランスはオートロックがついており、インターホンにはTVモニタもついているため、相手の顔を確認してから来客対応することができます。
人気の南向き・フローリングのお部屋。角部屋でもあるため、周囲の居住者の生活音も気になりにくい場所です。キッチンはシステムキッチン仕様になっていますので、お料理好きの方にもぴったり。バス・トイレは別なので、のんびりお風呂タイムも楽しめるでしょう。また、雨の日でも浴室乾燥機を使えば、お洗濯も問題ありません。
通信設備面では、インターネットが無料で使えるので、月々の出費を抑えられるのも魅力です。また、BSアンテナ・CSアンテナもありますので、おうち時間も充実するでしょう(別途工事、BS・CSの契約料等が必要な場合あり)。
建物にはエレベーターがついているので、重い荷物があっても安心。共用部には宅配ボックスが設定されているので、不在の時にも荷物を受け取ることができます。また、ペット飼育の相談ができますので、あなたの大切な家族の一員も快適に暮らせるか、ぜひ確認してみてください。
お金・契約の情報
※「-」と表示されているものは、実際は料金が発生するものもございます。詳細はお問い合わせください。
| 家賃 | 13.3万円 | 管理費・共益費 | 2万円 |
|---|---|---|---|
| 敷金 | なし | 礼金 | なし |
| 入居決定でお祝い金最大100,000円 | |||
| 保証金 | 13.3万円 | 償却・敷引 | - |
| 住宅保険料 | - | 更新料 | - |
| 保証会社利用 | 必須 | 保証会社名 | - |
| 保証会社費用 | - | 保証会社備考 | 保証会社利用必 月額保証料 総賃料の1%(最低1000円)+決済サービス料500円(税別)初回保証料 総賃料の50% ※年間更新料なし |
| 契約形態 | - | 契約期間 | - |
| 入居・引渡期間 | 即時 | 現況 | - |
| 入居可能条件 | ペット相談 | ||
| 契約備考 | 弊社が募集窓口ですので直接お問い合わせくださいませ★外国籍の方相談可能♪ペット飼育ご相談可、バイク置き場、機械式駐車場有(要問合せ)残りわずかです。お早目にお問い合わせくださいませ(駐輪場 月/330円) 火災保険+24時間緊急対応(にじいろサポート24)月額2,000円(税別) 2LDK 単身者可/二人入居可/子供可/ペット相談/ルームシェア相談 普通借家2年 バストイレ別、バルコニー、エアコン、ガスコンロ対応、クロゼット、フローリング、シャワー付洗面台、TVインターホン、浴室乾燥機、オートロック、室内洗濯置、システムキッチン、追焚機能浴室、角住戸、温水洗浄便座、脱衣所、エレベーター、洗面所独立、洗面化粧台、駐輪場、宅配ボックス、光ファイバー、即入居可、閑静な住宅地、2面採光、BS・CS、3口以上コンロ、防犯カメラ、ペット相談、分譲賃貸、オートバス、グリル付、全居室洋室、保証人不要、バイク置場、全居室フローリング、玄関ホール、ディンプルキー、ネット専用回線、ネット使用料不要、エアコン全室、ダブルロックキー、築2年以内、24時間換気システム、TV付浴室、ルームシェア相談、未入居、花火大会鑑賞、駐車5台以上、3駅以上利用可、駅徒歩10分以内、24時間ゴミ出し可、敷地内ごみ置き場、南西向き、都市ガス、高速ネット対応、敷金・礼金不要、IT重説対応物件、LGBTフレンドリー、初期費用カード決済可 敷金積み増し【ペット飼育の場合敷金1ヶ月(総額)】 | ||
部屋の情報
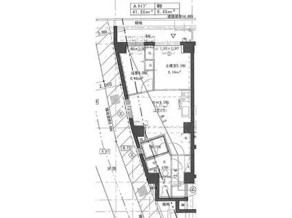
| 間取り | 2LDK | 専有面積 | 42.04m2 |
|---|---|---|---|
| 所在階 / 向き | 1階 / 南西 | バルコニー面積 | - |
| 水道 / ガス | - | ||
| 設備 | バス・トイレ別、オートロック、テレビドアホン、宅配ボックス、浴室乾燥機、追い焚き、インターネット対応、システムキッチン、エアコン、エレベーター、温水洗浄便座、南向き、角部屋、バルコニー、フローリング、洗髪洗面化粧台、2口コンロ、コンロ:ガス、CSアンテナ、BSアンテナ、インターネット使用料無料、洗濯機:室内 | ||
| 当社物件ID | 160553232 | ||
建物の情報
| 建物名 | エストゥルース府中 | ||
|---|---|---|---|
| 所在地 | 東京都府中市是政 | ||
| 交通 | 京王線 東府中駅 徒歩10分 京王線 多磨霊園駅 徒歩13分 京王線 府中駅(東京) 徒歩25分 | ||
| 階数 | 6階建 | 総戸数 | - |
| 築年月 | 2026年03月 / 築1年 | エレベーター | あり |
| 駐車場 | 空有 15400円 | バイク置き場 | あり |
| 駐輪場 | あり | 管理人/管理会社 | - |
| 周辺環境 | その他 ファミリーマート 府中是政店(コンビニ)まで196m その他 サミットストア 東府中店(スーパー)まで778m その他 ローソンストア100 LS府中清水が丘三丁目店(スーパー)まで980m その他 グリーン調剤薬局(ドラッグストア)まで868m その他 府中市立府中第八小学校(小学校)まで179m その他 府中白百合第二幼稚園(幼稚園・保育園)まで145m | ||
| 建物種別 | マンション | 建物構造 | RC(鉄筋コンクリート) |
この部屋の取扱い不動産会社
| 会社名 | (株)レントハウス府中本店(SUUMO経由) | ||
|---|---|---|---|
| 所在地 | 東京都府中市府中町2-1-7 角ないとうビル1階 | 交通 | - |
| 営業時間 | AM10:00~PM6:00 | 定休日 | 毎週水曜・第2・3火曜日 |
| 免許番号 | 東京都知事77443 | 取引態様 | 仲介 |
| 不動産会社管理番号 | 100492908801 | 当社管理番号 | 89 |
| 所属団体 | (公社)東京都宅地建物取引業協会会員 | ||
| 公正取引協議会 | (公社)首都圏不動産公正取引協議会加盟 | ||
| 取扱い物件情報 | 物件詳細へ | ||
※各種情報と現状に差異がある場合は、現状優先となります。問い合わせをすることで、より詳しい条件、情報を確認する事ができます。
提供:(株)レントハウス府中本店(SUUMO経由)
この物件が気になったら掲載期限まであと11日
エストゥルース府中に条件(家賃・エリア)が近い物件一覧
| 写真 | 家賃 管理費等 | 敷金 礼金 | 間取り 専有面積 | 築年数 | 最寄り駅 所在地 | キープ | 詳細 |
|---|---|---|---|---|---|---|---|
アパート シャインガーデン(1LDK/2階) | |||||||
![]() | 9.8万円 3,000円 | 9.8万円 9.8万円 | 1LDK 49.69m2 | 築12年 | 京王線 多磨霊園駅 徒歩5分 西武多摩川線 白糸台駅 徒歩6分 京王線 武蔵野台駅 徒歩10分 東京都府中市白糸台 | 詳細を見る | |
マンション グリーンガーデンI(2LDK/1階) | |||||||
![]() | 17万円 8,000円 | 17万円 17万円 | 2LDK 54.78m2 | 築21年 | 京王相模原線 京王多摩川駅 徒歩9分 京王線 調布駅 徒歩9分 京王相模原線 調布駅 徒歩9分 東京都調布市小島町 | 詳細を見る | |
マンション オークラレジデンス武蔵小金井(2LDK/4階) | |||||||
![]() | 20.4万円 2万円 | なし なし | 2LDK 49.51m2 | 築6年 | JR中央線 武蔵小金井駅 徒歩9分 JR中央線 東小金井駅 徒歩27分 西武多摩湖線 国分寺駅 徒歩36分 東京都小金井市本町 | 詳細を見る | |
マンション グロース府中イーストII(1K/8階) | |||||||
![]() | 8.7万円 5,000円 | なし 8.7万円 | 1K 25.46m2 | 築11年 | 京王競馬場線 東府中駅 徒歩5分 京王線 府中駅(東京) 徒歩13分 JR南武線 府中本町駅 徒歩20分 東京都府中市八幡町 | 詳細を見る | |
マンション 西村コーポラス(2DK/3階) | |||||||
![]() | 9.5万円 なし | 9.5万円 9.5万円 | 2DK 41.4m2 | 築52年 | JR中央線 武蔵小金井駅 徒歩6分 JR中央線 東小金井駅 徒歩24分 西武多摩川線 新小金井駅 徒歩27分 東京都小金井市中町 | 詳細を見る | |
アパート スプリングハウス(1LDK/2階) | |||||||
![]() | 14.3万円 2,000円 | 14.3万円 14.3万円 | 1LDK 45.35m2 | 築1年 | JR中央線 武蔵小金井駅 徒歩10分 西武国分寺線 国分寺駅 徒歩27分 西武多摩川線 新小金井駅 徒歩34分 東京都小金井市前原町 | 詳細を見る | |
アパート タナカハイツ(4DK/1階) | |||||||
![]() | 13.2万円 なし | 13.2万円 13.2万円 | 4DK 69m2 | 築33年 | JR中央線 東小金井駅 徒歩13分 JR中央線 武蔵小金井駅 徒歩30分 JR中央線 武蔵境駅 徒歩31分 東京都小金井市梶野町 | 詳細を見る | |
アパート グリーンメゾン柴崎(2LDK/1階) | |||||||
![]() | 14.4万円 6,000円 | 14.4万円 なし | 2LDK 47.6m2 | 築1年 | 京王線 柴崎駅 徒歩13分 京王線 国領駅 徒歩16分 京王線 つつじケ丘駅 徒歩22分 東京都調布市佐須町 | 詳細を見る | |









