賃貸マンション
NATURA FUNABORIの賃貸物件情報(1K/2階)
| 家賃 | 管理費等 | 敷金 | 礼金 | 間取り | 専有面積 |
|---|---|---|---|---|---|
| 6.5万円 | 5,000円 | なし | なし | 1K | 19.87m2 |
入居決定でお祝い金最大100,000円
Point
まずはお問い合わせ!
不動産会社は街のプロ、あなたに合った物件がきっと見つかります。
提供:アエラス新小岩店 (株)アエラス.FR(SUUMO経由)

詳細情報 NATURA FUNABORI
物件紹介
NATURA FUNABORIは都営新宿線船堀駅から徒歩14分にあるマンションです。
このお部屋は2階以上に位置しているので、通行人や周囲の住人からの視線が気になりにくく、防犯面でも安心。インターホンにはTVモニタもついているため、相手の顔を確認してから来客対応することができます。
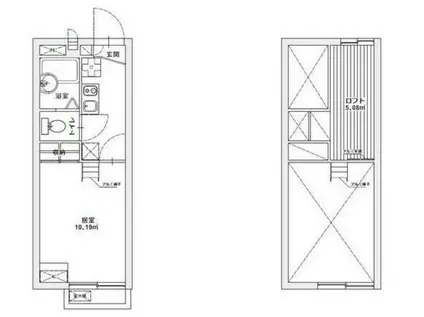
人気のロフト付きのお部屋。多目的に利用でき、お部屋のアレンジも自在です。浴室乾燥機付きで、雨の日でもお洗濯は問題ありません。
通信設備面では、インターネット接続が可能です。また、CATVにも対応しているので、おうち時間も充実するでしょう(別途工事、契約料が必要な場合あり)。
このお部屋は2階以上に位置しているので、通行人や周囲の住人からの視線が気になりにくく、防犯面でも安心。インターホンにはTVモニタもついているため、相手の顔を確認してから来客対応することができます。
人気のロフト付きのお部屋。多目的に利用でき、お部屋のアレンジも自在です。浴室乾燥機付きで、雨の日でもお洗濯は問題ありません。
通信設備面では、インターネット接続が可能です。また、CATVにも対応しているので、おうち時間も充実するでしょう(別途工事、契約料が必要な場合あり)。
お金・契約の情報
※「-」と表示されているものは、実際は料金が発生するものもございます。詳細はお問い合わせください。
| 家賃 | 6.5万円 | 管理費・共益費 | 5,000円 |
|---|---|---|---|
| 敷金 | なし | 礼金 | なし |
| 入居決定でお祝い金最大100,000円 | |||
| 保証金 | - | 償却・敷引 | - |
| 住宅保険料 | 1円 | 更新料 | - |
| 保証会社利用 | 必須 | 保証会社名 | - |
| 保証会社費用 | - | 保証会社備考 | 株式会社エポスカード 初回保証料:月額賃料等総額の50% 毎月、月額賃料等の1%がかかります。 |
| 契約形態 | - | 契約期間 | 2年 |
| 入居・引渡期間 | 相談 | 現況 | - |
| 契約備考 | 月額(駆けつけサービス(月) 1100円) その他設備/条件:室内洗濯機置き場、シューズボックス | ||
部屋の情報
| 間取り | 1K | 専有面積 | 19.87m2 |
|---|---|---|---|
| 間取り詳細 | 洋室(10.1帖) | ||
| 所在階 / 向き | 2階 / 北西 | バルコニー面積 | - |
| 水道 / ガス | - | ||
| 設備 | テレビドアホン、浴室乾燥機、インターネット対応、エアコン、温水洗浄便座、CATV | ||
| 当社物件ID | 156851029 | ||
建物の情報
| 建物名 | NATURA FUNABORI | ||
|---|---|---|---|
| 所在地 | 東京都江戸川区東小松川4丁目 | ||
| 交通 | 東京都新宿線 船堀駅 徒歩14分 | ||
| 階数 | 2階建 | 総戸数 | - |
| 築年月 | 2003年12月 / 築23年 | エレベーター | - |
| 駐車場 | なし | バイク置き場 | - |
| 駐輪場 | - | 管理人/管理会社 | - |
| 周辺環境 | その他 ドラッグストア その他 公園 その他 銀行 その他 * | ||
| 建物種別 | マンション | 建物構造 | 鉄骨造 |
この部屋の取扱い不動産会社
| 会社名 | ハウスコム東東京株式会社 小岩店 | ||
|---|---|---|---|
| 所在地 | 東京都江戸川区22-7丸誠ビルディング1階 | 交通 | - |
| 営業時間 | 10:00~18:00 | 定休日 | 水曜定休 |
| 免許番号 | 東京都知事(1)第108283号 | 取引態様 | 仲介 |
| 不動産会社管理番号 | HC4-5158864-0212-0152 | 当社管理番号 | 468 |
| 所属団体 | 、 | ||
| 取扱い物件情報 | 物件詳細へ | ||
※各種情報と現状に差異がある場合は、現状優先となります。問い合わせをすることで、より詳しい条件、情報を確認する事ができます。
提供:ハウスコム東東京株式会社 小岩店
この物件が気になったら掲載期限まであと4日
NATURA FUNABORIに条件(家賃・エリア)が近い物件一覧
| 写真 | 家賃 管理費等 | 敷金 礼金 | 間取り 専有面積 | 築年数 | 最寄り駅 所在地 | キープ | 詳細 |
|---|---|---|---|---|---|---|---|
マンション 米山ビル(2K/3階) | |||||||
![]() | 5.1万円 2,000円 | なし なし | 2K 24.1m2 | 築53年 | JR総武線 両国駅 徒歩6分 都営新宿線 森下駅(東京) 徒歩8分 都営大江戸線 森下駅(東京) 徒歩10分 東京都墨田区緑 | 詳細を見る | |
マンション GLANZ門前仲町(1K/6階) | |||||||
![]() | 10万円 1万円 | なし なし | 1K 21m2 | 築6年 | 都営大江戸線 門前仲町駅 徒歩5分 都営大江戸線 清澄白河駅 徒歩10分 JR京葉線 越中島駅 徒歩17分 東京都江東区深川 | 詳細を見る | |
アパート BER堀切(1K/1階) | |||||||
![]() | 6万円 5,000円 | 6万円 なし | 1K 16.97m2 | 築2年 | 京成本線 堀切菖蒲園駅 徒歩5分 京成本線 お花茶屋駅 徒歩21分 東武伊勢崎線 鐘ケ淵駅 徒歩28分 東京都葛飾区堀切 | 詳細を見る | |
マンション パセオ・ラルゴ(1K/4階) | |||||||
![]() | 8.5万円 1万円 | 8.5万円 8.5万円 | 1K 21.3m2 | 築18年 | JR総武線快速 錦糸町駅 徒歩9分 都営大江戸線 両国駅 徒歩10分 都営新宿線 菊川駅(東京) 徒歩15分 東京都墨田区亀沢 | 詳細を見る | |
マンション オルハレ(1K/2階) | |||||||
![]() | 7.9万円 1万円 | なし 7.9万円 | 1K 30.09m2 | 築15年 | 東京メトロ東西線 西葛西駅 徒歩10分 東京メトロ東西線 葛西駅 徒歩13分 JR京葉線 葛西臨海公園駅 徒歩26分 東京都江戸川区西葛西 | 詳細を見る | |
アパート MELDIA鐘ヶ淵(1K/1階) | |||||||
![]() | 6.6万円 3,000円 | なし なし | 1K 17.93m2 | 築3年 | 東武伊勢崎線 鐘ケ淵駅 徒歩5分 東武伊勢崎線 東向島駅 徒歩8分 京成押上線 八広駅 徒歩12分 東京都墨田区墨田 | 詳細を見る | |
マンション ラ メゾン オンズ(ワンルーム/2階) | |||||||
![]() | 10万円 1.2万円 | なし 10万円 | ワンルーム 26.87m2 | 築15年 | 東武伊勢崎線 東向島駅 徒歩10分 東武伊勢崎線 曳舟駅 徒歩13分 東武亀戸線 曳舟駅 徒歩13分 東京都墨田区堤通 | 詳細を見る | |
マンション リブリ・エルカーサ亀有(1LDK/2階) | |||||||
![]() | 9.5万円 3,000円 | なし 9.5万円 | 1LDK 31.88m2 | 築1年 | 京成本線 お花茶屋駅 徒歩15分 JR常磐線 亀有駅 徒歩18分 京成押上線 青砥駅 徒歩24分 東京都葛飾区白鳥 | 詳細を見る | |









