賃貸アパート
BER堀切の賃貸物件情報(1K/1階)
| 家賃 | 管理費等 | 敷金 | 礼金 | 間取り | 専有面積 |
|---|---|---|---|---|---|
| 6万円 | 5,000円 | 6万円 | なし | 1K | 16.97m2 |
入居決定でお祝い金最大100,000円
Point
まずはお問い合わせ!
不動産会社は街のプロ、あなたに合った物件がきっと見つかります。
提供:アエラス新小岩店 (株)アエラス.FR(SUUMO経由)

詳細情報 BER堀切
物件紹介
BER堀切は京成本線堀切菖蒲園駅から徒歩5分にあり、駅近で通勤通学に便利なアパートです。
このお部屋のインターホンにはTVモニタがついているため、相手の顔を確認してから来客対応することができます。
人気の角部屋で周囲の居住者の生活音も気になりにくく、また、フローリングのお部屋なのでお掃除もラクラク。キッチンはシステムキッチン仕様になっていますので、お料理好きの方にもぴったり。バス・トイレは別なので、のんびりお風呂タイムも楽しめるでしょう。また、雨の日でも浴室乾燥機を使えば、お洗濯も問題ありません。
通信設備面では、インターネットが無料で使えるので、月々の出費を抑えられるのも魅力です。また、BSアンテナ・CSアンテナがありCATVにも対応しているので、おうち時間も充実するでしょう(別途工事、BS・CS・CATVの契約料等が必要な場合あり)。
共用部には宅配ボックスが設定されているので、不在の時にも荷物を受け取ることができます。
このお部屋のインターホンにはTVモニタがついているため、相手の顔を確認してから来客対応することができます。
人気の角部屋で周囲の居住者の生活音も気になりにくく、また、フローリングのお部屋なのでお掃除もラクラク。キッチンはシステムキッチン仕様になっていますので、お料理好きの方にもぴったり。バス・トイレは別なので、のんびりお風呂タイムも楽しめるでしょう。また、雨の日でも浴室乾燥機を使えば、お洗濯も問題ありません。
通信設備面では、インターネットが無料で使えるので、月々の出費を抑えられるのも魅力です。また、BSアンテナ・CSアンテナがありCATVにも対応しているので、おうち時間も充実するでしょう(別途工事、BS・CS・CATVの契約料等が必要な場合あり)。
共用部には宅配ボックスが設定されているので、不在の時にも荷物を受け取ることができます。
お金・契約の情報
※「-」と表示されているものは、実際は料金が発生するものもございます。詳細はお問い合わせください。
| 家賃 | 6万円 | 管理費・共益費 | 5,000円 |
|---|---|---|---|
| 敷金 | 6万円 | 礼金 | なし |
| 入居決定でお祝い金最大100,000円 | |||
| 保証金 | - | 償却・敷引 | - |
| 住宅保険料 | - | 更新料 | - |
| 保証会社利用 | 必須 | 保証会社名 | - |
| 保証会社費用 | - | 保証会社備考 | 保証会社利用必 初回総額の50%・年額10,000円・口座振替手数料330円/月 |
| 契約形態 | - | 契約期間 | - |
| 入居・引渡期間 | 即時 | 現況 | - |
| 契約備考 | 短期解約違約金有り:契約開始日より1年未満での解約の場合、賃料等1ヵ月分 合計4.95万円(内訳:24時間安心サポート1.65万円鍵交換代3.3万円) 1K 普通借家2年 損保【要】 バストイレ別、エアコン、ガスコンロ対応、TVインターホン、浴室乾燥機、室内洗濯置、角住戸、2口コンロ、宅配ボックス、CATV、即入居可、礼金不要、2面採光、2沿線利用可、ネット使用料不要、築2年以内、2駅利用可、3駅以上利用可、3沿線以上利用可、駅徒歩5分以内、駅徒歩10分以内、都市ガス、洗面所に窓、IT重説対応物件 | ||
部屋の情報
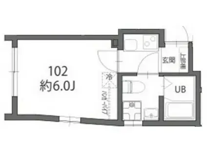
| 間取り | 1K | 専有面積 | 16.97m2 |
|---|---|---|---|
| 所在階 / 向き | 1階 / 北西 | バルコニー面積 | - |
| 水道 / ガス | - | ||
| 設備 | バス・トイレ別、テレビドアホン、宅配ボックス、浴室乾燥機、インターネット対応、エアコン、角部屋、2口コンロ、コンロ:ガス、CATV、インターネット使用料無料、洗濯機:室内 | ||
| 当社物件ID | 155092463 | ||
建物の情報
| 建物名 | BER堀切 | ||
|---|---|---|---|
| 所在地 | 東京都葛飾区堀切 | ||
| 交通 | 京成本線 堀切菖蒲園駅 徒歩5分 東武伊勢崎線 堀切駅 徒歩16分 JR常磐線 北千住駅 徒歩30分 | ||
| 階数 | 3階建 | 総戸数 | 9戸 |
| 築年月 | 2024年03月 / 築2年 | エレベーター | - |
| 駐車場 | 近隣 250m16500円 | バイク置き場 | - |
| 駐輪場 | - | 管理人/管理会社 | - |
| 周辺環境 | その他 聖和幼稚園(幼稚園・保育園)まで1376m その他 荒川区立汐入こども園(幼稚園・保育園)まで1734m その他 荒川区立南千住第二幼稚園(幼稚園・保育園)まで2588m その他 うぃず千住曙町保育園(幼稚園・保育園)まで1039m その他 アスク千住保育園(幼稚園・保育園)まで1150m その他 まなびの森保育園関屋(幼稚園・保育園)まで1190m | ||
| 建物種別 | アパート | 建物構造 | 木造 |
この部屋の取扱い不動産会社
| 会社名 | GRANT不動産 東京支店(株)Grant Home(SUUMO経由) | ||
|---|---|---|---|
| 所在地 | 東京都荒川区東日暮里5-51-11 静屋ビル10階 | 交通 | - |
| 営業時間 | 10:00~19:00 | 定休日 | 水曜日・第一第三火曜日 |
| 免許番号 | 国土交通大臣10606 | 取引態様 | 仲介 |
| 不動産会社管理番号 | 100482634887 | 当社管理番号 | 89 |
| 所属団体 | (公社)東京都宅地建物取引業協会会員 | ||
| 公正取引協議会 | (公社)首都圏不動産公正取引協議会加盟 | ||
| 取扱い物件情報 | 物件詳細へ | ||
※各種情報と現状に差異がある場合は、現状優先となります。問い合わせをすることで、より詳しい条件、情報を確認する事ができます。
提供:GRANT不動産 東京支店(株)Grant Home(SUUMO経由)
この物件が気になったら掲載期限まであと10日
BER堀切に条件(家賃・エリア)が近い物件一覧
| 写真 | 家賃 管理費等 | 敷金 礼金 | 間取り 専有面積 | 築年数 | 最寄り駅 所在地 | キープ | 詳細 |
|---|---|---|---|---|---|---|---|
マンション アーバンパーク扇大橋(1K/6階) | |||||||
![]() | 8.4万円 1.5万円 | なし なし | 1K 25.43m2 | 築1年 | 日暮里・舎人ライナー 扇大橋駅 徒歩2分 日暮里・舎人ライナー 高野駅(東京) 徒歩4分 東京都足立区扇 | 詳細を見る | |
マンション ID.1953/A(ワンルーム/2階) | |||||||
![]() | 7.9万円 9,500円 | 7.9万円 7.9万円 | ワンルーム 20m2 | 築22年 | 都営浅草線 本所吾妻橋駅 徒歩4分 都営浅草線 浅草駅(東武・都営・メトロ) 徒歩11分 東武伊勢崎線 とうきょうスカイツリー駅 徒歩11分 東京都墨田区東駒形 | 詳細を見る | |
マンション リトルウッドマンション(ワンルーム/4階) | |||||||
![]() | 5.5万円 なし | 5.5万円 5.5万円 | ワンルーム 19.8m2 | 築43年 | 総武・中央緩行線 新小岩駅 徒歩7分 東京都葛飾区東新小岩5丁目 | 詳細を見る | |
マンション リブリ・エルカーサ亀有(1LDK/2階) | |||||||
![]() | 9.5万円 3,000円 | なし 9.5万円 | 1LDK 31.88m2 | 築1年 | 京成本線 お花茶屋駅 徒歩10分 京成本線 青砥駅 徒歩23分 京成本線 堀切菖蒲園駅 徒歩25分 東京都葛飾区白鳥 | 詳細を見る | |
マンション GENOVIAお花茶屋IISKYGARDEN(1K/1階) | |||||||
![]() | 7.15万円 1万円 | なし なし | 1K 20.88m2 | 築3年 | 京成本線 お花茶屋駅 徒歩9分 京成本線 堀切菖蒲園駅 徒歩9分 東武伊勢崎線 堀切駅 徒歩25分 東京都葛飾区宝町 | 詳細を見る | |
マンション ブライズ北綾瀬(1K/6階) | |||||||
![]() | 9.7万円 8,000円 | なし 19.4万円 | 1K 25.66m2 | 築3年 | 東京地下鉄千代田線 北綾瀬駅 徒歩7分 東京都足立区谷中4丁目 | 詳細を見る | |
アパート Y・K花畑(1LDK/2階) | |||||||
![]() | 8.3万円 5,000円 | なし 8.3万円 | 1LDK 40.07m2 | 築16年 | つくばエクスプレス 六町駅 徒歩28分 東武伊勢崎線 竹ノ塚駅 徒歩29分 東武伊勢崎線 谷塚駅 徒歩33分 東京都足立区花畑 | 詳細を見る | |







