賃貸マンション
ブライトリーTの賃貸物件情報(2LDK/1階)
| 家賃 | 管理費等 | 敷金 | 礼金 | 間取り | 専有面積 |
|---|---|---|---|---|---|
| 4.95万円 | 3,000円 | なし | 4.95万円 | 2LDK | 51.7m2 |
入居決定でお祝い金最大100,000円
Point
【初期費用クレジット決済】可能です。スマホを利用したWeb内覧など、対面不要でお部屋探しからご契約手続きまで完結する事が可能です!大東建託施工物件を中心に、他社様管理物件も幅広くご紹介可能です。
提供:いい部屋ネット大東建託リーシング(株)別府店(SUUMO経由)

詳細情報 ブライトリーT
物件紹介
ブライトリーTはJR日豊本線柳ケ浦駅から徒歩54分にあるマンションです。
このお部屋のインターホンにはTVモニタがついているため、相手の顔を確認してから来客対応することができます。
人気の南向きのお部屋。また、フローリングなのでお掃除もラクラク。バス・トイレ別の仕様で、のんびりお風呂タイムも楽しめます。
通信設備面ではBSアンテナ・CSアンテナがありますので、おうち時間も充実するでしょう(別途工事、契約料が必要な場合あり)。
ペット飼育の相談ができますので、あなたの大切な家族の一員も快適に暮らせるか、ぜひ確認してみてください。
このお部屋のインターホンにはTVモニタがついているため、相手の顔を確認してから来客対応することができます。
人気の南向きのお部屋。また、フローリングなのでお掃除もラクラク。バス・トイレ別の仕様で、のんびりお風呂タイムも楽しめます。
通信設備面ではBSアンテナ・CSアンテナがありますので、おうち時間も充実するでしょう(別途工事、契約料が必要な場合あり)。
ペット飼育の相談ができますので、あなたの大切な家族の一員も快適に暮らせるか、ぜひ確認してみてください。
お金・契約の情報
※「-」と表示されているものは、実際は料金が発生するものもございます。詳細はお問い合わせください。
| 家賃 | 4.95万円 | 管理費・共益費 | 3,000円 |
|---|---|---|---|
| 敷金 | なし | 礼金 | 4.95万円 |
| 入居決定でお祝い金最大100,000円 | |||
| 保証金 | - | 償却・敷引 | - |
| 住宅保険料 | - | 更新料 | - |
| 保証会社利用 | 必須 | 保証会社名 | - |
| 保証会社費用 | - | 保証会社備考 | 保証会社利用必 初回30 000円 月々330円 1年更新15 000円 |
| 契約形態 | - | 契約期間 | - |
| 入居・引渡期間 | - | 現況 | - |
| 入居可能条件 | ペット相談 | ||
| 契約備考 | ペット飼育の場合退去清掃代要(賃料1か月分) 合計1.65万円(内訳:鍵交換代1.65万円) 更新料 15400円 室内清掃費用 60500円 ライフサポート 660円(月額) 町費 500円(月額) 2LDK ペット相談 損保【2万円2年】 バストイレ別、バルコニー、エアコン、ガスコンロ対応、クロゼット、フローリング、シャワー付洗面台、TVインターホン、室内洗濯置、陽当り良好、追焚機能浴室、温水洗浄便座、洗面所独立、駐輪場、最上階、ペット相談、CS、上階無し、全居室6畳以上、プロパンガス、BS、IT重説対応物件、初期費用カード決済可 入居日:'26年6月中旬 | ||
部屋の情報
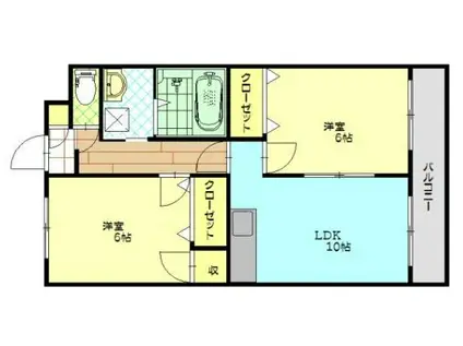
| 間取り | 2LDK | 専有面積 | 51.7m2 |
|---|---|---|---|
| 所在階 / 向き | 1階 / 南西 | バルコニー面積 | - |
| 水道 / ガス | - | ||
| 設備 | バス・トイレ別、テレビドアホン、追い焚き、エアコン、温水洗浄便座、南向き、バルコニー、フローリング、洗髪洗面化粧台、コンロ:ガス、CSアンテナ、BSアンテナ、洗濯機:室内 | ||
| 当社物件ID | 160571565 | ||
建物の情報
| 建物名 | ブライトリーT | ||
|---|---|---|---|
| 所在地 | 大分県宇佐市大字上田 | ||
| 交通 | JR日豊本線 柳ケ浦駅 徒歩54分 | ||
| 階数 | 3階建 | 総戸数 | 12戸 |
| 築年月 | 2007年04月 / 築19年 | エレベーター | - |
| 駐車場 | 空有 3300円 | バイク置き場 | - |
| 駐輪場 | あり | 管理人/管理会社 | - |
| 周辺環境 | その他 ケーズデンキ宇佐店(その他)まで1620m その他 駅館小学校(小学校)まで1312m その他 JR柳ヶ浦駅(その他)まで4927m その他 ナフコ(ホームセンター)まで1453m その他 四日市郵便局(郵便局)まで2213m その他 宇佐駅館局(郵便局)まで1432m | ||
| 建物種別 | マンション | 建物構造 | RC(鉄筋コンクリート) |
この部屋の取扱い不動産会社
| 会社名 | いい部屋ネット大東建託リーシング(株)別府店(SUUMO経由) | ||
|---|---|---|---|
| 所在地 | 大分県別府市石垣西5-1-26 | 交通 | - |
| 営業時間 | 10:00~12:30 13:30~18:00 | 定休日 | 火・水 |
| 免許番号 | 国土交通大臣9120 | 取引態様 | 仲介 |
| 不動産会社管理番号 | 100493957876 | 当社管理番号 | 89 |
| 所属団体 | (公財)日本賃貸住宅管理協会会員 | ||
| 公正取引協議会 | (公社)首都圏不動産公正取引協議会加盟 | ||
| 取扱い物件情報 | 物件詳細へ | ||
※各種情報と現状に差異がある場合は、現状優先となります。問い合わせをすることで、より詳しい条件、情報を確認する事ができます。
提供:いい部屋ネット大東建託リーシング(株)別府店(SUUMO経由)
この物件が気になったら掲載期限まであと11日
ブライトリーTに条件(家賃・エリア)が近い物件一覧
| 写真 | 家賃 管理費等 | 敷金 礼金 | 間取り 専有面積 | 築年数 | 最寄り駅 所在地 | キープ | 詳細 |
|---|---|---|---|---|---|---|---|
マンション リデアル中津(1DK/1階) | |||||||
![]() | 4.4万円 4,000円 | なし 4.4万円 | 1DK 30.13m2 | 築10年 | 日豊本線 中津駅(大分) 徒歩9分 大分県中津市萱津町 | 詳細を見る | |
マンション RINT5(1K/8階) | |||||||
![]() | 4.6万円 5,000円 | なし なし | 1K 36.96m2 | 築25年 | JR日豊本線 亀川駅 徒歩7分 JR日豊本線 別府大学駅 徒歩23分 大分県別府市亀川東町 | 詳細を見る | |
マンション B-STAGE(1K/2階) | |||||||
![]() | 3.9万円 5,000円 | なし なし | 1K 29.4m2 | 築25年 | JR日豊本線 亀川駅 徒歩3分 JR日豊本線 別府大学駅 徒歩25分 JR日豊本線 別府駅(大分) 徒歩77分 大分県別府市亀川浜田町 | 詳細を見る | |
アパート GRASSE(1LDK/2階) | |||||||
![]() | 6.3万円 5,000円 | なし 6.3万円 | 1LDK 34.43m2 | 築1年 | JR日豊本線 別府駅(大分) 徒歩17分 大分県別府市若草町 | 詳細を見る | |
アパート レオネクストセフィーロⅡ(1K/1階) | |||||||
![]() | 3.9万円 4,000円 | なし 3.9万円 | 1K 25.89m2 | 築10年 | 大分県中津市大字上池永 | 詳細を見る | |
マンション サン・ヒーローマンション亀川Ⅰ(1K/2階) | |||||||
![]() | 3.3万円 5,000円 | なし なし | 1K 26.88m2 | 築25年 | JR日豊本線 亀川駅 徒歩1分 JR日豊本線 別府大学駅 徒歩31分 JR日豊本線 豊後豊岡駅 徒歩48分 大分県別府市亀川浜田町 | 詳細を見る | |
マンション エムグラヴィス(2LDK/3階) | |||||||
![]() | 5万円 なし | なし 5万円 | 2LDK 52.32m2 | 築22年 | JR日豊本線 東中津駅 徒歩9分 大分県中津市大字是則 | 詳細を見る | |
アパート チャルルK(3LDK/2階) | |||||||
![]() | 6.6万円 4,500円 | なし 8万円 | 3LDK 68.45m2 | 築12年 | JR日豊本線 中津駅(大分) 徒歩44分 大分県中津市大字永添 | 詳細を見る | |


/105x80-f1-q70-wp1)



/105x80-f1-q70-wp1)


