賃貸マンション
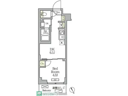
クラリティア馬込の賃貸物件情報(1DK/2階)
| 家賃 | 管理費等 | 敷金 | 礼金 | 間取り | 専有面積 |
|---|---|---|---|---|---|
| 13.7万円 | 1.5万円 | 13.7万円 | なし | 1DK | 25.38m2 |
入居決定でお祝い金最大100,000円
- 保証金
- -
- 償却・敷引
- -
- 築年数
- 築1年
- 所在階
- 2階
- 向き
- 北東
Point
★首都圏に強いタウンハウジング蒲田店がご案内させていただきます!LINE&チャット対応でお手軽にスムーズな物件探しが可能です★オンラインでのご対応もお気軽にご相談くださいませ★
提供:(株)タウンハウジング東京 五反田店(SUUMO経由)

詳細情報 クラリティア馬込
物件紹介
クラリティア馬込は都営浅草線馬込駅から徒歩4分にあり、駅近で通勤通学に便利なマンションです。
このお部屋は2階以上に位置しているので、通行人や周囲の住人からの視線が気になりにくく、防犯面でも安心。建物のエントランスはオートロックがついており、インターホンにはTVモニタもついているため、相手の顔を確認してから来客対応することができます。
こちらは楽器相談が可能な物件。楽器演奏をお考えの方はぜひ相談してみてください。フローリングのお部屋なのでお掃除もラクラク。キッチンはシステムキッチン仕様になっていますので、お料理好きの方にもぴったり。バス・トイレは別なので、のんびりお風呂タイムも楽しめるでしょう。また、雨の日でも浴室乾燥機を使えば、お洗濯も問題ありません。
通信設備面では、インターネットが無料で使えるので、月々の出費を抑えられるのも魅力です。また、CATVにも対応しているので、おうち時間も充実するでしょう(別途工事、CATVの契約料等が必要な場合あり)。
建物にはエレベーターがついているので、重い荷物があっても安心。共用部には宅配ボックスが設定されているので、不在の時にも荷物を受け取ることができます。
このお部屋は2階以上に位置しているので、通行人や周囲の住人からの視線が気になりにくく、防犯面でも安心。建物のエントランスはオートロックがついており、インターホンにはTVモニタもついているため、相手の顔を確認してから来客対応することができます。
こちらは楽器相談が可能な物件。楽器演奏をお考えの方はぜひ相談してみてください。フローリングのお部屋なのでお掃除もラクラク。キッチンはシステムキッチン仕様になっていますので、お料理好きの方にもぴったり。バス・トイレは別なので、のんびりお風呂タイムも楽しめるでしょう。また、雨の日でも浴室乾燥機を使えば、お洗濯も問題ありません。
通信設備面では、インターネットが無料で使えるので、月々の出費を抑えられるのも魅力です。また、CATVにも対応しているので、おうち時間も充実するでしょう(別途工事、CATVの契約料等が必要な場合あり)。
建物にはエレベーターがついているので、重い荷物があっても安心。共用部には宅配ボックスが設定されているので、不在の時にも荷物を受け取ることができます。
お金・契約の情報
※「-」と表示されているものは、実際は料金が発生するものもございます。詳細はお問い合わせください。
| 家賃 | 13.7万円 | 管理費・共益費 | 1.5万円 |
|---|---|---|---|
| 敷金 | 13.7万円 | 礼金 | なし |
| フリーレント | あり | ||
| 入居決定でお祝い金最大100,000円 | |||
| 保証金 | - | 償却・敷引 | - |
| 住宅保険料 | - | 更新料 | - |
| 保証会社利用 | 必須 | 保証会社名 | - |
| 保証会社費用 | - | 保証会社備考 | 保証会社利用必 当社指定:初期費用は賃料等の50%、月次保証料は賃料等の1%。その他保証会社条件有 |
| 契約形態 | - | 契約期間 | - |
| 入居・引渡期間 | 即時 | 現況 | - |
| 入居可能条件 | 楽器相談 | ||
| 契約備考 | 東急大井町線中延駅徒歩14分/巡回管理/東京を中心に関東人気エリアの賃貸マンション・アパート情報が豊富!創業46年直営140店舗以上の独自のネットワークで最適なマンション・アパートをお探しします!お部屋探しからご契約までをオンラインで簡単にご対応できます!『ひとを、まちを、もっと豊かに。』2025年賃貸仲介件数全国第2位の実績です!安心してお問合せくださいませ。 合計1.98万円(内訳:MREALプレミアム会費2年:19800円) 更新料新賃料(ヶ月):1.00ヶ月 1DK 楽器相談/フリーレント1ヶ月 普通借家2年 損保【3.2万円2年】 バストイレ別、バルコニー、エアコン、ガスコンロ対応、クロゼット、フローリング、TVインターホン、浴室乾燥機、オートロック、室内洗濯置、シューズボックス、システムキッチン、温水洗浄便座、エレベーター、洗面所独立、2口コンロ、駐輪場、宅配ボックス、CATV、光ファイバー、即入居可、礼金不要、防犯カメラ、敷金1ヶ月、バイク置場、ネット使用料不要、フリーレント、保証金不要、楽器相談、24時間ゴミ出し可、プロパンガス、高速ネット対応 | ||
部屋の情報
| 間取り | 1DK | 専有面積 | 25.38m2 |
|---|---|---|---|
| 所在階 / 向き | 2階 / 北東 | バルコニー面積 | - |
| 水道 / ガス | - | ||
| 設備 | バス・トイレ別、2階以上、オートロック、テレビドアホン、宅配ボックス、浴室乾燥機、インターネット対応、システムキッチン、エアコン、エレベーター、温水洗浄便座、バルコニー、フローリング、洗髪洗面化粧台、2口コンロ、コンロ:ガス、CATV、インターネット使用料無料、洗濯機:室内 | ||
| 当社物件ID | 160802972 | ||
建物の情報
| 建物名 | クラリティア馬込 | ||
|---|---|---|---|
| 所在地 | 東京都大田区東馬込 | ||
| 交通 | 都営浅草線 馬込駅 徒歩4分 都営浅草線 中延駅 徒歩12分 東急大井町線 荏原町駅 徒歩14分 | ||
| 階数 | 4階建 | 総戸数 | 26戸 |
| 築年月 | 2026年02月 / 築1年 | エレベーター | あり |
| 駐車場 | なし | バイク置き場 | あり |
| 駐輪場 | あり | 管理人/管理会社 | - |
| 周辺環境 | その他 にこま通り(その他)まで2890m その他 まいばすけっと馬込駅東店(スーパー)まで170m その他 ドラッグセイムス大田北馬込店(ドラッグストア)まで480m その他 ファミリーマート(コンビニ)まで210m その他 ローソン(飲食店)まで380m その他 大森駅ビルRaRa(ショッピングセンター)まで1880m | ||
| 建物種別 | マンション | 建物構造 | RC(鉄筋コンクリート) |
この部屋の取扱い不動産会社
| 会社名 | (株)タウンハウジング東京 五反田店(SUUMO経由) | ||
|---|---|---|---|
| 所在地 | 東京都品川区東五反田5-28-9 五反田第三花谷ビル1階 | 交通 | - |
| 営業時間 | AM10:00~PM7:00 | 定休日 | 水曜日 |
| 免許番号 | 国土交通大臣9926 | 取引態様 | 仲介 |
| 不動産会社管理番号 | 100497041175 | 当社管理番号 | 89 |
| 所属団体 | (公社)東京都宅地建物取引業協会会員 | ||
| 公正取引協議会 | (公社)首都圏不動産公正取引協議会加盟 | ||
| 取扱い物件情報 | 物件詳細へ | ||
※各種情報と現状に差異がある場合は、現状優先となります。問い合わせをすることで、より詳しい条件、情報を確認する事ができます。
提供:(株)タウンハウジング東京 五反田店(SUUMO経由)
この物件が気になったら掲載期限まであと10日
クラリティア馬込に条件(家賃・エリア)が近い物件一覧
| 写真 | 家賃 管理費等 | 敷金 礼金 | 間取り 専有面積 | 築年数 | 最寄り駅 所在地 | キープ | 詳細 |
|---|---|---|---|---|---|---|---|
マンション SEED JUST B-BASE COAST(1LDK/3階) | |||||||
![]() | 9.9万円 1.5万円 | 9.9万円 9.9万円 | 1LDK 25.41m2 | 築1年 | 東京モノレール羽田 昭和島駅 徒歩11分 京浜急行電鉄本線 梅屋敷駅(東京) 徒歩19分 東京都大田区大森南4丁目 | 詳細を見る | |
マンション 田中ファミリーハイツ(1DK/3階) | |||||||
![]() | 8.5万円 3,000円 | 8.5万円 8.5万円 | 1DK 30.85m2 | 築36年 | 京急本線 大森町駅 徒歩3分 京急本線 平和島駅 徒歩9分 京急本線 梅屋敷駅(東京) 徒歩13分 東京都大田区大森西 | 詳細を見る | |
マンション エクセルⅡ(1K/8階) | |||||||
![]() | 8.3万円 4,000円 | 8.3万円 16.6万円 | 1K 19.37m2 | 築18年 | 京浜急行電鉄本線 梅屋敷駅(東京) 徒歩15分 京浜急行電鉄空港線 大鳥居駅 徒歩19分 東京都大田区北糀谷1丁目 | 詳細を見る | |
マンション アドレ貴舩(2DK/1階) | |||||||
![]() | 15.9万円 4,000円 | 15.9万円 15.9万円 | 2DK 46.41m2 | 築14年 | 京浜急行電鉄本線 大森町駅 徒歩13分 京浜急行電鉄本線 梅屋敷駅(東京) 徒歩17分 東京都大田区大森東3丁目 | 詳細を見る | |
アパート ノリアセット(2LDK/2階) | |||||||
![]() | 18.5万円 3,000円 | 18.5万円 18.5万円 | 2LDK 62.72m2 | 新築 | 京浜急行電鉄本線 大森町駅 徒歩9分 京浜急行電鉄本線 梅屋敷駅(東京) 徒歩16分 東京都大田区大森東3丁目 | 詳細を見る | |
マンション プレール・ドゥーク木場親水公園(1K/2階) | |||||||
![]() | 10.9万円 1.1万円 | なし 10.9万円 | 1K 21.87m2 | 築20年 | 東京地下鉄東西線 木場駅 徒歩8分 東京都大江戸線 門前仲町駅 徒歩12分 東京地下鉄東西線 門前仲町駅 徒歩12分 東京都江東区木場3丁目 | 詳細を見る | |
マンション PREMUROS(1K/1階) | |||||||
![]() | 9.2万円 3,000円 | 9.2万円 9.2万円 | 1K 23m2 | 築12年 | 京浜急行電鉄本線 大森町駅 徒歩2分 京浜急行電鉄本線 梅屋敷駅(東京) 徒歩10分 東京都大田区大森西3丁目 | 詳細を見る | |
マンション サンライズマンション(2LDK/2階) | |||||||
![]() | 15.5万円 3,000円 | 12.7万円 31万円 | 2LDK 55.31m2 | 築26年 | 京浜急行電鉄本線 梅屋敷駅(東京) 徒歩13分 京浜急行電鉄本線 大森町駅 徒歩14分 東京都大田区大森南1丁目 | 詳細を見る | |









