賃貸マンション
クラリティア馬込の賃貸物件情報(1DK/2階)
| 家賃 | 管理費等 | 敷金 | 礼金 | 間取り | 専有面積 |
|---|---|---|---|---|---|
| 13.7万円 | 1.5万円 | 13.7万円 | なし | 1DK | 25.38m2 |
入居決定でお祝い金最大100,000円
- 保証金
- -
- 償却・敷引
- -
- 築年数
- 築1年
- 所在階
- 2階
- 向き
- 北東
Point
☆オンラインでの接客・内見・契約まで来店不要で可能です!☆また他社様物件もご紹介可能です!お気軽にご連絡下さい♪☆
提供:(株)アップル神奈川金沢文庫店(SUUMO経由)

詳細情報 クラリティア馬込
物件紹介
クラリティア馬込は都営浅草線馬込駅から徒歩4分にあり、駅近で通勤通学に便利なマンションです。
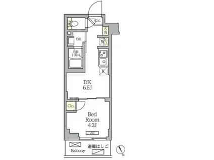
このお部屋は2階以上に位置しているので、通行人や周囲の住人からの視線が気になりにくく、防犯面でも安心。建物のエントランスはオートロックがついており、インターホンにはTVモニタもついているため、相手の顔を確認してから来客対応することができます。
こちらは楽器相談が可能な物件。楽器演奏をお考えの方はぜひ相談してみてください。フローリングのお部屋なのでお掃除もラクラク。キッチンはシステムキッチン仕様になっていますので、お料理好きの方にもぴったり。バス・トイレは別なので、のんびりお風呂タイムも楽しめるでしょう。また、雨の日でも浴室乾燥機を使えば、お洗濯も問題ありません。
通信設備面では、インターネットが無料で使えるので、月々の出費を抑えられるのも魅力です。また、CATVにも対応しているので、おうち時間も充実するでしょう(別途工事、CATVの契約料等が必要な場合あり)。
建物にはエレベーターがついているので、重い荷物があっても安心。共用部には宅配ボックスが設定されているので、不在の時にも荷物を受け取ることができます。
このお部屋は2階以上に位置しているので、通行人や周囲の住人からの視線が気になりにくく、防犯面でも安心。建物のエントランスはオートロックがついており、インターホンにはTVモニタもついているため、相手の顔を確認してから来客対応することができます。
こちらは楽器相談が可能な物件。楽器演奏をお考えの方はぜひ相談してみてください。フローリングのお部屋なのでお掃除もラクラク。キッチンはシステムキッチン仕様になっていますので、お料理好きの方にもぴったり。バス・トイレは別なので、のんびりお風呂タイムも楽しめるでしょう。また、雨の日でも浴室乾燥機を使えば、お洗濯も問題ありません。
通信設備面では、インターネットが無料で使えるので、月々の出費を抑えられるのも魅力です。また、CATVにも対応しているので、おうち時間も充実するでしょう(別途工事、CATVの契約料等が必要な場合あり)。
建物にはエレベーターがついているので、重い荷物があっても安心。共用部には宅配ボックスが設定されているので、不在の時にも荷物を受け取ることができます。
お金・契約の情報
※「-」と表示されているものは、実際は料金が発生するものもございます。詳細はお問い合わせください。
| 家賃 | 13.7万円 | 管理費・共益費 | 1.5万円 |
|---|---|---|---|
| 敷金 | 13.7万円 | 礼金 | なし |
| フリーレント | あり | ||
| 入居決定でお祝い金最大100,000円 | |||
| 保証金 | - | 償却・敷引 | - |
| 住宅保険料 | - | 更新料 | - |
| 保証会社利用 | 必須 | 保証会社名 | - |
| 保証会社費用 | - | 保証会社備考 | 保証会社利用必 当社指定:初期費用は賃料等の50%、月次保証料は賃料等の1%。その他保証会社条件有 |
| 契約形態 | - | 契約期間 | - |
| 入居・引渡期間 | 即時 | 現況 | - |
| 入居可能条件 | 楽器相談 | ||
| 契約備考 | [退去時費用 退去費用実費精算※故意・過失等別途実費] 保証会社:その他 合計1.98万円(内訳:M-REALプレミアム会費2年) 1DK 楽器相談/フリーレント1ヶ月 損保【要】 バストイレ別、バルコニー、エアコン、クロゼット、フローリング、TVインターホン、浴室乾燥機、オートロック、室内洗濯置、シューズボックス、システムキッチン、温水洗浄便座、エレベーター、洗面所独立、2口コンロ、駐輪場、宅配ボックス、CATV、光ファイバー、即入居可、礼金不要、防犯カメラ、保証人不要、敷金1ヶ月、バイク置場、2沿線利用可、ネット使用料不要、フリーレント、築2年以内、築3年以内、トイレ未使用、2駅利用可、駅徒歩5分以内、駅徒歩10分以内、24時間ゴミ出し可、築5年以内、プロパンガス、高速ネット対応、保証会社利用可 | ||
部屋の情報
| 間取り | 1DK | 専有面積 | 25.38m2 |
|---|---|---|---|
| 所在階 / 向き | 2階 / 北東 | バルコニー面積 | - |
| 水道 / ガス | - | ||
| 設備 | バス・トイレ別、2階以上、オートロック、テレビドアホン、宅配ボックス、浴室乾燥機、インターネット対応、システムキッチン、エアコン、エレベーター、温水洗浄便座、バルコニー、フローリング、洗髪洗面化粧台、2口コンロ、CATV、インターネット使用料無料、洗濯機:室内 | ||
| 当社物件ID | 160802981 | ||
建物の情報
| 建物名 | クラリティア馬込 | ||
|---|---|---|---|
| 所在地 | 東京都大田区東馬込 | ||
| 交通 | 都営浅草線 馬込駅 徒歩4分 東急大井町線 荏原町駅 徒歩14分 湘南新宿ライン宇須 西大井駅 徒歩14分 | ||
| 階数 | 4階建 | 総戸数 | 26戸 |
| 築年月 | 2026年02月 / 築1年 | エレベーター | あり |
| 駐車場 | なし | バイク置き場 | あり |
| 駐輪場 | あり | 管理人/管理会社 | - |
| 周辺環境 | その他 昭和大学病院(病院)まで1858m その他 大森駅(その他)まで1910m その他 大井町駅(その他)まで1990m その他 品川小山五郵便局(郵便局)まで2662m その他 大森海岸駅(その他)まで2662m その他 立会川駅(その他)まで2706m | ||
| 建物種別 | マンション | 建物構造 | RC(鉄筋コンクリート) |
この部屋の取扱い不動産会社
| 会社名 | (株)アップル神奈川金沢文庫店(SUUMO経由) | ||
|---|---|---|---|
| 所在地 | 神奈川県横浜市金沢区谷津町 359 ししくら2階 | 交通 | - |
| 営業時間 | 10時~19時 | 定休日 | 毎週水曜日 |
| 免許番号 | 神奈川県知事13668 | 取引態様 | 仲介 |
| 不動産会社管理番号 | 100494921855 | 当社管理番号 | 89 |
| 取扱い物件情報 | 物件詳細へ | ||
※各種情報と現状に差異がある場合は、現状優先となります。問い合わせをすることで、より詳しい条件、情報を確認する事ができます。
提供:(株)アップル神奈川金沢文庫店(SUUMO経由)
この物件が気になったら掲載期限まであと11日
クラリティア馬込に条件(家賃・エリア)が近い物件一覧
| 写真 | 家賃 管理費等 | 敷金 礼金 | 間取り 専有面積 | 築年数 | 最寄り駅 所在地 | キープ | 詳細 |
|---|---|---|---|---|---|---|---|
マンション BLANCHE(1LDK/1階) | |||||||
![]() | 12.4万円 3,000円 | 12.4万円 なし | 1LDK 34.23m2 | 築10年 | 東急池上線 久が原駅 徒歩2分 東急池上線 御嶽山駅 徒歩8分 東京都大田区東嶺町 | 詳細を見る | |
マンション プレール・ドゥーク大島(1LDK/2階) | |||||||
![]() | 19万円 1.1万円 | なし 19万円 | 1LDK 34.89m2 | 築3年 | 東京都新宿線 東大島駅 徒歩6分 東京都新宿線 大島駅(東京) 徒歩8分 総武・中央緩行線 亀戸駅 徒歩25分 東京都江東区大島7丁目 | 詳細を見る | |
マンション リビオメゾン木場(1DK/10階) | |||||||
![]() | 14.4万円 1.5万円 | 14.4万円 なし | 1DK 25.11m2 | 築4年 | 東京メトロ東西線 木場駅 徒歩5分 東京メトロ東西線 東陽町駅 徒歩16分 東京メトロ東西線 門前仲町駅 徒歩18分 東京都江東区木場 | 詳細を見る | |
アパート サン ヴィータ(1K/1階) | |||||||
![]() | 8.6万円 5,000円 | 8.6万円 8.6万円 | 1K 20.02m2 | 築6年 | 京急本線 京急蒲田駅 徒歩6分 京急本線 梅屋敷駅(東京) 徒歩10分 JR京浜東北線 蒲田駅 徒歩10分 東京都大田区蒲田 | 詳細を見る | |
マンション ミレニアムハイム(1LDK/4階) | |||||||
![]() | 15.4万円 5,000円 | 15.4万円 なし | 1LDK 43.36m2 | 築26年 | 京浜東北・根岸線 蒲田駅 徒歩18分 京浜急行電鉄本線 大森町駅 徒歩18分 東京都大田区中央8丁目 | 詳細を見る | |
アパート SEED SAVE PETIRASU イースト(1LDK/3階) | |||||||
![]() | 11万円 1万円 | 22万円 11万円 | 1LDK 30.55m2 | 築2年 | 京急本線 梅屋敷駅(東京) 徒歩17分 京急本線 大森町駅 徒歩18分 東京都大田区大森東 | 詳細を見る | |
マンション クレヴィスタ亀戸IV(1K/10階) | |||||||
![]() | 13.8万円 1.1万円 | なし 13.8万円 | 1K 25.56m2 | 築7年 | 総武・中央緩行線 亀戸駅 徒歩4分 東武鉄道亀戸線 亀戸駅 徒歩4分 総武本線 錦糸町駅 徒歩12分 東京都江東区亀戸2丁目 | 詳細を見る | |








