賃貸マンション
クリアル プレミア目黒 CREAL PREMIER目黒の賃貸物件情報(ワンルーム/1階)
| 家賃 | 管理費等 | 敷金 | 礼金 | 間取り | 専有面積 |
|---|---|---|---|---|---|
| 13.2万円 | 1万円 | なし | なし | ワンルーム | 25.36m2 |
入居決定でお祝い金最大100,000円
- 保証金
- -
- 償却・敷引
- -
- 築年数
- 築4年
- 所在階
- 1階
- 向き
- 南
Point
★システムキッチン・2口ガスコンロ★浴室乾燥機★室内洗濯機置場★温水洗浄便座★エアコン★クローゼット★TVドアホン★オートロック★宅配ボックス★バイク置場・駐輪場★詳細はお気軽にお問い合わせ下さい!★
提供:(株)ユウキ・ホーム麻布十番網代公園店(SUUMO経由)

詳細情報 クリアル プレミア目黒 CREAL PREMIER目黒
物件紹介
クリアル プレミア目黒 CREAL PREMIER目黒はJR山手線目黒駅から徒歩8分にあり、駅近で通勤通学に便利なマンションです。
建物のエントランスはオートロックがついており、インターホンにはTVモニタもついているため、相手の顔を確認してから来客対応することができます。
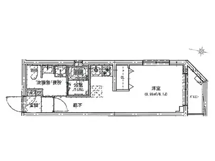
人気の南向き・フローリングのお部屋。角部屋でもあるため、周囲の居住者の生活音も気になりにくい場所です。キッチンはシステムキッチン仕様になっていますので、お料理好きの方にもぴったり。バス・トイレは別なので、のんびりお風呂タイムも楽しめるでしょう。また、雨の日でも浴室乾燥機を使えば、お洗濯も問題ありません。
建物にはエレベーターがついているので、重い荷物があっても安心。共用部には宅配ボックスが設定されているので、不在の時にも荷物を受け取ることができます。また、ペット飼育の相談ができますので、あなたの大切な家族の一員も快適に暮らせるか、ぜひ確認してみてください。
建物のエントランスはオートロックがついており、インターホンにはTVモニタもついているため、相手の顔を確認してから来客対応することができます。
人気の南向き・フローリングのお部屋。角部屋でもあるため、周囲の居住者の生活音も気になりにくい場所です。キッチンはシステムキッチン仕様になっていますので、お料理好きの方にもぴったり。バス・トイレは別なので、のんびりお風呂タイムも楽しめるでしょう。また、雨の日でも浴室乾燥機を使えば、お洗濯も問題ありません。
建物にはエレベーターがついているので、重い荷物があっても安心。共用部には宅配ボックスが設定されているので、不在の時にも荷物を受け取ることができます。また、ペット飼育の相談ができますので、あなたの大切な家族の一員も快適に暮らせるか、ぜひ確認してみてください。
お金・契約の情報
※「-」と表示されているものは、実際は料金が発生するものもございます。詳細はお問い合わせください。
| 家賃 | 13.2万円 | 管理費・共益費 | 1万円 |
|---|---|---|---|
| 敷金 | なし | 礼金 | なし |
| 入居決定でお祝い金最大100,000円 | |||
| 保証金 | - | 償却・敷引 | - |
| 住宅保険料 | - | 更新料 | - |
| 保証会社利用 | 必須 | 保証会社名 | - |
| 保証会社費用 | - | 保証会社備考 | 保証会社利用必 初回保証料:賃料総額の100% 詳細はお問い合わせ下さい。 |
| 契約形態 | - | 契約期間 | - |
| 入居・引渡期間 | 即時 | 現況 | - |
| 入居可能条件 | ペット相談 | ||
| 契約備考 | 巡回管理/鍵交換は1か所のみの場合あり、鍵渡しは1本のみの場合あり 1年未満短期解約違約金:賃料+管理費の1ヶ月分 ペット:敷金2ヶ月積増、退去時2ヶ月償却、小型犬又は猫いずれか1匹まで※詳細要確認 駐輪場:550円/月※空詳細要確認 バイク置場:空詳細要確認 合計7.15万円(内訳:契約事務手数料1.1万円消臭除菌代1.1万円アクト安心ライフ24/2年(年額)1.65万円鍵交換代3.3万円) ワンルーム 単身者可/ペット相談 普通借家2年 損保【2万円2年】 バストイレ別、バルコニー、エアコン、ガスコンロ対応、クロゼット、フローリング、TVインターホン、浴室乾燥機、オートロック、室内洗濯置、シューズボックス、システムキッチン、南向き、追焚機能浴室、角住戸、温水洗浄便座、エレベーター、洗面化粧台、2口コンロ、駐輪場、宅配ボックス、即入居可、礼金不要、敷金不要、防犯カメラ、ペット相談、オートバス、保証人不要、バイク置場、2沿線利用可、2駅利用可、3駅以上利用可、3沿線以上利用可、駅徒歩10分以内、敷地内ごみ置き場、都市ガス、南面バルコニー、敷金・礼金不要、保証会社利用可 敷金積み増し【ペット飼育の場合敷金26.4万円(総額)】 | ||
部屋の情報
| 間取り | ワンルーム | 専有面積 | 25.36m2 |
|---|---|---|---|
| 所在階 / 向き | 1階 / 南 | バルコニー面積 | - |
| 水道 / ガス | - | ||
| 設備 | バス・トイレ別、オートロック、テレビドアホン、宅配ボックス、浴室乾燥機、追い焚き、システムキッチン、エアコン、エレベーター、温水洗浄便座、南向き、角部屋、バルコニー、フローリング、2口コンロ、コンロ:ガス、洗濯機:室内 | ||
| 当社物件ID | 123323778 | ||
建物の情報
| 建物名 | クリアル プレミア目黒 CREAL PREMIER目黒 | ||
|---|---|---|---|
| 所在地 | 東京都品川区上大崎 | ||
| 交通 | JR山手線 目黒駅 徒歩8分 都営浅草線 五反田駅 徒歩10分 東京メトロ南北線 白金台駅 徒歩13分 | ||
| 階数 | 地下1地上4階建 | 総戸数 | - |
| 築年月 | 2022年09月 / 築4年 | エレベーター | あり |
| 駐車場 | なし | バイク置き場 | あり |
| 駐輪場 | あり | 管理人/管理会社 | - |
| 周辺環境 | その他 ファミリーマート 上大崎店(コンビニ)まで237m その他 まいばすけっと 西五反田3丁目店(スーパー)まで359m その他 さくら薬局 上大崎店(ドラッグストア)まで462m | ||
| 建物種別 | マンション | 建物構造 | RC(鉄筋コンクリート) |
この部屋の取扱い不動産会社
| 会社名 | (株)ユウキ・ホーム麻布十番サテライト店(SUUMO経由) | ||
|---|---|---|---|
| 所在地 | 東京都港区麻布十番2-19-10 桂麻布十番ビル1階 | 交通 | - |
| 営業時間 | 9:30~21:30 | 定休日 | 年中無休 |
| 免許番号 | 東京都知事76214 | 取引態様 | 仲介 |
| 不動産会社管理番号 | 100454791916 | 当社管理番号 | 89 |
| 所属団体 | (公社)東京都宅地建物取引業協会会員 | ||
| 公正取引協議会 | (公社)首都圏不動産公正取引協議会加盟 | ||
| 取扱い物件情報 | 物件詳細へ | ||
※各種情報と現状に差異がある場合は、現状優先となります。問い合わせをすることで、より詳しい条件、情報を確認する事ができます。
提供:(株)ユウキ・ホーム麻布十番サテライト店(SUUMO経由)
この物件が気になったら掲載期限まであと11日
クリアル プレミア目黒 CREAL PREMIER目黒に条件(家賃・エリア)が近い物件一覧
| 写真 | 家賃 管理費等 | 敷金 礼金 | 間取り 専有面積 | 築年数 | 最寄り駅 所在地 | キープ | 詳細 |
|---|---|---|---|---|---|---|---|
マンション SEED JUST B-BASE Ⅱ(1LDK/4階) | |||||||
![]() | 8.8万円 1.5万円 | 8.8万円 8.8万円 | 1LDK 23.07m2 | 新築 | 東京モノレール羽田 昭和島駅 徒歩11分 京浜急行電鉄本線 梅屋敷駅(東京) 徒歩19分 東京都大田区大森南4丁目 | 詳細を見る | |
マンション クロスレジデンス蒲田Ⅱ(1K/5階) | |||||||
![]() | 11.7万円 1万円 | 11.7万円 11.7万円 | 1K 25.14m2 | 築6年 | 京浜東北・根岸線 蒲田駅 徒歩5分 東急池上線 蓮沼駅 徒歩5分 京浜急行電鉄本線 京急蒲田駅 徒歩16分 東京都大田区西蒲田7丁目 | 詳細を見る | |
マンション GRANDUO田園調布Ⅳ(1LDK/2階) | |||||||
![]() | 18.5万円 1.5万円 | なし なし | 1LDK 34.61m2 | 築6年 | 東急東横線 田園調布駅 徒歩4分 東急東横線 多摩川駅 徒歩11分 東京都大田区田園調布2丁目 | 詳細を見る | |
マンション ステージグランデ蒲田(1K/2階) | |||||||
![]() | 9.2万円 5,000円 | なし 9.2万円 | 1K 22.55m2 | 築20年 | 東急池上線 蓮沼駅 徒歩5分 JR京浜東北線 蒲田駅 徒歩7分 東急多摩川線 矢口渡駅 徒歩12分 東京都大田区西蒲田 | 詳細を見る | |
一戸建て 東京地下鉄有楽町線 豊洲駅 徒歩12分 築51年(3DK) | |||||||
![]() | 13.8万円 なし | 13.8万円 13.8万円 | 3DK 64.71m2 | 築51年 | 東京地下鉄有楽町線 豊洲駅 徒歩12分 京葉線 潮見駅 徒歩20分 東京地下鉄東西線 木場駅 徒歩24分 東京都江東区枝川1丁目 | 詳細を見る | |
アパート REGALEST KAMATA(1LDK/3階) | |||||||
![]() | 14.4万円 5,000円 | なし 14.4万円 | 1LDK 30.06m2 | 築4年 | 京浜急行電鉄本線 梅屋敷駅(東京) 徒歩8分 京浜急行電鉄本線 京急蒲田駅 徒歩10分 京浜急行電鉄空港線 京急蒲田駅 徒歩10分 東京都大田区蒲田2丁目 | 詳細を見る | |
マンション LIVEFLAT馬込(1LDK/1階) | |||||||
![]() | 14.2万円 1万円 | なし なし | 1LDK 28.48m2 | 築1年 | 東京都浅草線 馬込駅 徒歩4分 東京都大田区中馬込2丁目 | 詳細を見る | |







/105x80-f1-q70-wp1)