賃貸マンション
GRANDUO田園調布Ⅳの賃貸物件情報(1LDK/2階)
| 家賃 | 管理費等 | 敷金 | 礼金 | 間取り | 専有面積 |
|---|---|---|---|---|---|
| 18.5万円 | 1.5万円 | なし | なし | 1LDK | 34.61m2 |
入居決定でお祝い金最大100,000円
- 保証金
- -
- 償却・敷引
- -
- 築年数
- 築6年
- 所在階
- 2階
- 向き
- 北西
Point
まずはお問い合わせ!
不動産会社は街のプロ、あなたに合った物件がきっと見つかります。
提供:株式会社日商ベックス リロの不動産 蒲田店(賃貸スモッカ経由)

詳細情報 GRANDUO田園調布Ⅳ
物件紹介
GRANDUO田園調布Ⅳは東急東横線田園調布駅から徒歩4分にあり、駅近で通勤通学に便利なマンションです。
このお部屋は2階以上に位置しているので、通行人や周囲の住人からの視線が気になりにくく、防犯面でも安心。建物のエントランスはオートロックがついており、インターホンにはTVモニタもついているため、相手の顔を確認してから来客対応することができます。
おしゃれなデザイナーズ物件!人気の角部屋で周囲の居住者の生活音も気になりにくく、また、フローリングのお部屋なのでお掃除もラクラク。キッチンはシステムキッチン仕様になっていますので、お料理好きの方にもぴったり。バス・トイレは別なので、のんびりお風呂タイムも楽しめるでしょう。また、雨の日でも浴室乾燥機を使えば、お洗濯も問題ありません。
通信設備面では、インターネット接続が可能です。また、BSアンテナ・CSアンテナもありますので、おうち時間も充実するでしょう(別途工事、契約料が必要な場合あり)。
建物にはエレベーターがついているので、重い荷物があっても安心。共用部には宅配ボックスが設定されているので、不在の時にも荷物を受け取ることができます。また、ペット飼育の相談ができますので、あなたの大切な家族の一員も快適に暮らせるか、ぜひ確認してみてください。
このお部屋は2階以上に位置しているので、通行人や周囲の住人からの視線が気になりにくく、防犯面でも安心。建物のエントランスはオートロックがついており、インターホンにはTVモニタもついているため、相手の顔を確認してから来客対応することができます。
おしゃれなデザイナーズ物件!人気の角部屋で周囲の居住者の生活音も気になりにくく、また、フローリングのお部屋なのでお掃除もラクラク。キッチンはシステムキッチン仕様になっていますので、お料理好きの方にもぴったり。バス・トイレは別なので、のんびりお風呂タイムも楽しめるでしょう。また、雨の日でも浴室乾燥機を使えば、お洗濯も問題ありません。
通信設備面では、インターネット接続が可能です。また、BSアンテナ・CSアンテナもありますので、おうち時間も充実するでしょう(別途工事、契約料が必要な場合あり)。
建物にはエレベーターがついているので、重い荷物があっても安心。共用部には宅配ボックスが設定されているので、不在の時にも荷物を受け取ることができます。また、ペット飼育の相談ができますので、あなたの大切な家族の一員も快適に暮らせるか、ぜひ確認してみてください。
お金・契約の情報
※「-」と表示されているものは、実際は料金が発生するものもございます。詳細はお問い合わせください。
| 家賃 | 18.5万円 | 管理費・共益費 | 1.5万円 |
|---|---|---|---|
| 敷金 | なし | 礼金 | なし |
| フリーレント | あり | ||
| 入居決定でお祝い金最大100,000円 | |||
| 保証金 | - | 償却・敷引 | - |
| 住宅保険料 | 住宅保険料あり | 更新料 | - |
| 契約形態 | - | 契約期間 | 2年 |
| 入居・引渡期間 | 2026年01月下旬 | 現況 | 賃貸中 |
| 契約備考 | エアコンクリーニング費用/台:16,500円 鍵交換代:27,500円 更新料:1ヶ月 保証会社:利用必須 保証内容はプランによって異なります。 その他設備/条件:IT重説 対応物件、防犯カメラ、コンロ2口以上、独立洗面台、エアコン複数 | ||
部屋の情報
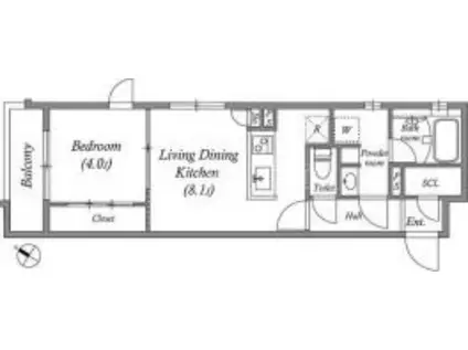
| 間取り | 1LDK | 専有面積 | 34.61m2 |
|---|---|---|---|
| 間取り詳細 | 洋室(4帖)、LDK(8.1帖) | ||
| 所在階 / 向き | 2階 / 北西 | バルコニー面積 | - |
| 水道 / ガス | ガス【都市】 | ||
| 設備 | バス・トイレ別、2階以上、オートロック、宅配ボックス、浴室乾燥機、エアコン、エレベーター、温水洗浄便座、バルコニー、フローリング、コンロ:ガス、CSアンテナ、BSアンテナ、洗濯機:室内 | ||
| 当社物件ID | 159893130 | ||
建物の情報
| 建物名 | GRANDUO田園調布Ⅳ | ||
|---|---|---|---|
| 所在地 | 東京都大田区田園調布2丁目 | ||
| 交通 | 東急東横線 田園調布駅 徒歩4分 東急目黒線 田園調布駅 徒歩4分 東急東横線 多摩川駅 徒歩13分 | ||
| 階数 | 4階建 | 総戸数 | - |
| 築年月 | 2020年09月 / 築6年 | エレベーター | あり |
| 駐車場 | - | バイク置き場 | - |
| 駐輪場 | あり | 管理人/管理会社 | - |
| 建物種別 | マンション | 建物構造 | RC(鉄筋コンクリート) |
この部屋の取扱い不動産会社
| 会社名 | 株式会社日商ベックス リロの不動産 蒲田店(賃貸スモッカ経由) | ||
|---|---|---|---|
| 所在地 | 東京都大田区西蒲田7丁目1-6 谷口ビル 1F | 交通 | - |
| 営業時間 | - | 定休日 | - |
| 免許番号 | 国土交通大臣免許(10)第3273号 | 取引態様 | 仲介 |
| 不動産会社管理番号 | nvrelo_100_100_00013293185 | 当社管理番号 | 463 |
| 取扱い物件情報 | 物件詳細へ | ||
※各種情報と現状に差異がある場合は、現状優先となります。問い合わせをすることで、より詳しい条件、情報を確認する事ができます。
提供:株式会社日商ベックス リロの不動産 蒲田店(賃貸スモッカ経由)
この物件が気になったら掲載期限まであと5日
GRANDUO田園調布Ⅳに条件(家賃・エリア)が近い物件一覧
| 写真 | 家賃 管理費等 | 敷金 礼金 | 間取り 専有面積 | 築年数 | 最寄り駅 所在地 | キープ | 詳細 |
|---|---|---|---|---|---|---|---|
アパート タカマルハイム(1LDK/1階) | |||||||
![]() | 11.5万円 3,000円 | 11.5万円 11.5万円 | 1LDK 34m2 | 築11年 | 東急多摩川線 武蔵新田駅 徒歩8分 東急多摩川線 下丸子駅 徒歩9分 東京都大田区下丸子2丁目 | 詳細を見る | |
マンション エム.エルフ(1K/1階) | |||||||
![]() | 14.2万円 8,000円 | 14.2万円 28.4万円 | 1K 29.99m2 | 築9年 | JR山手線 目黒駅 徒歩3分 東京メトロ南北線 白金台駅 徒歩14分 湘南新宿ライン宇須 恵比寿駅 徒歩17分 東京都品川区上大崎 | 詳細を見る | |
マンション AUGUSTA RESIDENCE大森(1SLDK/8階) | |||||||
![]() | 21.7万円 1万円 | なし なし | 1SLDK 40.88m2 | 築1年 | 京急本線 大森海岸駅 徒歩5分 JR京浜東北線 大森駅(東京) 徒歩11分 東京モノレール 大井競馬場前駅 徒歩21分 東京都品川区南大井 | 詳細を見る | |
マンション ハーモニーレジデンス東京イーストガーデン(1K/4階) | |||||||
![]() | 12.2万円 1.8万円 | なし なし | 1K 26.57m2 | 築8年 | JR総武線 亀戸駅 徒歩8分 東京メトロ半蔵門線 錦糸町駅 徒歩13分 都営新宿線 住吉駅(東京) 徒歩15分 東京都江東区亀戸 | 詳細を見る | |
アパート SEED SAVE PETIRASU Ⅲ(1LDK/2階) | |||||||
![]() | 11.5万円 1万円 | 23万円 11.5万円 | 1LDK 30.55m2 | 新築 | 東京モノレール羽田 昭和島駅 徒歩12分 京浜急行電鉄本線 大森町駅 徒歩18分 東京都大田区大森東5丁目 | 詳細を見る | |
マンション CHART HOUSEふるはま公園(2LDK/1階) | |||||||
![]() | 18.8万円 4,000円 | 18.8万円 なし | 2LDK 52.5m2 | 築6年 | 京急本線 大森町駅 徒歩14分 東京モノレール 昭和島駅 徒歩16分 京急本線 平和島駅 徒歩21分 東京都大田区大森東 | 詳細を見る | |
マンション 品川シーサイドビュータワー2(1K/17階) | |||||||
![]() | 15.1万円 1万円 | なし 22.65万円 | 1K 42.38m2 | 築23年 | 東京臨海高速鉄道 品川シーサイド駅 徒歩2分 東京都品川区東品川4丁目 | 詳細を見る | |
マンション GRAN PASEO大森Ⅱ(2LDK/3階) | |||||||
![]() | 20.8万円 1.2万円 | なし なし | 2LDK 41.6m2 | 築1年 | 京浜東北・根岸線 大森駅(東京) 徒歩7分 京浜急行電鉄本線 大森海岸駅 徒歩7分 東京都大田区大森北2丁目 | 詳細を見る | |








