賃貸アパート
レオパレスルーチェの賃貸物件情報(1K/2階)
| 家賃 | 管理費等 | 敷金 | 礼金 | 間取り | 専有面積 |
|---|---|---|---|---|---|
| 4.2万円 | 4,500円 | なし | 4.2万円 | 1K | 22.35m2 |
入居決定でお祝い金最大100,000円
Point
室内設備はエアコン・家具付など豊富に揃っており、過ごしやすいお部屋になっております。
提供:ハウスコム関東株式会社 水戸駅前店

詳細情報 レオパレスルーチェ
物件紹介
このお部屋は2階以上に位置しているので、通行人や周囲の住人からの視線が気になりにくく、防犯面でも安心です。
バス・トイレ別の仕様で、のんびりお風呂タイムも楽しめます。
通信設備面では、インターネット接続が可能です(別途工事、契約料が必要な場合あり)。
共用部には宅配ボックスが設定されているので、不在の時にも荷物を受け取ることができます。
コンビニまで徒歩26分の場所にあり、日用品や食料品のお買い物にも便利です。
バス・トイレ別の仕様で、のんびりお風呂タイムも楽しめます。
通信設備面では、インターネット接続が可能です(別途工事、契約料が必要な場合あり)。
共用部には宅配ボックスが設定されているので、不在の時にも荷物を受け取ることができます。
コンビニまで徒歩26分の場所にあり、日用品や食料品のお買い物にも便利です。
お金・契約の情報
※「-」と表示されているものは、実際は料金が発生するものもございます。詳細はお問い合わせください。
| 家賃 | 4.2万円 | 管理費・共益費 | 4,500円 |
|---|---|---|---|
| 敷金 | なし | 礼金 | 4.2万円 |
| 入居決定でお祝い金最大100,000円 | |||
| 保証金 | - | 償却・敷引 | - |
| 住宅保険料 | 1円 | 更新料 | - |
| その他費用 | 抗菌施工(任意):2.376万円 | ||
| 保証会社利用 | 必須 | 保証会社名 | - |
| 保証会社費用 | - | 保証会社備考 | 保証料:56390円(契約内容により100〜120%で変動有)※記載金額は120%の場合 |
| 契約形態 | - | 契約期間 | - |
| 入居・引渡期間 | 2026年04月中旬 | 現況 | - |
| 契約備考 | 初期:退去時清掃費 41800円 抗菌施工(任意) 23760円 抗菌施工(任意) 23760円 保証会社利用必須 保証料:71990円(契約内容により100〜120%で変動有)記載金額は120%の場合 月額(環境維持費 550円) 鍵交換費用:16500 室内清掃費用:41800 その他設備/条件:室内洗濯機置き場 | ||
部屋の情報
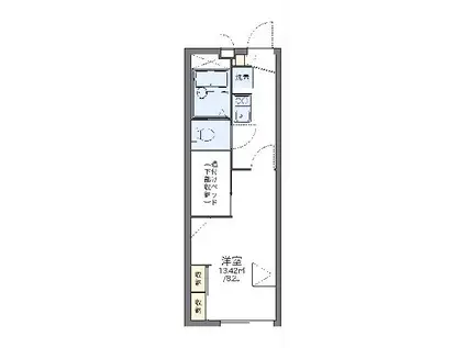
| 間取り | 1K | 専有面積 | 22.35m2 |
|---|---|---|---|
| 所在階 / 向き | 2階 / - | バルコニー面積 | - |
| 水道 / ガス | - | ||
| 設備 | バス・トイレ別、宅配ボックス、光ファイバー対応、エアコン、コンロ:電気 | ||
| 当社物件ID | 8073496 | ||
建物の情報
| 建物名 | レオパレスルーチェ | ||
|---|---|---|---|
| 所在地 | 茨城県日立市西成沢町2丁目 | ||
| 交通 | 常磐線 日立駅 バス乗車時間:14分 上の内バス停で下車 徒歩4分 | ||
| 階数 | 2階建 | 総戸数 | 16戸 |
| 築年月 | 2005年07月 / 築21年 | エレベーター | - |
| 駐車場 | 空有 3,300円/月 | バイク置き場 | - |
| 駐輪場 | - | 管理人/管理会社 | - |
| 周辺環境 | コンビニ 徒歩26分(2054m) その他 ドラッグストア その他 公園 その他 銀行 その他 * | ||
| 建物種別 | アパート | 建物構造 | 軽量鉄骨造 |
この部屋の取扱い不動産会社
| 会社名 | ハウスコム関東株式会社 水戸駅前店 | ||
|---|---|---|---|
| 所在地 | 茨城県水戸市1-3ステーションフロント水戸1階 | 交通 | - |
| 営業時間 | 10:00~18:00 | 定休日 | - |
| 免許番号 | 国土交通大臣(1)第10263号 | 取引態様 | 仲介 |
| 不動産会社管理番号 | HC5-2366583-207-0214 | 当社管理番号 | 468 |
| 所属団体 | 一般社団法人全国住宅産業協会/公益社団法人首都圏不動産公正取引協議会/公益財団法人日本賃貸住宅管理協会、 | ||
| 取扱い物件情報 | 物件詳細へ | ||
※各種情報と現状に差異がある場合は、現状優先となります。問い合わせをすることで、より詳しい条件、情報を確認する事ができます。
提供:ハウスコム関東株式会社 水戸駅前店
この物件が気になったら掲載期限まであと4日
レオパレスルーチェに条件(家賃・エリア)が近い物件一覧
| 写真 | 家賃 管理費等 | 敷金 礼金 | 間取り 専有面積 | 築年数 | 最寄り駅 所在地 | キープ | 詳細 |
|---|---|---|---|---|---|---|---|
アパート リッツガーデン久慈B(1LDK/2階) | |||||||
![]() | 5万円 なし | 5万円 なし | 1LDK 39.35m2 | 築17年 | JR常磐線 大甕駅 徒歩26分 JR常磐線 東海駅 徒歩85分 JR常磐線 常陸多賀駅 徒歩89分 茨城県日立市久慈町 | 詳細を見る | |
アパート グラシオッソ Ⅱ(1LDK/1階) | |||||||
![]() | 6万円 2,800円 | なし 9万円 | 1LDK 50.14m2 | 築1年 | 水郡線 中菅谷駅 徒歩22分 茨城県那珂市菅谷 | 詳細を見る | |
アパート メゾンジオワイユ1(1LDK/1階) | |||||||
![]() | 4.8万円 1,700円 | なし なし | 1LDK 46.06m2 | 築31年 | 茨城県日立市久慈町3丁目 | 詳細を見る | |
アパート フレグランスクレールB(2LDK/2階) | |||||||
![]() | 5.5万円 なし | 5.5万円 なし | 2LDK 54.82m2 | 築33年 | JR常磐線 日立駅 徒歩25分 茨城県日立市本宮町 | 詳細を見る | |
アパート レオネクスト森山(ワンルーム/2階) | |||||||
![]() | 6.7万円 4,500円 | なし 6.7万円 | ワンルーム 26.5m2 | 築12年 | 常磐線 大甕駅 徒歩16分 茨城県日立市森山町1丁目 | 詳細を見る | |
アパート サニーホーム A(2LDK/2階) | |||||||
![]() | 5万円 なし | なし なし | 2LDK 57.14m2 | 築26年 | JR常磐線 十王駅 徒歩16分 JR常磐線 高萩駅 徒歩70分 JR常磐線 小木津駅 徒歩73分 茨城県日立市十王町友部 | 詳細を見る | |
アパート GRACE(1LDK/1階) | |||||||
![]() | 5.5万円 2,000円 | 5.5万円 なし | 1LDK 40.39m2 | 築17年 | JR水郡線 中菅谷駅 徒歩12分 JR水郡線 上菅谷駅 徒歩18分 JR水郡線 下菅谷駅 徒歩31分 茨城県那珂市菅谷 | 詳細を見る | |
アパート ハイツWACHI C(3DK/2階) | |||||||
![]() | 4.8万円 なし | 9.6万円 なし | 3DK 53.46m2 | 築33年 | JR常磐線 常陸多賀駅 徒歩19分 JR常磐線 日立駅 徒歩66分 JR常磐線 大甕駅 徒歩77分 茨城県日立市末広町 | 詳細を見る | |









