賃貸アパート
レオパレスルーチェの賃貸物件情報(1K/2階)
| 家賃 | 管理費等 | 敷金 | 礼金 | 間取り | 専有面積 |
|---|---|---|---|---|---|
| 4.2万円 | 4,500円 | なし | 4.2万円 | 1K | 22.35m2 |
入居決定でお祝い金最大100,000円
Point
宅配ボックス付きですので時間を気にせず荷物受け取りができます。仲介手数料ゼロ円でご紹介します。
提供:ハウスコム関東株式会社 水戸駅前店

詳細情報 レオパレスルーチェ
物件紹介
このお部屋は2階以上に位置しているので、通行人や周囲の住人からの視線が気になりにくく、防犯面でも安心です。
バス・トイレ別の仕様で、のんびりお風呂タイムも楽しめます。
通信設備面では、インターネット接続が可能です(別途工事、契約料が必要な場合あり)。
共用部には宅配ボックスが設定されているので、不在の時にも荷物を受け取ることができます。
コンビニまで徒歩26分の場所にあり、日用品や食料品のお買い物にも便利です。
バス・トイレ別の仕様で、のんびりお風呂タイムも楽しめます。
通信設備面では、インターネット接続が可能です(別途工事、契約料が必要な場合あり)。
共用部には宅配ボックスが設定されているので、不在の時にも荷物を受け取ることができます。
コンビニまで徒歩26分の場所にあり、日用品や食料品のお買い物にも便利です。
お金・契約の情報
※「-」と表示されているものは、実際は料金が発生するものもございます。詳細はお問い合わせください。
| 家賃 | 4.2万円 | 管理費・共益費 | 4,500円 |
|---|---|---|---|
| 敷金 | なし | 礼金 | 4.2万円 |
| 入居決定でお祝い金最大100,000円 | |||
| 保証金 | - | 償却・敷引 | - |
| 住宅保険料 | 1円 | 更新料 | - |
| その他費用 | 抗菌施工(任意):2.376万円 | ||
| 保証会社利用 | 必須 | 保証会社名 | - |
| 保証会社費用 | - | 保証会社備考 | 保証料:56390円(契約内容により100〜120%で変動有)※記載金額は120%の場合 |
| 契約形態 | - | 契約期間 | - |
| 入居・引渡期間 | 2026年04月中旬 | 現況 | - |
| 契約備考 | 室内清掃費用 41800円 鍵交換代 16500円 月額:環境維持費 550円 初期:抗菌施工(任意) 23760円 保証会社利用必須 保証料:61190円(契約内容により100〜120%で変動有)記載金額は120%の場合 月額(環境維持費 550円) 鍵交換費用:16500 室内清掃費用:41800 その他設備/条件:室内洗濯機置き場 | ||
部屋の情報
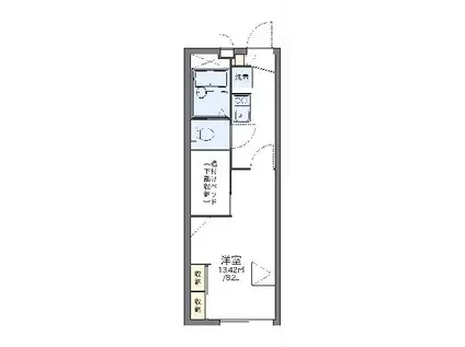
| 間取り | 1K | 専有面積 | 22.35m2 |
|---|---|---|---|
| 所在階 / 向き | 2階 / - | バルコニー面積 | - |
| 水道 / ガス | - | ||
| 設備 | バス・トイレ別、宅配ボックス、光ファイバー対応、エアコン、コンロ:電気 | ||
| 当社物件ID | 2136544 | ||
建物の情報
| 建物名 | レオパレスルーチェ | ||
|---|---|---|---|
| 所在地 | 茨城県日立市西成沢町2丁目 | ||
| 交通 | 常磐線 日立駅 バス乗車時間:14分 上の内バス停で下車 徒歩4分 | ||
| 階数 | 2階建 | 総戸数 | 16戸 |
| 築年月 | 2005年07月 / 築21年 | エレベーター | - |
| 駐車場 | 空有 3,300円/月 | バイク置き場 | - |
| 駐輪場 | - | 管理人/管理会社 | - |
| 周辺環境 | コンビニ 徒歩26分(2054m) その他 ドラッグストア その他 公園 その他 銀行 その他 * | ||
| 建物種別 | アパート | 建物構造 | 軽量鉄骨造 |
この部屋の取扱い不動産会社
| 会社名 | ハウスコム関東株式会社 水戸駅前店 | ||
|---|---|---|---|
| 所在地 | 茨城県水戸市1-3ステーションフロント水戸1階 | 交通 | - |
| 営業時間 | 10:00~18:00 | 定休日 | - |
| 免許番号 | 国土交通大臣(1)第10263号 | 取引態様 | 仲介 |
| 不動産会社管理番号 | HC5-2366583-205-0214 | 当社管理番号 | 468 |
| 所属団体 | 一般社団法人全国住宅産業協会/公益社団法人首都圏不動産公正取引協議会/公益財団法人日本賃貸住宅管理協会、 | ||
| 取扱い物件情報 | 物件詳細へ | ||
※各種情報と現状に差異がある場合は、現状優先となります。問い合わせをすることで、より詳しい条件、情報を確認する事ができます。
提供:ハウスコム関東株式会社 水戸駅前店
この物件が気になったら掲載期限まであと4日
レオパレスルーチェに条件(家賃・エリア)が近い物件一覧
| 写真 | 家賃 管理費等 | 敷金 礼金 | 間取り 専有面積 | 築年数 | 最寄り駅 所在地 | キープ | 詳細 |
|---|---|---|---|---|---|---|---|
アパート グラシオッソ Ⅱ(1LDK/1階) | |||||||
![]() | 6万円 2,800円 | なし 9万円 | 1LDK 50.14m2 | 築1年 | 水郡線 中菅谷駅 徒歩22分 茨城県那珂市菅谷 | 詳細を見る | |
アパート エスポワールMⅤ(2LDK/2階) | |||||||
![]() | 5.05万円 1,800円 | なし 5.05万円 | 2LDK 57.21m2 | 築13年 | 茨城県日立市大沼町3丁目 | 詳細を見る | |
アパート サンハイツ(1LDK/2階) | |||||||
![]() | 4.5万円 2,200円 | なし なし | 1LDK 46.09m2 | 築17年 | JR常磐線 常陸多賀駅 徒歩31分 JR常磐線 大甕駅 徒歩42分 JR常磐線 日立駅 徒歩98分 茨城県日立市金沢町 | 詳細を見る | |
アパート パークサイド・リラD(1LDK/1階) | |||||||
![]() | 6.5万円 4,000円 | なし 6.5万円 | 1LDK 42.11m2 | 築19年 | JR常磐線 東海駅 徒歩15分 JR常磐線 佐和駅 徒歩65分 JR水郡線 額田駅(茨城) 徒歩86分 茨城県那珂郡東海村舟石川駅東 | 詳細を見る | |
アパート メゾングラースII(2LDK/2階) | |||||||
![]() | 6.4万円 1,800円 | なし 9.4万円 | 2LDK 58.67m2 | 築12年 | JR水郡線 上菅谷駅 徒歩10分 茨城県那珂市菅谷 | 詳細を見る | |
マンション 旭町ケイセンマンション(2LDK/3階) | |||||||
![]() | 4.2万円 3,000円 | なし なし | 2LDK 49.67m2 | 築46年 | JR常磐線 日立駅 徒歩4分 茨城県日立市旭町 | 詳細を見る | |
マンション サンブルージュ(2DK/3階) | |||||||
![]() | 4.3万円 2,200円 | なし なし | 2DK 52.3m2 | 築31年 | JR常磐線 十王駅 徒歩10分 JR常磐線 小木津駅 徒歩61分 JR常磐線 高萩駅 徒歩89分 茨城県日立市川尻町 | 詳細を見る | |
アパート ホワイトハイツ A(3DK/2階) | |||||||
![]() | 4.5万円 なし | なし なし | 3DK 46.37m2 | 築38年 | JR常磐線 小木津駅 徒歩8分 茨城県日立市小木津町 | 詳細を見る | |









